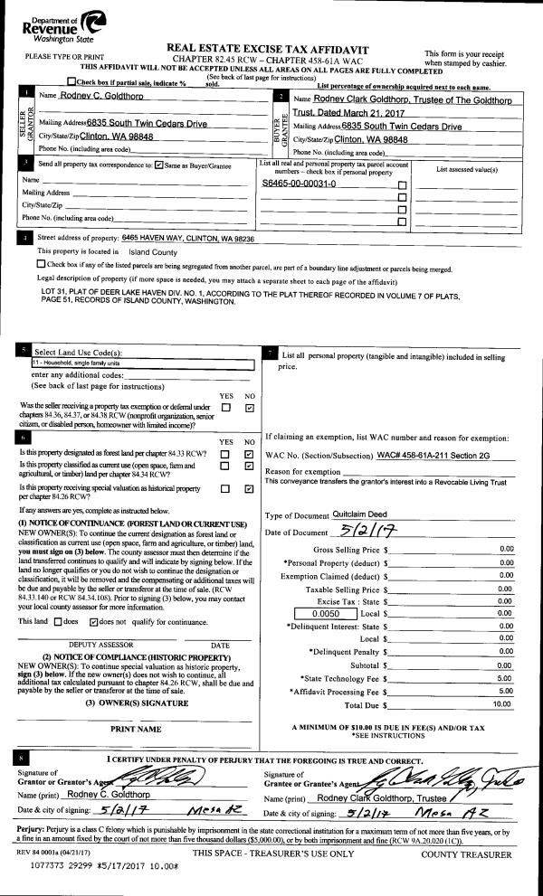
Property
Account |
| Property ID: | 110962 | Abbreviated Legal Description: | 15 - IN GL1:BG NW CR GL1 E139.78' S3*E150.36' TPB S3 *E75.18' E TO ML N75' W TPB TGW EZ |
| Geographic ID: | R23430-112-4280 | Agent Code: | |
| Type: | Real | | |
| Tax Area: | 110 - APPRAISER-OH Schl Dist, outside OH, improved & 1 acre or less | Land Use Code | 11 |
| Open Space: | N | DFL | N |
| Historic Property: | N | Remodel Property: | N |
| Multi-Family Redevelopment: | N | | |
| Township: | 34 | Section: | 30 |
| Range: | R2 |
Location |
| Address: | 5288 ANGLERS HAVEN DR OAK HARBOR, WA 98277 | Mapsco: | |
| Neighborhood: | Cycle 6 | Map ID: | 666 |
| Neighborhood CD: | 6 |
Owner |
| Name: | MOREHOUSE, DANIEL G | Owner ID: | 286814 |
| Mailing Address: | 5288 ANGLERS HAVEN DR OAK HARBOR, WA 98277 | % Ownership: | 100.0000000000% |
| | | Exemptions: | |
Taxes and Assessment Details
Values
| (+) Improvement Homesite Value: | + | $0 | |
| (+) Improvement Non-Homesite Value: | + | $4,000 | |
| (+) Land Homesite Value: | + | $0 | |
| (+) Land Non-Homesite Value: | + | $260,000 | |
| (+) Curr Use (HS): | + | $0 | $0 |
| (+) Curr Use (NHS): | + | $0 | $0 |
| | | -------------------------- | |
| (=) Market Value: | = | $264,000 | |
| (–) Productivity Loss: | – | $0 | |
| | | -------------------------- | |
| (=) Subtotal: | = | $264,000 | |
| (+) Senior Appraised Value: | + | $0 | |
| (+) Non-Senior Appraised Value: | + | $264,000 | |
| | | -------------------------- | |
| (=) Total Appraised Value: | = | $264,000 | |
| (–) Senior Exemption Loss: | – | $0 | |
| (–) Exemption Loss: | – | $0 | |
| | | -------------------------- | |
| (=) Taxable Value: | = | $264,000 | |
Taxing Jurisdiction
| Owner: | MOREHOUSE, DANIEL G | | |
| % Ownership: | 100.0000000000% | | |
| Total Value: | $264,000 | | |
| Tax Area: | 110 - APPRAISER-OH Schl Dist, outside OH, improved & 1 acre or less |
| CF | Conservation Futures | 0.0316035091 | $264,000 | $264,000 | $8.34 | | |
| CEM1 | Cemetery #1 | 0.0040320932 | $264,000 | $264,000 | $1.06 | | |
| FIRE2 | Fire & Rescue Dist #2 N Whidbey GEN | 0.5475949600 | $264,000 | $264,000 | $144.57 | | |
| HOBOND | Hospital BOND | 0.1910887512 | $264,000 | $264,000 | $50.45 | | |
| HOGEN | Hospital GEN | 0.3902502903 | $264,000 | $264,000 | $103.03 | | |
| CE | County Current Expense | 0.3708482477 | $264,000 | $264,000 | $97.90 | | |
| CR | County Roads | 0.4584763726 | $264,000 | $264,000 | $121.04 | | |
| ISLANDEMS | Hospital GEN (EMS) | 0.5000000000 | $264,000 | $264,000 | $132.00 | | |
| LIB | Library Sno-Isle GEN | 0.3153421757 | $264,000 | $264,000 | $83.25 | | |
| NWHIDPRMT | P & R N Whidbey GEN | 0.2004466701 | $264,000 | $264,000 | $52.92 | | |
| SCH201MO | School 201 Enrichment | 1.8559231640 | $264,000 | $264,000 | $489.96 | | |
| ST | State School | 1.3035497053 | $264,000 | $264,000 | $344.14 | | |
| ST2 | State School Part 2 | 0.8169543533 | $264,000 | $264,000 | $215.68 | | |
| | Total Tax Rate: | 6.9861102925 | | | | | |
| | | | | Taxes w/Current Exemptions: | $1,844.34 | | |
| | | | | Taxes w/o Exemptions: | $1,844.34 | | |
Improvement / Building
| Improvement #1: | RESIDENTIAL | State Code: | Y | 0.0 sqft | Value: | $4,000 |
Sketch
| No sketches available for this property. |
Property Image
Land
| 1 | HB | HIGH BLUFF | 0.5800 | 25264.80 | 75.00 | 0.00 | 1.00 | $260,000 | $0 |
Roll Value History
| 2026 | N/A | N/A | N/A | N/A | N/A |
| 2025 | $4,000 | $260,000 | $0 | $264,000 | $264,000 |
| 2024 | $4,000 | $235,000 | $0 | $239,000 | $239,000 |
| 2023 | $4,000 | $210,000 | $0 | $214,000 | $214,000 |
| 2022 | $4,000 | $210,000 | $0 | $214,000 | $214,000 |
| 2021 | $4,000 | $150,000 | $0 | $154,000 | $154,000 |
| 2020 | $4,000 | $150,000 | $0 | $154,000 | $154,000 |
| 2019 | $4,000 | $150,000 | $0 | $154,000 | $154,000 |
| 2018 | $4,000 | $150,000 | $0 | $154,000 | $154,000 |
| 2017 | $4,000 | $150,000 | $0 | $154,000 | $154,000 |
| 2016 | $4,000 | $150,000 | $0 | $154,000 | $154,000 |
| 2015 | $4,000 | $138,857 | $0 | $142,857 | $142,857 |
| 2014 | $4,000 | $138,857 | $0 | $142,857 | $142,857 |
| 2013 | $4,000 | $138,857 | $0 | $142,857 | $142,857 |
| 2012 | $4,000 | $138,857 | $0 | $142,857 | $142,857 |
| 2011 | $4,000 | $138,857 | $0 | $142,857 | $142,857 |
| 2010 | $4,000 | $138,857 | $0 | $142,857 | $142,857 |
| 2009 | $4,000 | $138,857 | $0 | $142,857 | $142,857 |
| 2008 | $4,000 | $138,857 | $0 | $142,857 | $142,857 |
| 2007 | $4,000 | $138,857 | $0 | $142,857 | $142,857 |
Deed and Sales History
| 1 | 09/06/2018 | WD | Warranty Deed | HENDERSON, KENNETH R | MOREHOUSE, DANIEL G | | | $180,000.00 | 35808 | 4451356 |
| 2 | 01/18/2006 | WD | Warranty Deed | KRAEMER, NORBERT P | HENDERSON, KENNETH R | | | $110,000.00 | 60263 | 4160233 |
| 3 | 09/01/1978 | OTHER | Other - Misc. Documents | Unknown | KRAEMER, NORBERT P | | | $21,500.00 | 84329 | 339205 |
Payout Agreement
| No payout information available.. |