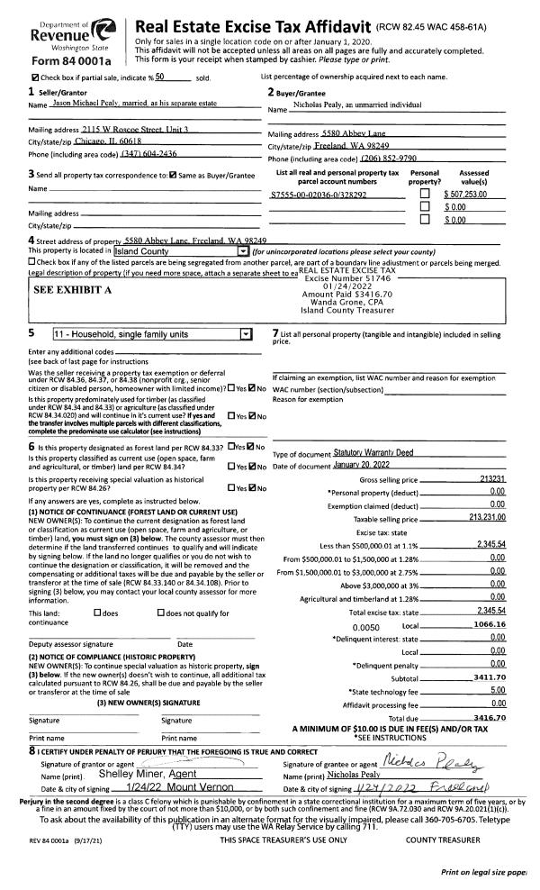
Property
Account |
| Property ID: | 111159 | Abbreviated Legal Description: | 25 - IN SE: BG NECR NE SE S792.76' W388' TPB N258' N89*W326.31' M/L S20*E35.34 ALG CUR/R 197.88' S31.65' E277.69' TPB TGW EZ TGW EZ AF#88014742 (TR B SP 73-027) |
| Geographic ID: | R23431-198-4770 | Agent Code: | |
| Type: | Real | | |
| Tax Area: | 112 - APPRAISER-OH Schl Dist, outside OH, improved, greater than 1 acre | Land Use Code | 11 |
| Open Space: | N | DFL | N |
| Historic Property: | N | Remodel Property: | N |
| Multi-Family Redevelopment: | N | | |
| Township: | 34 | Section: | 31 |
| Range: | R2 |
Location |
| Address: | 368 TREETOP HILL RD OAK HARBOR, WA 98277 | Mapsco: | |
| Neighborhood: | Cycle 6 | Map ID: | 670 |
| Neighborhood CD: | 6 |
Owner |
| Name: | ELLIS, SCOTT | Owner ID: | 300731 |
| Mailing Address: | VICTORIA ELLIS 368 TREETOP HILL RD OAK HARBOR, WA 98277 | % Ownership: | 100.0000000000% |
| | | Exemptions: | |
Taxes and Assessment Details
Values
| (+) Improvement Homesite Value: | + | $0 | |
| (+) Improvement Non-Homesite Value: | + | $518,256 | |
| (+) Land Homesite Value: | + | $0 | |
| (+) Land Non-Homesite Value: | + | $210,000 | |
| (+) Curr Use (HS): | + | $0 | $0 |
| (+) Curr Use (NHS): | + | $0 | $0 |
| | | -------------------------- | |
| (=) Market Value: | = | $728,256 | |
| (–) Productivity Loss: | – | $0 | |
| | | -------------------------- | |
| (=) Subtotal: | = | $728,256 | |
| (+) Senior Appraised Value: | + | $0 | |
| (+) Non-Senior Appraised Value: | + | $728,256 | |
| | | -------------------------- | |
| (=) Total Appraised Value: | = | $728,256 | |
| (–) Senior Exemption Loss: | – | $0 | |
| (–) Exemption Loss: | – | $0 | |
| | | -------------------------- | |
| (=) Taxable Value: | = | $728,256 | |
Taxing Jurisdiction
| Owner: | ELLIS, SCOTT | | |
| % Ownership: | 100.0000000000% | | |
| Total Value: | $728,256 | | |
| Tax Area: | 112 - APPRAISER-OH Schl Dist, outside OH, improved, greater than 1 acre |
| CF | Conservation Futures | 0.0316035091 | $728,256 | $728,256 | $23.02 | | |
| CEM1 | Cemetery #1 | 0.0040320932 | $728,256 | $728,256 | $2.94 | | |
| FIRE2 | Fire & Rescue Dist #2 N Whidbey GEN | 0.5475949600 | $728,256 | $728,256 | $398.79 | | |
| HOBOND | Hospital BOND | 0.1910887512 | $728,256 | $728,256 | $139.16 | | |
| HOGEN | Hospital GEN | 0.3902502903 | $728,256 | $728,256 | $284.20 | | |
| CE | County Current Expense | 0.3708482477 | $728,256 | $728,256 | $270.07 | | |
| CR | County Roads | 0.4584763726 | $728,256 | $728,256 | $333.89 | | |
| ISLANDEMS | Hospital GEN (EMS) | 0.5000000000 | $728,256 | $728,256 | $364.13 | | |
| LIB | Library Sno-Isle GEN | 0.3153421757 | $728,256 | $728,256 | $229.65 | | |
| NWHIDPRMT | P & R N Whidbey GEN | 0.2004466701 | $728,256 | $728,256 | $145.98 | | |
| SCH201MO | School 201 Enrichment | 1.8559231640 | $728,256 | $728,256 | $1,351.59 | | |
| ST | State School | 1.3035497053 | $728,256 | $728,256 | $949.32 | | |
| ST2 | State School Part 2 | 0.8169543533 | $728,256 | $728,256 | $594.95 | | |
| | Total Tax Rate: | 6.9861102925 | | | | | |
| | | | | Taxes w/Current Exemptions: | $5,087.69 | | |
| | | | | Taxes w/o Exemptions: | $5,087.69 | | |
Improvement / Building
| Improvement #1: | RESIDENTIAL | State Code: | Y | 2966.3 sqft | Value: | $518,256 |
| Bathrooms: | 3 | Bedrooms: | 4 | | Ceiling: | DRYWALL PAINTED | Cooling: | HEAT PUMP/CONV/V | | Exterior Wall/Cover: | CEMENT FIBER | Floor Covering: | CARPET/VINYL 60-40 | | Floor Structure: | WOOD W/SUBFLOOR | Foundation: | CONCRETE | | Interior Finish: | DRYWALL PAINT | Plumbing Fixture Cnt: | 13 | | Roof Slope: | 8" IN 12" | Roof Structure/Cover: | CJ ASPHALT |
|
| | Type | Description | Class CD | Sub Class CD | Year Built | Area |
| | BAS | BASE/MAIN FLOOR | 4 | 0 | 2021 | 1706.3 |
| | AGR | ATTACHED GARAGE | 4 | 0 | 2021 | 625.0 |
| | DWN | DOWNSTAIRS LIVING AREA | 4 | 0 | 2021 | 1260.0 |
| | OWP | OPEN WOOD PORCH W/STEPS | 4 | 0 | 2021 | 240.0 |
| | OP4 | OPEN PORCH W/CEILING-ROOF | 4 | 0 | 2021 | 77.0 |
| | UTY | STORAGE/UTILITY | 4 | 0 | 2021 | 192.0 |
Sketch
Property Image
Land
| 1 | 17 | AC (01.01-02.00) | 0.0000 | 0.00 | 0.00 | 0.00 | 1.00 | $210,000 | $0 |
Roll Value History
| 2026 | N/A | N/A | N/A | N/A | N/A |
| 2025 | $518,256 | $210,000 | $0 | $728,256 | $728,256 |
| 2024 | $522,369 | $210,000 | $0 | $732,369 | $732,369 |
| 2023 | $527,851 | $210,000 | $0 | $737,851 | $737,851 |
| 2022 | $479,213 | $200,000 | $0 | $679,213 | $679,213 |
| 2021 | $425,224 | $140,000 | $0 | $565,224 | $565,224 |
| 2020 | $0 | $70,000 | $0 | $70,000 | $70,000 |
| 2019 | $0 | $90,000 | $0 | $90,000 | $90,000 |
| 2018 | $0 | $90,000 | $0 | $90,000 | $90,000 |
| 2017 | $0 | $70,000 | $0 | $70,000 | $70,000 |
| 2016 | $0 | $70,000 | $0 | $70,000 | $70,000 |
| 2015 | $0 | $70,000 | $0 | $70,000 | $70,000 |
| 2014 | $0 | $65,000 | $0 | $65,000 | $65,000 |
| 2013 | $0 | $65,000 | $0 | $65,000 | $65,000 |
| 2012 | $0 | $65,000 | $0 | $65,000 | $65,000 |
| 2011 | $0 | $65,000 | $0 | $65,000 | $65,000 |
| 2010 | $0 | $65,000 | $0 | $65,000 | $65,000 |
| 2009 | $0 | $65,000 | $0 | $65,000 | $65,000 |
| 2008 | $0 | $65,000 | $0 | $65,000 | $65,000 |
| 2007 | $0 | $65,000 | $0 | $65,000 | $65,000 |
Deed and Sales History
| 1 | 08/11/2021 | WD | Warranty Deed | LERCH, THOMAS | ELLIS, SCOTT | | | $760,000.00 | 49640 | 4526905 |
| 2 | 04/12/2013 | WD | Warranty Deed | HARRIS, MAUREEN M M | LERCH, THOMAS | | | $37,000.00 | 11022 | 4337647 |
| 3 | 01/17/2008 | QCD | Quit Claim Deed | HARRIS, MAUREEN M | HARRIS, MAUREEN M M | | | $0.00 | 80198 | 4220434 |
| 4 | 09/13/2007 | QCD | Quit Claim Deed | HARRIS, MAUREEN M | HARRIS, MAUREEN M | | | $0.00 | 73315 | 4213300 |
| 5 | 07/01/1991 | WD | Warranty Deed | HARRIS, MAUREEN M | HARRIS, MAUREEN M | | | $38,000.00 | 12733 | 91011657 |
| 6 | 07/01/1991 | QCD | Quit Claim Deed | PIERSON, ROBERT G | HARRIS, MAUREEN M | | | $0.00 | 12734 | 91011656 |
| 7 | 01/01/1900 | OTHER | Other - Misc. Documents | Unknown | PIERSON, ROBERT G | | | $0.00 | 0 | 0 |
Payout Agreement
| No payout information available.. |