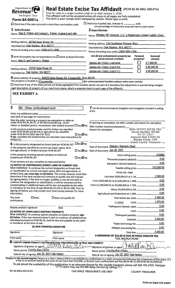
Property
Account |
| Property ID: | 111462 | Abbreviated Legal Description: | PT GL1 LY E CO RD R/W JONES RD EX PT SD GL1 DESC FOLL: BG SWCR SD SEC 32 E1469.3' TP ELN CO RD R/W JONES RD & TPB N20*W ALG ELN CO RD 348' N76*E570' M/L TP ON SHORE SKAGIT BAY SELY ALG SHORE SKAGIT BAY TO SLN SD GL1 W ALG SD SLN TPB ALSO EX PT SD GL1 DES |
| Geographic ID: | R23432-080-1470 | Agent Code: | |
| Type: | Real | | |
| Tax Area: | 119 - APPRAISER-OH Schl Dist, outside OH, vacant & 50 acres or less | Land Use Code | 91 |
| Open Space: | N | DFL | N |
| Historic Property: | N | Remodel Property: | N |
| Multi-Family Redevelopment: | N | | |
| Township: | 34 | Section: | 32 |
| Range: | R2 |
Location |
| Address: | | Mapsco: | |
| Neighborhood: | Cycle 6 | Map ID: | 673 |
| Neighborhood CD: | 6 |
Owner |
| Name: | STOBART, JOHN B | Owner ID: | 303786 |
| Mailing Address: | 4884 JONES RD OAK HARBOR, WA 98277 | % Ownership: | 100.0000000000% |
| | | Exemptions: | |
Taxes and Assessment Details
Values
| (+) Improvement Homesite Value: | + | $0 | |
| (+) Improvement Non-Homesite Value: | + | $0 | |
| (+) Land Homesite Value: | + | $0 | |
| (+) Land Non-Homesite Value: | + | $390,000 | |
| (+) Curr Use (HS): | + | $0 | $0 |
| (+) Curr Use (NHS): | + | $0 | $0 |
| | | -------------------------- | |
| (=) Market Value: | = | $390,000 | |
| (–) Productivity Loss: | – | $0 | |
| | | -------------------------- | |
| (=) Subtotal: | = | $390,000 | |
| (+) Senior Appraised Value: | + | $0 | |
| (+) Non-Senior Appraised Value: | + | $390,000 | |
| | | -------------------------- | |
| (=) Total Appraised Value: | = | $390,000 | |
| (–) Senior Exemption Loss: | – | $0 | |
| (–) Exemption Loss: | – | $0 | |
| | | -------------------------- | |
| (=) Taxable Value: | = | $390,000 | |
Taxing Jurisdiction
| Owner: | STOBART, JOHN B | | |
| % Ownership: | 100.0000000000% | | |
| Total Value: | $390,000 | | |
| Tax Area: | 119 - APPRAISER-OH Schl Dist, outside OH, vacant & 50 acres or less |
| CF | Conservation Futures | 0.0316035091 | $390,000 | $390,000 | $12.33 | | |
| CEM1 | Cemetery #1 | 0.0040320932 | $390,000 | $390,000 | $1.57 | | |
| HOBOND | Hospital BOND | 0.1910887512 | $390,000 | $390,000 | $74.52 | | |
| HOGEN | Hospital GEN | 0.3902502903 | $390,000 | $390,000 | $152.20 | | |
| CE | County Current Expense | 0.3708482477 | $390,000 | $390,000 | $144.63 | | |
| CR | County Roads | 0.4584763726 | $390,000 | $390,000 | $178.81 | | |
| ISLANDEMS | Hospital GEN (EMS) | 0.5000000000 | $390,000 | $390,000 | $195.00 | | |
| LIB | Library Sno-Isle GEN | 0.3153421757 | $390,000 | $390,000 | $122.98 | | |
| NWHIDPRMT | P & R N Whidbey GEN | 0.2004466701 | $390,000 | $390,000 | $78.17 | | |
| SCH201MO | School 201 Enrichment | 1.8559231640 | $390,000 | $390,000 | $723.81 | | |
| ST | State School | 1.3035497053 | $390,000 | $390,000 | $508.38 | | |
| ST2 | State School Part 2 | 0.8169543533 | $390,000 | $390,000 | $318.61 | | |
| | Total Tax Rate: | 6.4385153325 | | | | | |
| | | | | Taxes w/Current Exemptions: | $2,511.01 | | |
| | | | | Taxes w/o Exemptions: | $2,511.01 | | |
Improvement / Building
Sketch
| No sketches available for this property. |
Property Image
Land
| 1 | HB | HIGH BLUFF | 8.7700 | 382021.20 | 350.00 | 0.00 | 1.00 | $390,000 | $0 |
Roll Value History
| 2026 | N/A | N/A | N/A | N/A | N/A |
| 2025 | $0 | $390,000 | $0 | $390,000 | $390,000 |
| 2024 | $0 | $375,000 | $0 | $375,000 | $375,000 |
| 2023 | $0 | $350,000 | $0 | $350,000 | $350,000 |
| 2022 | $0 | $350,000 | $0 | $350,000 | $350,000 |
| 2021 | $0 | $300,000 | $0 | $300,000 | $300,000 |
| 2020 | $0 | $300,000 | $0 | $300,000 | $300,000 |
| 2019 | $0 | $300,000 | $0 | $300,000 | $300,000 |
| 2018 | $0 | $300,000 | $0 | $300,000 | $300,000 |
| 2017 | $0 | $300,000 | $0 | $300,000 | $300,000 |
| 2016 | $0 | $300,000 | $0 | $300,000 | $300,000 |
| 2015 | $0 | $300,000 | $0 | $300,000 | $300,000 |
| 2014 | $0 | $400,000 | $0 | $400,000 | $400,000 |
| 2013 | $0 | $394,740 | $0 | $394,740 | $394,740 |
| 2012 | $0 | $394,740 | $0 | $394,740 | $394,740 |
| 2011 | $0 | $394,740 | $0 | $394,740 | $394,740 |
| 2010 | $0 | $394,740 | $0 | $394,740 | $394,740 |
| 2009 | $0 | $472,782 | $0 | $472,782 | $472,782 |
| 2008 | $0 | $472,782 | $0 | $472,782 | $472,782 |
| 2007 | $0 | $434,559 | $0 | $434,559 | $434,559 |
Deed and Sales History
| 1 | 04/11/2022 | WD | Warranty Deed | YONKMAN, SCOTT | STOBART, JOHN B | | | $350,000.00 | 52683 | 4543196 |
| 2 | 12/28/2020 | QCD | Quit Claim Deed | YONKMAN CONSTRUCTION, INC. | YONKMAN, SCOTT | | | $0.00 | 46343 | 4506596 |
| 3 | 02/12/2018 | WD | Warranty Deed | RAYMOND, PAUL D | YONKMAN CONSTRUCTION, INC. | | | $299,000.00 | 33097 | 4439916 |
| 4 | 03/09/2015 | WD | Warranty Deed | FROMME, SCOTT W | RAYMOND, PAUL D | | | $299,000.00 | 18744 | 4374682 |
| 5 | 09/26/2008 | BLA | DNU - Boundary Line Adjustment | FROMME, SCOTT W | FROMME, SCOTT W | | | $0.00 | 80941 | 4157700 |
| 6 | 04/14/2006 | ESTSEPPROP | Establish Separate Property | FROMME, SCOTT W | FROMME, SCOTT W | | | $0.00 | 62068 | 4170100 |
| 7 | 09/15/2003 | WD | Warranty Deed | VILLARREAL, GILBERT | FROMME, SCOTT W | | | $332,000.00 | 34208 | 4075755 |
| 8 | 08/06/2001 | WD | Warranty Deed | HINDS, MICHAEL J | VILLARREAL, GILBERT | | | $245,000.00 | 13058 | 20040219 |
| 9 | 04/01/1990 | EXECUTORD | Executor Deed | CLAGUE, BETTY J | HINDS, MICHAEL J | | | $0.00 | 1811 | 90005770 |
| 10 | 02/01/1984 | OTHER | Other - Misc. Documents | HINDS, BETTY J | CLAGUE, BETTY J | | | $0.00 | 60402 | 0 |
| 11 | 01/01/1900 | OTHER | Other - Misc. Documents | Unknown | HINDS, BETTY J | | | $0.00 | 0 | 0 |
Payout Agreement
| No payout information available.. |