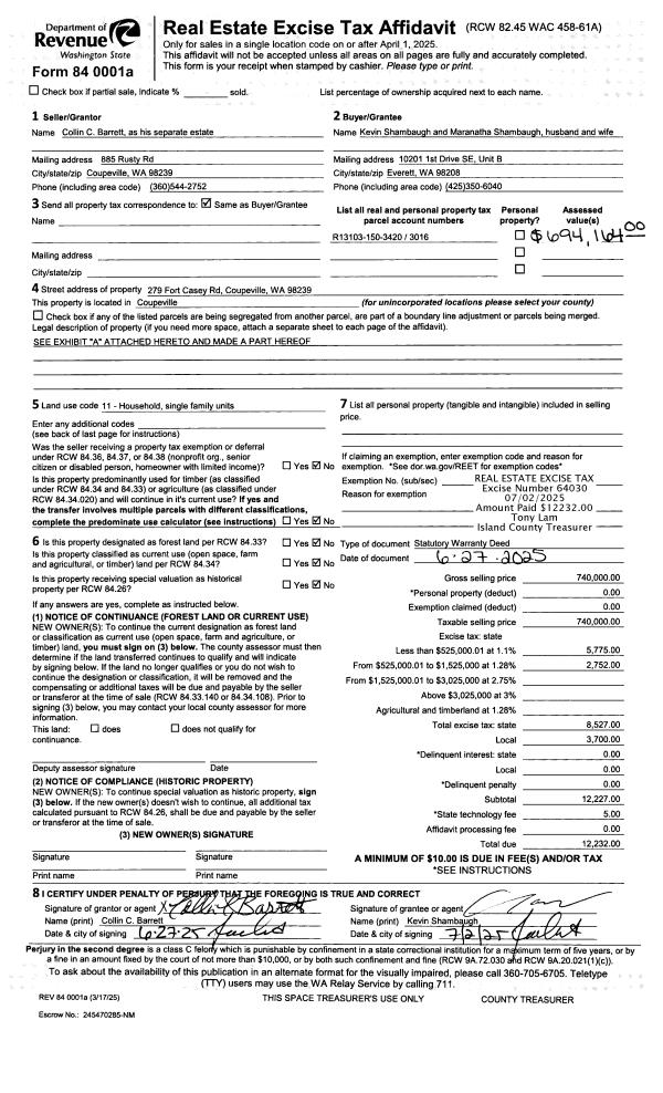
Property
Account |
| Property ID: | 111499 | Abbreviated Legal Description: | 18 - IN GL1: BG 973.4'E OF NWCR GL1 SLY ALG ELN CO RD 210' TPB SELY ALG RD 70' E265' TO EDGE OF BLUFF NLY ALG BLUFF TP E OF TPB W TPB |
| Geographic ID: | R23432-110-1200 | Agent Code: | |
| Type: | Real | | |
| Tax Area: | 110 - APPRAISER-OH Schl Dist, outside OH, improved & 1 acre or less | Land Use Code | 11 |
| Open Space: | N | DFL | N |
| Historic Property: | N | Remodel Property: | N |
| Multi-Family Redevelopment: | N | | |
| Township: | 34 | Section: | 32 |
| Range: | R2 |
Location |
| Address: | 4884 JONES RD OAK HARBOR, WA 98277 | Mapsco: | |
| Neighborhood: | Cycle 6 | Map ID: | 673 |
| Neighborhood CD: | 6 |
Owner |
| Name: | STOBART, JOHN B | Owner ID: | 303786 |
| Mailing Address: | 4884 JONES RD OAK HARBOR, WA 98277 | % Ownership: | 100.0000000000% |
| | | Exemptions: | |
Taxes and Assessment Details
Values
| (+) Improvement Homesite Value: | + | $0 | |
| (+) Improvement Non-Homesite Value: | + | $439,777 | |
| (+) Land Homesite Value: | + | $0 | |
| (+) Land Non-Homesite Value: | + | $465,000 | |
| (+) Curr Use (HS): | + | $0 | $0 |
| (+) Curr Use (NHS): | + | $0 | $0 |
| | | -------------------------- | |
| (=) Market Value: | = | $904,777 | |
| (–) Productivity Loss: | – | $0 | |
| | | -------------------------- | |
| (=) Subtotal: | = | $904,777 | |
| (+) Senior Appraised Value: | + | $0 | |
| (+) Non-Senior Appraised Value: | + | $904,777 | |
| | | -------------------------- | |
| (=) Total Appraised Value: | = | $904,777 | |
| (–) Senior Exemption Loss: | – | $0 | |
| (–) Exemption Loss: | – | $0 | |
| | | -------------------------- | |
| (=) Taxable Value: | = | $904,777 | |
Taxing Jurisdiction
| Owner: | STOBART, JOHN B | | |
| % Ownership: | 100.0000000000% | | |
| Total Value: | $904,777 | | |
| Tax Area: | 110 - APPRAISER-OH Schl Dist, outside OH, improved & 1 acre or less |
| CF | Conservation Futures | 0.0316035091 | $904,777 | $904,777 | $28.59 | | |
| CEM1 | Cemetery #1 | 0.0040320932 | $904,777 | $904,777 | $3.65 | | |
| FIRE2 | Fire & Rescue Dist #2 N Whidbey GEN | 0.5475949600 | $904,777 | $904,777 | $495.45 | | |
| HOBOND | Hospital BOND | 0.1910887512 | $904,777 | $904,777 | $172.89 | | |
| HOGEN | Hospital GEN | 0.3902502903 | $904,777 | $904,777 | $353.09 | | |
| CE | County Current Expense | 0.3708482477 | $904,777 | $904,777 | $335.53 | | |
| CR | County Roads | 0.4584763726 | $904,777 | $904,777 | $414.82 | | |
| ISLANDEMS | Hospital GEN (EMS) | 0.5000000000 | $904,777 | $904,777 | $452.39 | | |
| LIB | Library Sno-Isle GEN | 0.3153421757 | $904,777 | $904,777 | $285.31 | | |
| NWHIDPRMT | P & R N Whidbey GEN | 0.2004466701 | $904,777 | $904,777 | $181.36 | | |
| SCH201MO | School 201 Enrichment | 1.8559231640 | $904,777 | $904,777 | $1,679.20 | | |
| ST | State School | 1.3035497053 | $904,777 | $904,777 | $1,179.42 | | |
| ST2 | State School Part 2 | 0.8169543533 | $904,777 | $904,777 | $739.16 | | |
| | Total Tax Rate: | 6.9861102925 | | | | | |
| | | | | Taxes w/Current Exemptions: | $6,320.86 | | |
| | | | | Taxes w/o Exemptions: | $6,320.86 | | |
Improvement / Building
| Improvement #1: | RESIDENTIAL | State Code: | Y | 1539.1 sqft | Value: | $439,777 |
| Bathrooms: | 3 | Bedrooms: | 3 | | Ceiling: | DRYWALL PAINTED | Exterior Wall/Cover: | WOOD SIDING | | Floor Covering: | HARDWOOD 100% | Floor Structure: | WOOD W/SUBFLOOR | | Foundation: | CONCRETE | Heating: | RADIANT FLOOR | | Interior Finish: | DRYWALL PAINT | Plumbing Fixture Cnt: | 12 | | Roof Slope: | 12" IN 12" | Roof Structure/Cover: | BEAM ALUMINUM HEAVY |
|
| | Type | Description | Class CD | Sub Class CD | Year Built | Area |
| | BAS | BASE/MAIN FLOOR | 4 | 0 | 1990 | 1053.1 |
| | UB8 | BASEMENT UNFINISHED 8" | 4 | 0 | 1990 | 838.0 |
| | AGR | ATTACHED GARAGE | 4 | 0 | 1990 | 610.0 |
| | UPS | UPPER STORY | 4 | 0 | 1990 | 360.0 |
| | OWP | OPEN WOOD PORCH W/STEPS | 4 | 0 | 1990 | 20.4 |
| | OWP | OPEN WOOD PORCH W/STEPS | 4 | 0 | 1990 | 1005.0 |
| | OWC | OPEN WOOD PORCH W/STEPS/ROOF/C | 4 | 0 | 1990 | 44.8 |
| | LOF | LOFT | 4 | 0 | 1990 | 126.0 |
| | UTY | STORAGE/UTILITY | 4 | 0 | 1990 | 225.0 |
Sketch
Property Image
Land
| 1 | HB | HIGH BLUFF | 0.4300 | 18730.80 | 65.00 | 0.00 | 1.00 | $465,000 | $0 |
Roll Value History
| 2026 | N/A | N/A | N/A | N/A | N/A |
| 2025 | $439,777 | $465,000 | $0 | $904,777 | $904,777 |
| 2024 | $445,190 | $450,000 | $0 | $895,190 | $895,190 |
| 2023 | $450,603 | $425,000 | $0 | $875,603 | $875,603 |
| 2022 | $401,641 | $400,000 | $0 | $801,641 | $801,641 |
| 2021 | $298,955 | $230,000 | $0 | $528,955 | $528,955 |
| 2020 | $291,768 | $230,000 | $0 | $521,768 | $521,768 |
| 2019 | $214,990 | $300,000 | $0 | $514,990 | $514,990 |
| 2018 | $215,668 | $200,000 | $0 | $415,668 | $415,668 |
| 2017 | $208,580 | $150,000 | $0 | $358,580 | $358,580 |
| 2016 | $201,916 | $150,000 | $0 | $351,916 | $351,916 |
| 2015 | $204,683 | $115,905 | $0 | $320,588 | $320,588 |
| 2014 | $207,449 | $115,905 | $0 | $323,354 | $323,354 |
| 2013 | $210,214 | $115,905 | $0 | $326,119 | $326,119 |
| 2012 | $212,980 | $115,905 | $0 | $328,885 | $328,885 |
| 2011 | $215,745 | $115,905 | $0 | $331,650 | $331,650 |
| 2010 | $239,972 | $115,905 | $0 | $355,877 | $355,877 |
| 2009 | $250,764 | $138,393 | $0 | $389,157 | $389,157 |
| 2008 | $254,368 | $138,393 | $0 | $392,761 | $392,761 |
| 2007 | $257,950 | $127,711 | $0 | $385,661 | $385,661 |
Deed and Sales History
| 1 | 11/04/2024 | QCD | Quit Claim Deed | STOBART TTEE, JOHN B | STOBART, JOHN B | | | $0.00 | 61768 | 4579127 |
| 2 | 07/14/2021 | WD | Warranty Deed | CROUCH, PAUL A | STOBART TTEE, JOHN B | | | $1,750,000.00 | 49148 | 4524364 |
|   | |
| 3 | 11/01/1995 | QCD | Quit Claim Deed | CROUCH, PAUL A | CROUCH, PAUL A | | | $0.00 | 53890 | 95017805 |
| 4 | 06/01/1985 | WD | Warranty Deed | PREHEIM, | CROUCH, PAUL A | | | $25,000.00 | 51679 | 85006712 |
| 5 | 01/01/1900 | OTHER | Other - Misc. Documents | Unknown | PREHEIM, | | | $0.00 | 0 | 0 |
Payout Agreement
| No payout information available.. |