Property
Account |
| Property ID: | 111621 | Abbreviated Legal Description: | 35 - E165' OF W335' OF N208 .71' OF GL2 TGW & SUB EZ AF#87013491 |
| Geographic ID: | R23432-255-0250 | Agent Code: | |
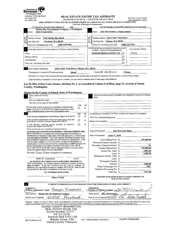
| Type: | Real | | |
| Tax Area: | 110 - APPRAISER-OH Schl Dist, outside OH, improved & 1 acre or less | Land Use Code | 11 |
| Open Space: | N | DFL | N |
| Historic Property: | N | Remodel Property: | N |
| Multi-Family Redevelopment: | N | | |
| Township: | 34 | Section: | 32 |
| Range: | R2 |
Location |
| Address: | 420 LITTLE ACRES DR OAK HARBOR, WA 98277 | Mapsco: | |
| Neighborhood: | Cycle 6 | Map ID: | 673 |
| Neighborhood CD: | 6 |
Owner |
| Name: | GELFAND TRUSTEE, TODD | Owner ID: | 280546 |
| Mailing Address: | 1880 CENTURY PARK EAST SUITE 1600 LOS ANGELES, CA 90067 | % Ownership: | 100.0000000000% |
| | | Exemptions: | |
Taxes and Assessment Details
Values
| (+) Improvement Homesite Value: | + | $0 | |
| (+) Improvement Non-Homesite Value: | + | $285,909 | |
| (+) Land Homesite Value: | + | $0 | |
| (+) Land Non-Homesite Value: | + | $200,000 | |
| (+) Curr Use (HS): | + | $0 | $0 |
| (+) Curr Use (NHS): | + | $0 | $0 |
| | | -------------------------- | |
| (=) Market Value: | = | $485,909 | |
| (–) Productivity Loss: | – | $0 | |
| | | -------------------------- | |
| (=) Subtotal: | = | $485,909 | |
| (+) Senior Appraised Value: | + | $0 | |
| (+) Non-Senior Appraised Value: | + | $485,909 | |
| | | -------------------------- | |
| (=) Total Appraised Value: | = | $485,909 | |
| (–) Senior Exemption Loss: | – | $0 | |
| (–) Exemption Loss: | – | $0 | |
| | | -------------------------- | |
| (=) Taxable Value: | = | $485,909 | |
Taxing Jurisdiction
| Owner: | GELFAND TRUSTEE, TODD | | |
| % Ownership: | 100.0000000000% | | |
| Total Value: | $485,909 | | |
| Tax Area: | 110 - APPRAISER-OH Schl Dist, outside OH, improved & 1 acre or less |
| CF | Conservation Futures | 0.0316035091 | $485,909 | $485,909 | $15.36 | | |
| CEM1 | Cemetery #1 | 0.0040320932 | $485,909 | $485,909 | $1.96 | | |
| FIRE2 | Fire & Rescue Dist #2 N Whidbey GEN | 0.5475949600 | $485,909 | $485,909 | $266.08 | | |
| HOBOND | Hospital BOND | 0.1910887512 | $485,909 | $485,909 | $92.85 | | |
| HOGEN | Hospital GEN | 0.3902502903 | $485,909 | $485,909 | $189.63 | | |
| CE | County Current Expense | 0.3708482477 | $485,909 | $485,909 | $180.20 | | |
| CR | County Roads | 0.4584763726 | $485,909 | $485,909 | $222.78 | | |
| ISLANDEMS | Hospital GEN (EMS) | 0.5000000000 | $485,909 | $485,909 | $242.95 | | |
| LIB | Library Sno-Isle GEN | 0.3153421757 | $485,909 | $485,909 | $153.23 | | |
| NWHIDPRMT | P & R N Whidbey GEN | 0.2004466701 | $485,909 | $485,909 | $97.40 | | |
| SCH201MO | School 201 Enrichment | 1.8559231640 | $485,909 | $485,909 | $901.81 | | |
| ST | State School | 1.3035497053 | $485,909 | $485,909 | $633.41 | | |
| ST2 | State School Part 2 | 0.8169543533 | $485,909 | $485,909 | $396.97 | | |
| | Total Tax Rate: | 6.9861102925 | | | | | |
| | | | | Taxes w/Current Exemptions: | $3,394.63 | | |
| | | | | Taxes w/o Exemptions: | $3,394.63 | | |
Improvement / Building
| Improvement #1: | RESIDENTIAL | State Code: | Y | 1884.0 sqft | Value: | $285,909 |
| Bathrooms: | 2 | Bedrooms: | 3 | | Ceiling: | DRYWALL PAINTED | Exterior Wall/Cover: | WOOD SIDING | | Floor Covering: | CARPET/VINYL 20-80 | Floor Structure: | WOOD W/SUBFLOOR | | Foundation: | CONCRETE | Heating: | FHA GAS | | Interior Finish: | DRYWALL PAINT | Plumbing Fixture Cnt: | 9 | | Roof Slope: | 6" IN 12" | Roof Structure/Cover: | CJ ASPHALT |
|
| | Type | Description | Class CD | Sub Class CD | Year Built | Area |
| | BAS | BASE/MAIN FLOOR | 3 | 0 | 1989 | 1188.0 |
| | BIG | BUILT IN GARAGE | 3 | 0 | 1989 | 552.0 |
| | UPS | UPPER STORY | 3 | 0 | 1989 | 696.0 |
| | BAW | BALCONY WOOD RAIL | 3 | 0 | 1989 | 96.0 |
| | OWP | OPEN WOOD PORCH W/STEPS | 3 | 0 | 1989 | 276.0 |
| | OWP | OPEN WOOD PORCH W/STEPS | 3 | 0 | 1989 | 192.0 |
Sketch
Property Image
Land
| 1 | 16 | AC (00.51-01.00) | 0.7900 | 34412.40 | 0.00 | 0.00 | 1.00 | $200,000 | $0 |
Roll Value History
| 2026 | N/A | N/A | N/A | N/A | N/A |
| 2025 | $285,909 | $200,000 | $0 | $485,909 | $485,909 |
| 2024 | $289,611 | $190,000 | $0 | $479,611 | $479,611 |
| 2023 | $293,313 | $190,000 | $0 | $483,313 | $483,313 |
| 2022 | $262,244 | $160,000 | $0 | $422,244 | $422,244 |
| 2021 | $230,938 | $125,000 | $0 | $355,938 | $355,938 |
| 2020 | $225,535 | $110,000 | $0 | $335,535 | $335,535 |
| 2019 | $170,448 | $150,000 | $0 | $320,448 | $320,448 |
| 2018 | $170,973 | $140,000 | $0 | $310,973 | $310,973 |
| 2017 | $163,138 | $90,000 | $0 | $253,138 | $253,138 |
| 2016 | $155,945 | $90,000 | $0 | $245,945 | $245,945 |
| 2015 | $158,054 | $90,000 | $0 | $248,054 | $248,054 |
| 2014 | $160,161 | $89,250 | $0 | $249,411 | $249,411 |
| 2013 | $162,267 | $89,250 | $0 | $251,517 | $251,517 |
| 2012 | $164,376 | $89,250 | $0 | $253,626 | $253,626 |
| 2011 | $166,483 | $105,000 | $0 | $271,483 | $271,483 |
| 2010 | $171,934 | $105,000 | $0 | $276,934 | $276,934 |
| 2009 | $179,378 | $130,000 | $0 | $309,378 | $309,378 |
| 2008 | $181,651 | $134,000 | $0 | $315,651 | $315,651 |
| 2007 | $183,924 | $134,000 | $0 | $317,924 | $317,924 |
Deed and Sales History
| 1 | 06/19/2017 | WD | Warranty Deed | YATES, JENNIFER A | GELFAND TRUSTEE, TODD | | | $367,000.00 | 29898 | 4424898 |
| 2 | 11/16/2009 | WD | Warranty Deed | DONALTY, ANDREA B | YATES, JENNIFER A | | | $290,000.00 | 92957 | 4264644 |
| 3 | 09/13/2002 | WD | Warranty Deed | NELSON, JEFFREY D | DONALTY, ANDREA B | | | $237,000.00 | 23772 | 4031900 |
| 4 | 11/01/1992 | WD | Warranty Deed | WRIGHT, PARKS L | NELSON, JEFFREY D | | | $157,000.00 | 24629 | 92022736 |
| 5 | 07/01/1988 | WD | Warranty Deed | HALL, ARTHUR A | WRIGHT, PARKS L | | | $22,000.00 | 82144 | 88007891 |
| 6 | 08/01/1987 | QCD | Quit Claim Deed | HALL, ARTHUR A | HALL, ARTHUR A | | | $0.00 | 73043 | 87013489 |
| 7 | 01/01/1900 | OTHER | Other - Misc. Documents | Unknown | HALL, ARTHUR A | | | $0.00 | 0 | 0 |
Payout Agreement
| No payout information available.. |