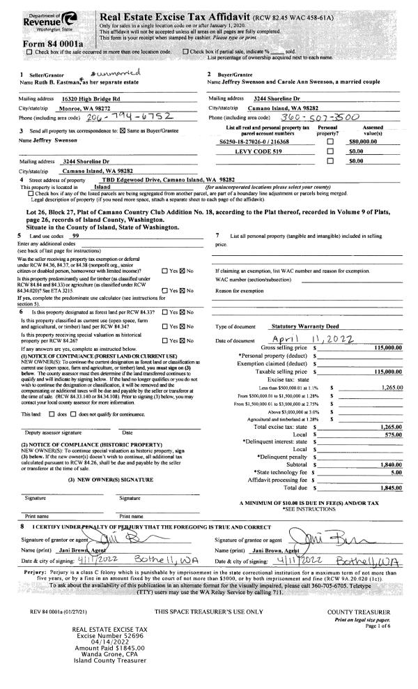
Property
Account |
| Property ID: | 112504 | Abbreviated Legal Description: | 51 - IN GL1: BG NWCR GL1 S423' E821' TPB S100' E300' M/L TO GL LN N12*E ALG ML TP E OF TPB W300' M/L TPB INCL ADJ TIDES |
| Geographic ID: | R32801-359-4930 | Agent Code: | |
| Type: | Real | | |
| Tax Area: | 729 - APPRAISER-S Whid Schl Dist, Special District, vacant & 50 acres or less | Land Use Code | 91 |
| Open Space: | N | DFL | N |
| Historic Property: | N | Remodel Property: | N |
| Multi-Family Redevelopment: | N | | |
| Township: | 28 | Section: | 01 |
| Range: | R3 |
Location |
| Address: | | Mapsco: | |
| Neighborhood: | Cycle 4 | Map ID: | 678 |
| Neighborhood CD: | 4 |
Owner |
| Name: | ISLAND COUNTY | Owner ID: | 199145 |
| Mailing Address: | PUBLIC WORKS - COUNTY ROADS 1 NE 7TH ST COUPEVILLE, WA 98239 | % Ownership: | 100.0000000000% |
| | | Exemptions: | |
Taxes and Assessment Details
Values
| (+) Improvement Homesite Value: | + | $0 | |
| (+) Improvement Non-Homesite Value: | + | $0 | |
| (+) Land Homesite Value: | + | $0 | |
| (+) Land Non-Homesite Value: | + | $1,450 | |
| (+) Curr Use (HS): | + | $0 | $0 |
| (+) Curr Use (NHS): | + | $0 | $0 |
| | | -------------------------- | |
| (=) Market Value: | = | $1,450 | |
| (–) Productivity Loss: | – | $0 | |
| | | -------------------------- | |
| (=) Subtotal: | = | $1,450 | |
| (+) Senior Appraised Value: | + | $0 | |
| (+) Non-Senior Appraised Value: | + | $1,450 | |
| | | -------------------------- | |
| (=) Total Appraised Value: | = | $1,450 | |
| (–) Senior Exemption Loss: | – | $0 | |
| (–) Exemption Loss: | – | $0 | |
| | | -------------------------- | |
| (=) Taxable Value: | = | $1,450 | |
Taxing Jurisdiction
| Owner: | ISLAND COUNTY | | |
| % Ownership: | 100.0000000000% | | |
| Total Value: | $1,450 | | |
| Tax Area: | 729 - APPRAISER-S Whid Schl Dist, Special District, vacant & 50 acres or less |
| CF | Conservation Futures | 0.0316035091 | $1,450 | $1,450 | $0.05 | | |
| HOBOND | Hospital BOND | 0.1910887512 | $1,450 | $1,450 | $0.28 | | |
| HOGEN | Hospital GEN | 0.3902502903 | $1,450 | $1,450 | $0.57 | | |
| CE | County Current Expense | 0.3708482477 | $1,450 | $1,450 | $0.54 | | |
| CR | County Roads | 0.4584763726 | $1,450 | $1,450 | $0.66 | | |
| ISLANDEMS | Hospital GEN (EMS) | 0.5000000000 | $1,450 | $1,450 | $0.73 | | |
| LIB | Library Sno-Isle GEN | 0.3153421757 | $1,450 | $1,450 | $0.46 | | |
| PORTWHID | Port of S Whidbey GEN | 0.1094540357 | $1,450 | $1,450 | $0.16 | | |
| SCH206BOND | School 206 BOND | 0.3161759235 | $1,450 | $1,450 | $0.46 | | |
| SCH206MO | School 206 Enrichment | 0.4547169547 | $1,450 | $1,450 | $0.66 | | |
| ST | State School | 1.3035497053 | $1,450 | $1,450 | $1.89 | | |
| ST2 | State School Part 2 | 0.8169543533 | $1,450 | $1,450 | $1.18 | | |
| SWHIDPRBD | P & R S Whidbey BOND | 0.0152817568 | $1,450 | $1,450 | $0.02 | | |
| SWHIDPRBD2 | P & R S Whidbey BOND2 | 0.0138911264 | $1,450 | $1,450 | $0.02 | | |
| SWHIDPRMT | P & R S Whidbey GEN | 0.2053334452 | $1,450 | $1,450 | $0.30 | | |
| | Total Tax Rate: | 5.4929666475 | | | | | |
| | | | | Taxes w/Current Exemptions: | $7.98 | | |
| | | | | Taxes w/o Exemptions: | $7.98 | | |
Improvement / Building
Sketch
| No sketches available for this property. |
Property Image
Land
| 1 | HB | HIGH BLUFF | 0.0000 | 0.00 | 100.00 | 0.00 | 1.00 | $450 | $0 |
| 2 | 55 | TIDES | 0.0000 | 0.00 | 100.00 | 0.00 | 1.00 | $1,000 | $0 |
Roll Value History
| 2026 | N/A | N/A | N/A | N/A | N/A |
| 2025 | $0 | $1,450 | $0 | $1,450 | $1,450 |
| 2024 | $0 | $1,450 | $0 | $1,450 | $1,450 |
| 2023 | $0 | $1,450 | $0 | $1,450 | $1,450 |
| 2022 | $0 | $1,450 | $0 | $1,450 | $1,450 |
| 2021 | $0 | $1,450 | $0 | $1,450 | $1,450 |
| 2020 | $0 | $1,450 | $0 | $1,450 | $1,450 |
| 2019 | $0 | $1,450 | $0 | $1,450 | $1,450 |
| 2018 | $0 | $1,450 | $0 | $1,450 | $1,450 |
| 2017 | $0 | $1,450 | $0 | $1,450 | $1,450 |
| 2016 | $0 | $1,450 | $0 | $1,450 | $1,450 |
| 2015 | $0 | $1,450 | $0 | $1,450 | $1,450 |
| 2014 | $0 | $1,450 | $0 | $1,450 | $1,450 |
| 2013 | $0 | $1,450 | $0 | $1,450 | $1,450 |
| 2012 | $0 | $64,068 | $0 | $64,068 | $64,068 |
| 2011 | $0 | $64,068 | $0 | $64,068 | $64,068 |
| 2010 | $0 | $64,068 | $0 | $64,068 | $64,068 |
| 2009 | $0 | $76,681 | $0 | $76,681 | $76,681 |
| 2008 | $0 | $76,681 | $0 | $76,681 | $76,681 |
| 2007 | $0 | $78,712 | $0 | $78,712 | $78,712 |
Deed and Sales History
| 1 | 07/23/2021 | WD | Warranty Deed | BROWN, DONALD E | ISLAND COUNTY PUBLIC WORKS | | | $0.00 | 51090 | 4534600 |
| 2 | 07/01/1990 | WD | Warranty Deed | ROWE, NANCY O | BROWN, DONALD E | | | $3,000.00 | 4530 | 90014950 |
| 3 | 01/01/1900 | OTHER | Other - Misc. Documents | Unknown | ROWE, NANCY O | | | $0.00 | 0 | 0 |
Payout Agreement
| No payout information available.. |