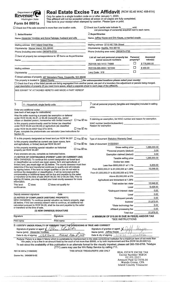
Property
Account |
| Property ID: | 112602 | Abbreviated Legal Description: | 20 - BG NECR SEC 1 W709.98' S7*W336.26' TPB S7*W168.13' S47*E528.05' TO CLN RD ALG CLN N26*E124.40' ALG CUR/L 179.83' N75*W35' N62*W510 .79' TPB EX RD TGW EZ |
| Geographic ID: | R32801-482-4710 | Agent Code: | |
| Type: | Real | | |
| Tax Area: | 712 - APPRAISER-S Whid Schl Dist, outside Langley, improved, greater than 1 acre | Land Use Code | 11 |
| Open Space: | N | DFL | N |
| Historic Property: | N | Remodel Property: | N |
| Multi-Family Redevelopment: | N | | |
| Township: | 28 | Section: | 01 |
| Range: | R3 |
Location |
| Address: | 7246 HUMPHREY RD CLINTON, WA 98236 | Mapsco: | |
| Neighborhood: | Cycle 4 | Map ID: | 678 |
| Neighborhood CD: | 4 |
Owner |
| Name: | FEE, DENNIS W | Owner ID: | 277212 |
| Mailing Address: | ELIZABETH J FEE 7246 HUMPHREY RD CLINTON, WA 98236 | % Ownership: | 100.0000000000% |
| | | Exemptions: | |
Taxes and Assessment Details
Values
| (+) Improvement Homesite Value: | + | $0 | |
| (+) Improvement Non-Homesite Value: | + | $486,545 | |
| (+) Land Homesite Value: | + | $0 | |
| (+) Land Non-Homesite Value: | + | $380,000 | |
| (+) Curr Use (HS): | + | $0 | $0 |
| (+) Curr Use (NHS): | + | $0 | $0 |
| | | -------------------------- | |
| (=) Market Value: | = | $866,545 | |
| (–) Productivity Loss: | – | $0 | |
| | | -------------------------- | |
| (=) Subtotal: | = | $866,545 | |
| (+) Senior Appraised Value: | + | $0 | |
| (+) Non-Senior Appraised Value: | + | $866,545 | |
| | | -------------------------- | |
| (=) Total Appraised Value: | = | $866,545 | |
| (–) Senior Exemption Loss: | – | $0 | |
| (–) Exemption Loss: | – | $0 | |
| | | -------------------------- | |
| (=) Taxable Value: | = | $866,545 | |
Taxing Jurisdiction
| Owner: | FEE, DENNIS W | | |
| % Ownership: | 100.0000000000% | | |
| Total Value: | $866,545 | | |
| Tax Area: | 712 - APPRAISER-S Whid Schl Dist, outside Langley, improved, greater than 1 acre |
| CF | Conservation Futures | 0.0316035091 | $866,545 | $866,545 | $27.39 | | |
| FIRE3 | Fire & Rescue Dist #3 S Whidbey GEN | 1.2004855531 | $866,545 | $866,545 | $1,040.27 | | |
| HOBOND | Hospital BOND | 0.1910887512 | $866,545 | $866,545 | $165.59 | | |
| HOGEN | Hospital GEN | 0.3902502903 | $866,545 | $866,545 | $338.17 | | |
| CE | County Current Expense | 0.3708482477 | $866,545 | $866,545 | $321.36 | | |
| CR | County Roads | 0.4584763726 | $866,545 | $866,545 | $397.29 | | |
| ISLANDEMS | Hospital GEN (EMS) | 0.5000000000 | $866,545 | $866,545 | $433.27 | | |
| LIB | Library Sno-Isle GEN | 0.3153421757 | $866,545 | $866,545 | $273.26 | | |
| PORTWHID | Port of S Whidbey GEN | 0.1094540357 | $866,545 | $866,545 | $94.85 | | |
| SCH206BOND | School 206 BOND | 0.3161759235 | $866,545 | $866,545 | $273.98 | | |
| SCH206MO | School 206 Enrichment | 0.4547169547 | $866,545 | $866,545 | $394.03 | | |
| ST | State School | 1.3035497053 | $866,545 | $866,545 | $1,129.58 | | |
| ST2 | State School Part 2 | 0.8169543533 | $866,545 | $866,545 | $707.93 | | |
| SWHIDPRBD | P & R S Whidbey BOND | 0.0152817568 | $866,545 | $866,545 | $13.24 | | |
| SWHIDPRBD2 | P & R S Whidbey BOND2 | 0.0138911264 | $866,545 | $866,545 | $12.04 | | |
| SWHIDPRMT | P & R S Whidbey GEN | 0.2053334452 | $866,545 | $866,545 | $177.93 | | |
| | Total Tax Rate: | 6.6934522006 | | | | | |
| | | | | Taxes w/Current Exemptions: | $5,800.18 | | |
| | | | | Taxes w/o Exemptions: | $5,800.18 | | |
Improvement / Building
| Improvement #1: | RESIDENTIAL | State Code: | Y | 2943.7 sqft | Value: | $486,545 |
| Bathrooms: | 3 | Bedrooms: | 3 | | Ceiling: | DRYWALL PAINTED | Cooling: | HEAT PUMP/CONV/V | | Exterior Wall/Cover: | CEMENT FIBER | Floor Covering: | CARPET/VINYL 80-20 | | Floor Structure: | WOOD W/SUBFLOOR | Foundation: | CONCRETE | | Interior Finish: | DRYWALL PAINT | Plumbing Fixture Cnt: | 14 | | Roof Slope: | 4" IN 12" | Roof Structure/Cover: | BEAM ASPHALT |
|
| | Type | Description | Class CD | Sub Class CD | Year Built | Area |
| | BAS | BASE/MAIN FLOOR | 4 | 0 | 1978 | 975.8 |
| | DWN | DOWNSTAIRS LIVING AREA | 4 | 0 | 1978 | 960.0 |
| | UPS | UPPER STORY | 4 | 0 | 1978 | 1007.9 |
| | OWP | OPEN WOOD PORCH W/STEPS | 4 | 0 | 1978 | 429.8 |
| | OWP | OPEN WOOD PORCH W/STEPS | 4 | 0 | 1978 | 273.0 |
| | OWC | OPEN WOOD PORCH W/STEPS/ROOF/C | 4 | 0 | 1978 | 238.8 |
| | OWC | OPEN WOOD PORCH W/STEPS/ROOF/C | 4 | 0 | 1978 | 232.8 |
| | DGR | DETACHED GARAGE | 4 | 0 | 1978 | 479.8 |
| | OWP | OPEN WOOD PORCH W/STEPS | 4 | 0 | 1978 | 199.4 |
Sketch
Property Image
Land
| 1 | 18 | AC (02.01-03.00) | 0.0000 | 0.00 | 0.00 | 0.00 | 1.00 | $380,000 | $0 |
Roll Value History
| 2026 | N/A | N/A | N/A | N/A | N/A |
| 2025 | $486,545 | $380,000 | $0 | $866,545 | $866,545 |
| 2024 | $492,533 | $360,000 | $0 | $852,533 | $852,533 |
| 2023 | $498,522 | $330,000 | $0 | $828,522 | $828,522 |
| 2022 | $456,831 | $280,000 | $0 | $736,831 | $736,831 |
| 2021 | $401,954 | $260,000 | $0 | $661,954 | $661,954 |
| 2020 | $412,637 | $230,000 | $0 | $642,637 | $642,637 |
| 2019 | $324,087 | $260,000 | $0 | $584,087 | $584,087 |
| 2018 | $325,061 | $230,000 | $0 | $555,061 | $555,061 |
| 2017 | $327,006 | $150,000 | $0 | $477,006 | $477,006 |
| 2016 | $361,420 | $150,000 | $0 | $511,420 | $511,420 |
| 2015 | $365,673 | $150,000 | $0 | $515,673 | $515,673 |
| 2014 | $313,541 | $150,000 | $0 | $463,541 | $463,541 |
| 2013 | $317,458 | $150,000 | $0 | $467,458 | $467,458 |
| 2012 | $321,375 | $127,500 | $0 | $448,875 | $448,875 |
| 2011 | $325,293 | $150,000 | $0 | $475,293 | $475,293 |
| 2010 | $339,284 | $150,000 | $0 | $489,284 | $489,284 |
| 2009 | $353,466 | $200,000 | $0 | $553,466 | $553,466 |
| 2008 | $245,191 | $300,000 | $0 | $545,191 | $545,191 |
| 2007 | $248,641 | $300,000 | $0 | $548,641 | $548,641 |
Deed and Sales History
| 1 | 10/12/2016 | WD | Warranty Deed | HIGBEE TRUSTEE, ROBERT W | FEE, DENNIS W | | | $617,500.00 | 26578 | 4409520 |
| 2 | 10/22/2012 | QCD | Quit Claim Deed | HIGBEE, ROBERT / JO ANN | HIGBEE TRUSTEE, ROBERT W | | | $0.00 | 17903 | 4370234 |
| 3 | 07/26/1999 | QCD | Quit Claim Deed | HIGBEE, ROBERT W | HIGBEE, ROBERT/JO ANN | | | $0.00 | 94030 | 99022367 |
| 4 | 06/01/1990 | QCD | Quit Claim Deed | HIGBEE, ROBERT W | HIGBEE, ROBERT W | | | $0.00 | 3800 | 90012362 |
| 5 | 12/01/1986 | EZ | Easement | CAMPBELL, FRANCIS G | HIGBEE, ROBERT W | | | $0.00 | 70024 | 87000256 |
Payout Agreement
| No payout information available.. |