Property
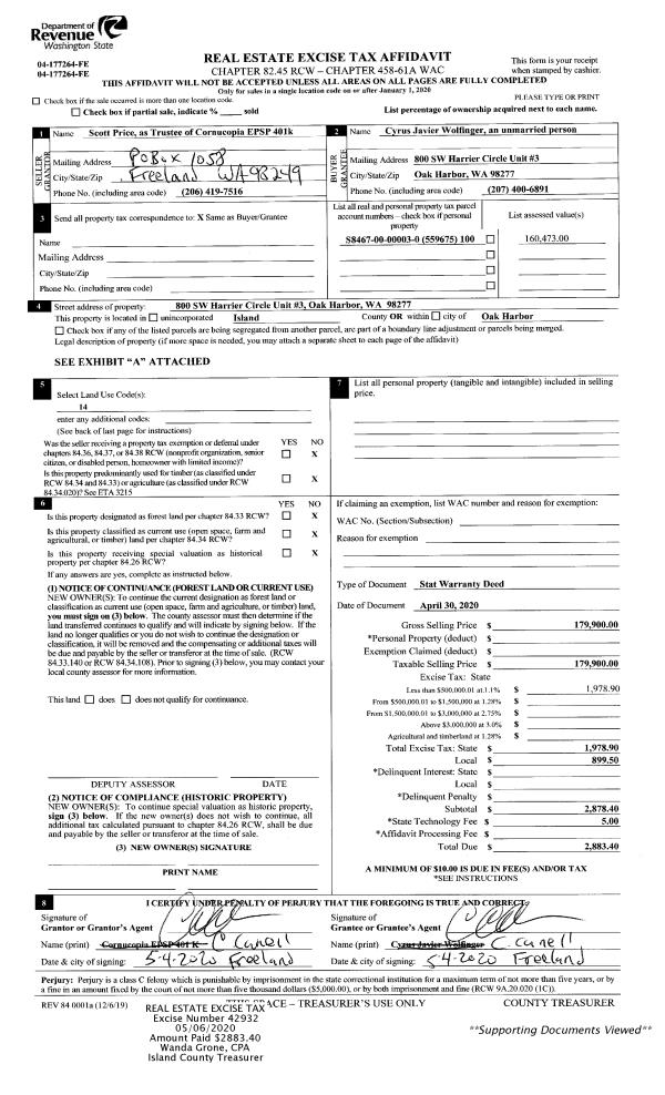
Account |
| Property ID: | 112657 | Abbreviated Legal Description: | 2.8500 Acres ins Section 01s Township 28s Range R3s LOT B BLC AF# 4474805;s |
| Geographic ID: | R32801-515-5200 | Agent Code: | |
| Type: | Real | | |
| Tax Area: | 722 - APPRAISER-S Whid Schl Dist, Special District, improved, greater than 1 acre | Land Use Code | 11 |
| Open Space: | N | DFL | N |
| Historic Property: | N | Remodel Property: | N |
| Multi-Family Redevelopment: | N | | |
| Township: | 28 | Section: | 01 |
| Range: | R3 |
Location |
| Address: | 7225 HUMPHREY RD CLINTON, WA 98236 | Mapsco: | |
| Neighborhood: | Cycle 4 | Map ID: | 678 |
| Neighborhood CD: | 4 |
Owner |
| Name: | SWAN TTEE, JAMES S | Owner ID: | 306978 |
| Mailing Address: | CHRISTINA M. SWAN TTEE 7225 HUMPHREY RD CLINTON, WA 98236 | % Ownership: | 100.0000000000% |
| | | Exemptions: | |
Taxes and Assessment Details
Values
| (+) Improvement Homesite Value: | + | $0 | |
| (+) Improvement Non-Homesite Value: | + | $530,880 | |
| (+) Land Homesite Value: | + | $0 | |
| (+) Land Non-Homesite Value: | + | $700,000 | |
| (+) Curr Use (HS): | + | $0 | $0 |
| (+) Curr Use (NHS): | + | $0 | $0 |
| | | -------------------------- | |
| (=) Market Value: | = | $1,230,880 | |
| (–) Productivity Loss: | – | $0 | |
| | | -------------------------- | |
| (=) Subtotal: | = | $1,230,880 | |
| (+) Senior Appraised Value: | + | $0 | |
| (+) Non-Senior Appraised Value: | + | $1,230,880 | |
| | | -------------------------- | |
| (=) Total Appraised Value: | = | $1,230,880 | |
| (–) Senior Exemption Loss: | – | $0 | |
| (–) Exemption Loss: | – | $0 | |
| | | -------------------------- | |
| (=) Taxable Value: | = | $1,230,880 | |
Taxing Jurisdiction
| Owner: | SWAN TTEE, JAMES S | | |
| % Ownership: | 100.0000000000% | | |
| Total Value: | $1,230,880 | | |
| Tax Area: | 722 - APPRAISER-S Whid Schl Dist, Special District, improved, greater than 1 acre |
| CF | Conservation Futures | 0.0316035091 | $1,230,880 | $1,230,880 | $38.90 | | |
| FIRE3 | Fire & Rescue Dist #3 S Whidbey GEN | 1.2004855531 | $1,230,880 | $1,230,880 | $1,477.65 | | |
| HOBOND | Hospital BOND | 0.1910887512 | $1,230,880 | $1,230,880 | $235.21 | | |
| HOGEN | Hospital GEN | 0.3902502903 | $1,230,880 | $1,230,880 | $480.35 | | |
| CE | County Current Expense | 0.3708482477 | $1,230,880 | $1,230,880 | $456.47 | | |
| CR | County Roads | 0.4584763726 | $1,230,880 | $1,230,880 | $564.33 | | |
| ISLANDEMS | Hospital GEN (EMS) | 0.5000000000 | $1,230,880 | $1,230,880 | $615.44 | | |
| LIB | Library Sno-Isle GEN | 0.3153421757 | $1,230,880 | $1,230,880 | $388.15 | | |
| PORTWHID | Port of S Whidbey GEN | 0.1094540357 | $1,230,880 | $1,230,880 | $134.72 | | |
| SCH206BOND | School 206 BOND | 0.3161759235 | $1,230,880 | $1,230,880 | $389.17 | | |
| SCH206MO | School 206 Enrichment | 0.4547169547 | $1,230,880 | $1,230,880 | $559.70 | | |
| ST | State School | 1.3035497053 | $1,230,880 | $1,230,880 | $1,604.51 | | |
| ST2 | State School Part 2 | 0.8169543533 | $1,230,880 | $1,230,880 | $1,005.57 | | |
| SWHIDPRBD | P & R S Whidbey BOND | 0.0152817568 | $1,230,880 | $1,230,880 | $18.81 | | |
| SWHIDPRBD2 | P & R S Whidbey BOND2 | 0.0138911264 | $1,230,880 | $1,230,880 | $17.10 | | |
| SWHIDPRMT | P & R S Whidbey GEN | 0.2053334452 | $1,230,880 | $1,230,880 | $252.74 | | |
| | Total Tax Rate: | 6.6934522006 | | | | | |
| | | | | Taxes w/Current Exemptions: | $8,238.82 | | |
| | | | | Taxes w/o Exemptions: | $8,238.82 | | |
Improvement / Building
| Improvement #1: | RESIDENTIAL | State Code: | Y | 3369.9 sqft | Value: | $530,880 |
| Bathrooms: | 2.5 | Bedrooms: | 2 | | Ceiling: | DRYWALL PAINTED | Cooling: | HEAT PUMP/CONV/V | | Exterior Wall/Cover: | CEMENT FIBER | Floor Covering: | COLORED CONCRETE | | Floor Structure: | WOOD W/SUBFLOOR | Foundation: | CONCRETE | | Interior Finish: | DRYWALL PAINT | Plumbing Fixture Cnt: | 14 | | Roof Slope: | 10" IN 12" | Roof Structure/Cover: | CJ ASPHALT |
|
| | Type | Description | Class CD | Sub Class CD | Year Built | Area |
| | BAS | BASE/MAIN FLOOR | 4 | 0 | 2004 | 2256.4 |
| | DWN | DOWNSTAIRS LIVING AREA | 4 | 0 | 2004 | 1113.5 |
| | OP4 | OPEN PORCH W/CEILING-ROOF | 4 | 0 | 2004 | 236.0 |
| | AGR | ATTACHED GARAGE | 4 | 0 | 2004 | 537.2 |
| | OWP | OPEN WOOD PORCH W/STEPS | 4 | 0 | 2004 | 129.8 |
| | OWP | OPEN WOOD PORCH W/STEPS | 4 | 0 | 2004 | 197.5 |
| | OWR | OPEN WOOD PORCH W/STEPS/ROOF | 4 | 0 | 2004 | 251.9 |
Sketch
Property Image
Land
| 1 | HB | HIGH BLUFF | 2.8500 | 124146.00 | 128.00 | 0.00 | 1.00 | $700,000 | $0 |
Roll Value History
| 2026 | N/A | N/A | N/A | N/A | N/A |
| 2025 | $530,880 | $700,000 | $0 | $1,230,880 | $1,230,880 |
| 2024 | $537,182 | $700,000 | $0 | $1,237,182 | $1,237,182 |
| 2023 | $543,484 | $700,000 | $0 | $1,243,484 | $1,243,484 |
| 2022 | $493,793 | $675,000 | $0 | $1,168,793 | $1,168,793 |
| 2021 | $434,350 | $250,000 | $0 | $684,350 | $684,350 |
| 2020 | $399,151 | $250,000 | $0 | $649,151 | $649,151 |
| 2019 | $293,878 | $300,000 | $0 | $593,878 | $593,878 |
| 2018 | $294,729 | $250,000 | $0 | $544,729 | $544,729 |
| 2017 | $296,345 | $250,000 | $0 | $546,345 | $546,345 |
| 2016 | $299,751 | $250,000 | $0 | $549,751 | $549,751 |
| 2015 | $303,158 | $250,000 | $0 | $553,158 | $553,158 |
| 2014 | $297,547 | $250,000 | $0 | $547,547 | $547,547 |
| 2013 | $300,891 | $261,992 | $0 | $562,883 | $562,883 |
| 2012 | $302,057 | $204,682 | $0 | $506,739 | $506,739 |
| 2011 | $305,377 | $204,682 | $0 | $510,059 | $510,059 |
| 2010 | $309,986 | $204,682 | $0 | $514,668 | $514,668 |
| 2009 | $326,262 | $326,119 | $0 | $652,381 | $652,381 |
| 2008 | $326,669 | $371,682 | $0 | $698,351 | $698,351 |
| 2007 | $266,773 | $435,260 | $0 | $702,033 | $702,033 |
Deed and Sales History
| 1 | 12/15/2022 | QCD | Quit Claim Deed | SWAN, JAMES S | SWAN TTEE, JAMES S | | | $0.00 | 55401 | 4554872 |
| 2 | 10/03/2019 | QCD | Quit Claim Deed | KNUDSON, WILLIAM | SWAN, JAMES S | | | $0.00 | 40957 | 4474807 |
| 3 | 11/12/2012 | WD | Warranty Deed | JOBLING TRUSTEE, CANDY | SWAN, JAMES S | | | $555,000.00 | 9423 | 4327113 |
| 4 | 06/09/2003 | 5 | DNU - Marriage License/Name Change | JOBLING, CANDY | JOBLING TRUSTEE, CANDY | | | $0.00 | 33269 | 4068739 |
| 5 | 03/20/2001 | QCD | Quit Claim Deed | JOBLING, CANDY | JOBLING, CANDY | | | $0.00 | 11579 | 20031516 |
| 6 | 12/20/2000 | WD | Warranty Deed | GIROUX, EDWARD & | JOBLING, CANDY | | | $190,000.00 | 4809 | 20022295 |
| 7 | 12/01/1995 | QCD | Quit Claim Deed | GIROUX, EDWARD & | GIROUX, EDWARD & | | | $0.00 | 54454 | 95020553 |
| 8 | 12/01/1995 | QCD | Quit Claim Deed | GIROUX, EDWARD/GAIL & | GIROUX, EDWARD & | | | $0.00 | 54455 | 95020554 |
| 9 | 02/01/1995 | OTHER | Other - Misc. Documents | GIROUX, EDWARD/GAIL & | GIROUX, EDWARD/GAIL & | | | $0.00 | 66227 | 94026376 |
| 10 | 09/01/1993 | WD | Warranty Deed | ROSSO, R J | GIROUX, EDWARD/GAIL & | | | $77,000.00 | 33678 | 93019125 |
| 11 | 05/01/1987 | WD | Warranty Deed | GIROUX, GEORGE | ROSSO, R J | | | $15,000.00 | 71445 | 87006955 |
| 12 | 11/01/1986 | QCD | Quit Claim Deed | GIROUX, GEORGE | GIROUX, GEORGE | | | $0.00 | 70152 | 87001000 |
| 13 | 03/01/1984 | CD | DNU - Correction Deed | GIROUX, GEORGE | GIROUX, GEORGE | | | $0.00 | 60518 | 421618 |
| 14 | 11/01/1983 | WD | Warranty Deed | BEALS, LORING | GIROUX, GEORGE | | | $10,000.00 | 33392 | 417674 |
| 15 | 01/01/1900 | OTHER | Other - Misc. Documents | Unknown | BEALS, LORING | | | $0.00 | 0 | 0 |
Payout Agreement
| No payout information available.. |