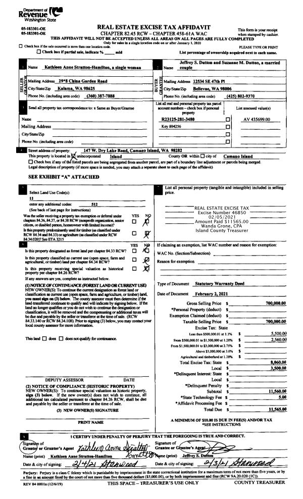
Property
Account |
| Property ID: | 112675 | Abbreviated Legal Description: | 5 - IN NE: BG NE CR SEC 1 W709.98' TPB S07*W168.13' S75*E476.48' S82*E50' N07* E293.75' W530.56' TPB EX RD |
| Geographic ID: | R32801-528-4790 | Agent Code: | |
| Type: | Real | | |
| Tax Area: | 712 - APPRAISER-S Whid Schl Dist, outside Langley, improved, greater than 1 acre | Land Use Code | 11 |
| Open Space: | N | DFL | N |
| Historic Property: | N | Remodel Property: | N |
| Multi-Family Redevelopment: | N | | |
| Township: | 28 | Section: | 01 |
| Range: | R3 |
Location |
| Address: | 7210 HUMPHREY RD CLINTON, WA 98236 | Mapsco: | |
| Neighborhood: | Cycle 4 | Map ID: | 678 |
| Neighborhood CD: | 4 |
Owner |
| Name: | CURTIS, DONALD | Owner ID: | 15521 |
| Mailing Address: | 7210 HUMPHREY RD CLINTON, WA 98236-9615 | % Ownership: | 100.0000000000% |
| | | Exemptions: | SNR/DSBL |
Taxes and Assessment Details
Values
| (+) Improvement Homesite Value: | + | $330,915 | |
| (+) Improvement Non-Homesite Value: | + | $0 | |
| (+) Land Homesite Value: | + | $380,000 | |
| (+) Land Non-Homesite Value: | + | $0 | |
| (+) Curr Use (HS): | + | $0 | $0 |
| (+) Curr Use (NHS): | + | $0 | $0 |
| | | -------------------------- | |
| (=) Market Value: | = | $710,915 | |
| (–) Productivity Loss: | – | $0 | |
| | | -------------------------- | |
| (=) Subtotal: | = | $710,915 | |
| (+) Senior Appraised Value: | + | $221,870 | |
| (+) Non-Senior Appraised Value: | + | $0 | |
| | | -------------------------- | |
| (=) Total Appraised Value: | = | $221,870 | |
| (–) Senior Exemption Loss: | – | $133,122 | |
| (–) Exemption Loss: | – | $0 | |
| | | -------------------------- | |
| (=) Taxable Value: | = | $88,748 | |
Taxing Jurisdiction
| Owner: | CURTIS, DONALD | | |
| % Ownership: | 100.0000000000% | | |
| Total Value: | $710,915 | | |
| Tax Area: | 712 - APPRAISER-S Whid Schl Dist, outside Langley, improved, greater than 1 acre |
| CF | Conservation Futures | 0.0316035091 | $710,915 | $88,748 | $2.80 | | |
| FIRE3 | Fire & Rescue Dist #3 S Whidbey GEN | 1.2004855531 | $710,915 | $88,748 | $106.54 | | |
| HOBOND | Hospital BOND | 0.0000000000 | $710,915 | $0 | $0.00 | | |
| HOGEN | Hospital GEN | 0.3902502903 | $710,915 | $88,748 | $34.63 | | |
| CE | County Current Expense | 0.3708482477 | $710,915 | $88,748 | $32.91 | | |
| CR | County Roads | 0.4584763726 | $710,915 | $88,748 | $40.69 | | |
| ISLANDEMS | Hospital GEN (EMS) | 0.5000000000 | $710,915 | $88,748 | $44.37 | | |
| LIB | Library Sno-Isle GEN | 0.3153421757 | $710,915 | $88,748 | $27.99 | | |
| PORTWHID | Port of S Whidbey GEN | 0.1094540357 | $710,915 | $88,748 | $9.71 | | |
| SCH206BOND | School 206 BOND | 0.3161759235 | $710,915 | $88,748 | $28.06 | | |
| SCH206MO | School 206 Enrichment | 0.0000000000 | $710,915 | $0 | $0.00 | | |
| ST | State School | 1.3035497053 | $710,915 | $88,748 | $115.69 | | |
| ST2 | State School Part 2 | 0.0000000000 | $710,915 | $0 | $0.00 | | |
| SWHIDPRBD | P & R S Whidbey BOND | 0.0000000000 | $710,915 | $0 | $0.00 | | |
| SWHIDPRBD2 | P & R S Whidbey BOND2 | 0.0000000000 | $710,915 | $0 | $0.00 | | |
| SWHIDPRMT | P & R S Whidbey GEN | 0.2053334452 | $710,915 | $88,748 | $18.22 | | |
| | Total Tax Rate: | 5.2015192582 | | | | | |
| | | | | Taxes w/Current Exemptions: | $461.61 | | |
| | | | | Taxes w/o Exemptions: | $4,758.47 | | |
Improvement / Building
| Improvement #1: | RESIDENTIAL | State Code: | Y | 2318.0 sqft | Value: | $330,915 |
| Bathrooms: | 2 | Bedrooms: | 3 | | Ceiling: | DRYWALL PAINTED | Exterior Wall/Cover: | WOOD SIDING | | Floor Covering: | HARDWOOD/CARP 20-80 | Floor Structure: | WOOD W/SUBFLOOR | | Foundation: | CONCRETE | Heating: | GAS HEATERS | | Interior Finish: | DRYWALL PAINT | Plumbing Fixture Cnt: | 10 | | Roof Slope: | 8" IN 12" | Roof Structure/Cover: | CJ ASPHALT |
|
| | Type | Description | Class CD | Sub Class CD | Year Built | Area |
| | BAS | BASE/MAIN FLOOR | 3 | 0 | 1984 | 1294.0 |
| | UPS | UPPER STORY | 3 | 0 | 1984 | 1024.0 |
| | ATF | ATTIC FINISHED | 3 | 0 | 1984 | 576.0 |
| | OWR | OPEN WOOD PORCH W/STEPS/ROOF | 3 | 0 | 1984 | 160.0 |
| | OWR | OPEN WOOD PORCH W/STEPS/ROOF | 3 | 0 | 1984 | 112.0 |
| | DGR | DETACHED GARAGE | 3 | 0 | 1984 | 672.0 |
| | OWP | OPEN WOOD PORCH W/STEPS | 3 | 0 | 1984 | 220.0 |
Sketch
Property Image
Land
| 1 | 18 | AC (02.01-03.00) | 0.0000 | 0.00 | 0.00 | 0.00 | 1.00 | $380,000 | $0 |
Roll Value History
| 2026 | N/A | N/A | N/A | N/A | N/A |
| 2025 | $330,915 | $380,000 | $0 | $710,915 | $88,748 |
| 2024 | $335,432 | $360,000 | $0 | $695,432 | $88,748 |
| 2023 | $339,949 | $330,000 | $0 | $669,949 | $88,748 |
| 2022 | $311,913 | $280,000 | $0 | $591,913 | $151,870 |
| 2021 | $274,786 | $260,000 | $0 | $534,786 | $151,870 |
| 2020 | $263,592 | $230,000 | $0 | $493,592 | $151,870 |
| 2019 | $204,405 | $260,000 | $0 | $464,405 | $464,405 |
| 2018 | $205,050 | $230,000 | $0 | $435,050 | $107,982 |
| 2017 | $206,339 | $200,000 | $0 | $406,339 | $108,103 |
| 2016 | $208,919 | $150,000 | $0 | $358,919 | $108,345 |
| 2015 | $211,498 | $150,000 | $0 | $361,498 | $108,587 |
| 2014 | $182,749 | $100,000 | $0 | $282,749 | $105,890 |
| 2013 | $184,976 | $100,000 | $0 | $284,976 | $106,099 |
| 2012 | $187,203 | $69,700 | $0 | $256,903 | $106,308 |
| 2011 | $189,430 | $82,000 | $0 | $271,430 | $88,748 |
| 2010 | $197,430 | $82,000 | $0 | $279,430 | $88,748 |
| 2009 | $205,609 | $155,000 | $0 | $360,609 | $88,748 |
| 2008 | $204,253 | $200,000 | $0 | $404,253 | $88,748 |
| 2007 | $206,854 | $200,000 | $0 | $406,854 | $88,748 |
Deed and Sales History
| 1 | 05/01/1984 | REC | Real Estate Contract | STAMMEN, MICHAEL H | CURTIS, DONALD | | | $12,500.00 | 41491 | 425124 |
| 2 | 01/01/1900 | OTHER | Other - Misc. Documents | Unknown | STAMMEN, MICHAEL H | | | $0.00 | 0 | 0 |
Payout Agreement
| No payout information available.. |