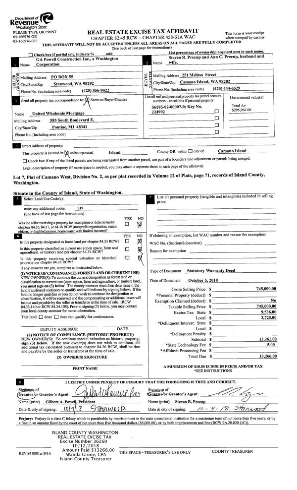
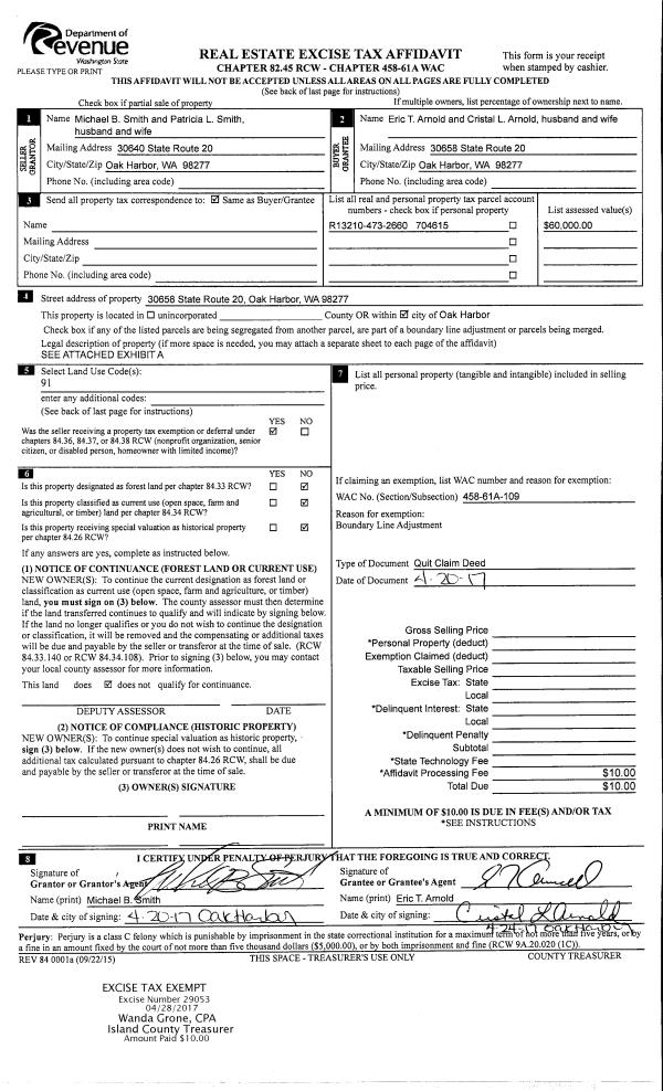
Property
Account |
| Property ID: | 112737 | Abbreviated Legal Description: | W15AC SE SW EX PT DESC: BG NECR W15AC S0*W ALG ELN OF W15AC 226.79' S87*W 40.04' N0*E 175.99' N37*E 66' TPB EX CO RD TGW EZ AF#91000644 |
| Geographic ID: | R32802-067-1580 | Agent Code: | |
| Type: | Real | | |
| Tax Area: | 712 - APPRAISER-S Whid Schl Dist, outside Langley, improved, greater than 1 acre | Land Use Code | 11 |
| Open Space: | N | DFL | N |
| Historic Property: | N | Remodel Property: | N |
| Multi-Family Redevelopment: | N | | |
| Township: | 28 | Section: | 02 |
| Range: | R3 |
Location |
| Address: | 7502 JEWETT RD CLINTON, WA 98236 | Mapsco: | |
| Neighborhood: | Cycle 4 | Map ID: | 679 |
| Neighborhood CD: | 4 |
Owner |
| Name: | DUNCAN, JESSE S | Owner ID: | 292228 |
| Mailing Address: | SARAH K DUNCAN 7502 JEWETT RD CLINTON, WA 98236 | % Ownership: | 100.0000000000% |
| | | Exemptions: | |
Taxes and Assessment Details
Values
| (+) Improvement Homesite Value: | + | $0 | |
| (+) Improvement Non-Homesite Value: | + | $806,817 | |
| (+) Land Homesite Value: | + | $0 | |
| (+) Land Non-Homesite Value: | + | $400,000 | |
| (+) Curr Use (HS): | + | $0 | $0 |
| (+) Curr Use (NHS): | + | $0 | $0 |
| | | -------------------------- | |
| (=) Market Value: | = | $1,206,817 | |
| (–) Productivity Loss: | – | $0 | |
| | | -------------------------- | |
| (=) Subtotal: | = | $1,206,817 | |
| (+) Senior Appraised Value: | + | $0 | |
| (+) Non-Senior Appraised Value: | + | $1,206,817 | |
| | | -------------------------- | |
| (=) Total Appraised Value: | = | $1,206,817 | |
| (–) Senior Exemption Loss: | – | $0 | |
| (–) Exemption Loss: | – | $0 | |
| | | -------------------------- | |
| (=) Taxable Value: | = | $1,206,817 | |
Taxing Jurisdiction
| Owner: | DUNCAN, JESSE S | | |
| % Ownership: | 100.0000000000% | | |
| Total Value: | $1,206,817 | | |
| Tax Area: | 712 - APPRAISER-S Whid Schl Dist, outside Langley, improved, greater than 1 acre |
| CF | Conservation Futures | 0.0316035091 | $1,206,817 | $1,206,817 | $38.14 | | |
| FIRE3 | Fire & Rescue Dist #3 S Whidbey GEN | 1.2004855531 | $1,206,817 | $1,206,817 | $1,448.77 | | |
| HOBOND | Hospital BOND | 0.1910887512 | $1,206,817 | $1,206,817 | $230.61 | | |
| HOGEN | Hospital GEN | 0.3902502903 | $1,206,817 | $1,206,817 | $470.96 | | |
| CE | County Current Expense | 0.3708482477 | $1,206,817 | $1,206,817 | $447.55 | | |
| CR | County Roads | 0.4584763726 | $1,206,817 | $1,206,817 | $553.30 | | |
| ISLANDEMS | Hospital GEN (EMS) | 0.5000000000 | $1,206,817 | $1,206,817 | $603.41 | | |
| LIB | Library Sno-Isle GEN | 0.3153421757 | $1,206,817 | $1,206,817 | $380.56 | | |
| PORTWHID | Port of S Whidbey GEN | 0.1094540357 | $1,206,817 | $1,206,817 | $132.09 | | |
| SCH206BOND | School 206 BOND | 0.3161759235 | $1,206,817 | $1,206,817 | $381.57 | | |
| SCH206MO | School 206 Enrichment | 0.4547169547 | $1,206,817 | $1,206,817 | $548.76 | | |
| ST | State School | 1.3035497053 | $1,206,817 | $1,206,817 | $1,573.15 | | |
| ST2 | State School Part 2 | 0.8169543533 | $1,206,817 | $1,206,817 | $985.91 | | |
| SWHIDPRBD | P & R S Whidbey BOND | 0.0152817568 | $1,206,817 | $1,206,817 | $18.44 | | |
| SWHIDPRBD2 | P & R S Whidbey BOND2 | 0.0138911264 | $1,206,817 | $1,206,817 | $16.76 | | |
| SWHIDPRMT | P & R S Whidbey GEN | 0.2053334452 | $1,206,817 | $1,206,817 | $247.80 | | |
| | Total Tax Rate: | 6.6934522006 | | | | | |
| | | | | Taxes w/Current Exemptions: | $8,077.78 | | |
| | | | | Taxes w/o Exemptions: | $8,077.78 | | |
Improvement / Building
| Improvement #1: | RESIDENTIAL | State Code: | Y | 2874.6 sqft | Value: | $530,346 |
| Bathrooms: | 3.5 | Bedrooms: | 4 | | Ceiling: | DRYWALL PAINTED | Cooling: | HEAT PUMP/CONV/V | | Exterior Wall/Cover: | WOOD SIDING | Floor Covering: | CERAMIC TILE/HWD 40/60 | | Floor Structure: | WOOD W/SUBFLOOR | Foundation: | CONCRETE | | Interior Finish: | DRYWALL PAINT | Plumbing Fixture Cnt: | 15 | | Roof Slope: | 12" IN 12" | Roof Structure/Cover: | CJ ASPHALT |
|
| | Type | Description | Class CD | Sub Class CD | Year Built | Area |
| | BAS | BASE/MAIN FLOOR | 4 | 0 | 1999 | 1226.8 |
| | BIG | BUILT IN GARAGE | 4 | 0 | 1999 | 906.5 |
| | UPH | HALF STORY | 4 | 0 | 1999 | 1647.8 |
| | OWC | OPEN WOOD PORCH W/STEPS/ROOF/C | 4 | 0 | 1999 | 810.2 |
| Improvement #2: | RESIDENTIAL | State Code: | Y | 800.0 sqft | Value: | $276,471 |
| Bathrooms: | 1 | Bedrooms: | 1 | | Ceiling: | DRYWALL PAINTED | Cooling: | HEAT PUMP/CONV/V | | Exterior Wall/Cover: | WOOD SIDING | Floor Covering: | CERAMIC TILE/HWD 40/60 | | Floor Structure: | SLAB ABOVE GRADE | Foundation: | SLAB | | Interior Finish: | DRYWALL PAINT | Plumbing Fixture Cnt: | 6 | | Roof Slope: | 4" IN 12" | Roof Structure/Cover: | CJ ASPHALT |
|
| | Type | Description | Class CD | Sub Class CD | Year Built | Area |
| | BAS | BASE/MAIN FLOOR | 3 | 0 | 1993 | 800.0 |
| | OP4 | OPEN PORCH W/CEILING-ROOF | 3 | 0 | 1993 | 260.0 |
| | OP4 | OPEN PORCH W/CEILING-ROOF | 3 | 0 | 1993 | 22.8 |
| | AGR | ATTACHED GARAGE | 3 | 0 | 1993 | 2280.0 |
Sketch
Property Image
Land
| 1 | 35 | AC (10.00-30.99) | 14.8200 | 645559.20 | 0.00 | 0.00 | 1.00 | $400,000 | $0 |
Roll Value History
| 2026 | N/A | N/A | N/A | N/A | N/A |
| 2025 | $806,817 | $400,000 | $0 | $1,206,817 | $1,206,817 |
| 2024 | $817,322 | $360,000 | $0 | $1,177,322 | $1,177,322 |
| 2023 | $827,859 | $360,000 | $0 | $1,187,859 | $1,187,859 |
| 2022 | $759,174 | $350,000 | $0 | $1,109,174 | $1,109,174 |
| 2021 | $668,462 | $250,000 | $0 | $918,462 | $918,462 |
| 2020 | $634,845 | $250,000 | $0 | $884,845 | $884,845 |
| 2019 | $470,436 | $300,000 | $0 | $770,436 | $770,436 |
| 2018 | $471,860 | $245,000 | $0 | $716,860 | $716,860 |
| 2017 | $475,373 | $200,000 | $0 | $675,373 | $675,373 |
| 2016 | $523,230 | $200,000 | $0 | $723,230 | $723,230 |
| 2015 | $512,743 | $200,000 | $0 | $712,743 | $712,743 |
| 2014 | $509,405 | $155,000 | $0 | $664,405 | $664,405 |
| 2013 | $515,531 | $225,000 | $0 | $740,531 | $740,531 |
| 2012 | $521,653 | $225,000 | $0 | $746,653 | $746,653 |
| 2011 | $527,777 | $225,000 | $0 | $752,777 | $752,777 |
| 2010 | $495,505 | $225,000 | $0 | $720,505 | $720,505 |
| 2009 | $517,240 | $300,000 | $0 | $817,240 | $817,240 |
| 2008 | $527,752 | $300,000 | $0 | $827,752 | $827,752 |
| 2007 | $529,888 | $300,000 | $0 | $829,888 | $829,888 |
Deed and Sales History
| 1 | 10/09/2019 | WD | Warranty Deed | ASKINS, DANIEL | DUNCAN, JESSE S | | | $830,000.00 | 40706 | 4473437 |
| 2 | 05/11/2015 | SPWARDEED | Special Warranty Deed | NATIONSTAR MORTGAGE LLC | ASKINS, EDWARD A | | | $0.00 | 36419 | 4379087 |
| 3 | 08/08/2017 | QCD | Quit Claim Deed | ASKINS, DANIEL | ASKINS, DANIEL | | | $0.00 | 30611 | 4428023 |
| 4 | 08/07/2017 | QCD | Quit Claim Deed | ASKINS, DANIEL | ASKINS, DANIEL | | | $0.00 | 30610 | 4428022 |
| 5 | 05/27/2015 | ESTSEPPROP | Establish Separate Property | ASKINS, DANIEL | ASKINS, DANIEL | | | $0.00 | 19719 | 4379088 |
| 6 | 05/11/2015 | SPWARDEED | Special Warranty Deed | NATIONSTAR MORTGAGE LLC | ASKINS, DANIEL | | | $471,450.00 | 19718 | 4379087 |
| 7 | 12/30/2014 | WD | Warranty Deed | HAGGLUND, DEBORAH L | NATIONSTAR MORTGAGE LLC | | | $0.00 | 18553 | 4373655 |
| 8 | 06/16/2009 | BLA | DNU - Boundary Line Adjustment | HAGGLUND, DALE E | HAGGLUND, DEBORAH L | | | $0.00 | 81207 | 4215862 |
| 9 | 05/01/1997 | QCD | Quit Claim Deed | PUGET, SOUND T | HAGGLUND, DALE E | | | $0.00 | 71631 | 97007487 |
| 10 | 01/01/1991 | EZ | Easement | HAGGLUND, DALE E | PUGET, SOUND T | | | $0.00 | 10119 | 91000644 |
| 11 | 01/01/1991 | WD | Warranty Deed | PUGET, SOUND T | HAGGLUND, DALE E | | | $55,000.00 | 10204 | 91001014 |
| 12 | 09/01/1989 | WD | Warranty Deed | GEORGIA-PACIFIC, | PUGET, SOUND T | | | $28,000.00 | 94040 | 89013337 |
| 13 | 01/01/1900 | OTHER | Other - Misc. Documents | Unknown | GEORGIA-PACIFIC, | | | $0.00 | 0 | 0 |
Payout Agreement
| No payout information available.. |