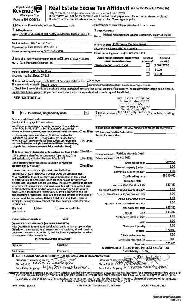
Property
Account |
| Property ID: | 113291 | Abbreviated Legal Description: | 23 - W/2 W/2 SW SE LY S OF CO RD EX 13' WSTLY PT PARA 070-3300 JUDGEMENT AF#4496199 |
| Geographic ID: | R32803-040-2850 | Agent Code: | |
| Type: | Real | | |
| Tax Area: | 712 - APPRAISER-S Whid Schl Dist, outside Langley, improved, greater than 1 acre | Land Use Code | 11 |
| Open Space: | N | DFL | N |
| Historic Property: | N | Remodel Property: | N |
| Multi-Family Redevelopment: | N | | |
| Township: | 28 | Section: | 03 |
| Range: | R3 |
Location |
| Address: | 7656 BAILEY RD CLINTON, WA 98236 | Mapsco: | |
| Neighborhood: | Cycle 4 | Map ID: | 684 |
| Neighborhood CD: | 4 |
Owner |
| Name: | EHLERS, KEVIN A | Owner ID: | 295426 |
| Mailing Address: | RHONDA D EHLERS 7656 BAILEY RD CLINTON, WA 98236-9705 | % Ownership: | 100.0000000000% |
| | | Exemptions: | |
Taxes and Assessment Details
Values
| (+) Improvement Homesite Value: | + | $0 | |
| (+) Improvement Non-Homesite Value: | + | $540,113 | |
| (+) Land Homesite Value: | + | $0 | |
| (+) Land Non-Homesite Value: | + | $360,000 | |
| (+) Curr Use (HS): | + | $0 | $0 |
| (+) Curr Use (NHS): | + | $0 | $0 |
| | | -------------------------- | |
| (=) Market Value: | = | $900,113 | |
| (–) Productivity Loss: | – | $0 | |
| | | -------------------------- | |
| (=) Subtotal: | = | $900,113 | |
| (+) Senior Appraised Value: | + | $0 | |
| (+) Non-Senior Appraised Value: | + | $900,113 | |
| | | -------------------------- | |
| (=) Total Appraised Value: | = | $900,113 | |
| (–) Senior Exemption Loss: | – | $0 | |
| (–) Exemption Loss: | – | $0 | |
| | | -------------------------- | |
| (=) Taxable Value: | = | $900,113 | |
Taxing Jurisdiction
| Owner: | EHLERS, KEVIN A | | |
| % Ownership: | 100.0000000000% | | |
| Total Value: | $900,113 | | |
| Tax Area: | 712 - APPRAISER-S Whid Schl Dist, outside Langley, improved, greater than 1 acre |
| CF | Conservation Futures | 0.0316035091 | $900,113 | $900,113 | $28.45 | | |
| FIRE3 | Fire & Rescue Dist #3 S Whidbey GEN | 1.2004855531 | $900,113 | $900,113 | $1,080.57 | | |
| HOBOND | Hospital BOND | 0.1910887512 | $900,113 | $900,113 | $172.00 | | |
| HOGEN | Hospital GEN | 0.3902502903 | $900,113 | $900,113 | $351.27 | | |
| CE | County Current Expense | 0.3708482477 | $900,113 | $900,113 | $333.81 | | |
| CR | County Roads | 0.4584763726 | $900,113 | $900,113 | $412.68 | | |
| ISLANDEMS | Hospital GEN (EMS) | 0.5000000000 | $900,113 | $900,113 | $450.06 | | |
| LIB | Library Sno-Isle GEN | 0.3153421757 | $900,113 | $900,113 | $283.84 | | |
| PORTWHID | Port of S Whidbey GEN | 0.1094540357 | $900,113 | $900,113 | $98.52 | | |
| SCH206BOND | School 206 BOND | 0.3161759235 | $900,113 | $900,113 | $284.59 | | |
| SCH206MO | School 206 Enrichment | 0.4547169547 | $900,113 | $900,113 | $409.30 | | |
| ST | State School | 1.3035497053 | $900,113 | $900,113 | $1,173.34 | | |
| ST2 | State School Part 2 | 0.8169543533 | $900,113 | $900,113 | $735.35 | | |
| SWHIDPRBD | P & R S Whidbey BOND | 0.0152817568 | $900,113 | $900,113 | $13.76 | | |
| SWHIDPRBD2 | P & R S Whidbey BOND2 | 0.0138911264 | $900,113 | $900,113 | $12.50 | | |
| SWHIDPRMT | P & R S Whidbey GEN | 0.2053334452 | $900,113 | $900,113 | $184.82 | | |
| | Total Tax Rate: | 6.6934522006 | | | | | |
| | | | | Taxes w/Current Exemptions: | $6,024.86 | | |
| | | | | Taxes w/o Exemptions: | $6,024.86 | | |
Improvement / Building
| Improvement #1: | RESIDENTIAL | State Code: | Y | 2064.0 sqft | Value: | $540,113 |
| Bathrooms: | 2 | Bedrooms: | 3 | | Ceiling: | DRYWALL PAINTED | Cooling: | HEAT PUMP/CONV/V | | Exterior Wall/Cover: | WOOD SIDING | Floor Covering: | CERAMIC TILE/HWD 40/60 | | Floor Structure: | WOOD W/SUBFLOOR | Foundation: | CONCRETE | | Interior Finish: | DRYWALL PAINT | Plumbing Fixture Cnt: | 9 | | Roof Slope: | 4" IN 12" | Roof Structure/Cover: | CJ ASPHALT |
|
| | Type | Description | Class CD | Sub Class CD | Year Built | Area |
| | BAS | BASE/MAIN FLOOR | 4 | 0 | 1979 | 2064.0 |
| | AGR | ATTACHED GARAGE | 4 | 0 | 1979 | 572.0 |
| | OWR | OPEN WOOD PORCH W/STEPS/ROOF | 4 | 0 | 1979 | 80.0 |
| | OWP | OPEN WOOD PORCH W/STEPS | 4 | 0 | 1979 | 351.0 |
| | UTY | STORAGE/UTILITY | 4 | 0 | 1979 | 564.0 |
| | UTY | STORAGE/UTILITY | 4 | 0 | 1979 | 1152.0 |
| | OWC | OPEN WOOD PORCH W/STEPS/ROOF/C | 4 | 0 | 1979 | 198.0 |
Sketch
| No sketches available for this property. |
Property Image
Land
| 1 | 32 | AC (03.01-09.99) | 6.2200 | 270943.20 | 0.00 | 0.00 | 1.00 | $360,000 | $0 |
Roll Value History
| 2026 | N/A | N/A | N/A | N/A | N/A |
| 2025 | $540,113 | $360,000 | $0 | $900,113 | $900,113 |
| 2024 | $546,446 | $340,000 | $0 | $886,446 | $886,446 |
| 2023 | $552,781 | $330,000 | $0 | $882,781 | $882,781 |
| 2022 | $506,281 | $280,000 | $0 | $786,281 | $786,281 |
| 2021 | $331,413 | $230,000 | $0 | $561,413 | $561,413 |
| 2020 | $285,099 | $190,000 | $0 | $475,099 | $475,099 |
| 2019 | $220,621 | $250,000 | $0 | $470,621 | $470,621 |
| 2018 | $221,242 | $210,000 | $0 | $431,242 | $431,242 |
| 2017 | $222,484 | $190,000 | $0 | $412,484 | $412,484 |
| 2016 | $224,967 | $165,000 | $0 | $389,967 | $389,967 |
| 2015 | $227,448 | $165,000 | $0 | $392,448 | $392,448 |
| 2014 | $210,380 | $150,000 | $0 | $360,380 | $360,380 |
| 2013 | $212,684 | $150,000 | $0 | $362,684 | $362,684 |
| 2012 | $254,713 | $217,600 | $0 | $472,313 | $472,313 |
| 2011 | $257,528 | $217,600 | $0 | $475,128 | $475,128 |
| 2010 | $262,031 | $217,600 | $0 | $479,631 | $479,631 |
| 2009 | $272,989 | $307,200 | $0 | $580,189 | $580,189 |
| 2008 | $278,417 | $320,000 | $0 | $598,417 | $598,417 |
| 2007 | $278,564 | $268,800 | $0 | $547,364 | $547,364 |
Deed and Sales History
| 1 | 12/20/2021 | WD | Warranty Deed | MULCAHY, DAVID J | EHLERS, KEVIN A | | | $870,000.00 | 51507 | 4536834 |
| 2 | 11/06/2020 | QCD | Quit Claim Deed | MULCAHY, DAVID J | MULCAHY, DAVID J | | | | 45656 | 4502137 |
| 3 | 06/18/2013 | WD | Warranty Deed | CORNETT, DONALD W | MULCAHY, DAVID J | | | $349,000.00 | 12041 | 4344286 |
| 4 | 04/11/2003 | QCD | Quit Claim Deed | SILVERMAN, SARA E | CORNETT, DONALD W | | | $0.00 | 31684 | 4056217 |
| 5 | 04/04/2003 | PRD | Personal Representatives Deed | BEACH TRUSTEE, AVIVA C | SILVERMAN, SARA E | | | $0.00 | 31683 | 4056216 |
| 6 | 05/28/1999 | 5 | DNU - Marriage License/Name Change | BROWN TRUSTEE, AVIVA C | BEACH TRUSTEE, AVIVA C | | | $0.00 | 68276 | 0 |
| 7 | 09/04/1998 | QCD | Quit Claim Deed | BROWN TRUSTEE, AVIVA C | BROWN TRUSTEE, AVIVA C | | | $0.00 | 83633 | 98018975 |
| 8 | 04/17/1998 | QCD | Quit Claim Deed | BROWN, AVIVA C | BROWN TRUSTEE, AVIVA C | | | $0.00 | 81512 | 98008243 |
| 9 | 09/01/1997 | OTHER | Other - Misc. Documents | SILVERMAN, ELIZABETH C | BROWN, AVIVA C | | | $0.00 | 67609 | 0 |
| 10 | 01/01/1995 | QCD | Quit Claim Deed | SILVERMAN, LEO H | SILVERMAN, ELIZABETH C | | | $0.00 | 50249 | 95001182 |
| 11 | 02/01/1994 | WD | Warranty Deed | SILVERMAN, LEO H | SILVERMAN, LEO H | | | $0.00 | 43561 | 94018824 |
| 12 | 08/01/1993 | WD | Warranty Deed | SILVERMAN, LEO H | SILVERMAN, LEO H | | | $0.00 | 43560 | 94018823 |
| 13 | 12/01/1992 | QCD | Quit Claim Deed | SILVERMAN, LEO H | SILVERMAN, LEO H | | | $0.00 | 43558 | 94018821 |
| 14 | 12/01/1992 | WD | Warranty Deed | SILVERMAN, LEO H | SILVERMAN, LEO H | | | $0.00 | 43559 | 94018822 |
| 15 | 01/01/1982 | EXECUTORD | Executor Deed | MCBRIDE, RAY G | SILVERMAN, LEO H | | | $170,000.00 | 20210 | 392593 |
| 16 | 01/01/1900 | OTHER | Other - Misc. Documents | Unknown | MCBRIDE, RAY G | | | $0.00 | 0 | 0 |
Payout Agreement
| No payout information available.. |