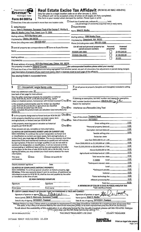
Property
Account |
| Property ID: | 113326 | Abbreviated Legal Description: | 27 - W/2 W/2 SW SW |
| Geographic ID: | R32803-072-0180 | Agent Code: | |
| Type: | Real | | |
| Tax Area: | 712 - APPRAISER-S Whid Schl Dist, outside Langley, improved, greater than 1 acre | Land Use Code | 88 |
| Open Space: | N | DFL | Y |
| Historic Property: | N | Remodel Property: | N |
| Multi-Family Redevelopment: | N | | |
| Township: | 28 | Section: | 03 |
| Range: | R3 |
Location |
| Address: | 3604 HIDDEN CREEK WAY CLINTON, WA 98236 | Mapsco: | |
| Neighborhood: | Cycle 4 | Map ID: | 683 |
| Neighborhood CD: | 4 |
Owner |
| Name: | GREENHERON, JOSEPH | Owner ID: | 309245 |
| Mailing Address: | VENESSA GREENHERON 3604 HIDDEN CREEK WAY CLINTON, WA 98236 | % Ownership: | 100.0000000000% |
| | | Exemptions: | |
Taxes and Assessment Details
Values
| (+) Improvement Homesite Value: | + | $0 | |
| (+) Improvement Non-Homesite Value: | + | $253,785 | |
| (+) Land Homesite Value: | + | $0 | |
| (+) Land Non-Homesite Value: | + | $260,000 | |
| (+) Curr Use (HS): | + | $0 | $0 |
| (+) Curr Use (NHS): | + | $140,000 | $981 |
| | | -------------------------- | |
| (=) Market Value: | = | $653,785 | |
| (–) Productivity Loss: | – | $139,019 | |
| | | -------------------------- | |
| (=) Subtotal: | = | $514,766 | |
| (+) Senior Appraised Value: | + | $0 | |
| (+) Non-Senior Appraised Value: | + | $514,766 | |
| | | -------------------------- | |
| (=) Total Appraised Value: | = | $514,766 | |
| (–) Senior Exemption Loss: | – | $0 | |
| (–) Exemption Loss: | – | $0 | |
| | | -------------------------- | |
| (=) Taxable Value: | = | $514,766 | |
Taxing Jurisdiction
| Owner: | GREENHERON, JOSEPH | | |
| % Ownership: | 100.0000000000% | | |
| Total Value: | $653,785 | | |
| Tax Area: | 712 - APPRAISER-S Whid Schl Dist, outside Langley, improved, greater than 1 acre |
| CF | Conservation Futures | 0.0316035091 | $514,766 | $514,766 | $16.27 | | |
| FIRE3 | Fire & Rescue Dist #3 S Whidbey GEN | 1.2004855531 | $514,766 | $514,766 | $617.97 | | |
| HOBOND | Hospital BOND | 0.1910887512 | $514,766 | $514,766 | $98.37 | | |
| HOGEN | Hospital GEN | 0.3902502903 | $514,766 | $514,766 | $200.89 | | |
| CE | County Current Expense | 0.3708482477 | $514,766 | $514,766 | $190.90 | | |
| CR | County Roads | 0.4584763726 | $514,766 | $514,766 | $236.01 | | |
| ISLANDEMS | Hospital GEN (EMS) | 0.5000000000 | $514,766 | $514,766 | $257.38 | | |
| LIB | Library Sno-Isle GEN | 0.3153421757 | $514,766 | $514,766 | $162.33 | | |
| PORTWHID | Port of S Whidbey GEN | 0.1094540357 | $514,766 | $514,766 | $56.34 | | |
| SCH206BOND | School 206 BOND | 0.3161759235 | $514,766 | $514,766 | $162.76 | | |
| SCH206MO | School 206 Enrichment | 0.4547169547 | $514,766 | $514,766 | $234.07 | | |
| ST | State School | 1.3035497053 | $514,766 | $514,766 | $671.02 | | |
| ST2 | State School Part 2 | 0.8169543533 | $514,766 | $514,766 | $420.54 | | |
| SWHIDPRBD | P & R S Whidbey BOND | 0.0152817568 | $514,766 | $514,766 | $7.87 | | |
| SWHIDPRBD2 | P & R S Whidbey BOND2 | 0.0138911264 | $514,766 | $514,766 | $7.15 | | |
| SWHIDPRMT | P & R S Whidbey GEN | 0.2053334452 | $514,766 | $514,766 | $105.70 | | |
| | Total Tax Rate: | 6.6934522006 | | | | | |
| | | | | Taxes w/Current Exemptions: | $3,445.57 | | |
| | | | | Taxes w/o Exemptions: | $3,445.57 | | |
Improvement / Building
| Improvement #1: | RESIDENTIAL | State Code: | Y | 1070.8 sqft | Value: | $253,785 |
| Bathrooms: | 1 | Bedrooms: | 2 | | Ceiling: | DRYWALL PAINTED | Exterior Wall/Cover: | WOOD SIDING | | Floor Covering: | VINYL 100% | Floor Structure: | SLAB ON GRADE | | Foundation: | SLAB | Heating: | CEILING ELECTRIC | | Interior Finish: | DRYWALL PAINT | Plumbing Fixture Cnt: | 6 | | Roof Slope: | 12" IN 12" | Roof Structure/Cover: | CJ ALUMINIUM HEAVY |
|
| | Type | Description | Class CD | Sub Class CD | Year Built | Area |
| | BAS | BASE/MAIN FLOOR | 3 | 0 | 2006 | 1070.8 |
| | OP1 | OPEN PORCH SLAB | 3 | 0 | 2006 | 246.0 |
| | OP2 | OPEN PORCH W/STEPS | 3 | 0 | 2006 | 24.0 |
| | AGR | ATTACHED GARAGE | 3 | 0 | 2006 | 869.5 |
| | ATU | ATTIC UNFINISHED | 3 | 0 | 2006 | 752.6 |
| | OWP | OPEN WOOD PORCH W/STEPS | 3 | 0 | 2006 | 309.9 |
Sketch
Property Image
Land
| 1 | HS | HOMESITE | 1.0000 | 43560.00 | 0.00 | 0.00 | 1.00 | $260,000 | $0 |
| 2 | 88 | DESIGNATED FOREST | 4.2400 | 184694.40 | 0.00 | 0.00 | 1.00 | $65,817 | $632 |
| 3 | 88 | DESIGNATED FOREST | 4.7790 | 208173.24 | 0.00 | 0.00 | 1.00 | $74,183 | $349 |
Roll Value History
| 2026 | N/A | N/A | N/A | N/A | N/A |
| 2025 | $253,785 | $400,000 | $981 | $514,766 | $514,766 |
| 2024 | $256,695 | $360,000 | $0 | $616,695 | $616,695 |
| 2023 | $259,603 | $360,000 | $0 | $619,603 | $619,603 |
| 2022 | $237,059 | $350,000 | $0 | $587,059 | $587,059 |
| 2021 | $207,969 | $250,000 | $0 | $457,969 | $457,969 |
| 2020 | $194,715 | $250,000 | $0 | $444,715 | $444,715 |
| 2019 | $140,244 | $300,000 | $0 | $440,244 | $440,244 |
| 2018 | $140,638 | $245,000 | $0 | $385,638 | $385,638 |
| 2017 | $131,542 | $200,000 | $0 | $331,542 | $331,542 |
| 2016 | $133,004 | $200,000 | $0 | $333,004 | $333,004 |
| 2015 | $134,465 | $200,000 | $0 | $334,465 | $334,465 |
| 2014 | $135,100 | $180,000 | $0 | $315,100 | $315,100 |
| 2013 | $136,774 | $180,000 | $0 | $316,774 | $316,774 |
| 2012 | $138,261 | $180,000 | $0 | $318,261 | $318,261 |
| 2011 | $139,749 | $180,000 | $0 | $319,749 | $319,749 |
| 2010 | $149,050 | $180,000 | $0 | $329,050 | $329,050 |
| 2009 | $155,233 | $220,000 | $0 | $375,233 | $375,233 |
| 2008 | $160,599 | $200,000 | $0 | $360,599 | $360,599 |
| 2007 | $160,643 | $200,000 | $0 | $360,643 | $360,643 |
Deed and Sales History
| 1 | 07/11/2023 | CHGOFIDENT | DNU - Change In Identity | GOLDBERG, VENESSA LYNN | GREENHERON, JOSEPH | | | | 89378 | |
| 2 | 06/18/2020 | WD | Warranty Deed | GORMAN, MARGARET E | GOLDBERG, VENESSA LYNN | | | $565,000.00 | 43511 | 4489638 |
| 3 | 05/08/2015 | WD | Warranty Deed | MYERS, LAWRENCE A | GORMAN, MARGARET E | | | $355,000.00 | 19518 | 4378249 |
| 4 | 10/13/2011 | WD | Warranty Deed | CENTRE WEST DEVELOPMENT LLC | MYERS, LAWRENCE A | | | $235,000.00 | 5910 | 4303205 |
| 5 | 07/24/2008 | WD | Warranty Deed | CAREY, PETER | CENTRE WEST DEVELOPMENT LLC, | | | $520,000.00 | 81982 | 4233904 |
| 6 | 12/09/2003 | WD | Warranty Deed | BENNETT, ROBERT H | CAREY, PETER | | | $94,000.00 | 35578 | 4085890 |
| 7 | 05/22/2000 | WD | Warranty Deed | ALOHA, LUMBER C | BENNETT, ROBERT H | | | $45,000.00 | 1939 | 20009376 |
| 8 | 07/01/1997 | WD | Warranty Deed | DAVIS, GRACE M | ALOHA, LUMBER C | | | $112,000.00 | 72375 | 97011176 |
| 9 | 07/01/1990 | QCD | Quit Claim Deed | DAVIS, GRACE M | DAVIS, GRACE M | | | $0.00 | 6434 | 90022346 |
| 10 | 06/01/1989 | OTHER | Other - Misc. Documents | DAVIS, LLOYD V | DAVIS, GRACE M | | | $0.00 | 63155 | 0 |
| 11 | 08/01/1983 | WD | Warranty Deed | DAVIS, LLOYD V | DAVIS, LLOYD V | | | $0.00 | 32785 | 415378 |
| 12 | 01/01/1900 | OTHER | Other - Misc. Documents | Unknown | DAVIS, LLOYD V | | | $0.00 | 0 | 0 |
Payout Agreement
| No payout information available.. |