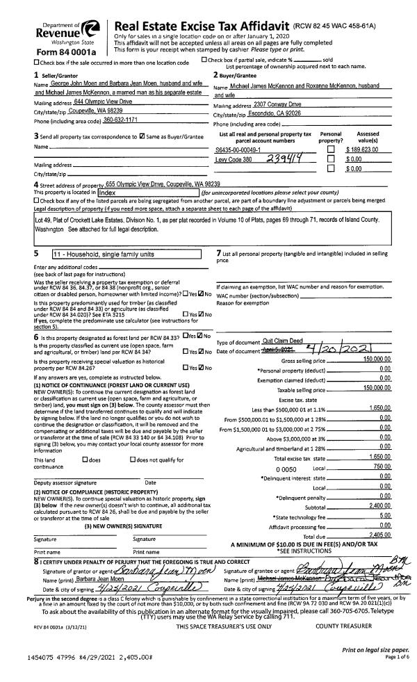
Property
Account |
| Property ID: | 113460 | Abbreviated Legal Description: | 30 - IN NW SE & SW SE BG NE CR SW SE W165' TPB N250' W345' S250' TO NLN SW SE W7 S TO NLN RD E ALG RD TP S OF POB N TO TPB |
| Geographic ID: | R32803-140-3690 | Agent Code: | |
| Type: | Real | | |
| Tax Area: | 712 - APPRAISER-S Whid Schl Dist, outside Langley, improved, greater than 1 acre | Land Use Code | 11 |
| Open Space: | N | DFL | N |
| Historic Property: | N | Remodel Property: | N |
| Multi-Family Redevelopment: | N | | |
| Township: | 28 | Section: | 03 |
| Range: | R3 |
Location |
| Address: | 7721 BAILEY RD CLINTON, WA 98236 | Mapsco: | |
| Neighborhood: | Cycle 4 | Map ID: | 684 |
| Neighborhood CD: | 4 |
Owner |
| Name: | SIMONS, CHRISTOPHER J | Owner ID: | 15653 |
| Mailing Address: | PO BOX 1284 LANGLEY, WA 98260-1284 | % Ownership: | 100.0000000000% |
| | | Exemptions: | |
Taxes and Assessment Details
Values
| (+) Improvement Homesite Value: | + | $0 | |
| (+) Improvement Non-Homesite Value: | + | $543,752 | |
| (+) Land Homesite Value: | + | $0 | |
| (+) Land Non-Homesite Value: | + | $310,000 | |
| (+) Curr Use (HS): | + | $0 | $0 |
| (+) Curr Use (NHS): | + | $0 | $0 |
| | | -------------------------- | |
| (=) Market Value: | = | $853,752 | |
| (–) Productivity Loss: | – | $0 | |
| | | -------------------------- | |
| (=) Subtotal: | = | $853,752 | |
| (+) Senior Appraised Value: | + | $0 | |
| (+) Non-Senior Appraised Value: | + | $853,752 | |
| | | -------------------------- | |
| (=) Total Appraised Value: | = | $853,752 | |
| (–) Senior Exemption Loss: | – | $0 | |
| (–) Exemption Loss: | – | $0 | |
| | | -------------------------- | |
| (=) Taxable Value: | = | $853,752 | |
Taxing Jurisdiction
| Owner: | SIMONS, CHRISTOPHER J | | |
| % Ownership: | 100.0000000000% | | |
| Total Value: | $853,752 | | |
| Tax Area: | 712 - APPRAISER-S Whid Schl Dist, outside Langley, improved, greater than 1 acre |
| CF | Conservation Futures | 0.0316035091 | $853,752 | $853,752 | $26.98 | | |
| FIRE3 | Fire & Rescue Dist #3 S Whidbey GEN | 1.2004855531 | $853,752 | $853,752 | $1,024.92 | | |
| HOBOND | Hospital BOND | 0.1910887512 | $853,752 | $853,752 | $163.14 | | |
| HOGEN | Hospital GEN | 0.3902502903 | $853,752 | $853,752 | $333.18 | | |
| CE | County Current Expense | 0.3708482477 | $853,752 | $853,752 | $316.61 | | |
| CR | County Roads | 0.4584763726 | $853,752 | $853,752 | $391.43 | | |
| ISLANDEMS | Hospital GEN (EMS) | 0.5000000000 | $853,752 | $853,752 | $426.88 | | |
| LIB | Library Sno-Isle GEN | 0.3153421757 | $853,752 | $853,752 | $269.22 | | |
| PORTWHID | Port of S Whidbey GEN | 0.1094540357 | $853,752 | $853,752 | $93.45 | | |
| SCH206BOND | School 206 BOND | 0.3161759235 | $853,752 | $853,752 | $269.94 | | |
| SCH206MO | School 206 Enrichment | 0.4547169547 | $853,752 | $853,752 | $388.22 | | |
| ST | State School | 1.3035497053 | $853,752 | $853,752 | $1,112.91 | | |
| ST2 | State School Part 2 | 0.8169543533 | $853,752 | $853,752 | $697.48 | | |
| SWHIDPRBD | P & R S Whidbey BOND | 0.0152817568 | $853,752 | $853,752 | $13.05 | | |
| SWHIDPRBD2 | P & R S Whidbey BOND2 | 0.0138911264 | $853,752 | $853,752 | $11.86 | | |
| SWHIDPRMT | P & R S Whidbey GEN | 0.2053334452 | $853,752 | $853,752 | $175.30 | | |
| | Total Tax Rate: | 6.6934522006 | | | | | |
| | | | | Taxes w/Current Exemptions: | $5,714.57 | | |
| | | | | Taxes w/o Exemptions: | $5,714.57 | | |
Improvement / Building
| Improvement #1: | RESIDENTIAL | State Code: | Y | 2541.9 sqft | Value: | $543,752 |
| Bathrooms: | 2 | Bedrooms: | 2 | | Ceiling: | BEAM PAINTED | Cooling: | HEAT PUMP/CONV/V | | Exterior Wall/Cover: | WOOD SIDING | Floor Covering: | HARDWOOD/CARP 60-40 | | Floor Structure: | WOOD W/SUBFLOOR | Foundation: | CONCRETE | | Interior Finish: | DRYWALL PAINT | Plumbing Fixture Cnt: | 10 | | Roof Slope: | 6" IN 12" | Roof Structure/Cover: | STEEL TERNE |
|
| | Type | Description | Class CD | Sub Class CD | Year Built | Area |
| | BAS | BASE/MAIN FLOOR | 4 | 0 | 1983 | 1397.4 |
| | UPS | UPPER STORY | 4 | 0 | 1983 | 856.5 |
| | OWP | OPEN WOOD PORCH W/STEPS | 4 | 0 | 1983 | 144.0 |
| | OWR | OPEN WOOD PORCH W/STEPS/ROOF | 4 | 0 | 1983 | 156.0 |
| | ENP | ENCLOSED PORCH | 4 | 0 | 1983 | 273.0 |
| | LOF | LOFT | 4 | 0 | 1983 | 288.0 |
| | OCP | OPEN CARPORT | 4 | 0 | 1983 | 280.0 |
| | DGR | DETACHED GARAGE | 4 | 0 | 1983 | 875.0 |
| | UTY | STORAGE/UTILITY | 4 | 0 | 1983 | 80.0 |
| | UTY | STORAGE/UTILITY | 4 | 0 | 1983 | 0.0 |
| | UTY | STORAGE/UTILITY | 4 | 0 | 1983 | 192.0 |
Sketch
Property Image
Land
| 1 | 18 | AC (02.01-03.00) | 2.9000 | 126324.00 | 0.00 | 0.00 | 1.00 | $310,000 | $0 |
Roll Value History
| 2026 | N/A | N/A | N/A | N/A | N/A |
| 2025 | $543,752 | $310,000 | $0 | $853,752 | $853,752 |
| 2024 | $542,705 | $300,000 | $0 | $842,705 | $842,705 |
| 2023 | $549,055 | $290,000 | $0 | $839,055 | $839,055 |
| 2022 | $526,947 | $270,000 | $0 | $796,947 | $796,947 |
| 2021 | $467,777 | $175,000 | $0 | $642,777 | $642,777 |
| 2020 | $450,694 | $165,000 | $0 | $615,694 | $615,694 |
| 2019 | $353,079 | $200,000 | $0 | $553,079 | $553,079 |
| 2018 | $354,018 | $170,000 | $0 | $524,018 | $524,018 |
| 2017 | $355,894 | $150,000 | $0 | $505,894 | $505,894 |
| 2016 | $359,645 | $135,000 | $0 | $494,645 | $494,645 |
| 2015 | $304,238 | $135,000 | $0 | $439,238 | $439,238 |
| 2014 | $217,477 | $110,500 | $0 | $327,977 | $327,977 |
| 2013 | $221,894 | $110,500 | $0 | $332,394 | $332,394 |
| 2012 | $275,886 | $110,500 | $0 | $386,386 | $386,386 |
| 2011 | $279,610 | $130,000 | $0 | $409,610 | $409,610 |
| 2010 | $296,107 | $130,000 | $0 | $426,107 | $426,107 |
| 2009 | $308,381 | $155,000 | $0 | $463,381 | $463,381 |
| 2008 | $276,265 | $200,000 | $0 | $476,265 | $476,265 |
| 2007 | $277,421 | $200,000 | $0 | $477,421 | $477,421 |
Deed and Sales History
| 1 | 06/09/2022 | EZ | Easement | SIMONS, CHRISTOPHER J | PUGET SOUND ENERGY | | | $3,091.00 | 53455 | 4546657 |
Payout Agreement
| No payout information available.. |