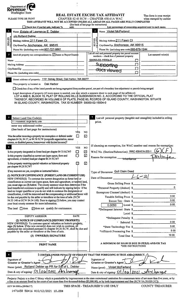
Property
Account |
| Property ID: | 113763 | Abbreviated Legal Description: | 56 - NE SE NW TGW & SUBJ TO EZ |
| Geographic ID: | R32803-372-2300 | Agent Code: | |
| Type: | Real | | |
| Tax Area: | 712 - APPRAISER-S Whid Schl Dist, outside Langley, improved, greater than 1 acre | Land Use Code | 11 |
| Open Space: | N | DFL | N |
| Historic Property: | N | Remodel Property: | N |
| Multi-Family Redevelopment: | N | | |
| Township: | 28 | Section: | 03 |
| Range: | R3 |
Location |
| Address: | 7351 BARRED OWL WAY CLINTON, WA 98236 | Mapsco: | |
| Neighborhood: | Cycle 4 | Map ID: | 685 |
| Neighborhood CD: | 4 |
Owner |
| Name: | HALL, JAMES C | Owner ID: | 91200 |
| Mailing Address: | CHRISTINE M BETZ-HALL 7351 BARRED OWL WAY CLINTON, WA 98236-9700 | % Ownership: | 100.0000000000% |
| | | Exemptions: | |
Taxes and Assessment Details
Values
| (+) Improvement Homesite Value: | + | $0 | |
| (+) Improvement Non-Homesite Value: | + | $300,391 | |
| (+) Land Homesite Value: | + | $0 | |
| (+) Land Non-Homesite Value: | + | $400,000 | |
| (+) Curr Use (HS): | + | $0 | $0 |
| (+) Curr Use (NHS): | + | $0 | $0 |
| | | -------------------------- | |
| (=) Market Value: | = | $700,391 | |
| (–) Productivity Loss: | – | $0 | |
| | | -------------------------- | |
| (=) Subtotal: | = | $700,391 | |
| (+) Senior Appraised Value: | + | $0 | |
| (+) Non-Senior Appraised Value: | + | $700,391 | |
| | | -------------------------- | |
| (=) Total Appraised Value: | = | $700,391 | |
| (–) Senior Exemption Loss: | – | $0 | |
| (–) Exemption Loss: | – | $0 | |
| | | -------------------------- | |
| (=) Taxable Value: | = | $700,391 | |
Taxing Jurisdiction
| Owner: | HALL, JAMES C | | |
| % Ownership: | 100.0000000000% | | |
| Total Value: | $700,391 | | |
| Tax Area: | 712 - APPRAISER-S Whid Schl Dist, outside Langley, improved, greater than 1 acre |
| CF | Conservation Futures | 0.0316035091 | $700,391 | $700,391 | $22.13 | | |
| FIRE3 | Fire & Rescue Dist #3 S Whidbey GEN | 1.2004855531 | $700,391 | $700,391 | $840.81 | | |
| HOBOND | Hospital BOND | 0.1910887512 | $700,391 | $700,391 | $133.84 | | |
| HOGEN | Hospital GEN | 0.3902502903 | $700,391 | $700,391 | $273.33 | | |
| CE | County Current Expense | 0.3708482477 | $700,391 | $700,391 | $259.74 | | |
| CR | County Roads | 0.4584763726 | $700,391 | $700,391 | $321.11 | | |
| ISLANDEMS | Hospital GEN (EMS) | 0.5000000000 | $700,391 | $700,391 | $350.20 | | |
| LIB | Library Sno-Isle GEN | 0.3153421757 | $700,391 | $700,391 | $220.86 | | |
| PORTWHID | Port of S Whidbey GEN | 0.1094540357 | $700,391 | $700,391 | $76.66 | | |
| SCH206BOND | School 206 BOND | 0.3161759235 | $700,391 | $700,391 | $221.45 | | |
| SCH206MO | School 206 Enrichment | 0.4547169547 | $700,391 | $700,391 | $318.48 | | |
| ST | State School | 1.3035497053 | $700,391 | $700,391 | $912.99 | | |
| ST2 | State School Part 2 | 0.8169543533 | $700,391 | $700,391 | $572.19 | | |
| SWHIDPRBD | P & R S Whidbey BOND | 0.0152817568 | $700,391 | $700,391 | $10.70 | | |
| SWHIDPRBD2 | P & R S Whidbey BOND2 | 0.0138911264 | $700,391 | $700,391 | $9.73 | | |
| SWHIDPRMT | P & R S Whidbey GEN | 0.2053334452 | $700,391 | $700,391 | $143.81 | | |
| | Total Tax Rate: | 6.6934522006 | | | | | |
| | | | | Taxes w/Current Exemptions: | $4,688.03 | | |
| | | | | Taxes w/o Exemptions: | $4,688.03 | | |
Improvement / Building
| Improvement #1: | RESIDENTIAL | State Code: | Y | 1555.0 sqft | Value: | $300,391 |
| Bathrooms: | 1.5 | Bedrooms: | 1 | | Ceiling: | DRYWALL PAINTED | Cooling: | HEAT PUMP/CONV/V | | Exterior Wall/Cover: | WOOD SIDING | Floor Covering: | HARDWOOD 100% | | Floor Structure: | WOOD W/SUBFLOOR | Foundation: | PIERS/CONCRETE | | Interior Finish: | DRYWALL PAINT | Plumbing Fixture Cnt: | 8 | | Roof Slope: | 10" IN 12" | Roof Structure/Cover: | CJ ASPHALT |
|
| | Type | Description | Class CD | Sub Class CD | Year Built | Area |
| | BAS | BASE/MAIN FLOOR | 3 | 0 | 2005 | 962.0 |
| | DGR | DETACHED GARAGE | 3 | 0 | 2005 | 240.0 |
| | OWP | OPEN WOOD PORCH W/STEPS | 3 | 0 | 2005 | 62.1 |
| | OWR | OPEN WOOD PORCH W/STEPS/ROOF | 3 | 0 | 2005 | 1113.2 |
| | LOF | LOFT | 3 | 0 | 2005 | 593.0 |
| | OCP | OPEN CARPORT | 3 | 0 | 2005 | 120.0 |
Sketch
Property Image
Land
| 1 | 35 | AC (10.00-30.99) | 10.0000 | 435600.00 | 0.00 | 0.00 | 1.00 | $400,000 | $0 |
Roll Value History
| 2026 | N/A | N/A | N/A | N/A | N/A |
| 2025 | $300,391 | $400,000 | $0 | $700,391 | $700,391 |
| 2024 | $303,363 | $360,000 | $0 | $663,363 | $663,363 |
| 2023 | $294,773 | $360,000 | $0 | $654,773 | $654,773 |
| 2022 | $269,512 | $350,000 | $0 | $619,512 | $619,512 |
| 2021 | $236,615 | $250,000 | $0 | $486,615 | $486,615 |
| 2020 | $217,259 | $250,000 | $0 | $467,259 | $467,259 |
| 2019 | $158,726 | $300,000 | $0 | $458,726 | $458,726 |
| 2018 | $159,108 | $245,000 | $0 | $404,108 | $404,108 |
| 2017 | $159,871 | $200,000 | $0 | $359,871 | $359,871 |
| 2016 | $161,395 | $200,000 | $0 | $361,395 | $361,395 |
| 2015 | $162,920 | $200,000 | $0 | $362,920 | $362,920 |
| 2014 | $109,034 | $180,000 | $0 | $289,034 | $289,034 |
| 2013 | $110,405 | $180,000 | $0 | $290,405 | $290,405 |
| 2012 | $111,603 | $150,000 | $0 | $261,603 | $261,603 |
| 2011 | $112,799 | $150,000 | $0 | $262,799 | $262,799 |
| 2010 | $116,135 | $150,000 | $0 | $266,135 | $266,135 |
| 2009 | $119,743 | $220,000 | $0 | $339,743 | $339,743 |
| 2008 | $112,660 | $200,000 | $0 | $312,660 | $312,660 |
| 2007 | $113,878 | $200,000 | $0 | $313,878 | $313,878 |
Deed and Sales History
| 1 | 06/21/2007 | WD | Warranty Deed | SUNDBERG, LANA | HALL, JAMES C | | | $485,000.00 | 72232 | 4206233 |
| 2 | 01/09/2006 | QCD | Quit Claim Deed | SUNDBERG, LANA | SUNDBERG, LANA | | | $0.00 | 62635 | 4173452 |
| 3 | 05/21/2002 | WD | Warranty Deed | SUNDBERG, LANA | SUNDBERG, LANA | | | $0.00 | 22084 | 4021800 |
| 4 | 10/22/2001 | WD | Warranty Deed | BAKER, NORMAN | SUNDBERG, LANA | | | $160,000.00 | 14154 | 4001058 |
| 5 | 04/26/2000 | WD | Warranty Deed | LONG, GEORGE J | BAKER, NORMAN | | | $112,500.00 | 1639 | 20007923 |
| 6 | 09/01/1990 | WD | Warranty Deed | PERPETUAL, PROFIT, I | LONG, GEORGE J | | | $42,000.00 | 5335 | 90017759 |
| 7 | 03/01/1989 | QCD | Quit Claim Deed | PRINCESS, MORNING S | PERPETUAL, PROFIT, I | | | $43,000.00 | 90921 | 89003230 |
| 8 | 07/01/1984 | WD | Warranty Deed | MINK, VIRGINIA H | PRINCESS, MORNING S | | | $0.00 | 41947 | 84000253 |
| 9 | 06/01/1984 | QCD | Quit Claim Deed | MINK, JULIUS A | MINK, VIRGINIA H | | | $0.00 | 41842 | 426388 |
| 10 | 11/01/1978 | EZ | Easement | Unknown | MINK, JULIUS A | | | $0.00 | 58651 | 0 |
Payout Agreement
| No payout information available.. |