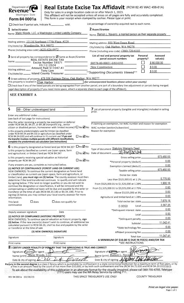
Property
Account |
| Property ID: | 11436 | Abbreviated Legal Description: | 2 TAFT DC - BG 64.68'S & 123.9'E OF SECR L1 OAK HARBOR S TO ML E ALG ML 126'N TP DUE E OF TPB W TPB 84/2 |
| Geographic ID: | R13202-265-3950 | Agent Code: | |
| Type: | Real | | |
| Tax Area: | 100 - APPRAISER-OH Schl Dist, in OH | Land Use Code | 93 |
| Open Space: | N | DFL | N |
| Historic Property: | N | Remodel Property: | N |
| Multi-Family Redevelopment: | N | | |
| Township: | 32 | Section: | 02 |
| Range: | R1 |
Location |
| Address: | | Mapsco: | |
| Neighborhood: | 12cOH-pioneer way | Map ID: | 87 |
| Neighborhood CD: | 12cOHpionr |
Owner |
| Name: | MASSEY, W L | Owner ID: | 70105 |
| Mailing Address: | 41 NE MIDWAY BLVD SUITE 101 OAK HARBOR, WA 98277-4953 | % Ownership: | 100.0000000000% |
| | | Exemptions: | |
Taxes and Assessment Details
Values
| (+) Improvement Homesite Value: | + | $0 | |
| (+) Improvement Non-Homesite Value: | + | $0 | |
| (+) Land Homesite Value: | + | $0 | |
| (+) Land Non-Homesite Value: | + | $1,260 | |
| (+) Curr Use (HS): | + | $0 | $0 |
| (+) Curr Use (NHS): | + | $0 | $0 |
| | | -------------------------- | |
| (=) Market Value: | = | $1,260 | |
| (–) Productivity Loss: | – | $0 | |
| | | -------------------------- | |
| (=) Subtotal: | = | $1,260 | |
| (+) Senior Appraised Value: | + | $0 | |
| (+) Non-Senior Appraised Value: | + | $1,260 | |
| | | -------------------------- | |
| (=) Total Appraised Value: | = | $1,260 | |
| (–) Senior Exemption Loss: | – | $0 | |
| (–) Exemption Loss: | – | $0 | |
| | | -------------------------- | |
| (=) Taxable Value: | = | $1,260 | |
Taxing Jurisdiction
| Owner: | MASSEY, W L | | |
| % Ownership: | 100.0000000000% | | |
| Total Value: | $1,260 | | |
| Tax Area: | 100 - APPRAISER-OH Schl Dist, in OH |
| CF | Conservation Futures | 0.0316035091 | $1,260 | $1,260 | $0.04 | | |
| CEM1 | Cemetery #1 | 0.0040320932 | $1,260 | $1,260 | $0.01 | | |
| COH | City of Oak Harbor | 2.3001546061 | $1,260 | $1,260 | $2.90 | | |
| OAKBOND | City of Oak Harbor BOND | 0.1926904192 | $1,260 | $1,260 | $0.24 | | |
| HOBOND | Hospital BOND | 0.1910887512 | $1,260 | $1,260 | $0.24 | | |
| HOGEN | Hospital GEN | 0.3902502903 | $1,260 | $1,260 | $0.49 | | |
| CE | County Current Expense | 0.3708482477 | $1,260 | $1,260 | $0.47 | | |
| ISLANDEMS | Hospital GEN (EMS) | 0.5000000000 | $1,260 | $1,260 | $0.63 | | |
| LIB | Library Sno-Isle GEN | 0.3153421757 | $1,260 | $1,260 | $0.40 | | |
| NWHIDPRMT | P & R N Whidbey GEN | 0.2004466701 | $1,260 | $1,260 | $0.25 | | |
| SCH201MO | School 201 Enrichment | 1.8559231640 | $1,260 | $1,260 | $2.34 | | |
| ST | State School | 1.3035497053 | $1,260 | $1,260 | $1.64 | | |
| ST2 | State School Part 2 | 0.8169543533 | $1,260 | $1,260 | $1.03 | | |
| | Total Tax Rate: | 8.4728839852 | | | | | |
| | | | | Taxes w/Current Exemptions: | $10.68 | | |
| | | | | Taxes w/o Exemptions: | $10.68 | | |
Improvement / Building
Sketch
| No sketches available for this property. |
Property Image
Land
| 1 | 55 | TIDES | 0.0000 | 0.00 | 126.00 | 0.00 | 1.00 | $1,260 | $0 |
Roll Value History
| 2026 | N/A | N/A | N/A | N/A | N/A |
| 2025 | $0 | $1,260 | $0 | $1,260 | $1,260 |
| 2024 | $0 | $1,260 | $0 | $1,260 | $1,260 |
| 2023 | $0 | $1,260 | $0 | $1,260 | $1,260 |
| 2022 | $0 | $1,260 | $0 | $1,260 | $1,260 |
| 2021 | $0 | $1,260 | $0 | $1,260 | $1,260 |
| 2020 | $0 | $1,260 | $0 | $1,260 | $1,260 |
| 2019 | $0 | $1,260 | $0 | $1,260 | $1,260 |
| 2018 | $0 | $1,260 | $0 | $1,260 | $1,260 |
| 2017 | $0 | $1,260 | $0 | $1,260 | $1,260 |
| 2016 | $0 | $1,260 | $0 | $1,260 | $1,260 |
| 2015 | $0 | $1,260 | $0 | $1,260 | $1,260 |
| 2014 | $0 | $1,260 | $0 | $1,260 | $1,260 |
| 2013 | $0 | $1,260 | $0 | $1,260 | $1,260 |
| 2012 | $0 | $1,260 | $0 | $1,260 | $1,260 |
| 2011 | $0 | $1,260 | $0 | $1,260 | $1,260 |
| 2010 | $0 | $1,260 | $0 | $1,260 | $1,260 |
| 2009 | $0 | $1,260 | $0 | $1,260 | $1,260 |
| 2008 | $0 | $1,260 | $0 | $1,260 | $1,260 |
| 2007 | $0 | $590 | $0 | $590 | $590 |
Deed and Sales History
| 1 | 11/01/1951 | TRUSTEED | Trustee's Deed | MASSEY, WILLIAM L | MASSEY, WILLIAM L | | | $0.00 | 0 | 99618 |
| 2 | 01/01/1900 | OTHER | Other - Misc. Documents | Unknown | MASSEY, WILLIAM L | | | $0.00 | 0 | 0 |
Payout Agreement
| No payout information available.. |