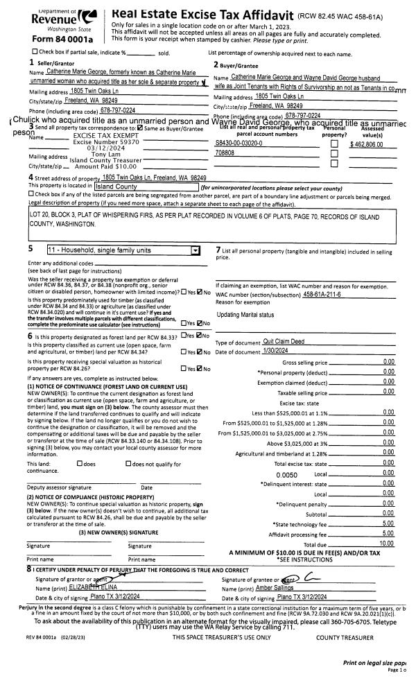
Property
Account |
| Property ID: | 11481 | Abbreviated Legal Description: | 1 TAFT DC - PT SD DC DESC 171D709(A28725) TGW ADJ TIDES DESC 169D544 (A28556) BG NW CR LOT 5 BLK 5 OAK GROVE N82*E6' S131 TPB W6' M/L TO WLN OF SD LOT S TO SW CR SD LOT S87*E163.6' M/ L TO SE CR OF SD LOT N TP DUE E OF TPB W156.9' TPB |
| Geographic ID: | R13202-271-4550 | Agent Code: | |
| Type: | Real | | |
| Tax Area: | 100 - APPRAISER-OH Schl Dist, in OH | Land Use Code | 93 |
| Open Space: | N | DFL | N |
| Historic Property: | N | Remodel Property: | N |
| Multi-Family Redevelopment: | N | | |
| Township: | 32 | Section: | 02 |
| Range: | R1 |
Location |
| Address: | SE PIONEER WAY OAK HARBOR, WA 98277 | Mapsco: | |
| Neighborhood: | 13cOH-pioneer way | Map ID: | 87 |
| Neighborhood CD: | 13cOHpionr |
Owner |
| Name: | FRANSSEN, JOE H | Owner ID: | 71857 |
| Mailing Address: | 33575 STATE ROUTE 20 OAK HARBOR, WA 98277-8744 | % Ownership: | 100.0000000000% |
| | | Exemptions: | |
Taxes and Assessment Details
Values
| (+) Improvement Homesite Value: | + | $0 | |
| (+) Improvement Non-Homesite Value: | + | $0 | |
| (+) Land Homesite Value: | + | $0 | |
| (+) Land Non-Homesite Value: | + | $800 | |
| (+) Curr Use (HS): | + | $0 | $0 |
| (+) Curr Use (NHS): | + | $0 | $0 |
| | | -------------------------- | |
| (=) Market Value: | = | $800 | |
| (–) Productivity Loss: | – | $0 | |
| | | -------------------------- | |
| (=) Subtotal: | = | $800 | |
| (+) Senior Appraised Value: | + | $0 | |
| (+) Non-Senior Appraised Value: | + | $800 | |
| | | -------------------------- | |
| (=) Total Appraised Value: | = | $800 | |
| (–) Senior Exemption Loss: | – | $0 | |
| (–) Exemption Loss: | – | $0 | |
| | | -------------------------- | |
| (=) Taxable Value: | = | $800 | |
Taxing Jurisdiction
| Owner: | FRANSSEN, JOE H | | |
| % Ownership: | 100.0000000000% | | |
| Total Value: | $800 | | |
| Tax Area: | 100 - APPRAISER-OH Schl Dist, in OH |
| CF | Conservation Futures | 0.0316035091 | $800 | $800 | $0.03 | | |
| CEM1 | Cemetery #1 | 0.0040320932 | $800 | $800 | $0.00 | | |
| COH | City of Oak Harbor | 2.3001546061 | $800 | $800 | $1.84 | | |
| OAKBOND | City of Oak Harbor BOND | 0.1926904192 | $800 | $800 | $0.15 | | |
| HOBOND | Hospital BOND | 0.1910887512 | $800 | $800 | $0.15 | | |
| HOGEN | Hospital GEN | 0.3902502903 | $800 | $800 | $0.31 | | |
| CE | County Current Expense | 0.3708482477 | $800 | $800 | $0.30 | | |
| ISLANDEMS | Hospital GEN (EMS) | 0.5000000000 | $800 | $800 | $0.40 | | |
| LIB | Library Sno-Isle GEN | 0.3153421757 | $800 | $800 | $0.25 | | |
| NWHIDPRMT | P & R N Whidbey GEN | 0.2004466701 | $800 | $800 | $0.16 | | |
| SCH201MO | School 201 Enrichment | 1.8559231640 | $800 | $800 | $1.48 | | |
| ST | State School | 1.3035497053 | $800 | $800 | $1.04 | | |
| ST2 | State School Part 2 | 0.8169543533 | $800 | $800 | $0.65 | | |
| | Total Tax Rate: | 8.4728839852 | | | | | |
| | | | | Taxes w/Current Exemptions: | $6.76 | | |
| | | | | Taxes w/o Exemptions: | $6.76 | | |
Improvement / Building
Sketch
| No sketches available for this property. |
Property Image
Land
| 1 | 55 | TIDES | 0.0000 | 0.00 | 80.00 | 0.00 | 1.00 | $800 | $0 |
Roll Value History
| 2026 | N/A | N/A | N/A | N/A | N/A |
| 2025 | $0 | $800 | $0 | $800 | $800 |
| 2024 | $0 | $800 | $0 | $800 | $800 |
| 2023 | $0 | $800 | $0 | $800 | $800 |
| 2022 | $0 | $800 | $0 | $800 | $800 |
| 2021 | $0 | $800 | $0 | $800 | $800 |
| 2020 | $0 | $800 | $0 | $800 | $800 |
| 2019 | $0 | $800 | $0 | $800 | $800 |
| 2018 | $0 | $800 | $0 | $800 | $800 |
| 2017 | $0 | $8,899 | $0 | $8,899 | $8,899 |
| 2016 | $0 | $8,899 | $0 | $8,899 | $8,899 |
| 2015 | $0 | $8,899 | $0 | $8,899 | $8,899 |
| 2014 | $0 | $8,899 | $0 | $8,899 | $8,899 |
| 2013 | $0 | $8,899 | $0 | $8,899 | $8,899 |
| 2012 | $0 | $8,899 | $0 | $8,899 | $8,899 |
| 2011 | $0 | $8,899 | $0 | $8,899 | $8,899 |
| 2010 | $0 | $8,899 | $0 | $8,899 | $8,899 |
| 2009 | $0 | $8,899 | $0 | $8,899 | $8,899 |
| 2008 | $0 | $8,899 | $0 | $8,899 | $8,899 |
| 2007 | $0 | $8,899 | $0 | $8,899 | $8,899 |
Deed and Sales History
| 1 | 05/01/1983 | WD | Warranty Deed | DENNIS, MARION E | FRANSSEN, JOSEPH H | | | $2,300.00 | 31416 | 410174 |
| 2 | 10/01/1980 | SHERIFFD | Sheriff Deed | DENNIS, MAHLON E | DENNIS, MARION E | | | $0.00 | 59182 | 0 |
| 3 | 01/01/1900 | OTHER | Other - Misc. Documents | Unknown | DENNIS, MAHLON E | | | $0.00 | 0 | 0 |
Payout Agreement
| No payout information available.. |