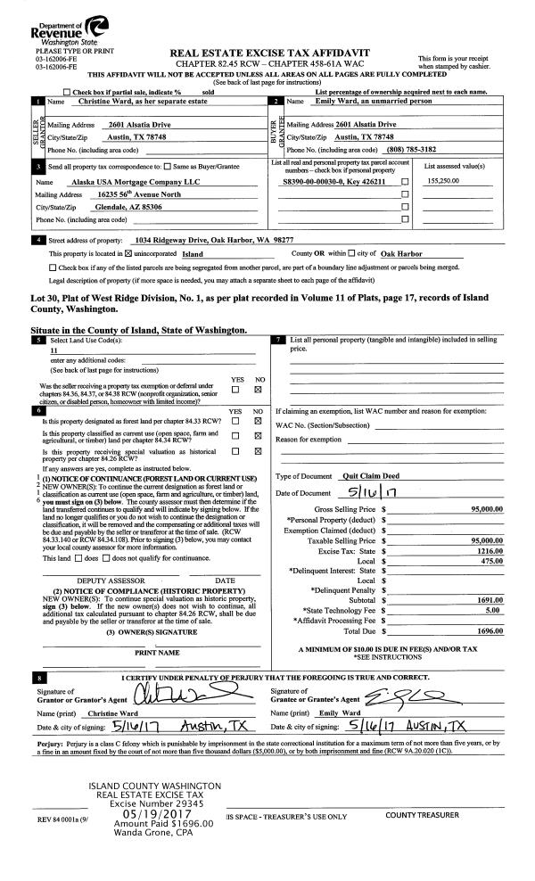
Property
Account |
| Property ID: | 114888 | Abbreviated Legal Description: | 62 - IN GL 3: N 1/3 OF S/2 OF FOLL DESC: BG PT TOP OF BLUFF 1152'W OF NECR GL 3 SLY ALG FACE OF BLUFF 1001' W298'M/L TO ML NLY 1025'TO MC E425'TPB EX E20'FOR RD |
| Geographic ID: | R32804-479-0200 | Agent Code: | |
| Type: | Real | | |
| Tax Area: | 710 - APPRAISER-S Whid Schl Dist, outside Langley, improved & 1 acre or less | Land Use Code | 11 |
| Open Space: | N | DFL | N |
| Historic Property: | N | Remodel Property: | N |
| Multi-Family Redevelopment: | N | | |
| Township: | 28 | Section: | 04 |
| Range: | R3 |
Location |
| Address: | 7264 MILL BEACH LN CLINTON, WA 98236 | Mapsco: | |
| Neighborhood: | Cycle 4 | Map ID: | 689 |
| Neighborhood CD: | 4 |
Owner |
| Name: | CAIN, MARY E | Owner ID: | 283119 |
| Mailing Address: | DAVID A SLAGLE 3942 NE 186TH ST LAKE FOREST PARK, WA 98155 | % Ownership: | 100.0000000000% |
| | | Exemptions: | |
Taxes and Assessment Details
Values
| (+) Improvement Homesite Value: | + | $0 | |
| (+) Improvement Non-Homesite Value: | + | $273,497 | |
| (+) Land Homesite Value: | + | $0 | |
| (+) Land Non-Homesite Value: | + | $750,000 | |
| (+) Curr Use (HS): | + | $0 | $0 |
| (+) Curr Use (NHS): | + | $0 | $0 |
| | | -------------------------- | |
| (=) Market Value: | = | $1,023,497 | |
| (–) Productivity Loss: | – | $0 | |
| | | -------------------------- | |
| (=) Subtotal: | = | $1,023,497 | |
| (+) Senior Appraised Value: | + | $0 | |
| (+) Non-Senior Appraised Value: | + | $1,023,497 | |
| | | -------------------------- | |
| (=) Total Appraised Value: | = | $1,023,497 | |
| (–) Senior Exemption Loss: | – | $0 | |
| (–) Exemption Loss: | – | $0 | |
| | | -------------------------- | |
| (=) Taxable Value: | = | $1,023,497 | |
Taxing Jurisdiction
| Owner: | CAIN, MARY E | | |
| % Ownership: | 100.0000000000% | | |
| Total Value: | $1,023,497 | | |
| Tax Area: | 710 - APPRAISER-S Whid Schl Dist, outside Langley, improved & 1 acre or less |
| CF | Conservation Futures | 0.0316035091 | $1,023,497 | $1,023,497 | $32.35 | | |
| FIRE3 | Fire & Rescue Dist #3 S Whidbey GEN | 1.2004855531 | $1,023,497 | $1,023,497 | $1,228.69 | | |
| HOBOND | Hospital BOND | 0.1910887512 | $1,023,497 | $1,023,497 | $195.58 | | |
| HOGEN | Hospital GEN | 0.3902502903 | $1,023,497 | $1,023,497 | $399.42 | | |
| CE | County Current Expense | 0.3708482477 | $1,023,497 | $1,023,497 | $379.56 | | |
| CR | County Roads | 0.4584763726 | $1,023,497 | $1,023,497 | $469.25 | | |
| ISLANDEMS | Hospital GEN (EMS) | 0.5000000000 | $1,023,497 | $1,023,497 | $511.75 | | |
| LIB | Library Sno-Isle GEN | 0.3153421757 | $1,023,497 | $1,023,497 | $322.75 | | |
| PORTWHID | Port of S Whidbey GEN | 0.1094540357 | $1,023,497 | $1,023,497 | $112.03 | | |
| SCH206BOND | School 206 BOND | 0.3161759235 | $1,023,497 | $1,023,497 | $323.61 | | |
| SCH206MO | School 206 Enrichment | 0.4547169547 | $1,023,497 | $1,023,497 | $465.40 | | |
| ST | State School | 1.3035497053 | $1,023,497 | $1,023,497 | $1,334.18 | | |
| ST2 | State School Part 2 | 0.8169543533 | $1,023,497 | $1,023,497 | $836.15 | | |
| SWHIDPRBD | P & R S Whidbey BOND | 0.0152817568 | $1,023,497 | $1,023,497 | $15.64 | | |
| SWHIDPRBD2 | P & R S Whidbey BOND2 | 0.0138911264 | $1,023,497 | $1,023,497 | $14.22 | | |
| SWHIDPRMT | P & R S Whidbey GEN | 0.2053334452 | $1,023,497 | $1,023,497 | $210.16 | | |
| | Total Tax Rate: | 6.6934522006 | | | | | |
| | | | | Taxes w/Current Exemptions: | $6,850.74 | | |
| | | | | Taxes w/o Exemptions: | $6,850.74 | | |
Improvement / Building
| Improvement #1: | RESIDENTIAL | State Code: | Y | 1582.4 sqft | Value: | $273,497 |
| Bathrooms: | 2 | Bedrooms: | 2 | | Ceiling: | BEAM PAINTED | Cooling: | HEAT PUMP/CONV/V | | Exterior Wall/Cover: | SHINGLE | Floor Covering: | HARDWOOD/CARP 20-80 | | Floor Structure: | WOOD W/SUBFLOOR | Foundation: | CONCRETE | | Interior Finish: | DRYWALL PAINT | Plumbing Fixture Cnt: | 10 | | Roof Slope: | 5" IN 12" | Roof Structure/Cover: | CJ ASPHALT |
|
| | Type | Description | Class CD | Sub Class CD | Year Built | Area |
| | BAS | BASE/MAIN FLOOR | 3 | 0 | 1990 | 1054.4 |
| | AGR | ATTACHED GARAGE | 3 | 0 | 1990 | 322.0 |
| | UPS | UPPER STORY | 3 | 0 | 1990 | 528.0 |
| | BAW | BALCONY WOOD RAIL | 3 | 0 | 1990 | 84.0 |
| | OWP | OPEN WOOD PORCH W/STEPS | 3 | 0 | 1990 | 598.0 |
| | OWP | OPEN WOOD PORCH W/STEPS | 3 | 0 | 1990 | 84.8 |
Sketch
Property Image
Land
| 1 | LB | LOW BANK | 0.3700 | 16117.20 | 55.00 | 0.00 | 1.00 | $750,000 | $0 |
Roll Value History
| 2026 | N/A | N/A | N/A | N/A | N/A |
| 2025 | $273,497 | $750,000 | $0 | $1,023,497 | $1,023,497 |
| 2024 | $272,517 | $900,000 | $0 | $1,172,517 | $1,172,517 |
| 2023 | $276,188 | $900,000 | $0 | $1,176,188 | $1,176,188 |
| 2022 | $253,406 | $900,000 | $0 | $1,153,406 | $1,153,406 |
| 2021 | $223,246 | $550,000 | $0 | $773,246 | $773,246 |
| 2020 | $209,605 | $515,000 | $0 | $724,605 | $724,605 |
| 2019 | $152,560 | $550,000 | $0 | $702,560 | $702,560 |
| 2018 | $153,042 | $550,000 | $0 | $703,042 | $703,042 |
| 2017 | $153,977 | $350,000 | $0 | $503,977 | $503,977 |
| 2016 | $155,900 | $350,000 | $0 | $505,900 | $505,900 |
| 2015 | $157,826 | $350,000 | $0 | $507,826 | $507,826 |
| 2014 | $151,898 | $350,000 | $0 | $501,898 | $501,898 |
| 2013 | $153,923 | $328,318 | $0 | $482,241 | $482,241 |
| 2012 | $155,948 | $328,318 | $0 | $484,266 | $484,266 |
| 2011 | $157,973 | $328,318 | $0 | $486,291 | $486,291 |
| 2010 | $165,806 | $328,318 | $0 | $494,124 | $494,124 |
| 2009 | $172,919 | $364,366 | $0 | $537,285 | $537,285 |
| 2008 | $172,155 | $363,748 | $0 | $535,903 | $535,903 |
| 2007 | $174,177 | $344,768 | $0 | $518,945 | $518,945 |
Deed and Sales History
| 1 | 11/16/2017 | SPWARDEED | Special Warranty Deed | CAIN, PHYLLIS M | CAIN, MARY E | | | $500,000.00 | 32126 | 4435044 |
| 2 | 05/01/1967 | TRUSTEED | Trustee's Deed | MUMM, JOSEPH D | CAIN, ALEXANDER L | | | $13,500.00 | 43045 | 0 |
| 3 | 01/01/1900 | OTHER | Other - Misc. Documents | Unknown | MUMM, JOSEPH D | | | $0.00 | 0 | 0 |
Payout Agreement
| No payout information available.. |