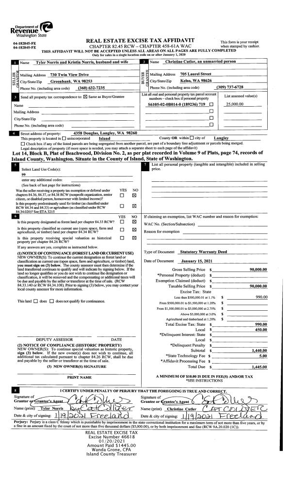
Property
Account |
| Property ID: | 114977 | Abbreviated Legal Description: | TR 32 - S/2 N/2 NE NW TGW EZ AF#95015436 |
| Geographic ID: | R32804-516-2040 | Agent Code: | |
| Type: | Real | | |
| Tax Area: | 712 - APPRAISER-S Whid Schl Dist, outside Langley, improved, greater than 1 acre | Land Use Code | 11 |
| Open Space: | N | DFL | N |
| Historic Property: | N | Remodel Property: | N |
| Multi-Family Redevelopment: | N | | |
| Township: | 28 | Section: | 04 |
| Range: | R3 |
Location |
| Address: | 7230 BAILEY RD CLINTON, WA 98236 | Mapsco: | |
| Neighborhood: | Cycle 4 | Map ID: | 689 |
| Neighborhood CD: | 4 |
Owner |
| Name: | KJELLANDER, RICHARD | Owner ID: | 295851 |
| Mailing Address: | K C KJELLANDER 7230 BAILEY RD CLINTON, WA 98236 | % Ownership: | 100.0000000000% |
| | | Exemptions: | |
Taxes and Assessment Details
Values
| (+) Improvement Homesite Value: | + | $0 | |
| (+) Improvement Non-Homesite Value: | + | $705,062 | |
| (+) Land Homesite Value: | + | $0 | |
| (+) Land Non-Homesite Value: | + | $390,000 | |
| (+) Curr Use (HS): | + | $0 | $0 |
| (+) Curr Use (NHS): | + | $0 | $0 |
| | | -------------------------- | |
| (=) Market Value: | = | $1,095,062 | |
| (–) Productivity Loss: | – | $0 | |
| | | -------------------------- | |
| (=) Subtotal: | = | $1,095,062 | |
| (+) Senior Appraised Value: | + | $0 | |
| (+) Non-Senior Appraised Value: | + | $1,095,062 | |
| | | -------------------------- | |
| (=) Total Appraised Value: | = | $1,095,062 | |
| (–) Senior Exemption Loss: | – | $0 | |
| (–) Exemption Loss: | – | $0 | |
| | | -------------------------- | |
| (=) Taxable Value: | = | $1,095,062 | |
Taxing Jurisdiction
| Owner: | KJELLANDER, RICHARD | | |
| % Ownership: | 100.0000000000% | | |
| Total Value: | $1,095,062 | | |
| Tax Area: | 712 - APPRAISER-S Whid Schl Dist, outside Langley, improved, greater than 1 acre |
| CF | Conservation Futures | 0.0316035091 | $1,095,062 | $1,095,062 | $34.61 | | |
| FIRE3 | Fire & Rescue Dist #3 S Whidbey GEN | 1.2004855531 | $1,095,062 | $1,095,062 | $1,314.61 | | |
| HOBOND | Hospital BOND | 0.1910887512 | $1,095,062 | $1,095,062 | $209.25 | | |
| HOGEN | Hospital GEN | 0.3902502903 | $1,095,062 | $1,095,062 | $427.35 | | |
| CE | County Current Expense | 0.3708482477 | $1,095,062 | $1,095,062 | $406.10 | | |
| CR | County Roads | 0.4584763726 | $1,095,062 | $1,095,062 | $502.06 | | |
| ISLANDEMS | Hospital GEN (EMS) | 0.5000000000 | $1,095,062 | $1,095,062 | $547.53 | | |
| LIB | Library Sno-Isle GEN | 0.3153421757 | $1,095,062 | $1,095,062 | $345.32 | | |
| PORTWHID | Port of S Whidbey GEN | 0.1094540357 | $1,095,062 | $1,095,062 | $119.86 | | |
| SCH206BOND | School 206 BOND | 0.3161759235 | $1,095,062 | $1,095,062 | $346.23 | | |
| SCH206MO | School 206 Enrichment | 0.4547169547 | $1,095,062 | $1,095,062 | $497.94 | | |
| ST | State School | 1.3035497053 | $1,095,062 | $1,095,062 | $1,427.47 | | |
| ST2 | State School Part 2 | 0.8169543533 | $1,095,062 | $1,095,062 | $894.62 | | |
| SWHIDPRBD | P & R S Whidbey BOND | 0.0152817568 | $1,095,062 | $1,095,062 | $16.73 | | |
| SWHIDPRBD2 | P & R S Whidbey BOND2 | 0.0138911264 | $1,095,062 | $1,095,062 | $15.21 | | |
| SWHIDPRMT | P & R S Whidbey GEN | 0.2053334452 | $1,095,062 | $1,095,062 | $224.85 | | |
| | Total Tax Rate: | 6.6934522006 | | | | | |
| | | | | Taxes w/Current Exemptions: | $7,329.74 | | |
| | | | | Taxes w/o Exemptions: | $7,329.74 | | |
Improvement / Building
| Improvement #1: | RESIDENTIAL | State Code: | Y | 3536.0 sqft | Value: | $705,062 |
| Bathrooms: | 3 | Bedrooms: | 3 | | Ceiling: | DRYWALL PAINTED | Cooling: | HEAT PUMP/CONV/V | | Exterior Wall/Cover: | WOOD SIDING | Floor Covering: | HARDWOOD/CARP 60-40 | | Floor Structure: | WOOD W/SUBFLOOR | Foundation: | CONCRETE | | Interior Finish: | DRYWALL PAINT | Plumbing Fixture Cnt: | 14 | | Roof Slope: | 18" IN 12" | Roof Structure/Cover: | CJ ALUMINIUM HEAVY |
|
| | Type | Description | Class CD | Sub Class CD | Year Built | Area |
| | BAS | BASE/MAIN FLOOR | 4 | 0 | 1996 | 2004.0 |
| | DWN | DOWNSTAIRS LIVING AREA | 4 | 0 | 1996 | 240.0 |
| | OP1 | OPEN PORCH SLAB | 4 | 0 | 1996 | 218.0 |
| | OP2 | OPEN PORCH W/STEPS | 4 | 0 | 1996 | 40.0 |
| | OP4 | OPEN PORCH W/CEILING-ROOF | 4 | 0 | 1996 | 160.0 |
| | BIG | BUILT IN GARAGE | 4 | 0 | 1996 | 484.0 |
| | OWP | OPEN WOOD PORCH W/STEPS | 4 | 0 | 1996 | 595.0 |
| | UPH | HALF STORY | 4 | 0 | 1996 | 1292.0 |
Sketch
| No sketches available for this property. |
Property Image
Land
| 1 | 32 | AC (03.01-09.99) | 9.6400 | 419918.40 | 9.64 | 0.00 | 1.00 | $390,000 | $0 |
Roll Value History
| 2026 | N/A | N/A | N/A | N/A | N/A |
| 2025 | $705,062 | $390,000 | $0 | $1,095,062 | $1,095,062 |
| 2024 | $713,531 | $360,000 | $0 | $1,073,531 | $1,073,531 |
| 2023 | $722,001 | $350,000 | $0 | $1,072,001 | $1,072,001 |
| 2022 | $661,448 | $350,000 | $0 | $1,011,448 | $1,011,448 |
| 2021 | $461,006 | $230,000 | $0 | $691,006 | $691,006 |
| 2020 | $403,631 | $190,000 | $0 | $593,631 | $593,631 |
| 2019 | $318,450 | $250,000 | $0 | $568,450 | $568,450 |
| 2018 | $319,453 | $245,000 | $0 | $564,453 | $564,453 |
| 2017 | $321,464 | $200,000 | $0 | $521,464 | $521,464 |
| 2016 | $325,481 | $195,000 | $0 | $520,481 | $520,481 |
| 2015 | $329,500 | $195,000 | $0 | $524,500 | $524,500 |
| 2014 | $343,240 | $212,080 | $0 | $555,320 | $555,320 |
| 2013 | $347,476 | $212,080 | $0 | $559,556 | $559,556 |
| 2012 | $351,710 | $212,080 | $0 | $563,790 | $563,790 |
| 2011 | $355,947 | $212,080 | $0 | $568,027 | $568,027 |
| 2010 | $370,500 | $212,080 | $0 | $582,580 | $582,580 |
| 2009 | $386,457 | $311,376 | $0 | $697,833 | $697,833 |
| 2008 | $393,343 | $311,376 | $0 | $704,719 | $704,719 |
| 2007 | $397,993 | $191,376 | $0 | $589,369 | $589,369 |
Deed and Sales History
| 1 | 05/21/2021 | WD | Warranty Deed | MAGNUSON, ADRIAN | KJELLANDER, RICHARD | | | $1,100,000.00 | 48401 | 4520209 |
| 2 | 04/11/2014 | WD | Warranty Deed | COWGER, MARILYN L | MAGNUSON, ADRIAN | | | $495,000.00 | 14890 | 4357868 |
| 3 | 07/01/1985 | REC | Real Estate Contract | DOBSON, ROY G | COWGER, MARILYN L | | | $50,000.00 | 51917 | 85007417 |
| 4 | 01/01/1900 | OTHER | Other - Misc. Documents | Unknown | DOBSON, ROY G | | | $0.00 | 0 | 0 |
Payout Agreement
| No payout information available.. |