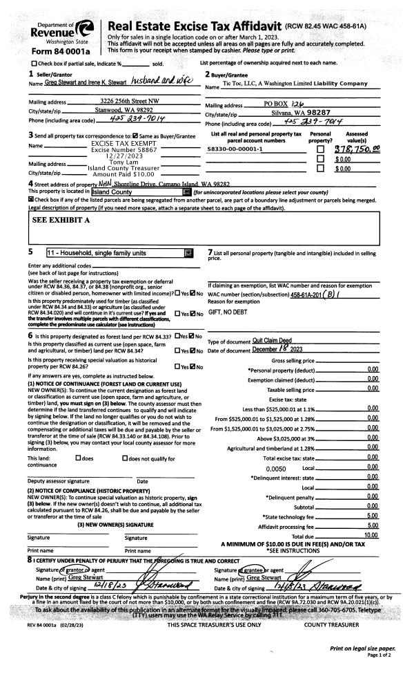
Property
Account |
| Property ID: | 115011 | Abbreviated Legal Description: | TR31 - N/2 N/2 NE NW & N/2 N/2 NW NE SLY OF RD TGW & SUB EZ AF#95015436 |
| Geographic ID: | R32804-549-2040 | Agent Code: | |
| Type: | Real | | |
| Tax Area: | 712 - APPRAISER-S Whid Schl Dist, outside Langley, improved, greater than 1 acre | Land Use Code | 11 |
| Open Space: | N | DFL | N |
| Historic Property: | N | Remodel Property: | N |
| Multi-Family Redevelopment: | N | | |
| Township: | 28 | Section: | 04 |
| Range: | R3 |
Location |
| Address: | 7212 BAILEY RD CLINTON, WA 98236 | Mapsco: | |
| Neighborhood: | Cycle 4 | Map ID: | 689 |
| Neighborhood CD: | 4 |
Owner |
| Name: | KJELLANDER, K. C. | Owner ID: | 305085 |
| Mailing Address: | RICHARD KJELLANDER 7230 BAILEY RD CLINTON, WA 98236 | % Ownership: | 100.0000000000% |
| | | Exemptions: | |
Taxes and Assessment Details
Values
| (+) Improvement Homesite Value: | + | $0 | |
| (+) Improvement Non-Homesite Value: | + | $467,020 | |
| (+) Land Homesite Value: | + | $0 | |
| (+) Land Non-Homesite Value: | + | $460,000 | |
| (+) Curr Use (HS): | + | $0 | $0 |
| (+) Curr Use (NHS): | + | $0 | $0 |
| | | -------------------------- | |
| (=) Market Value: | = | $927,020 | |
| (–) Productivity Loss: | – | $0 | |
| | | -------------------------- | |
| (=) Subtotal: | = | $927,020 | |
| (+) Senior Appraised Value: | + | $0 | |
| (+) Non-Senior Appraised Value: | + | $927,020 | |
| | | -------------------------- | |
| (=) Total Appraised Value: | = | $927,020 | |
| (–) Senior Exemption Loss: | – | $0 | |
| (–) Exemption Loss: | – | $0 | |
| | | -------------------------- | |
| (=) Taxable Value: | = | $927,020 | |
Taxing Jurisdiction
| Owner: | KJELLANDER, K. C. | | |
| % Ownership: | 100.0000000000% | | |
| Total Value: | $927,020 | | |
| Tax Area: | 712 - APPRAISER-S Whid Schl Dist, outside Langley, improved, greater than 1 acre |
| CF | Conservation Futures | 0.0316035091 | $927,020 | $927,020 | $29.30 | | |
| FIRE3 | Fire & Rescue Dist #3 S Whidbey GEN | 1.2004855531 | $927,020 | $927,020 | $1,112.87 | | |
| HOBOND | Hospital BOND | 0.1910887512 | $927,020 | $927,020 | $177.14 | | |
| HOGEN | Hospital GEN | 0.3902502903 | $927,020 | $927,020 | $361.77 | | |
| CE | County Current Expense | 0.3708482477 | $927,020 | $927,020 | $343.78 | | |
| CR | County Roads | 0.4584763726 | $927,020 | $927,020 | $425.02 | | |
| ISLANDEMS | Hospital GEN (EMS) | 0.5000000000 | $927,020 | $927,020 | $463.51 | | |
| LIB | Library Sno-Isle GEN | 0.3153421757 | $927,020 | $927,020 | $292.33 | | |
| PORTWHID | Port of S Whidbey GEN | 0.1094540357 | $927,020 | $927,020 | $101.47 | | |
| SCH206BOND | School 206 BOND | 0.3161759235 | $927,020 | $927,020 | $293.10 | | |
| SCH206MO | School 206 Enrichment | 0.4547169547 | $927,020 | $927,020 | $421.53 | | |
| ST | State School | 1.3035497053 | $927,020 | $927,020 | $1,208.42 | | |
| ST2 | State School Part 2 | 0.8169543533 | $927,020 | $927,020 | $757.33 | | |
| SWHIDPRBD | P & R S Whidbey BOND | 0.0152817568 | $927,020 | $927,020 | $14.17 | | |
| SWHIDPRBD2 | P & R S Whidbey BOND2 | 0.0138911264 | $927,020 | $927,020 | $12.88 | | |
| SWHIDPRMT | P & R S Whidbey GEN | 0.2053334452 | $927,020 | $927,020 | $190.35 | | |
| | Total Tax Rate: | 6.6934522006 | | | | | |
| | | | | Taxes w/Current Exemptions: | $6,204.97 | | |
| | | | | Taxes w/o Exemptions: | $6,204.97 | | |
Improvement / Building
| Improvement #1: | RESIDENTIAL | State Code: | Y | 2838.6 sqft | Value: | $467,020 |
| Bathrooms: | 3 | Bedrooms: | 2 | | Ceiling: | DRYWALL PAINTED | Cooling: | HEAT PUMP/CONV/V | | Exterior Wall/Cover: | WOOD SIDING | Floor Covering: | HARDWOOD 100% | | Floor Structure: | WOOD W/SUBFLOOR | Foundation: | CONCRETE | | Interior Finish: | DRYWALL PAINT | Plumbing Fixture Cnt: | 9 | | Roof Slope: | 8" IN 12" | Roof Structure/Cover: | CJ ASPHALT |
|
| | Type | Description | Class CD | Sub Class CD | Year Built | Area |
| | BAS | BASE/MAIN FLOOR | 4 | 0 | 1935 | 1654.6 |
| | DWN | DOWNSTAIRS LIVING AREA | 4 | 0 | 1935 | 1184.0 |
| | AGR | ATTACHED GARAGE | 4 | 0 | 1935 | 528.0 |
| | OWP | OPEN WOOD PORCH W/STEPS | 4 | 0 | 1935 | 330.6 |
| | OWR | OPEN WOOD PORCH W/STEPS/ROOF | 4 | 0 | 1935 | 36.0 |
| | ENP | ENCLOSED PORCH | 4 | 0 | 1935 | 72.0 |
| | ENP | ENCLOSED PORCH | 4 | 0 | 1935 | 111.6 |
| | CPD | OPEN CARPORT DIRT FLOOR | 4 | 0 | 1935 | 888.0 |
| | CPD | OPEN CARPORT DIRT FLOOR | 4 | 0 | 1935 | 840.0 |
Sketch
Property Image
Land
| 1 | 35 | AC (10.00-30.99) | 10.1400 | 441698.40 | 0.00 | 0.00 | 1.00 | $460,000 | $0 |
Roll Value History
| 2026 | N/A | N/A | N/A | N/A | N/A |
| 2025 | $467,020 | $460,000 | $0 | $927,020 | $927,020 |
| 2024 | $473,394 | $430,000 | $0 | $903,394 | $903,394 |
| 2023 | $479,771 | $390,000 | $0 | $869,771 | $869,771 |
| 2022 | $334,926 | $380,000 | $0 | $714,926 | $714,926 |
| 2021 | $295,512 | $290,000 | $0 | $585,512 | $585,512 |
| 2020 | $278,411 | $275,000 | $0 | $553,411 | $553,411 |
| 2019 | $205,917 | $375,000 | $0 | $580,917 | $580,917 |
| 2018 | $206,672 | $275,000 | $0 | $481,672 | $481,672 |
| 2017 | $208,110 | $230,000 | $0 | $438,110 | $438,110 |
| 2016 | $211,127 | $195,000 | $0 | $406,127 | $406,127 |
| 2015 | $213,144 | $195,000 | $0 | $408,144 | $408,144 |
| 2014 | $205,771 | $182,520 | $0 | $388,291 | $388,291 |
| 2013 | $208,634 | $182,520 | $0 | $391,154 | $391,154 |
| 2012 | $211,493 | $182,520 | $0 | $394,013 | $394,013 |
| 2011 | $214,356 | $182,520 | $0 | $396,876 | $396,876 |
| 2010 | $229,360 | $182,520 | $0 | $411,880 | $411,880 |
| 2009 | $239,203 | $263,640 | $0 | $502,843 | $502,843 |
| 2008 | $239,935 | $405,600 | $0 | $645,535 | $645,535 |
| 2007 | $243,100 | $344,760 | $0 | $587,860 | $587,860 |
Deed and Sales History
| 1 | 07/18/2022 | WD | Warranty Deed | LAMSON, FREDERICK W | KJELLANDER, K. C. | | | $1,000,000.00 | 53851 | 4548506 |
| 2 | 08/01/1983 | REC | Real Estate Contract | DOBSON, ROY G | LAMSON, FREDERICK W | | | $192,500.00 | 32476 | 414392 |
| 3 | 01/01/1900 | OTHER | Other - Misc. Documents | Unknown | DOBSON, ROY G | | | $0.00 | 0 | 0 |
Payout Agreement
| No payout information available.. |