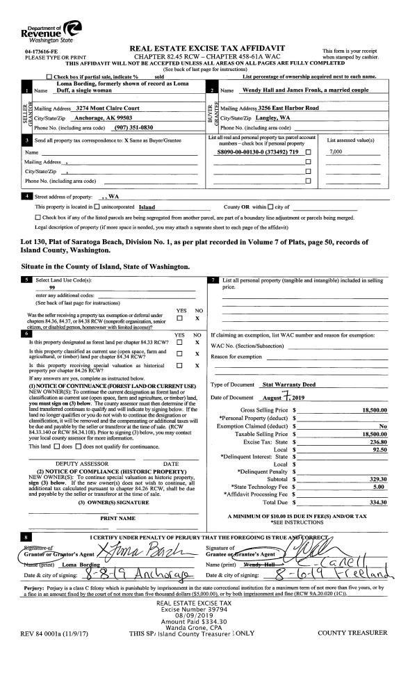
Property
Account |
| Property ID: | 115020 | Abbreviated Legal Description: | 25 - IN GL 1 SEC 5 & IN GL 2 SEC 8-28-3E DESC: BG 813.10'W & 20'S OF SWCR SEC 4-28-3E N63*W245' M/L TO ML SEC 5 SLY ALG SD ML 113' TP 20'S OF COM LN BETW SD SECS 5 & 8 ELY PARA/W & AT CONSTANT DISTANCE 20' FR SD COM LN BETW SD SECS 5 & 8 230' TPB EX PT |
| Geographic ID: | R32805-002-4300 | Agent Code: | |
| Type: | Real | | |
| Tax Area: | 710 - APPRAISER-S Whid Schl Dist, outside Langley, improved & 1 acre or less | Land Use Code | 11 |
| Open Space: | N | DFL | N |
| Historic Property: | N | Remodel Property: | N |
| Multi-Family Redevelopment: | N | | |
| Township: | 28 | Section: | 05 |
| Range: | R3 |
Location |
| Address: | 7600 MAXWELTON RD CLINTON, WA 98236 | Mapsco: | |
| Neighborhood: | Cycle 4 | Map ID: | 691 |
| Neighborhood CD: | 4 |
Owner |
| Name: | ANDERSON, MARK H | Owner ID: | 270371 |
| Mailing Address: | CAROL ANDERSON 7600 MAXWELTON ROAD CLINTON, WA 98236 | % Ownership: | 100.0000000000% |
| | | Exemptions: | |
Taxes and Assessment Details
Values
| (+) Improvement Homesite Value: | + | $0 | |
| (+) Improvement Non-Homesite Value: | + | $899,301 | |
| (+) Land Homesite Value: | + | $0 | |
| (+) Land Non-Homesite Value: | + | $951,650 | |
| (+) Curr Use (HS): | + | $0 | $0 |
| (+) Curr Use (NHS): | + | $0 | $0 |
| | | -------------------------- | |
| (=) Market Value: | = | $1,850,951 | |
| (–) Productivity Loss: | – | $0 | |
| | | -------------------------- | |
| (=) Subtotal: | = | $1,850,951 | |
| (+) Senior Appraised Value: | + | $0 | |
| (+) Non-Senior Appraised Value: | + | $1,850,951 | |
| | | -------------------------- | |
| (=) Total Appraised Value: | = | $1,850,951 | |
| (–) Senior Exemption Loss: | – | $0 | |
| (–) Exemption Loss: | – | $0 | |
| | | -------------------------- | |
| (=) Taxable Value: | = | $1,850,951 | |
Taxing Jurisdiction
| Owner: | ANDERSON, MARK H | | |
| % Ownership: | 100.0000000000% | | |
| Total Value: | $1,850,951 | | |
| Tax Area: | 710 - APPRAISER-S Whid Schl Dist, outside Langley, improved & 1 acre or less |
| CF | Conservation Futures | 0.0316035091 | $1,850,951 | $1,850,951 | $58.50 | | |
| FIRE3 | Fire & Rescue Dist #3 S Whidbey GEN | 1.2004855531 | $1,850,951 | $1,850,951 | $2,222.04 | | |
| HOBOND | Hospital BOND | 0.1910887512 | $1,850,951 | $1,850,951 | $353.70 | | |
| HOGEN | Hospital GEN | 0.3902502903 | $1,850,951 | $1,850,951 | $722.33 | | |
| CE | County Current Expense | 0.3708482477 | $1,850,951 | $1,850,951 | $686.42 | | |
| CR | County Roads | 0.4584763726 | $1,850,951 | $1,850,951 | $848.62 | | |
| ISLANDEMS | Hospital GEN (EMS) | 0.5000000000 | $1,850,951 | $1,850,951 | $925.48 | | |
| LIB | Library Sno-Isle GEN | 0.3153421757 | $1,850,951 | $1,850,951 | $583.68 | | |
| PORTWHID | Port of S Whidbey GEN | 0.1094540357 | $1,850,951 | $1,850,951 | $202.59 | | |
| SCH206BOND | School 206 BOND | 0.3161759235 | $1,850,951 | $1,850,951 | $585.23 | | |
| SCH206MO | School 206 Enrichment | 0.4547169547 | $1,850,951 | $1,850,951 | $841.66 | | |
| ST | State School | 1.3035497053 | $1,850,951 | $1,850,951 | $2,412.81 | | |
| ST2 | State School Part 2 | 0.8169543533 | $1,850,951 | $1,850,951 | $1,512.14 | | |
| SWHIDPRBD | P & R S Whidbey BOND | 0.0152817568 | $1,850,951 | $1,850,951 | $28.29 | | |
| SWHIDPRBD2 | P & R S Whidbey BOND2 | 0.0138911264 | $1,850,951 | $1,850,951 | $25.71 | | |
| SWHIDPRMT | P & R S Whidbey GEN | 0.2053334452 | $1,850,951 | $1,850,951 | $380.06 | | |
| | Total Tax Rate: | 6.6934522006 | | | | | |
| | | | | Taxes w/Current Exemptions: | $12,389.26 | | |
| | | | | Taxes w/o Exemptions: | $12,389.26 | | |
Improvement / Building
| Improvement #1: | RESIDENTIAL | State Code: | Y | 2910.7 sqft | Value: | $899,301 |
| Bathrooms: | 4 | Bedrooms: | 3 | | Ceiling: | BEAM PAINTED | Cooling: | HEAT PUMP/CONV/V | | Exterior Wall/Cover: | CEMENT FIBER | Floor Covering: | SLATE | | Floor Structure: | WOOD W/SUBFLOOR | Foundation: | PIERS/CONCRETE | | Interior Finish: | DRYWALL PAINT | Plumbing Fixture Cnt: | 16 | | Roof Slope: | 8" IN 12" | Roof Structure/Cover: | BEAM ALUMINUM HEAVY |
|
| | Type | Description | Class CD | Sub Class CD | Year Built | Area |
| | BAS | BASE/MAIN FLOOR | 5 | 0 | 2017 | 2910.7 |
| | UTY | STORAGE/UTILITY | 5 | 0 | 2017 | 74.6 |
| | OWP | OPEN WOOD PORCH W/STEPS | 5 | 0 | 2017 | 708.6 |
| | OWP | OPEN WOOD PORCH W/STEPS | 5 | 0 | 2017 | 139.8 |
| | DGR | DETACHED GARAGE | 5 | 0 | 2017 | 990.0 |
Sketch
Property Image
Land
| 1 | LB | LOW BANK | 0.3100 | 13503.60 | 168.10 | 0.00 | 1.00 | $950,000 | $0 |
| 2 | 55 | TIDES | 0.0000 | 0.00 | 168.10 | 0.00 | 1.00 | $1,650 | $0 |
Roll Value History
| 2026 | N/A | N/A | N/A | N/A | N/A |
| 2025 | $899,301 | $951,650 | $0 | $1,850,951 | $1,850,951 |
| 2024 | $894,453 | $951,650 | $0 | $1,846,103 | $1,846,103 |
| 2023 | $901,666 | $951,650 | $0 | $1,853,316 | $1,853,316 |
| 2022 | $823,012 | $901,650 | $0 | $1,724,662 | $1,724,662 |
| 2021 | $721,345 | $631,650 | $0 | $1,352,995 | $1,352,995 |
| 2020 | $701,687 | $631,650 | $0 | $1,333,337 | $1,333,337 |
| 2019 | $593,890 | $681,650 | $0 | $1,275,540 | $1,275,540 |
| 2018 | $532,368 | $601,650 | $0 | $1,134,018 | $1,134,018 |
| 2017 | $56,087 | $601,650 | $0 | $657,737 | $657,737 |
| 2016 | $4,001 | $601,650 | $0 | $605,651 | $605,651 |
| 2015 | $22,598 | $701,650 | $0 | $724,248 | $724,248 |
| 2014 | $26,733 | $701,650 | $0 | $728,383 | $728,383 |
| 2013 | $27,277 | $912,829 | $0 | $940,106 | $940,106 |
| 2012 | $27,821 | $912,829 | $0 | $940,650 | $940,650 |
| 2011 | $28,365 | $912,829 | $0 | $941,194 | $941,194 |
| 2010 | $29,781 | $912,829 | $0 | $942,610 | $942,610 |
| 2009 | $31,275 | $1,140,624 | $0 | $1,171,899 | $1,171,899 |
| 2008 | $29,355 | $1,140,624 | $0 | $1,169,979 | $1,169,979 |
| 2007 | $29,856 | $866,115 | $0 | $895,971 | $895,971 |
Deed and Sales History
| 1 | 10/22/2014 | WD | Warranty Deed | ERIKSON, GUST M | ANDERSON, MARK H | | | $635,000.00 | 17282 | 4367395 |
| 2 | 10/01/2014 | QCD | Quit Claim Deed | ERIKSON, GUST M | ERIKSON, GUST M | | | $0.00 | 17069 | 4366594 |
| 3 | 04/01/1989 | QCD | Quit Claim Deed | ERIKSON, ESTHER E | ERIKSON, GUST M | | | $0.00 | 91182 | 89004130 |
| 4 | 03/01/1988 | QCD | Quit Claim Deed | MACKIE, CLAYTON H | ERIKSON, ESTHER E | | | $0.00 | 81622 | 88006126 |
| 5 | 01/01/1900 | OTHER | Other - Misc. Documents | ERIKSON, RANDOLPH | MACKIE, CLAYTON H | | | $0.00 | 0 | 0 |
| 6 | 01/01/1900 | TRUSTEED | Trustee's Deed | Unknown | ERIKSON, RANDOLPH | | | $0.00 | 0 | 60576 |
Payout Agreement
| No payout information available.. |