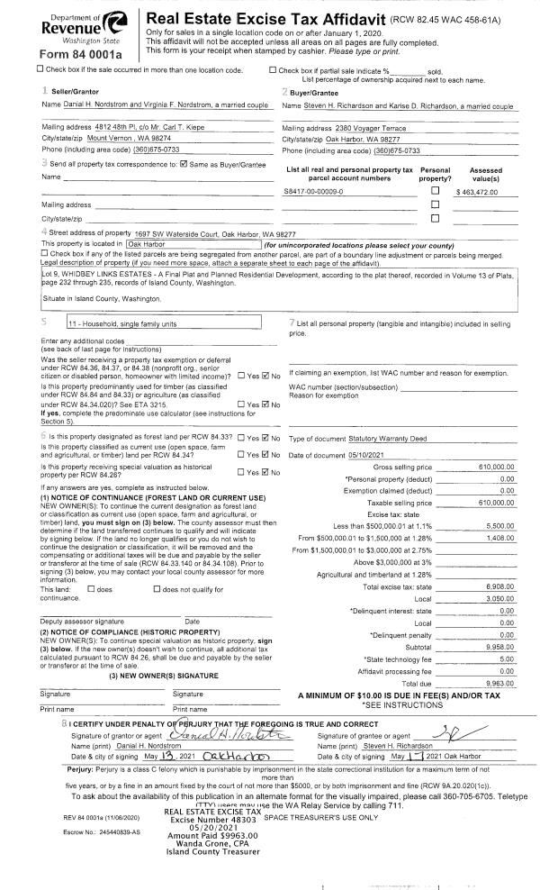
Property
Account |
| Property ID: | 115084 | Abbreviated Legal Description: | 92 - IN GL1: BG SWCR GL1 E22' TO ELN RD N26*E168' TPB N26*E90' S63*E125' S26*W90' N63*W TPB TGW EZ BCH & TIDE |
| Geographic ID: | R32805-018-4480 | Agent Code: | |
| Type: | Real | | |
| Tax Area: | 710 - APPRAISER-S Whid Schl Dist, outside Langley, improved & 1 acre or less | Land Use Code | 11 |
| Open Space: | N | DFL | N |
| Historic Property: | N | Remodel Property: | N |
| Multi-Family Redevelopment: | N | | |
| Township: | 28 | Section: | 05 |
| Range: | R3 |
Location |
| Address: | 7585 MAXWELTON RD CLINTON, WA 98236 | Mapsco: | |
| Neighborhood: | Cycle 4 | Map ID: | 691 |
| Neighborhood CD: | 4 |
Owner |
| Name: | STONE, BARBARA | Owner ID: | 253298 |
| Mailing Address: | 7568 MAXWELTON RD CLINTON, WA 98236 | % Ownership: | 100.0000000000% |
| | | Exemptions: | |
Taxes and Assessment Details
Values
| (+) Improvement Homesite Value: | + | $0 | |
| (+) Improvement Non-Homesite Value: | + | $169,132 | |
| (+) Land Homesite Value: | + | $0 | |
| (+) Land Non-Homesite Value: | + | $240,000 | |
| (+) Curr Use (HS): | + | $0 | $0 |
| (+) Curr Use (NHS): | + | $0 | $0 |
| | | -------------------------- | |
| (=) Market Value: | = | $409,132 | |
| (–) Productivity Loss: | – | $0 | |
| | | -------------------------- | |
| (=) Subtotal: | = | $409,132 | |
| (+) Senior Appraised Value: | + | $0 | |
| (+) Non-Senior Appraised Value: | + | $409,132 | |
| | | -------------------------- | |
| (=) Total Appraised Value: | = | $409,132 | |
| (–) Senior Exemption Loss: | – | $0 | |
| (–) Exemption Loss: | – | $0 | |
| | | -------------------------- | |
| (=) Taxable Value: | = | $409,132 | |
Taxing Jurisdiction
| Owner: | STONE, BARBARA | | |
| % Ownership: | 100.0000000000% | | |
| Total Value: | $409,132 | | |
| Tax Area: | 710 - APPRAISER-S Whid Schl Dist, outside Langley, improved & 1 acre or less |
| CF | Conservation Futures | 0.0316035091 | $409,132 | $409,132 | $12.93 | | |
| FIRE3 | Fire & Rescue Dist #3 S Whidbey GEN | 1.2004855531 | $409,132 | $409,132 | $491.16 | | |
| HOBOND | Hospital BOND | 0.1910887512 | $409,132 | $409,132 | $78.18 | | |
| HOGEN | Hospital GEN | 0.3902502903 | $409,132 | $409,132 | $159.66 | | |
| CE | County Current Expense | 0.3708482477 | $409,132 | $409,132 | $151.73 | | |
| CR | County Roads | 0.4584763726 | $409,132 | $409,132 | $187.58 | | |
| ISLANDEMS | Hospital GEN (EMS) | 0.5000000000 | $409,132 | $409,132 | $204.57 | | |
| LIB | Library Sno-Isle GEN | 0.3153421757 | $409,132 | $409,132 | $129.02 | | |
| PORTWHID | Port of S Whidbey GEN | 0.1094540357 | $409,132 | $409,132 | $44.78 | | |
| SCH206BOND | School 206 BOND | 0.3161759235 | $409,132 | $409,132 | $129.36 | | |
| SCH206MO | School 206 Enrichment | 0.4547169547 | $409,132 | $409,132 | $186.04 | | |
| ST | State School | 1.3035497053 | $409,132 | $409,132 | $533.32 | | |
| ST2 | State School Part 2 | 0.8169543533 | $409,132 | $409,132 | $334.24 | | |
| SWHIDPRBD | P & R S Whidbey BOND | 0.0152817568 | $409,132 | $409,132 | $6.25 | | |
| SWHIDPRBD2 | P & R S Whidbey BOND2 | 0.0138911264 | $409,132 | $409,132 | $5.68 | | |
| SWHIDPRMT | P & R S Whidbey GEN | 0.2053334452 | $409,132 | $409,132 | $84.01 | | |
| | Total Tax Rate: | 6.6934522006 | | | | | |
| | | | | Taxes w/Current Exemptions: | $2,738.51 | | |
| | | | | Taxes w/o Exemptions: | $2,738.51 | | |
Improvement / Building
| Improvement #1: | RESIDENTIAL | State Code: | Y | 1034.0 sqft | Value: | $169,132 |
| Bathrooms: | 1 | Bedrooms: | 2 | | Ceiling: | BEAM PAINTED | Cooling: | HEAT PUMP/CONV/V | | Exterior Wall/Cover: | LOG TO 10" | Floor Covering: | CARPET/VINYL 80-20 | | Floor Structure: | WOOD W/SUBFLOOR | Foundation: | CONCRETE | | Interior Finish: | DRYWALL PAINT | Plumbing Fixture Cnt: | 6 | | Roof Slope: | FLAT | Roof Structure/Cover: | BEAM BUILT-UP ROCK |
|
| | Type | Description | Class CD | Sub Class CD | Year Built | Area |
| | BAS | BASE/MAIN FLOOR | 3 | 0 | 1959 | 1034.0 |
| | OWP | OPEN WOOD PORCH W/STEPS | 3 | 0 | 1959 | 374.0 |
| | UTY | STORAGE/UTILITY | 3 | 0 | 1959 | 36.0 |
| | UTY | STORAGE/UTILITY | 3 | 0 | 1959 | 126.0 |
| | CPD | OPEN CARPORT DIRT FLOOR | 3 | 0 | 1959 | 72.0 |
Sketch
Property Image
Land
| 1 | 14 | SQ (08001-12000) | 0.2600 | 11325.60 | 0.00 | 0.00 | 1.00 | $240,000 | $0 |
Roll Value History
| 2026 | N/A | N/A | N/A | N/A | N/A |
| 2025 | $169,132 | $240,000 | $0 | $409,132 | $409,132 |
| 2024 | $169,817 | $230,000 | $0 | $399,817 | $399,817 |
| 2023 | $172,380 | $230,000 | $0 | $402,380 | $402,380 |
| 2022 | $158,417 | $210,000 | $0 | $368,417 | $368,417 |
| 2021 | $139,771 | $150,000 | $0 | $289,771 | $289,771 |
| 2020 | $128,434 | $120,000 | $0 | $248,434 | $248,434 |
| 2019 | $92,277 | $170,000 | $0 | $262,277 | $262,277 |
| 2018 | $92,611 | $130,000 | $0 | $222,611 | $222,611 |
| 2017 | $66,239 | $130,000 | $0 | $196,239 | $196,239 |
| 2016 | $67,401 | $130,000 | $0 | $197,401 | $197,401 |
| 2015 | $68,562 | $130,000 | $0 | $198,562 | $198,562 |
| 2014 | $74,904 | $148,750 | $0 | $223,654 | $223,654 |
| 2013 | $76,221 | $148,750 | $0 | $224,971 | $224,971 |
| 2012 | $77,538 | $148,750 | $0 | $226,288 | $226,288 |
| 2011 | $78,856 | $175,000 | $0 | $253,856 | $253,856 |
| 2010 | $86,183 | $175,000 | $0 | $261,183 | $261,183 |
| 2009 | $90,044 | $200,000 | $0 | $290,044 | $290,044 |
| 2008 | $91,051 | $200,000 | $0 | $291,051 | $291,051 |
| 2007 | $92,405 | $190,000 | $0 | $282,405 | $282,405 |
Deed and Sales History
| 1 | 11/10/2010 | QCD | Quit Claim Deed | ALBERTSON, BARBARA | STONE, BARBARA | | | $0.00 | 2867 | 4284888 |
| 2 | 04/27/2010 | PRD | Personal Representatives Deed | STITH, PAULINE E | ALBERTSON, BARBARA | | | $0.00 | 1090 | 4273371 |
| 3 | 04/01/1990 | PRD | Personal Representatives Deed | HERGET, JEAN | STITH, PAULINE E | | | $0.00 | 2359 | 90007702 |
| 4 | 05/01/1981 | TRUSTEED | Trustee's Deed | DILLE, HAROLD J | HERGET, JEAN | | | $46,850.00 | 11624 | 383516 |
| 5 | 11/01/1978 | OTHER | Other - Misc. Documents | Unknown | DILLE, HAROLD J | | | $32,500.00 | 85426 | 342453 |
Payout Agreement
| No payout information available.. |