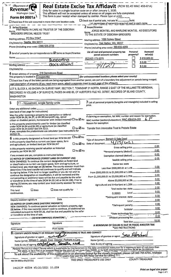
Property
Account |
| Property ID: | 115119 | Abbreviated Legal Description: | 72 - IN GL1: BG SWCR GL1 E22' M/L TO ELN CO RD N26*E ALG SD ELN 168' S63*E125' TPB N26*E420' M/L TO SLN CHAMBERLAIN TR AF#145966 S63*E ALG SLN SD TR 169.5' E TP 200'W OF SEC LN BETW SECS 4 & 5 S TO SLN SEC 5 W ALG SD SLN TP S63*E FR TPB N63*W TPB EX: BG |
| Geographic ID: | R32805-024-4830 | Agent Code: | |
| Type: | Real | | |
| Tax Area: | 712 - APPRAISER-S Whid Schl Dist, outside Langley, improved, greater than 1 acre | Land Use Code | 11 |
| Open Space: | N | DFL | N |
| Historic Property: | N | Remodel Property: | N |
| Multi-Family Redevelopment: | N | | |
| Township: | 28 | Section: | 05 |
| Range: | R3 |
Location |
| Address: | 7587 MAXWELTON RD CLINTON, WA 98236 | Mapsco: | |
| Neighborhood: | Cycle 4 | Map ID: | 691 |
| Neighborhood CD: | 4 |
Owner |
| Name: | COURT, CHUCK | Owner ID: | 301704 |
| Mailing Address: | HOLLY COURT 7565 MAXWELTON RD CLINTON, WA 98236 | % Ownership: | 100.0000000000% |
| | | Exemptions: | |
Taxes and Assessment Details
Values
| (+) Improvement Homesite Value: | + | $0 | |
| (+) Improvement Non-Homesite Value: | + | $68,760 | |
| (+) Land Homesite Value: | + | $0 | |
| (+) Land Non-Homesite Value: | + | $370,000 | |
| (+) Curr Use (HS): | + | $0 | $0 |
| (+) Curr Use (NHS): | + | $0 | $0 |
| | | -------------------------- | |
| (=) Market Value: | = | $438,760 | |
| (–) Productivity Loss: | – | $0 | |
| | | -------------------------- | |
| (=) Subtotal: | = | $438,760 | |
| (+) Senior Appraised Value: | + | $0 | |
| (+) Non-Senior Appraised Value: | + | $438,760 | |
| | | -------------------------- | |
| (=) Total Appraised Value: | = | $438,760 | |
| (–) Senior Exemption Loss: | – | $0 | |
| (–) Exemption Loss: | – | $0 | |
| | | -------------------------- | |
| (=) Taxable Value: | = | $438,760 | |
Taxing Jurisdiction
| Owner: | COURT, CHUCK | | |
| % Ownership: | 100.0000000000% | | |
| Total Value: | $438,760 | | |
| Tax Area: | 712 - APPRAISER-S Whid Schl Dist, outside Langley, improved, greater than 1 acre |
| CF | Conservation Futures | 0.0316035091 | $438,760 | $438,760 | $13.87 | | |
| FIRE3 | Fire & Rescue Dist #3 S Whidbey GEN | 1.2004855531 | $438,760 | $438,760 | $526.73 | | |
| HOBOND | Hospital BOND | 0.1910887512 | $438,760 | $438,760 | $83.84 | | |
| HOGEN | Hospital GEN | 0.3902502903 | $438,760 | $438,760 | $171.23 | | |
| CE | County Current Expense | 0.3708482477 | $438,760 | $438,760 | $162.71 | | |
| CR | County Roads | 0.4584763726 | $438,760 | $438,760 | $201.16 | | |
| ISLANDEMS | Hospital GEN (EMS) | 0.5000000000 | $438,760 | $438,760 | $219.38 | | |
| LIB | Library Sno-Isle GEN | 0.3153421757 | $438,760 | $438,760 | $138.36 | | |
| PORTWHID | Port of S Whidbey GEN | 0.1094540357 | $438,760 | $438,760 | $48.02 | | |
| SCH206BOND | School 206 BOND | 0.3161759235 | $438,760 | $438,760 | $138.73 | | |
| SCH206MO | School 206 Enrichment | 0.4547169547 | $438,760 | $438,760 | $199.51 | | |
| ST | State School | 1.3035497053 | $438,760 | $438,760 | $571.95 | | |
| ST2 | State School Part 2 | 0.8169543533 | $438,760 | $438,760 | $358.45 | | |
| SWHIDPRBD | P & R S Whidbey BOND | 0.0152817568 | $438,760 | $438,760 | $6.71 | | |
| SWHIDPRBD2 | P & R S Whidbey BOND2 | 0.0138911264 | $438,760 | $438,760 | $6.09 | | |
| SWHIDPRMT | P & R S Whidbey GEN | 0.2053334452 | $438,760 | $438,760 | $90.09 | | |
| | Total Tax Rate: | 6.6934522006 | | | | | |
| | | | | Taxes w/Current Exemptions: | $2,936.83 | | |
| | | | | Taxes w/o Exemptions: | $2,936.83 | | |
Improvement / Building
| Improvement #1: | RESIDENTIAL | State Code: | Y | 360.0 sqft | Value: | $68,760 |
| | Type | Description | Class CD | Sub Class CD | Year Built | Area |
| | oBAR | BARN | 3 | 0 | 2014 | 1080.0 |
| | UTY | STORAGE/UTILITY | 3 | 0 | 2014 | 384.0 |
| | LOF | LOFT | 3 | 0 | 2014 | 360.0 |
Sketch
Property Image
Land
| 1 | 32 | AC (03.01-09.99) | 4.8000 | 209088.00 | 0.00 | 0.00 | 1.00 | $370,000 | $0 |
Roll Value History
| 2026 | N/A | N/A | N/A | N/A | N/A |
| 2025 | $68,760 | $370,000 | $0 | $438,760 | $438,760 |
| 2024 | $68,760 | $350,000 | $0 | $418,760 | $418,760 |
| 2023 | $68,760 | $330,000 | $0 | $398,760 | $398,760 |
| 2022 | $68,760 | $280,000 | $0 | $348,760 | $348,760 |
| 2021 | $27,000 | $230,000 | $0 | $257,000 | $257,000 |
| 2020 | $27,000 | $190,000 | $0 | $217,000 | $217,000 |
| 2019 | $27,000 | $250,000 | $0 | $277,000 | $277,000 |
| 2018 | $27,000 | $210,000 | $0 | $237,000 | $237,000 |
| 2017 | $27,000 | $130,000 | $0 | $157,000 | $157,000 |
| 2016 | $27,000 | $120,000 | $0 | $147,000 | $147,000 |
| 2015 | $15,000 | $100,000 | $0 | $115,000 | $115,000 |
| 2014 | $8 | $168,000 | $0 | $168,008 | $168,008 |
| 2013 | $8 | $144,000 | $0 | $144,008 | $144,008 |
| 2012 | $8 | $144,000 | $0 | $144,008 | $144,008 |
| 2011 | $8 | $144,000 | $0 | $144,008 | $144,008 |
| 2010 | $8 | $136,000 | $0 | $136,008 | $136,008 |
| 2009 | $8 | $165,000 | $0 | $165,008 | $165,008 |
| 2008 | $8 | $165,000 | $0 | $165,008 | $165,008 |
| 2007 | $8 | $162,500 | $0 | $162,508 | $162,508 |
Deed and Sales History
| 1 | 10/19/2021 | WD | Warranty Deed | FERIS, GERALD E SR | COURT, CHUCK | | | $1,175,000.00 | 50599 | 4532064 |
|   | |
| 2 | 04/08/2017 | QCD | Quit Claim Deed | FERIS SR, GERALD E | FERIS, GERALD E SR | | | $0.00 | 28997 | 4421324 |
| 3 | 11/22/2016 | QCD | Quit Claim Deed | FERIS SR, GERALD E | FERIS SR GERALD E | | | $0.00 | 27658 | 4414749 |
| 4 | 05/19/2003 | WD | Warranty Deed | RICKETTS, LOUISE V | FERIS SR, GERALD E | | | $0.00 | 32218 | 4060362 |
| 5 | 01/08/2002 | QCD | Quit Claim Deed | RICKETTS, LOUISE V | RICKETTS, LOUISE V | | | $0.00 | 20131 | 4006128 |
| 6 | 03/14/2001 | QCD | Quit Claim Deed | RICKETTS, LOUISE V | RICKETTS, LOUISE V | | | $0.00 | 10904 | 20027990 |
| 7 | 02/01/1996 | PRD | Personal Representatives Deed | RICKETTS, CLARK I | RICKETTS, LOUISE V | | | $0.00 | 60407 | 96002165 |
| 8 | 01/01/1900 | OTHER | Other - Misc. Documents | FERIS SR, GERALD E | FERIS SR, GERALD E | | | $0.00 | 81141 | 0 |
| 9 | 01/01/1900 | OTHER | Other - Misc. Documents | Unknown | RICKETTS, CLARK I | | | $0.00 | 0 | 0 |
Payout Agreement
| No payout information available.. |