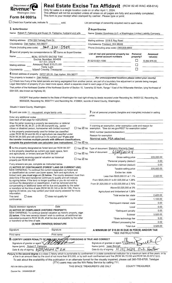
Property
Account |
| Property ID: | 115173 | Abbreviated Legal Description: | 11 - IN GL1: BG SWCR GL1 W22' M/L TO WLN CO RD NLY ALG WLN SD RD 310' TPB N26*E50' N63*W TO ML SWLY ALG ML 50' TP N63*W FR TPB S63*E TPB INCL ADJ TIDES TGW EZS |
| Geographic ID: | R32805-034-4380 | Agent Code: | |
| Type: | Real | | |
| Tax Area: | 710 - APPRAISER-S Whid Schl Dist, outside Langley, improved & 1 acre or less | Land Use Code | 11 |
| Open Space: | N | DFL | N |
| Historic Property: | N | Remodel Property: | N |
| Multi-Family Redevelopment: | N | | |
| Township: | 28 | Section: | 05 |
| Range: | R3 |
Location |
| Address: | 7576 MAXWELTON RD CLINTON, WA 98236 | Mapsco: | |
| Neighborhood: | Cycle 4 | Map ID: | 691 |
| Neighborhood CD: | 4 |
Owner |
| Name: | WRIGHT TTEE, DANIEL WILLIAM | Owner ID: | 310688 |
| Mailing Address: | KRISTINE KATHERINE WRIGHT TTEE 1561 STEVENSON RD HAWLETT, NY 11557 | % Ownership: | 100.0000000000% |
| | | Exemptions: | |
Taxes and Assessment Details
Values
| (+) Improvement Homesite Value: | + | $0 | |
| (+) Improvement Non-Homesite Value: | + | $482,869 | |
| (+) Land Homesite Value: | + | $0 | |
| (+) Land Non-Homesite Value: | + | $950,500 | |
| (+) Curr Use (HS): | + | $0 | $0 |
| (+) Curr Use (NHS): | + | $0 | $0 |
| | | -------------------------- | |
| (=) Market Value: | = | $1,433,369 | |
| (–) Productivity Loss: | – | $0 | |
| | | -------------------------- | |
| (=) Subtotal: | = | $1,433,369 | |
| (+) Senior Appraised Value: | + | $0 | |
| (+) Non-Senior Appraised Value: | + | $1,433,369 | |
| | | -------------------------- | |
| (=) Total Appraised Value: | = | $1,433,369 | |
| (–) Senior Exemption Loss: | – | $0 | |
| (–) Exemption Loss: | – | $0 | |
| | | -------------------------- | |
| (=) Taxable Value: | = | $1,433,369 | |
Taxing Jurisdiction
| Owner: | WRIGHT TTEE, DANIEL WILLIAM | | |
| % Ownership: | 100.0000000000% | | |
| Total Value: | $1,433,369 | | |
| Tax Area: | 710 - APPRAISER-S Whid Schl Dist, outside Langley, improved & 1 acre or less |
| CF | Conservation Futures | 0.0316035091 | $1,433,369 | $1,433,369 | $45.30 | | |
| FIRE3 | Fire & Rescue Dist #3 S Whidbey GEN | 1.2004855531 | $1,433,369 | $1,433,369 | $1,720.74 | | |
| HOBOND | Hospital BOND | 0.1910887512 | $1,433,369 | $1,433,369 | $273.90 | | |
| HOGEN | Hospital GEN | 0.3902502903 | $1,433,369 | $1,433,369 | $559.37 | | |
| CE | County Current Expense | 0.3708482477 | $1,433,369 | $1,433,369 | $531.56 | | |
| CR | County Roads | 0.4584763726 | $1,433,369 | $1,433,369 | $657.17 | | |
| ISLANDEMS | Hospital GEN (EMS) | 0.5000000000 | $1,433,369 | $1,433,369 | $716.68 | | |
| LIB | Library Sno-Isle GEN | 0.3153421757 | $1,433,369 | $1,433,369 | $452.00 | | |
| PORTWHID | Port of S Whidbey GEN | 0.1094540357 | $1,433,369 | $1,433,369 | $156.89 | | |
| SCH206BOND | School 206 BOND | 0.3161759235 | $1,433,369 | $1,433,369 | $453.20 | | |
| SCH206MO | School 206 Enrichment | 0.4547169547 | $1,433,369 | $1,433,369 | $651.78 | | |
| ST | State School | 1.3035497053 | $1,433,369 | $1,433,369 | $1,868.47 | | |
| ST2 | State School Part 2 | 0.8169543533 | $1,433,369 | $1,433,369 | $1,171.00 | | |
| SWHIDPRBD | P & R S Whidbey BOND | 0.0152817568 | $1,433,369 | $1,433,369 | $21.90 | | |
| SWHIDPRBD2 | P & R S Whidbey BOND2 | 0.0138911264 | $1,433,369 | $1,433,369 | $19.91 | | |
| SWHIDPRMT | P & R S Whidbey GEN | 0.2053334452 | $1,433,369 | $1,433,369 | $294.32 | | |
| | Total Tax Rate: | 6.6934522006 | | | | | |
| | | | | Taxes w/Current Exemptions: | $9,594.19 | | |
| | | | | Taxes w/o Exemptions: | $9,594.19 | | |
Improvement / Building
| Improvement #1: | RESIDENTIAL | State Code: | Y | 2819.1 sqft | Value: | $482,869 |
| Bathrooms: | 3 | Bedrooms: | 2 | | Ceiling: | TONGUE & GROOVE | Cooling: | HEAT PUMP/CONV/V | | Exterior Wall/Cover: | WOOD SIDING | Floor Covering: | VINYL TILE/CARP 20-80 | | Floor Structure: | WOOD W/SUBFLOOR | Foundation: | CONCRETE | | Interior Finish: | DRYWALL PAINT | Plumbing Fixture Cnt: | 12 | | Roof Slope: | 8" IN 12" | Roof Structure/Cover: | BEAM ASPHALT |
|
| | Type | Description | Class CD | Sub Class CD | Year Built | Area |
| | BAS | BASE/MAIN FLOOR | 4 | 0 | 1995 | 1608.0 |
| | AGR | ATTACHED GARAGE | 4 | 0 | 1995 | 750.0 |
| | UPS | UPPER STORY | 4 | 0 | 1995 | 1211.1 |
| | OWP | OPEN WOOD PORCH W/STEPS | 4 | 0 | 1995 | 682.6 |
Sketch
Property Image
Land
| 1 | LB | LOW BANK | 0.1000 | 4356.00 | 50.00 | 0.00 | 1.00 | $950,000 | $0 |
| 2 | 55 | TIDES | 0.0000 | 0.00 | 50.00 | 0.00 | 1.00 | $500 | $0 |
Roll Value History
| 2026 | N/A | N/A | N/A | N/A | N/A |
| 2025 | $482,869 | $950,500 | $0 | $1,433,369 | $1,433,369 |
| 2024 | $488,962 | $950,500 | $0 | $1,439,462 | $1,439,462 |
| 2023 | $495,055 | $950,500 | $0 | $1,445,555 | $1,445,555 |
| 2022 | $453,814 | $900,500 | $0 | $1,354,314 | $1,354,314 |
| 2021 | $399,399 | $600,500 | $0 | $999,899 | $999,899 |
| 2020 | $390,017 | $630,500 | $0 | $1,020,517 | $1,020,517 |
| 2019 | $300,609 | $680,500 | $0 | $981,109 | $981,109 |
| 2018 | $301,491 | $600,500 | $0 | $901,991 | $901,991 |
| 2017 | $303,174 | $600,500 | $0 | $903,674 | $903,674 |
| 2016 | $306,699 | $600,500 | $0 | $907,199 | $907,199 |
| 2015 | $260,382 | $600,500 | $0 | $860,882 | $860,882 |
| 2014 | $257,621 | $600,500 | $0 | $858,121 | $858,121 |
| 2013 | $260,837 | $637,040 | $0 | $897,877 | $897,877 |
| 2012 | $264,051 | $637,040 | $0 | $901,091 | $901,091 |
| 2011 | $267,267 | $637,040 | $0 | $904,307 | $904,307 |
| 2010 | $275,388 | $637,040 | $0 | $912,428 | $912,428 |
| 2009 | $287,309 | $796,175 | $0 | $1,083,484 | $1,083,484 |
| 2008 | $285,862 | $796,175 | $0 | $1,082,037 | $1,082,037 |
| 2007 | $289,441 | $604,863 | $0 | $894,304 | $894,304 |
Deed and Sales History
| 1 | 09/30/2023 | QCD | Quit Claim Deed | WRIGHT JTWROS, DANIEL | WRIGHT TTEE, DANIEL WILLIAM | | | $0.00 | 58534 | 4566806 |
| 2 | 09/11/2015 | WD | Warranty Deed | KIGER, RALPH W | WRIGHT JTWROS, DANIEL | | | $915,000.00 | 21419 | 4386247 |
| 3 | 07/01/1994 | QCD | Quit Claim Deed | CURRIER, PATRICIA L | KIGER, RALPH W | | | $165,000.00 | 42937 | 94016008 |
| 4 | 10/01/1990 | QCD | Quit Claim Deed | KIGER, DOROTHY L | CURRIER, PATRICIA L | | | $0.00 | 10658 | 91002964 |
| 5 | 01/01/1985 | OTHER | Other - Misc. Documents | CURRIER, PATRICIA L | KIGER, DOROTHY L | | | $0.00 | 61033 | 0 |
| 6 | 01/01/1985 | EXECUTORD | Executor Deed | KIGER, WILLIAM R | CURRIER, PATRICIA L | | | $0.00 | 50165 | 85000812 |
| 7 | 01/01/1900 | OTHER | Other - Misc. Documents | Unknown | KIGER, WILLIAM R | | | $0.00 | 0 | 0 |
Payout Agreement
| No payout information available.. |