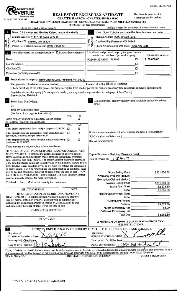
Property
Account |
| Property ID: | 115208 | Abbreviated Legal Description: | 44 - BG SWCR GL1 W TO WLN RD N26*E410' TPB N26*E20' N63*W TO HITDLN SWLY ALG SD LN TP N63*W OF TPB S63*E TPB INCL ADJ TIDES |
| Geographic ID: | R32805-041-4410 | Agent Code: | |
| Type: | Real | | |
| Tax Area: | 719 - APPRAISER-S Whid Schl Dist, outside Langley, vacant & 50 acres or less | Land Use Code | 91 |
| Open Space: | N | DFL | N |
| Historic Property: | N | Remodel Property: | N |
| Multi-Family Redevelopment: | N | | |
| Township: | 28 | Section: | 05 |
| Range: | R3 |
Location |
| Address: | | Mapsco: | |
| Neighborhood: | Cycle 4 | Map ID: | 691 |
| Neighborhood CD: | 4 |
Owner |
| Name: | COURT, CHUCK | Owner ID: | 301704 |
| Mailing Address: | HOLLY COURT 7565 MAXWELTON RD CLINTON, WA 98236 | % Ownership: | 100.0000000000% |
| | | Exemptions: | |
Taxes and Assessment Details
Values
| (+) Improvement Homesite Value: | + | $0 | |
| (+) Improvement Non-Homesite Value: | + | $0 | |
| (+) Land Homesite Value: | + | $0 | |
| (+) Land Non-Homesite Value: | + | $50,200 | |
| (+) Curr Use (HS): | + | $0 | $0 |
| (+) Curr Use (NHS): | + | $0 | $0 |
| | | -------------------------- | |
| (=) Market Value: | = | $50,200 | |
| (–) Productivity Loss: | – | $0 | |
| | | -------------------------- | |
| (=) Subtotal: | = | $50,200 | |
| (+) Senior Appraised Value: | + | $0 | |
| (+) Non-Senior Appraised Value: | + | $50,200 | |
| | | -------------------------- | |
| (=) Total Appraised Value: | = | $50,200 | |
| (–) Senior Exemption Loss: | – | $0 | |
| (–) Exemption Loss: | – | $0 | |
| | | -------------------------- | |
| (=) Taxable Value: | = | $50,200 | |
Taxing Jurisdiction
| Owner: | COURT, CHUCK | | |
| % Ownership: | 100.0000000000% | | |
| Total Value: | $50,200 | | |
| Tax Area: | 719 - APPRAISER-S Whid Schl Dist, outside Langley, vacant & 50 acres or less |
| CF | Conservation Futures | 0.0316035091 | $50,200 | $50,200 | $1.59 | | |
| HOBOND | Hospital BOND | 0.1910887512 | $50,200 | $50,200 | $9.59 | | |
| HOGEN | Hospital GEN | 0.3902502903 | $50,200 | $50,200 | $19.59 | | |
| CE | County Current Expense | 0.3708482477 | $50,200 | $50,200 | $18.62 | | |
| CR | County Roads | 0.4584763726 | $50,200 | $50,200 | $23.02 | | |
| ISLANDEMS | Hospital GEN (EMS) | 0.5000000000 | $50,200 | $50,200 | $25.10 | | |
| LIB | Library Sno-Isle GEN | 0.3153421757 | $50,200 | $50,200 | $15.83 | | |
| PORTWHID | Port of S Whidbey GEN | 0.1094540357 | $50,200 | $50,200 | $5.49 | | |
| SCH206BOND | School 206 BOND | 0.3161759235 | $50,200 | $50,200 | $15.87 | | |
| SCH206MO | School 206 Enrichment | 0.4547169547 | $50,200 | $50,200 | $22.83 | | |
| ST | State School | 1.3035497053 | $50,200 | $50,200 | $65.44 | | |
| ST2 | State School Part 2 | 0.8169543533 | $50,200 | $50,200 | $41.01 | | |
| SWHIDPRBD | P & R S Whidbey BOND | 0.0152817568 | $50,200 | $50,200 | $0.77 | | |
| SWHIDPRBD2 | P & R S Whidbey BOND2 | 0.0138911264 | $50,200 | $50,200 | $0.70 | | |
| SWHIDPRMT | P & R S Whidbey GEN | 0.2053334452 | $50,200 | $50,200 | $10.31 | | |
| | Total Tax Rate: | 5.4929666475 | | | | | |
| | | | | Taxes w/Current Exemptions: | $275.76 | | |
| | | | | Taxes w/o Exemptions: | $275.76 | | |
Improvement / Building
Sketch
| No sketches available for this property. |
Property Image
Land
| 1 | LB | LOW BANK | 0.0700 | 3049.20 | 20.00 | 0.00 | 1.00 | $50,000 | $0 |
| 2 | 55 | TIDES | 0.0000 | 0.00 | 20.00 | 0.00 | 1.00 | $200 | $0 |
Roll Value History
| 2026 | N/A | N/A | N/A | N/A | N/A |
| 2025 | $0 | $50,200 | $0 | $50,200 | $50,200 |
| 2024 | $0 | $50,200 | $0 | $50,200 | $50,200 |
| 2023 | $0 | $50,200 | $0 | $50,200 | $50,200 |
| 2022 | $0 | $50,200 | $0 | $50,200 | $50,200 |
| 2021 | $0 | $40,200 | $0 | $40,200 | $40,200 |
| 2020 | $0 | $40,200 | $0 | $40,200 | $40,200 |
| 2019 | $0 | $40,200 | $0 | $40,200 | $40,200 |
| 2018 | $0 | $40,200 | $0 | $40,200 | $40,200 |
| 2017 | $0 | $25,200 | $0 | $25,200 | $25,200 |
| 2016 | $0 | $25,200 | $0 | $25,200 | $25,200 |
| 2015 | $0 | $25,200 | $0 | $25,200 | $25,200 |
| 2014 | $0 | $25,200 | $0 | $25,200 | $25,200 |
| 2013 | $0 | $31,471 | $0 | $31,471 | $31,471 |
| 2012 | $0 | $31,471 | $0 | $31,471 | $31,471 |
| 2011 | $0 | $31,471 | $0 | $31,471 | $31,471 |
| 2010 | $0 | $31,471 | $0 | $31,471 | $31,471 |
| 2009 | $0 | $40,100 | $0 | $40,100 | $40,100 |
| 2008 | $0 | $40,100 | $0 | $40,100 | $40,100 |
| 2007 | $0 | $26,384 | $0 | $26,384 | $26,384 |
Deed and Sales History
| 1 | 10/19/2021 | WD | Warranty Deed | FERIS, GERALD E SR | COURT, CHUCK | | | $1,175,000.00 | 50599 | 4532064 |
|   | |
| 2 | 04/08/2017 | QCD | Quit Claim Deed | FERIS SR, GERALD E | FERIS, GERALD E SR | | | $0.00 | 28997 | 4421324 |
| 3 | 11/22/2016 | QCD | Quit Claim Deed | FERIS SR GERALD E | FERIS SR GERALD E | | | $0.00 | 27658 | 4414749 |
| 4 | 05/19/2003 | WD | Warranty Deed | RICKETTS, LOUISE | FERIS SR GERALD E | | | | 0 | 4060362 |
| 5 | 02/01/1996 | PRD | Personal Representatives Deed | RICKETTS, CLARK I | RICKETTS, LOUISE V | | | $0.00 | 60407 | 96002165 |
Payout Agreement
| No payout information available.. |