Property
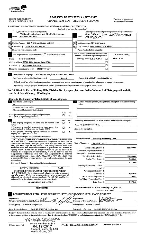
Account |
| Property ID: | 115217 | Abbreviated Legal Description: | 6 - BG SWCR GL1 E22' M/L TO ELN CO RD N26*E478' TPB N26*E60' S63*E125' S26*W60' N63*W TPB INCL EZ |
| Geographic ID: | R32805-044-4600 | Agent Code: | |
| Type: | Real | | |
| Tax Area: | 710 - APPRAISER-S Whid Schl Dist, outside Langley, improved & 1 acre or less | Land Use Code | 11 |
| Open Space: | N | DFL | N |
| Historic Property: | N | Remodel Property: | N |
| Multi-Family Redevelopment: | N | | |
| Township: | 28 | Section: | 05 |
| Range: | R3 |
Location |
| Address: | 7565 MAXWELTON RD CLINTON, WA 98236 | Mapsco: | |
| Neighborhood: | Cycle 4 | Map ID: | 691 |
| Neighborhood CD: | 4 |
Owner |
| Name: | COURT, CHUCK | Owner ID: | 301704 |
| Mailing Address: | HOLLY COURT 7565 MAXWELTON RD CLINTON, WA 98236 | % Ownership: | 100.0000000000% |
| | | Exemptions: | |
Taxes and Assessment Details
Values
| (+) Improvement Homesite Value: | + | $0 | |
| (+) Improvement Non-Homesite Value: | + | $509,474 | |
| (+) Land Homesite Value: | + | $0 | |
| (+) Land Non-Homesite Value: | + | $320,000 | |
| (+) Curr Use (HS): | + | $0 | $0 |
| (+) Curr Use (NHS): | + | $0 | $0 |
| | | -------------------------- | |
| (=) Market Value: | = | $829,474 | |
| (–) Productivity Loss: | – | $0 | |
| | | -------------------------- | |
| (=) Subtotal: | = | $829,474 | |
| (+) Senior Appraised Value: | + | $0 | |
| (+) Non-Senior Appraised Value: | + | $829,474 | |
| | | -------------------------- | |
| (=) Total Appraised Value: | = | $829,474 | |
| (–) Senior Exemption Loss: | – | $0 | |
| (–) Exemption Loss: | – | $0 | |
| | | -------------------------- | |
| (=) Taxable Value: | = | $829,474 | |
Taxing Jurisdiction
| Owner: | COURT, CHUCK | | |
| % Ownership: | 100.0000000000% | | |
| Total Value: | $829,474 | | |
| Tax Area: | 710 - APPRAISER-S Whid Schl Dist, outside Langley, improved & 1 acre or less |
| CF | Conservation Futures | 0.0316035091 | $829,474 | $829,474 | $26.21 | | |
| FIRE3 | Fire & Rescue Dist #3 S Whidbey GEN | 1.2004855531 | $829,474 | $829,474 | $995.77 | | |
| HOBOND | Hospital BOND | 0.1910887512 | $829,474 | $829,474 | $158.50 | | |
| HOGEN | Hospital GEN | 0.3902502903 | $829,474 | $829,474 | $323.70 | | |
| CE | County Current Expense | 0.3708482477 | $829,474 | $829,474 | $307.61 | | |
| CR | County Roads | 0.4584763726 | $829,474 | $829,474 | $380.29 | | |
| ISLANDEMS | Hospital GEN (EMS) | 0.5000000000 | $829,474 | $829,474 | $414.74 | | |
| LIB | Library Sno-Isle GEN | 0.3153421757 | $829,474 | $829,474 | $261.57 | | |
| PORTWHID | Port of S Whidbey GEN | 0.1094540357 | $829,474 | $829,474 | $90.79 | | |
| SCH206BOND | School 206 BOND | 0.3161759235 | $829,474 | $829,474 | $262.26 | | |
| SCH206MO | School 206 Enrichment | 0.4547169547 | $829,474 | $829,474 | $377.18 | | |
| ST | State School | 1.3035497053 | $829,474 | $829,474 | $1,081.26 | | |
| ST2 | State School Part 2 | 0.8169543533 | $829,474 | $829,474 | $677.64 | | |
| SWHIDPRBD | P & R S Whidbey BOND | 0.0152817568 | $829,474 | $829,474 | $12.68 | | |
| SWHIDPRBD2 | P & R S Whidbey BOND2 | 0.0138911264 | $829,474 | $829,474 | $11.52 | | |
| SWHIDPRMT | P & R S Whidbey GEN | 0.2053334452 | $829,474 | $829,474 | $170.32 | | |
| | Total Tax Rate: | 6.6934522006 | | | | | |
| | | | | Taxes w/Current Exemptions: | $5,552.04 | | |
| | | | | Taxes w/o Exemptions: | $5,552.04 | | |
Improvement / Building
| Improvement #1: | RESIDENTIAL | State Code: | Y | 3864.0 sqft | Value: | $509,474 |
| Bathrooms: | 3 | Bedrooms: | 3 | | Ceiling: | DRYWALL PAINTED | Exterior Wall/Cover: | CEMENT FIBER | | Floor Covering: | CERAMIC TILE/CPT 40-60 | Floor Structure: | WOOD W/SUBFLOOR | | Foundation: | CONCRETE | Heating: | RAD HOT WATER-GAS | | Interior Finish: | DRYWALL PAINT | Plumbing Fixture Cnt: | 12 | | Roof Slope: | 8" IN 12" | Roof Structure/Cover: | CJ ALUMINIUM HEAVY |
|
| | Type | Description | Class CD | Sub Class CD | Year Built | Area |
| | BAS | BASE/MAIN FLOOR | 3 | 0 | 2005 | 2312.0 |
| | OP2 | OPEN PORCH W/STEPS | 3 | 0 | 2005 | 49.5 |
| | BIG | BUILT IN GARAGE | 3 | 0 | 2005 | 760.0 |
| | OWP | OPEN WOOD PORCH W/STEPS | 3 | 0 | 2005 | 555.6 |
| | OWC | OPEN WOOD PORCH W/STEPS/ROOF/C | 3 | 0 | 2005 | 96.0 |
| | DWN | DOWNSTAIRS LIVING AREA | 3 | 0 | 2005 | 1552.0 |
Sketch
Property Image
Land
| 1 | 13 | SQ (06001-08000) | 0.1700 | 7405.20 | 0.00 | 0.00 | 1.00 | $320,000 | $0 |
Roll Value History
| 2026 | N/A | N/A | N/A | N/A | N/A |
| 2025 | $509,474 | $320,000 | $0 | $829,474 | $829,474 |
| 2024 | $513,754 | $300,000 | $0 | $813,754 | $813,754 |
| 2023 | $518,321 | $300,000 | $0 | $818,321 | $818,321 |
| 2022 | $472,990 | $280,000 | $0 | $752,990 | $752,990 |
| 2021 | $386,787 | $150,000 | $0 | $536,787 | $536,787 |
| 2020 | $375,772 | $120,000 | $0 | $495,772 | $495,772 |
| 2019 | $317,228 | $130,000 | $0 | $447,228 | $447,228 |
| 2018 | $318,125 | $130,000 | $0 | $448,125 | $448,125 |
| 2017 | $319,922 | $130,000 | $0 | $449,922 | $449,922 |
| 2016 | $323,518 | $130,000 | $0 | $453,518 | $453,518 |
| 2015 | $327,113 | $130,000 | $0 | $457,113 | $457,113 |
| 2014 | $325,785 | $148,750 | $0 | $474,535 | $474,535 |
| 2013 | $329,392 | $148,750 | $0 | $478,142 | $478,142 |
| 2012 | $332,996 | $148,750 | $0 | $481,746 | $481,746 |
| 2011 | $336,603 | $175,000 | $0 | $511,603 | $511,603 |
| 2010 | $344,965 | $175,000 | $0 | $519,965 | $519,965 |
| 2009 | $355,634 | $200,000 | $0 | $555,634 | $555,634 |
| 2008 | $361,560 | $200,000 | $0 | $561,560 | $561,560 |
| 2007 | $365,326 | $190,000 | $0 | $555,326 | $555,326 |
Deed and Sales History
| 1 | 10/19/2021 | WD | Warranty Deed | FERIS, GERALD E SR | COURT, CHUCK | | | $1,175,000.00 | 50599 | 4532064 |
|   | |
| 2 | 04/08/2017 | QCD | Quit Claim Deed | FERIS SR, GERALD E | FERIS, GERALD E SR | | | $0.00 | 28997 | 4421324 |
| 3 | 11/22/2016 | QCD | Quit Claim Deed | FERIS SR, GERALD E | FERIS SR GERALD E | | | $0.00 | 27658 | 4414749 |
| 4 | 04/02/2009 | OTHER | Other - Misc. Documents | FERIS SR, GERALD E | FERIS SR, GERALD E | | | $0.00 | 81141 | 0 |
| 5 | 05/19/2003 | WD | Warranty Deed | RICKETTS, LOUISE V | FERIS SR, GERALD E | | | $0.00 | 32218 | 4060362 |
| 6 | 01/08/2002 | QCD | Quit Claim Deed | RICKETTS, LOUISE V | RICKETTS, LOUISE V | | | $0.00 | 20131 | 4006128 |
| 7 | 03/14/2001 | QCD | Quit Claim Deed | RICKETTS, LOUISE V | RICKETTS, LOUISE V | | | $0.00 | 10904 | 20027990 |
| 8 | 02/01/1996 | PRD | Personal Representatives Deed | RICKETTS, CLARK I | RICKETTS, LOUISE V | | | $0.00 | 60406 | 96002164 |
Payout Agreement
| No payout information available.. |