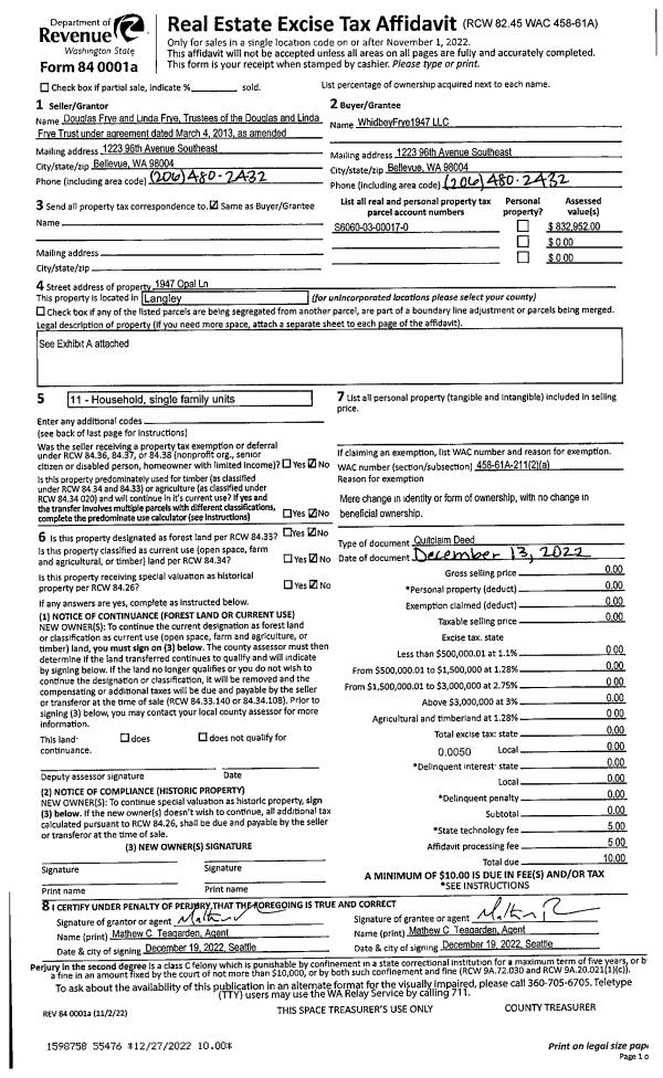
Property
Account |
| Property ID: | 115262 | Abbreviated Legal Description: | 36 - IN GL1:BG SW CR GL1 E22' TO ELN RD N26*E608' TPB N26*E100' S63*E250' S26*W100' N63*W250' TPB ALSO: BG SW CR GL1 E22' TO ELN CO RD N26*E588' TPB N26*E20' S63*E250' S26*W20' N63*W250' TPB |
| Geographic ID: | R32805-055-4720 | Agent Code: | |
| Type: | Real | | |
| Tax Area: | 710 - APPRAISER-S Whid Schl Dist, outside Langley, improved & 1 acre or less | Land Use Code | 11 |
| Open Space: | N | DFL | N |
| Historic Property: | N | Remodel Property: | N |
| Multi-Family Redevelopment: | N | | |
| Township: | 28 | Section: | 05 |
| Range: | R3 |
Location |
| Address: | 7555 MAXWELTON RD CLINTON, WA 98236 | Mapsco: | |
| Neighborhood: | Cycle 4 | Map ID: | 691 |
| Neighborhood CD: | 4 |
Owner |
| Name: | YUKAWA, PETER | Owner ID: | 305001 |
| Mailing Address: | CORRIE L. TAKAHASHI 10753 CRESTWOOD DR S SEATTLE, WA 98178 | % Ownership: | 100.0000000000% |
| | | Exemptions: | |
Taxes and Assessment Details
Values
| (+) Improvement Homesite Value: | + | $0 | |
| (+) Improvement Non-Homesite Value: | + | $335,480 | |
| (+) Land Homesite Value: | + | $0 | |
| (+) Land Non-Homesite Value: | + | $260,000 | |
| (+) Curr Use (HS): | + | $0 | $0 |
| (+) Curr Use (NHS): | + | $0 | $0 |
| | | -------------------------- | |
| (=) Market Value: | = | $595,480 | |
| (–) Productivity Loss: | – | $0 | |
| | | -------------------------- | |
| (=) Subtotal: | = | $595,480 | |
| (+) Senior Appraised Value: | + | $0 | |
| (+) Non-Senior Appraised Value: | + | $595,480 | |
| | | -------------------------- | |
| (=) Total Appraised Value: | = | $595,480 | |
| (–) Senior Exemption Loss: | – | $0 | |
| (–) Exemption Loss: | – | $0 | |
| | | -------------------------- | |
| (=) Taxable Value: | = | $595,480 | |
Taxing Jurisdiction
| Owner: | YUKAWA, PETER | | |
| % Ownership: | 100.0000000000% | | |
| Total Value: | $595,480 | | |
| Tax Area: | 710 - APPRAISER-S Whid Schl Dist, outside Langley, improved & 1 acre or less |
| CF | Conservation Futures | 0.0316035091 | $595,480 | $595,480 | $18.82 | | |
| FIRE3 | Fire & Rescue Dist #3 S Whidbey GEN | 1.2004855531 | $595,480 | $595,480 | $714.87 | | |
| HOBOND | Hospital BOND | 0.1910887512 | $595,480 | $595,480 | $113.79 | | |
| HOGEN | Hospital GEN | 0.3902502903 | $595,480 | $595,480 | $232.39 | | |
| CE | County Current Expense | 0.3708482477 | $595,480 | $595,480 | $220.83 | | |
| CR | County Roads | 0.4584763726 | $595,480 | $595,480 | $273.01 | | |
| ISLANDEMS | Hospital GEN (EMS) | 0.5000000000 | $595,480 | $595,480 | $297.74 | | |
| LIB | Library Sno-Isle GEN | 0.3153421757 | $595,480 | $595,480 | $187.78 | | |
| PORTWHID | Port of S Whidbey GEN | 0.1094540357 | $595,480 | $595,480 | $65.18 | | |
| SCH206BOND | School 206 BOND | 0.3161759235 | $595,480 | $595,480 | $188.28 | | |
| SCH206MO | School 206 Enrichment | 0.4547169547 | $595,480 | $595,480 | $270.77 | | |
| ST | State School | 1.3035497053 | $595,480 | $595,480 | $776.24 | | |
| ST2 | State School Part 2 | 0.8169543533 | $595,480 | $595,480 | $486.48 | | |
| SWHIDPRBD | P & R S Whidbey BOND | 0.0152817568 | $595,480 | $595,480 | $9.10 | | |
| SWHIDPRBD2 | P & R S Whidbey BOND2 | 0.0138911264 | $595,480 | $595,480 | $8.27 | | |
| SWHIDPRMT | P & R S Whidbey GEN | 0.2053334452 | $595,480 | $595,480 | $122.27 | | |
| | Total Tax Rate: | 6.6934522006 | | | | | |
| | | | | Taxes w/Current Exemptions: | $3,985.82 | | |
| | | | | Taxes w/o Exemptions: | $3,985.82 | | |
Improvement / Building
| Improvement #1: | RESIDENTIAL | State Code: | Y | 1984.0 sqft | Value: | $335,480 |
| Bathrooms: | 2 | Bedrooms: | 2 | | Ceiling: | BEAM PAINTED | Exterior Wall/Cover: | PLY/HARDBOARD T-111 | | Floor Covering: | HARDWOOD 100% | Floor Structure: | WOOD W/SUBFLOOR | | Foundation: | CONCRETE | Heating: | BASEBOARD ELECTRIC | | Interior Finish: | DRYWALL PAINT | Plumbing Fixture Cnt: | 9 | | Roof Slope: | 4" IN 12" | Roof Structure/Cover: | BEAM ASPHALT |
|
| | Type | Description | Class CD | Sub Class CD | Year Built | Area |
| | BAS | BASE/MAIN FLOOR | 3 | 0 | 1983 | 1544.0 |
| | UPS | UPPER STORY | 3 | 0 | 1983 | 440.0 |
| | OWP | OPEN WOOD PORCH W/STEPS | 3 | 0 | 1983 | 794.0 |
| | OWP | OPEN WOOD PORCH W/STEPS | 3 | 0 | 1983 | 80.0 |
| | OWC | OPEN WOOD PORCH W/STEPS/ROOF/C | 3 | 0 | 1983 | 144.0 |
| | UTY | STORAGE/UTILITY | 3 | 0 | 1983 | 216.0 |
Sketch
Property Image
Land
| 1 | 16 | AC (00.51-01.00) | 0.5700 | 24829.20 | 0.00 | 0.00 | 1.00 | $260,000 | $0 |
Roll Value History
| 2026 | N/A | N/A | N/A | N/A | N/A |
| 2025 | $335,480 | $260,000 | $0 | $595,480 | $595,480 |
| 2024 | $340,573 | $250,000 | $0 | $590,573 | $590,573 |
| 2023 | $344,817 | $240,000 | $0 | $584,817 | $584,817 |
| 2022 | $263,669 | $240,000 | $0 | $503,669 | $503,669 |
| 2021 | $232,325 | $160,000 | $0 | $392,325 | $392,325 |
| 2020 | $212,555 | $135,000 | $0 | $347,555 | $347,555 |
| 2019 | $162,874 | $180,000 | $0 | $342,874 | $342,874 |
| 2018 | $163,395 | $150,000 | $0 | $313,395 | $313,395 |
| 2017 | $164,437 | $140,000 | $0 | $304,437 | $304,437 |
| 2016 | $166,518 | $130,000 | $0 | $296,518 | $296,518 |
| 2015 | $168,600 | $130,000 | $0 | $298,600 | $298,600 |
| 2014 | $166,180 | $148,750 | $0 | $314,930 | $314,930 |
| 2013 | $168,167 | $148,750 | $0 | $316,917 | $316,917 |
| 2012 | $170,153 | $148,750 | $0 | $318,903 | $318,903 |
| 2011 | $172,138 | $175,000 | $0 | $347,138 | $347,138 |
| 2010 | $181,351 | $175,000 | $0 | $356,351 | $356,351 |
| 2009 | $189,027 | $200,000 | $0 | $389,027 | $389,027 |
| 2008 | $191,390 | $200,000 | $0 | $391,390 | $391,390 |
| 2007 | $162,382 | $190,000 | $0 | $352,382 | $352,382 |
Deed and Sales History
| 1 | 06/30/2022 | WD | Warranty Deed | GIBSON, MICHAEL | YUKAWA, PETER | | | $780,000.00 | 53757 | 4547986 |
| 2 | 04/06/2007 | WD | Warranty Deed | BIGGS, RUSSELL M | GIBSON, MICHAEL | | | $354,000.00 | 71217 | 4199472 |
| 3 | 01/01/1989 | WD | Warranty Deed | CHAMBERLAIN, JIMMIE D | BIGGS, RUSSELL M | | | $62,500.00 | 90390 | 89001337 |
| 4 | 03/01/1985 | QCD | Quit Claim Deed | MORLEY, HONOR C | CHAMBERLAIN, JIMMIE D | | | $0.00 | 50599 | 85002674 |
| 5 | 09/01/1983 | QCD | Quit Claim Deed | MORLEY, HONOR C | MORLEY, HONOR C | | | $0.00 | 32587 | 414737 |
| 6 | 09/01/1983 | OTHER | Other - Misc. Documents | CHAMBERLAIN, JIMMIE D | MORLEY, HONOR C | | | $0.00 | 32775 | 415343 |
| 7 | 09/01/1983 | QCD | Quit Claim Deed | CHAMBERLAIN, HOWARD C | CHAMBERLAIN, JIMMIE D | | | $0.00 | 32775 | 415343 |
| 8 | 01/01/1900 | OTHER | Other - Misc. Documents | Unknown | CHAMBERLAIN, HOWARD C | | | $0.00 | 0 | 0 |
Payout Agreement
| No payout information available.. |