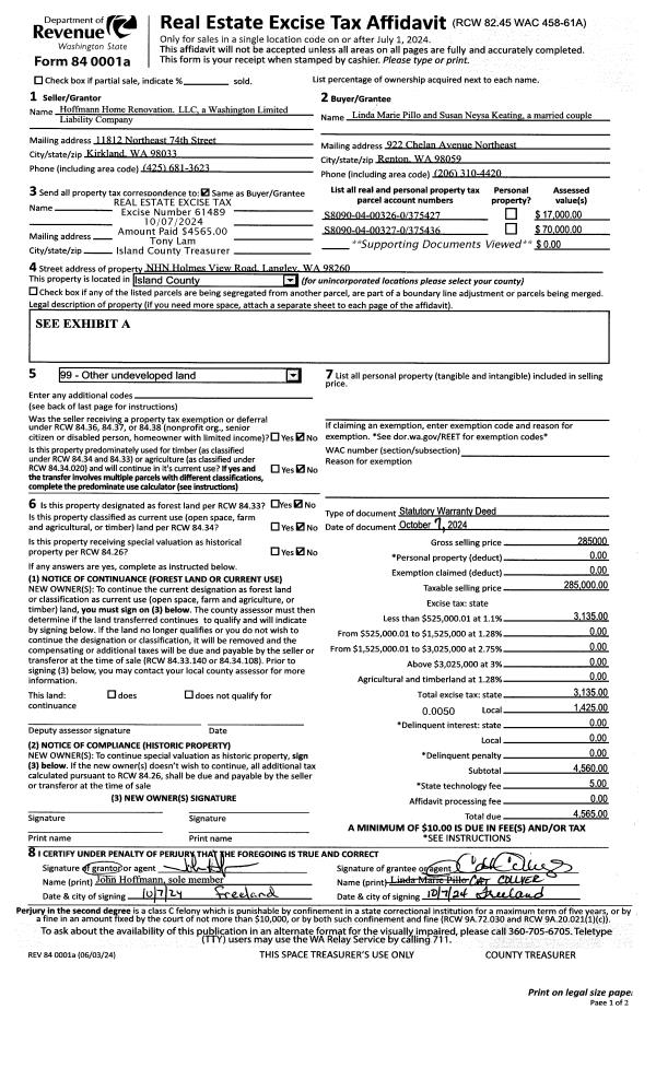
Property
Account |
| Property ID: | 115404 | Abbreviated Legal Description: | 70 - IN GL1: BG SWCR SD GL1 W22' M/L TO WLN CO RD N26*E ALG SD WLN 776' 8" N63*W100' TPB S26*W33 1/3' N63*W TO MEAN LOTDLN NLY ALG MEAN LOTDLN 33 1/3' M/L TP N63*W FR TPB S63*E TPB INCL TIDES |
| Geographic ID: | R32805-080-4400 | Agent Code: | |
| Type: | Real | | |
| Tax Area: | 710 - APPRAISER-S Whid Schl Dist, outside Langley, improved & 1 acre or less | Land Use Code | 11 |
| Open Space: | N | DFL | N |
| Historic Property: | N | Remodel Property: | N |
| Multi-Family Redevelopment: | N | | |
| Township: | 28 | Section: | 05 |
| Range: | R3 |
Location |
| Address: | 7548 MAXWELTON BEACH LN CLINTON, WA 98236 | Mapsco: | |
| Neighborhood: | Cycle 4 | Map ID: | 691 |
| Neighborhood CD: | 4 |
Owner |
| Name: | RLBEACH LLC | Owner ID: | 310060 |
| Mailing Address: | 5978 CHIEF WAPELLO RD AGENCY, IA 52530 | % Ownership: | 100.0000000000% |
| | | Exemptions: | |
Taxes and Assessment Details
Values
| (+) Improvement Homesite Value: | + | $0 | |
| (+) Improvement Non-Homesite Value: | + | $1 | |
| (+) Land Homesite Value: | + | $0 | |
| (+) Land Non-Homesite Value: | + | $950,330 | |
| (+) Curr Use (HS): | + | $0 | $0 |
| (+) Curr Use (NHS): | + | $0 | $0 |
| | | -------------------------- | |
| (=) Market Value: | = | $950,331 | |
| (–) Productivity Loss: | – | $0 | |
| | | -------------------------- | |
| (=) Subtotal: | = | $950,331 | |
| (+) Senior Appraised Value: | + | $0 | |
| (+) Non-Senior Appraised Value: | + | $950,331 | |
| | | -------------------------- | |
| (=) Total Appraised Value: | = | $950,331 | |
| (–) Senior Exemption Loss: | – | $0 | |
| (–) Exemption Loss: | – | $0 | |
| | | -------------------------- | |
| (=) Taxable Value: | = | $950,331 | |
Taxing Jurisdiction
| Owner: | RLBEACH LLC | | |
| % Ownership: | 100.0000000000% | | |
| Total Value: | $950,331 | | |
| Tax Area: | 710 - APPRAISER-S Whid Schl Dist, outside Langley, improved & 1 acre or less |
| CF | Conservation Futures | 0.0316035091 | $950,331 | $950,331 | $30.03 | | |
| FIRE3 | Fire & Rescue Dist #3 S Whidbey GEN | 1.2004855531 | $950,331 | $950,331 | $1,140.86 | | |
| HOBOND | Hospital BOND | 0.1910887512 | $950,331 | $950,331 | $181.60 | | |
| HOGEN | Hospital GEN | 0.3902502903 | $950,331 | $950,331 | $370.87 | | |
| CE | County Current Expense | 0.3708482477 | $950,331 | $950,331 | $352.43 | | |
| CR | County Roads | 0.4584763726 | $950,331 | $950,331 | $435.70 | | |
| ISLANDEMS | Hospital GEN (EMS) | 0.5000000000 | $950,331 | $950,331 | $475.17 | | |
| LIB | Library Sno-Isle GEN | 0.3153421757 | $950,331 | $950,331 | $299.68 | | |
| PORTWHID | Port of S Whidbey GEN | 0.1094540357 | $950,331 | $950,331 | $104.02 | | |
| SCH206BOND | School 206 BOND | 0.3161759235 | $950,331 | $950,331 | $300.47 | | |
| SCH206MO | School 206 Enrichment | 0.4547169547 | $950,331 | $950,331 | $432.13 | | |
| ST | State School | 1.3035497053 | $950,331 | $950,331 | $1,238.80 | | |
| ST2 | State School Part 2 | 0.8169543533 | $950,331 | $950,331 | $776.38 | | |
| SWHIDPRBD | P & R S Whidbey BOND | 0.0152817568 | $950,331 | $950,331 | $14.52 | | |
| SWHIDPRBD2 | P & R S Whidbey BOND2 | 0.0138911264 | $950,331 | $950,331 | $13.20 | | |
| SWHIDPRMT | P & R S Whidbey GEN | 0.2053334452 | $950,331 | $950,331 | $195.13 | | |
| | Total Tax Rate: | 6.6934522006 | | | | | |
| | | | | Taxes w/Current Exemptions: | $6,360.99 | | |
| | | | | Taxes w/o Exemptions: | $6,360.99 | | |
Improvement / Building
| Improvement #1: | RESIDENTIAL | State Code: | Y | 704.0 sqft | Value: | $1 |
| Bathrooms: | 1 | Bedrooms: | 1 | | Ceiling: | PLYWOOD PAINTED | Exterior Wall/Cover: | WOOD SIDING | | Floor Covering: | VINYL 100% | Floor Structure: | WOOD W/SUBFLOOR | | Foundation: | WOOD BLOCKS | Interior Finish: | DRYWALL PAINT | | Plumbing Fixture Cnt: | 5 | Roof Slope: | FLAT | | Roof Structure/Cover: | BEAM BUILT-UP ROCK |   |   |
|
| | Type | Description | Class CD | Sub Class CD | Year Built | Area |
| | BAS | BASE/MAIN FLOOR | 3 | 0 | 1956 | 704.0 |
| | OWP | OPEN WOOD PORCH W/STEPS | 3 | 0 | 1956 | 176.0 |
Sketch
Property Image
Land
| 1 | LB | LOW BANK | 0.1888 | 8225.00 | 33.00 | 243.24 | 1.00 | $950,000 | $0 |
| 2 | 55 | TIDES | 0.0000 | 0.00 | 33.00 | 0.00 | 1.00 | $330 | $0 |
Roll Value History
| 2026 | N/A | N/A | N/A | N/A | N/A |
| 2025 | $1 | $950,330 | $0 | $950,331 | $950,331 |
| 2024 | $1 | $950,330 | $0 | $950,331 | $950,331 |
| 2023 | $56,535 | $950,330 | $0 | $1,006,865 | $1,006,865 |
| 2022 | $52,531 | $900,330 | $0 | $952,861 | $952,861 |
| 2021 | $46,842 | $600,330 | $0 | $647,172 | $647,172 |
| 2020 | $37,575 | $550,330 | $0 | $587,905 | $587,905 |
| 2019 | $27,121 | $600,330 | $0 | $627,451 | $627,451 |
| 2018 | $27,281 | $550,330 | $0 | $577,611 | $577,611 |
| 2017 | $27,602 | $500,330 | $0 | $527,932 | $527,932 |
| 2016 | $26,441 | $500,330 | $0 | $526,771 | $526,771 |
| 2015 | $27,042 | $500,330 | $0 | $527,372 | $527,372 |
| 2014 | $29,747 | $500,330 | $0 | $530,077 | $530,077 |
| 2013 | $30,385 | $448,998 | $0 | $479,383 | $479,383 |
| 2012 | $31,022 | $448,998 | $0 | $480,020 | $480,020 |
| 2011 | $31,660 | $448,998 | $0 | $480,658 | $480,658 |
| 2010 | $37,930 | $448,998 | $0 | $486,928 | $486,928 |
| 2009 | $39,762 | $561,165 | $0 | $600,927 | $600,927 |
| 2008 | $40,470 | $561,165 | $0 | $601,635 | $601,635 |
| 2007 | $41,170 | $426,334 | $0 | $467,504 | $467,504 |
Deed and Sales History
| 1 | 12/07/2023 | WD | Warranty Deed | KLEE, ELIZABETH B | RLBEACH LLC | | | $307,000.00 | 58734 | 4571580 |
| 2 | 09/13/2023 | WD | Warranty Deed | KLEE, ELIZABETH B | RLBEACH LLC | | | $900,000.00 | 57973 | 4564696 |
| 3 | 08/15/2001 | ESTSEPPROP | Establish Separate Property | KLEE, VICTOR L | KLEE, ELIZABETH B | | | $0.00 | 13297 | 20041508 |
| 4 | 06/01/1978 | OTHER | Other - Misc. Documents | Unknown | KLEE, VICTOR L | | | $39,000.00 | 82447 | 333575 |
Payout Agreement
| No payout information available.. |