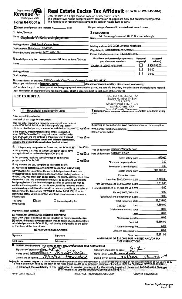
Property
Account |
| Property ID: | 115618 | Abbreviated Legal Description: | 79 - IN GL 1: BG SWCR GL1 W22'TO WLN CO RD N26*E1160' TPB N63*W120' S26*W60' N63*W90'TO SECR ANGEL TR AF#91416 N26*E75'TP 12'SWLY BENSON TR AF#103204 S63*E TO WLN RD S26*W TPB TGW & SUB EZ AF#89015452 |
| Geographic ID: | R32805-111-4630 | Agent Code: | |
| Type: | Real | | |
| Tax Area: | 710 - APPRAISER-S Whid Schl Dist, outside Langley, improved & 1 acre or less | Land Use Code | 11 |
| Open Space: | N | DFL | N |
| Historic Property: | N | Remodel Property: | N |
| Multi-Family Redevelopment: | N | | |
| Township: | 28 | Section: | 05 |
| Range: | R3 |
Location |
| Address: | 7516 MAXWELTON BEACH LN CLINTON, WA 98236 | Mapsco: | |
| Neighborhood: | Cycle 4 | Map ID: | 691 |
| Neighborhood CD: | 4 |
Owner |
| Name: | KOSSIK, JOHN | Owner ID: | 316354 |
| Mailing Address: | CAROLYN KOSSIK 16511 4TH DR SE BOTHELL, WA 98012 | % Ownership: | 100.0000000000% |
| | | Exemptions: | |
Taxes and Assessment Details
Values
| (+) Improvement Homesite Value: | + | $0 | |
| (+) Improvement Non-Homesite Value: | + | $232,124 | |
| (+) Land Homesite Value: | + | $0 | |
| (+) Land Non-Homesite Value: | + | $390,000 | |
| (+) Curr Use (HS): | + | $0 | $0 |
| (+) Curr Use (NHS): | + | $0 | $0 |
| | | -------------------------- | |
| (=) Market Value: | = | $622,124 | |
| (–) Productivity Loss: | – | $0 | |
| | | -------------------------- | |
| (=) Subtotal: | = | $622,124 | |
| (+) Senior Appraised Value: | + | $0 | |
| (+) Non-Senior Appraised Value: | + | $622,124 | |
| | | -------------------------- | |
| (=) Total Appraised Value: | = | $622,124 | |
| (–) Senior Exemption Loss: | – | $0 | |
| (–) Exemption Loss: | – | $0 | |
| | | -------------------------- | |
| (=) Taxable Value: | = | $622,124 | |
Taxing Jurisdiction
| Owner: | KOSSIK, JOHN | | |
| % Ownership: | 100.0000000000% | | |
| Total Value: | $622,124 | | |
| Tax Area: | 710 - APPRAISER-S Whid Schl Dist, outside Langley, improved & 1 acre or less |
| CF | Conservation Futures | 0.0316035091 | $622,124 | $622,124 | $19.66 | | |
| FIRE3 | Fire & Rescue Dist #3 S Whidbey GEN | 1.2004855531 | $622,124 | $622,124 | $746.85 | | |
| HOBOND | Hospital BOND | 0.1910887512 | $622,124 | $622,124 | $118.88 | | |
| HOGEN | Hospital GEN | 0.3902502903 | $622,124 | $622,124 | $242.78 | | |
| CE | County Current Expense | 0.3708482477 | $622,124 | $622,124 | $230.71 | | |
| CR | County Roads | 0.4584763726 | $622,124 | $622,124 | $285.23 | | |
| ISLANDEMS | Hospital GEN (EMS) | 0.5000000000 | $622,124 | $622,124 | $311.06 | | |
| LIB | Library Sno-Isle GEN | 0.3153421757 | $622,124 | $622,124 | $196.18 | | |
| PORTWHID | Port of S Whidbey GEN | 0.1094540357 | $622,124 | $622,124 | $68.09 | | |
| SCH206BOND | School 206 BOND | 0.3161759235 | $622,124 | $622,124 | $196.70 | | |
| SCH206MO | School 206 Enrichment | 0.4547169547 | $622,124 | $622,124 | $282.89 | | |
| ST | State School | 1.3035497053 | $622,124 | $622,124 | $810.97 | | |
| ST2 | State School Part 2 | 0.8169543533 | $622,124 | $622,124 | $508.25 | | |
| SWHIDPRBD | P & R S Whidbey BOND | 0.0152817568 | $622,124 | $622,124 | $9.51 | | |
| SWHIDPRBD2 | P & R S Whidbey BOND2 | 0.0138911264 | $622,124 | $622,124 | $8.64 | | |
| SWHIDPRMT | P & R S Whidbey GEN | 0.2053334452 | $622,124 | $622,124 | $127.74 | | |
| | Total Tax Rate: | 6.6934522006 | | | | | |
| | | | | Taxes w/Current Exemptions: | $4,164.14 | | |
| | | | | Taxes w/o Exemptions: | $4,164.14 | | |
Improvement / Building
| Improvement #1: | RESIDENTIAL | State Code: | Y | 976.6 sqft | Value: | $232,124 |
| Bathrooms: | 1 | Bedrooms: | 2 | | Ceiling: | DRYWALL PAINTED | Exterior Wall/Cover: | SHINGLE | | Floor Covering: | CARPET/VINYL 80-20 | Floor Structure: | SLAB ABOVE GRADE | | Foundation: | CONCRETE | Heating: | WALL HEAT ELECTRIC | | Interior Finish: | DRYWALL PAINT | Plumbing Fixture Cnt: | 6 | | Roof Slope: | 12" IN 12" | Roof Structure/Cover: | BEAM ASPHALT |
|
| | Type | Description | Class CD | Sub Class CD | Year Built | Area |
| | BAS | BASE/MAIN FLOOR | 4 | 0 | 1957 | 746.8 |
| | OP3 | OPEN PORCH W/ROOF | 4 | 0 | 1957 | 285.0 |
| | UTY | STORAGE/UTILITY | 4 | 0 | 1957 | 85.2 |
| | LOF | LOFT | 4 | 0 | 1957 | 229.8 |
Sketch
Property Image
Land
| 1 | 14 | SQ (08001-12000) | 0.2000 | 8712.00 | 0.00 | 0.00 | 1.00 | $390,000 | $0 |
Roll Value History
| 2026 | N/A | N/A | N/A | N/A | N/A |
| 2025 | $232,124 | $390,000 | $0 | $622,124 | $622,124 |
| 2024 | $210,871 | $380,000 | $0 | $590,871 | $590,871 |
| 2023 | $213,435 | $360,000 | $0 | $573,435 | $573,435 |
| 2022 | $195,591 | $330,000 | $0 | $525,591 | $525,591 |
| 2021 | $126,669 | $230,000 | $0 | $356,669 | $356,669 |
| 2020 | $121,152 | $180,000 | $0 | $301,152 | $301,152 |
| 2019 | $86,620 | $190,000 | $0 | $276,620 | $276,620 |
| 2018 | $86,867 | $160,000 | $0 | $246,867 | $246,867 |
| 2017 | $87,365 | $130,000 | $0 | $217,365 | $217,365 |
| 2016 | $88,357 | $130,000 | $0 | $218,357 | $218,357 |
| 2015 | $89,350 | $130,000 | $0 | $219,350 | $219,350 |
| 2014 | $90,283 | $148,750 | $0 | $239,033 | $239,033 |
| 2013 | $91,298 | $148,750 | $0 | $240,048 | $240,048 |
| 2012 | $92,312 | $148,750 | $0 | $241,062 | $241,062 |
| 2011 | $93,327 | $175,000 | $0 | $268,327 | $268,327 |
| 2010 | $103,790 | $175,000 | $0 | $278,790 | $278,790 |
| 2009 | $109,060 | $200,000 | $0 | $309,060 | $309,060 |
| 2008 | $38,989 | $200,000 | $0 | $238,989 | $238,989 |
| 2007 | $39,650 | $190,000 | $0 | $229,650 | $229,650 |
Deed and Sales History
| 1 | 04/22/2025 | WD | Warranty Deed | WYCKOFF, LESELY CHAPIN | KOSSIK, JOHN | | | $825,000.00 | 63341 | 4585268 |
| 2 | 07/31/2024 | QCD | Quit Claim Deed | WYCKOFF, LESELY CHAPIN | WYCKOFF, LESLEY CHAPIN | | | $0.00 | 60815 | 4575345 |
| 3 | 03/15/2024 | QCD | Quit Claim Deed | WYCKOFF, PAUL L | WYCKOFF, LESELY CHAPIN | | | $0.00 | 59577 | 4570928 |
| 4 | 08/25/2021 | WD | Warranty Deed | LUCAS, TIMOTHY I | WYCKOFF, PAUL L | | | $675,000.00 | 49840 | 4528036 |
| 5 | 03/08/2017 | QCD | Quit Claim Deed | LUCAS, TIMOTHY I / KATHLEEN M I | LUCAS, TIMOTHY I | | | $70,298.00 | 28493 | 4419087 |
| 6 | 08/26/2000 | WD | Warranty Deed | BAGLEY, TERRANCE P | LUCAS, TIMOTHY I | | | $125,000.00 | 3278 | 20015351 |
| 7 | 07/01/1986 | WD | Warranty Deed | STEWARD, ALTA A | BAGLEY, TERRANCE P | | | $40,000.00 | 61799 | 86008505 |
| 8 | 01/01/1900 | OTHER | Other - Misc. Documents | Unknown | STEWARD, ALTA A | | | $0.00 | 0 | 0 |
Payout Agreement
| No payout information available.. |