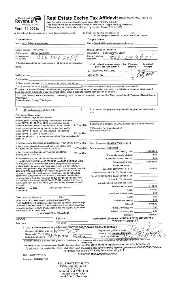
Property
Account |
| Property ID: | 115654 | Abbreviated Legal Description: | 35 - IN GL 1: BG SWCR GL 1 W22'M/L TO WLN CO RD N26*E ALG WLN CO RD 1187.08'TPB N26*E120' N63*W420' SWLY STRAIGHT LN TP N63*W460'FR POB S63*E460'POB INCL ADJ TIDES |
| Geographic ID: | R32805-118-4750 | Agent Code: | |
| Type: | Real | | |
| Tax Area: | 712 - APPRAISER-S Whid Schl Dist, outside Langley, improved, greater than 1 acre | Land Use Code | 11 |
| Open Space: | N | DFL | N |
| Historic Property: | N | Remodel Property: | N |
| Multi-Family Redevelopment: | N | | |
| Township: | 28 | Section: | 05 |
| Range: | R3 |
Location |
| Address: | 7510 MAXWELTON RD CLINTON, WA 98236 | Mapsco: | |
| Neighborhood: | Cycle 4 | Map ID: | 691 |
| Neighborhood CD: | 4 |
Owner |
| Name: | HOOGERWERF, DAVID N | Owner ID: | 15994 |
| Mailing Address: | 7510 MAXWELTON RD CLINTON, WA 98236-9243 | % Ownership: | 100.0000000000% |
| | | Exemptions: | |
Taxes and Assessment Details
Values
| (+) Improvement Homesite Value: | + | $0 | |
| (+) Improvement Non-Homesite Value: | + | $402,194 | |
| (+) Land Homesite Value: | + | $0 | |
| (+) Land Non-Homesite Value: | + | $1,051,210 | |
| (+) Curr Use (HS): | + | $0 | $0 |
| (+) Curr Use (NHS): | + | $0 | $0 |
| | | -------------------------- | |
| (=) Market Value: | = | $1,453,404 | |
| (–) Productivity Loss: | – | $0 | |
| | | -------------------------- | |
| (=) Subtotal: | = | $1,453,404 | |
| (+) Senior Appraised Value: | + | $0 | |
| (+) Non-Senior Appraised Value: | + | $1,453,404 | |
| | | -------------------------- | |
| (=) Total Appraised Value: | = | $1,453,404 | |
| (–) Senior Exemption Loss: | – | $0 | |
| (–) Exemption Loss: | – | $0 | |
| | | -------------------------- | |
| (=) Taxable Value: | = | $1,453,404 | |
Taxing Jurisdiction
| Owner: | HOOGERWERF, DAVID N | | |
| % Ownership: | 100.0000000000% | | |
| Total Value: | $1,453,404 | | |
| Tax Area: | 712 - APPRAISER-S Whid Schl Dist, outside Langley, improved, greater than 1 acre |
| CF | Conservation Futures | 0.0316035091 | $1,453,404 | $1,453,404 | $45.93 | | |
| FIRE3 | Fire & Rescue Dist #3 S Whidbey GEN | 1.2004855531 | $1,453,404 | $1,453,404 | $1,744.79 | | |
| HOBOND | Hospital BOND | 0.1910887512 | $1,453,404 | $1,453,404 | $277.73 | | |
| HOGEN | Hospital GEN | 0.3902502903 | $1,453,404 | $1,453,404 | $567.19 | | |
| CE | County Current Expense | 0.3708482477 | $1,453,404 | $1,453,404 | $538.99 | | |
| CR | County Roads | 0.4584763726 | $1,453,404 | $1,453,404 | $666.35 | | |
| ISLANDEMS | Hospital GEN (EMS) | 0.5000000000 | $1,453,404 | $1,453,404 | $726.70 | | |
| LIB | Library Sno-Isle GEN | 0.3153421757 | $1,453,404 | $1,453,404 | $458.32 | | |
| PORTWHID | Port of S Whidbey GEN | 0.1094540357 | $1,453,404 | $1,453,404 | $159.08 | | |
| SCH206BOND | School 206 BOND | 0.3161759235 | $1,453,404 | $1,453,404 | $459.53 | | |
| SCH206MO | School 206 Enrichment | 0.4547169547 | $1,453,404 | $1,453,404 | $660.89 | | |
| ST | State School | 1.3035497053 | $1,453,404 | $1,453,404 | $1,894.58 | | |
| ST2 | State School Part 2 | 0.8169543533 | $1,453,404 | $1,453,404 | $1,187.36 | | |
| SWHIDPRBD | P & R S Whidbey BOND | 0.0152817568 | $1,453,404 | $1,453,404 | $22.21 | | |
| SWHIDPRBD2 | P & R S Whidbey BOND2 | 0.0138911264 | $1,453,404 | $1,453,404 | $20.19 | | |
| SWHIDPRMT | P & R S Whidbey GEN | 0.2053334452 | $1,453,404 | $1,453,404 | $298.43 | | |
| | Total Tax Rate: | 6.6934522006 | | | | | |
| | | | | Taxes w/Current Exemptions: | $9,728.27 | | |
| | | | | Taxes w/o Exemptions: | $9,728.27 | | |
Improvement / Building
| Improvement #1: | RESIDENTIAL | State Code: | Y | 2151.0 sqft | Value: | $402,194 |
| Bathrooms: | 1 | Bedrooms: | 3 | | Ceiling: | PLYWOOD PAINTED | Exterior Wall/Cover: | WOOD SIDING | | Floor Covering: | CARPET/VINYL 80-20 | Floor Structure: | WOOD W/SUBFLOOR | | Foundation: | CONCRETE | Heating: | FHA OIL | | Interior Finish: | DRYWALL PAINT | Plumbing Fixture Cnt: | 8 | | Roof Slope: | 4" IN 12" | Roof Structure/Cover: | CJ ALUMINIUM HEAVY |
|
| | Type | Description | Class CD | Sub Class CD | Year Built | Area |
| | BAS | BASE/MAIN FLOOR | 3 | 0 | 1956 | 1131.0 |
| | UB6 | BASEMENT UNFINISHED 6" | 3 | 0 | 1956 | 646.0 |
| | OP4 | OPEN PORCH W/CEILING-ROOF | 3 | 0 | 1956 | 136.0 |
| | OCP | OPEN CARPORT | 3 | 0 | 1956 | 429.0 |
| | OWP | OPEN WOOD PORCH W/STEPS | 3 | 0 | 1956 | 180.0 |
| | OWR | OPEN WOOD PORCH W/STEPS/ROOF | 3 | 0 | 1956 | 252.0 |
| | BIG | BUILT IN GARAGE | 3 | 0 | 1956 | 2190.3 |
| | UPS | UPPER STORY | 3 | 0 | 1956 | 1020.0 |
| | OP1 | OPEN PORCH SLAB | 3 | 0 | 1956 | 180.0 |
Sketch
Property Image
Land
| 1 | LB | LOW BANK | 1.2300 | 53578.80 | 121.00 | 0.00 | 1.00 | $1,050,000 | $0 |
| 2 | 55 | TIDES | 0.0000 | 0.00 | 121.00 | 0.00 | 1.00 | $1,210 | $0 |
Roll Value History
| 2026 | N/A | N/A | N/A | N/A | N/A |
| 2025 | $402,194 | $1,051,210 | $0 | $1,453,404 | $1,453,404 |
| 2024 | $406,968 | $1,051,210 | $0 | $1,458,178 | $1,458,178 |
| 2023 | $411,741 | $1,051,210 | $0 | $1,462,951 | $1,462,951 |
| 2022 | $377,134 | $1,051,210 | $0 | $1,428,344 | $1,428,344 |
| 2021 | $331,695 | $851,210 | $0 | $1,182,905 | $1,182,905 |
| 2020 | $307,655 | $761,210 | $0 | $1,068,865 | $1,068,865 |
| 2019 | $219,296 | $801,210 | $0 | $1,020,506 | $1,020,506 |
| 2018 | $219,916 | $801,210 | $0 | $1,021,126 | $1,021,126 |
| 2017 | $221,159 | $801,210 | $0 | $1,022,369 | $1,022,369 |
| 2016 | $223,644 | $801,210 | $0 | $1,024,854 | $1,024,854 |
| 2015 | $226,127 | $801,210 | $0 | $1,027,337 | $1,027,337 |
| 2014 | $167,877 | $1,001,210 | $0 | $1,169,087 | $1,169,087 |
| 2013 | $169,384 | $1,045,754 | $0 | $1,215,138 | $1,215,138 |
| 2012 | $170,891 | $1,045,754 | $0 | $1,216,645 | $1,216,645 |
| 2011 | $166,856 | $1,045,754 | $0 | $1,212,610 | $1,212,610 |
| 2010 | $180,096 | $1,045,754 | $0 | $1,225,850 | $1,225,850 |
| 2009 | $185,433 | $1,306,890 | $0 | $1,492,323 | $1,492,323 |
| 2008 | $163,364 | $1,321,762 | $0 | $1,485,126 | $1,485,126 |
| 2007 | $90,236 | $1,024,067 | $0 | $1,114,303 | $1,114,303 |
Deed and Sales History
| 1 | 04/01/1988 | WD | Warranty Deed | MAHLER, BRUCE A | HOOGERWERF, DAVID N | | | $175,000.00 | 82506 | 88009443 |
| 2 | 01/01/1900 | OTHER | Other - Misc. Documents | Unknown | MAHLER, BRUCE A | | | $0.00 | 0 | 0 |
Payout Agreement
| No payout information available.. |