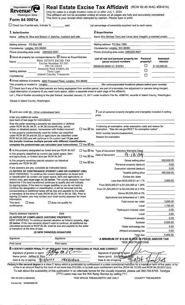
Property
Account |
| Property ID: | 11588 | Abbreviated Legal Description: | 56 SUM DC - BG NE CR L22 SMITH ADD S71*W246.5' N696. 5' M/L TO 400 AVE W E228.71 S50' W60' S120' E60' S441.5 M/L TPB |
| Geographic ID: | R13202-319-2800 | Agent Code: | |
| Type: | Real | | |
| Tax Area: | 100 - APPRAISER-OH Schl Dist, in OH | Land Use Code | 67 |
| Open Space: | N | DFL | N |
| Historic Property: | N | Remodel Property: | N |
| Multi-Family Redevelopment: | N | | |
| Township: | 32 | Section: | 02 |
| Range: | R1 |
Location |
| Address: | 865 SE BARRINGTON DR OAK HARBOR, WA 98277 | Mapsco: | |
| Neighborhood: | 12cOH-barrington | Map ID: | 89 |
| Neighborhood CD: | 12cOHbrgtn |
Owner |
| Name: | CITY OF OAK HARBOR | Owner ID: | 185966 |
| Mailing Address: | 865 SE BARRINGTON DR OAK HARBOR, WA 98277-3280 | % Ownership: | 100.0000000000% |
| | | Exemptions: | EX |
Taxes and Assessment Details
Property Tax Information as of
10/22/2025
Click on "Statement Details" to expand or collapse a tax statement.
* Please enter a valid date ** Please enter a valid date *
Statement Details |
| 2025 | 606 | ST - State School | $0.00 | $0.00 | $0.00 | $0.00 | $0.00 | $0.00 |
| 2025 | 606 | Island County - Island County General Fund | $0.00 | $0.00 | $0.00 | $0.00 | $0.00 | $0.00 |
| 2025 | 606 | CIOKHRB - City of Oak Harbor | $0.00 | $0.00 | $0.00 | $0.00 | $0.00 | $0.00 |
| 2025 | 606 | PRKRECNWHDBY - Park & Recreation North Whidbey | $0.00 | $0.00 | $0.00 | $0.00 | $0.00 | $0.00 |
| 2025 | 606 | SCH201 - School 201 Oak Harbor | $0.00 | $0.00 | $0.00 | $0.00 | $0.00 | $0.00 |
| 2025 | 606 | CEM1 - Cemetery #1 North Whidbey | $0.00 | $0.00 | $0.00 | $0.00 | $0.00 | $0.00 |
| 2025 | 606 | LIB - Library Sno-Isle Regional | $0.00 | $0.00 | $0.00 | $0.00 | $0.00 | $0.00 |
| 2025 | 606 | HOSPEMS - Whidbey Health EMS Island County | $0.00 | $0.00 | $0.00 | $0.00 | $0.00 | $0.00 |
| 2025 | 606 | HOSP - Whidbey Health | $0.00 | $0.00 | $0.00 | $0.00 | $0.00 | $0.00 |
| 2025 | 606 | CF - Island County Conservation Futures | $0.00 | $0.00 | $0.00 | $0.00 | $0.00 | $0.00 |
| 2025 | 606 | TOTAL: | $0.00 | $0.00 | $0.00 | $0.00 | $0.00 | $0.00 |
|
| 2025 | 606 | $0.00 | $0.00 | $0.00 | $0.00 | $0.00 | $0.00 |
Statement Details |
| 2016 | 611 | WDBYCNV - Whidbey Conservation District | $0.00 | $0.00 | $0.00 | $0.00 | $0.00 | $0.00 |
| 2016 | 611 | TOTAL: | $0.00 | $0.00 | $0.00 | $0.00 | $0.00 | $0.00 |
|
| 2016 | 611 | $0.00 | $0.00 | $0.00 | $0.00 | $0.00 | $0.00 |
Values
| (+) Improvement Homesite Value: | + | $0 | |
| (+) Improvement Non-Homesite Value: | + | $4,660,246 | |
| (+) Land Homesite Value: | + | $0 | |
| (+) Land Non-Homesite Value: | + | $2,012,472 | |
| (+) Curr Use (HS): | + | $0 | $0 |
| (+) Curr Use (NHS): | + | $0 | $0 |
| | | -------------------------- | |
| (=) Market Value: | = | $6,672,718 | |
| (–) Productivity Loss: | – | $0 | |
| | | -------------------------- | |
| (=) Subtotal: | = | $6,672,718 | |
| (+) Senior Appraised Value: | + | $0 | |
| (+) Non-Senior Appraised Value: | + | $6,672,718 | |
| | | -------------------------- | |
| (=) Total Appraised Value: | = | $6,672,718 | |
| (–) Senior Exemption Loss: | – | $0 | |
| (–) Exemption Loss: | – | $6,672,718 | |
| | | -------------------------- | |
| (=) Taxable Value: | = | $0 | |
Taxing Jurisdiction
| Owner: | CITY OF OAK HARBOR | | |
| % Ownership: | 100.0000000000% | | |
| Total Value: | $6,672,718 | | |
| Tax Area: | 100 - APPRAISER-OH Schl Dist, in OH |
| CF | Conservation Futures | 0.0316035091 | $6,672,718 | $0 | $0.00 | | |
| CEM1 | Cemetery #1 | 0.0040320932 | $6,672,718 | $0 | $0.00 | | |
| COH | City of Oak Harbor | 2.3001546061 | $6,672,718 | $0 | $0.00 | | |
| OAKBOND | City of Oak Harbor BOND | 0.1926904192 | $6,672,718 | $0 | $0.00 | | |
| HOBOND | Hospital BOND | 0.1910887512 | $6,672,718 | $0 | $0.00 | | |
| HOGEN | Hospital GEN | 0.3902502903 | $6,672,718 | $0 | $0.00 | | |
| CE | County Current Expense | 0.3708482477 | $6,672,718 | $0 | $0.00 | | |
| ISLANDEMS | Hospital GEN (EMS) | 0.5000000000 | $6,672,718 | $0 | $0.00 | | |
| LIB | Library Sno-Isle GEN | 0.3153421757 | $6,672,718 | $0 | $0.00 | | |
| NWHIDPRMT | P & R N Whidbey GEN | 0.2004466701 | $6,672,718 | $0 | $0.00 | | |
| SCH201MO | School 201 Enrichment | 1.8559231640 | $6,672,718 | $0 | $0.00 | | |
| ST | State School | 1.3035497053 | $6,672,718 | $0 | $0.00 | | |
| ST2 | State School Part 2 | 0.8169543533 | $6,672,718 | $0 | $0.00 | | |
| | Total Tax Rate: | 8.4728839852 | | | | | |
| | | | | Taxes w/Current Exemptions: | $0.00 | | |
| | | | | Taxes w/o Exemptions: | $56,537.17 | | |
Improvement / Building
| Improvement #1: | COMMERCIAL | State Code: | F1 | 16034.8 sqft | Value: | $2,721,695 |
| Bathrooms: | 0 | Ceiling: | SUSPENDED | | Exterior Wall/Cover: | 8" CON BLK/BEAR WALL | Floor Covering: | CARPET 100% | | Floor Structure: | CONCRETE ON GROUND | Foundation: | SLAB | | Heating: | ZONED AC/HEAT | Interior Finish: | GOVERNMENT | | Plumbing Fixture Cnt: | 1 | Roof Structure/Cover: | BUILT UP/STEEL JOIST |
|
| | Type | Description | Class CD | Sub Class CD | Year Built | Area |
| | BAS | BASE/MAIN FLOOR | 3 | 0 | 1960 | 16034.8 |
| | AGR | ATTACHED GARAGE | 3 | 0 | 1960 | 2772.0 |
| | AGR | ATTACHED GARAGE | 3 | 0 | 1960 | 432.0 |
| | ENP | ENCLOSED PORCH | 3 | 0 | 1960 | 119.0 |
| | OP2 | OPEN PORCH W/STEPS | 3 | 0 | 1960 | 72.0 |
| | OP3 | OPEN PORCH W/ROOF | 3 | 0 | 1960 | 68.0 |
| | OP1 | OPEN PORCH SLAB | 3 | 0 | 1960 | 1978.0 |
| | OP2 | OPEN PORCH W/STEPS | 3 | 0 | 1960 | 420.0 |
| | oPV2 | PV/ASPH 3" | 3 | 0 | 1960 | 45700.0 |
| Improvement #2: | COMMERCIAL | State Code: | F1 | 13537.4 sqft | Value: | $1,938,551 |
| Bathrooms: | 0 | Ceiling: | SUSPENDED | | Exterior Wall/Cover: | 8" CONC BLK/CON FRAM | Floor Covering: | CARPET 100% | | Floor Structure: | WOOD ON WOOD JOIST | Foundation: | CONCRETE | | Heating: | ZONED AC/HEAT | Interior Finish: | GOVERNMENT | | Plumbing Fixture Cnt: | 1 | Roof Structure/Cover: | BEAM BUILT-UP ROCK |
|
| | Type | Description | Class CD | Sub Class CD | Year Built | Area |
| | BAS | BASE/MAIN FLOOR | 3 | 0 | 1960 | 6768.1 |
| | OP2 | OPEN PORCH W/STEPS | 3 | 0 | 1960 | 52.0 |
| | OP3 | OPEN PORCH W/ROOF | 3 | 0 | 1960 | 91.3 |
| | UTY | STORAGE/UTILITY | 3 | 0 | 1960 | 38.5 |
| | BAR | BALCONY W/ROOF | 3 | 0 | 1960 | 64.1 |
| | BAR | BALCONY W/ROOF | 3 | 0 | 1960 | 284.8 |
| | ENP | ENCLOSED PORCH | 3 | 0 | 1960 | 47.2 |
| | ENP | ENCLOSED PORCH | 3 | 0 | 1960 | 185.8 |
| | DWN | DOWNSTAIRS LIVING AREA | 3 | 0 | 1960 | 6769.3 |
| | OP2 | OPEN PORCH W/STEPS | 3 | 0 | 1960 | 546.0 |
| | oPV2 | PV/ASPH 3" | 3 | 0 | 1960 | 20900.0 |
Sketch
Property Image
Land
| 1 | 77 | COMMUNITY | 3.3000 | 143748.00 | 0.00 | 0.00 | 1.00 | $2,012,472 | $0 |
Roll Value History
| 2026 | N/A | N/A | N/A | N/A | N/A |
| 2025 | $4,660,246 | $2,012,472 | $0 | $6,672,718 | $0 |
| 2024 | $4,789,080 | $2,012,472 | $0 | $6,801,552 | $0 |
| 2023 | $4,018,445 | $2,012,472 | $0 | $6,030,917 | $0 |
| 2022 | $3,414,366 | $2,012,472 | $0 | $5,426,838 | $0 |
| 2021 | $3,374,788 | $2,012,472 | $0 | $5,387,260 | $0 |
| 2020 | $3,370,016 | $2,012,472 | $0 | $5,382,488 | $0 |
| 2019 | $3,193,227 | $718,740 | $0 | $3,911,967 | $0 |
| 2018 | $3,193,972 | $574,992 | $0 | $3,768,964 | $0 |
| 2017 | $3,576,022 | $540,000 | $0 | $4,116,022 | $0 |
| 2016 | $3,625,050 | $540,000 | $0 | $4,165,050 | $0 |
| 2015 | $3,674,081 | $536,500 | $0 | $4,210,581 | $0 |
| 2014 | $3,723,108 | $536,500 | $0 | $4,259,608 | $0 |
| 2013 | $3,772,135 | $536,500 | $0 | $4,308,635 | $0 |
| 2012 | $3,821,164 | $525,770 | $0 | $4,346,934 | $0 |
| 2011 | $3,327,236 | $525,770 | $0 | $3,853,006 | $0 |
| 2010 | $4,061,529 | $525,770 | $0 | $4,587,299 | $0 |
| 2009 | $4,105,692 | $782,037 | $0 | $4,887,729 | $0 |
| 2008 | $4,167,448 | $814,407 | $0 | $4,981,855 | $0 |
| 2007 | $4,222,001 | $814,407 | $0 | $5,036,408 | $0 |
Deed and Sales History
Payout Agreement
| No payout information available.. |