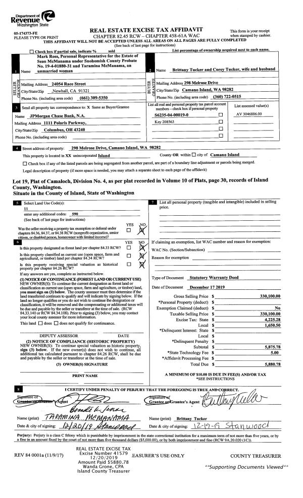
Property
Account |
| Property ID: | 116109 | Abbreviated Legal Description: | 33 - BG 320'S OF NECR GL2 S50' W568.76' N50' TP 320'S OF NLN E PAR SD NLN TPB EX E20' FOR RD |
| Geographic ID: | R32808-493-4940 | Agent Code: | |
| Type: | Real | | |
| Tax Area: | 719 - APPRAISER-S Whid Schl Dist, outside Langley, vacant & 50 acres or less | Land Use Code | 91 |
| Open Space: | N | DFL | N |
| Historic Property: | N | Remodel Property: | N |
| Multi-Family Redevelopment: | N | | |
| Township: | 28 | Section: | 08 |
| Range: | R3 |
Location |
| Address: | | Mapsco: | |
| Neighborhood: | Cycle 4 | Map ID: | 692 |
| Neighborhood CD: | 4 |
Owner |
| Name: | LULUDOG, LLC | Owner ID: | 292138 |
| Mailing Address: | 6426 NE WINDERMERE RD SEATTLE, WA 98105 | % Ownership: | 100.0000000000% |
| | | Exemptions: | |
Taxes and Assessment Details
Values
| (+) Improvement Homesite Value: | + | $0 | |
| (+) Improvement Non-Homesite Value: | + | $0 | |
| (+) Land Homesite Value: | + | $0 | |
| (+) Land Non-Homesite Value: | + | $17,000 | |
| (+) Curr Use (HS): | + | $0 | $0 |
| (+) Curr Use (NHS): | + | $0 | $0 |
| | | -------------------------- | |
| (=) Market Value: | = | $17,000 | |
| (–) Productivity Loss: | – | $0 | |
| | | -------------------------- | |
| (=) Subtotal: | = | $17,000 | |
| (+) Senior Appraised Value: | + | $0 | |
| (+) Non-Senior Appraised Value: | + | $17,000 | |
| | | -------------------------- | |
| (=) Total Appraised Value: | = | $17,000 | |
| (–) Senior Exemption Loss: | – | $0 | |
| (–) Exemption Loss: | – | $0 | |
| | | -------------------------- | |
| (=) Taxable Value: | = | $17,000 | |
Taxing Jurisdiction
| Owner: | LULUDOG, LLC | | |
| % Ownership: | 100.0000000000% | | |
| Total Value: | $17,000 | | |
| Tax Area: | 719 - APPRAISER-S Whid Schl Dist, outside Langley, vacant & 50 acres or less |
| CF | Conservation Futures | 0.0316035091 | $17,000 | $17,000 | $0.54 | | |
| HOBOND | Hospital BOND | 0.1910887512 | $17,000 | $17,000 | $3.25 | | |
| HOGEN | Hospital GEN | 0.3902502903 | $17,000 | $17,000 | $6.63 | | |
| CE | County Current Expense | 0.3708482477 | $17,000 | $17,000 | $6.30 | | |
| CR | County Roads | 0.4584763726 | $17,000 | $17,000 | $7.79 | | |
| ISLANDEMS | Hospital GEN (EMS) | 0.5000000000 | $17,000 | $17,000 | $8.50 | | |
| LIB | Library Sno-Isle GEN | 0.3153421757 | $17,000 | $17,000 | $5.36 | | |
| PORTWHID | Port of S Whidbey GEN | 0.1094540357 | $17,000 | $17,000 | $1.86 | | |
| SCH206BOND | School 206 BOND | 0.3161759235 | $17,000 | $17,000 | $5.37 | | |
| SCH206MO | School 206 Enrichment | 0.4547169547 | $17,000 | $17,000 | $7.73 | | |
| ST | State School | 1.3035497053 | $17,000 | $17,000 | $22.16 | | |
| ST2 | State School Part 2 | 0.8169543533 | $17,000 | $17,000 | $13.89 | | |
| SWHIDPRBD | P & R S Whidbey BOND | 0.0152817568 | $17,000 | $17,000 | $0.26 | | |
| SWHIDPRBD2 | P & R S Whidbey BOND2 | 0.0138911264 | $17,000 | $17,000 | $0.24 | | |
| SWHIDPRMT | P & R S Whidbey GEN | 0.2053334452 | $17,000 | $17,000 | $3.49 | | |
| | Total Tax Rate: | 5.4929666475 | | | | | |
| | | | | Taxes w/Current Exemptions: | $93.37 | | |
| | | | | Taxes w/o Exemptions: | $93.37 | | |
Improvement / Building
Sketch
| No sketches available for this property. |
Property Image
Land
| 1 | 16 | AC (00.51-01.00) | 0.6000 | 26136.00 | 0.00 | 0.00 | 1.00 | $17,000 | $0 |
Roll Value History
| 2026 | N/A | N/A | N/A | N/A | N/A |
| 2025 | $0 | $17,000 | $0 | $17,000 | $17,000 |
| 2024 | $0 | $17,000 | $0 | $17,000 | $17,000 |
| 2023 | $0 | $9,000 | $0 | $9,000 | $9,000 |
| 2022 | $0 | $9,000 | $0 | $9,000 | $9,000 |
| 2021 | $0 | $7,000 | $0 | $7,000 | $7,000 |
| 2020 | $0 | $7,000 | $0 | $7,000 | $7,000 |
| 2019 | $0 | $7,000 | $0 | $7,000 | $7,000 |
| 2018 | $0 | $7,000 | $0 | $7,000 | $7,000 |
| 2017 | $0 | $5,000 | $0 | $5,000 | $5,000 |
| 2016 | $0 | $5,000 | $0 | $5,000 | $5,000 |
| 2015 | $0 | $5,000 | $0 | $5,000 | $5,000 |
| 2014 | $0 | $78,750 | $0 | $78,750 | $78,750 |
| 2013 | $0 | $78,750 | $0 | $78,750 | $78,750 |
| 2012 | $0 | $78,750 | $0 | $78,750 | $78,750 |
| 2011 | $0 | $78,750 | $0 | $78,750 | $78,750 |
| 2010 | $0 | $78,750 | $0 | $78,750 | $78,750 |
| 2009 | $0 | $80,000 | $0 | $80,000 | $80,000 |
| 2008 | $0 | $80,000 | $0 | $80,000 | $80,000 |
| 2007 | $0 | $70,000 | $0 | $70,000 | $70,000 |
Deed and Sales History
| 1 | 10/04/2019 | WD | Warranty Deed | LOVELAND, LEE KERRY | LULUDOG, LLC | | | $0.00 | 40599 | 4472976 |
| 2 | 10/04/2019 | WD | Warranty Deed | HERMSEN, MATTHEW T | LOVELAND, LEE KERRY | | | $700,000.00 | 40598 | 4472975 |
|   | |
| 3 | 10/04/2019 | WD | Warranty Deed | HONEY LULU, LLC (50%) | HERMSEN, MATTHEW T | | | $0.00 | 40597 | 4472974 |
| 4 | 10/04/2019 | WD | Warranty Deed | HONEY LULU, LLC | HONEY LULU, LLC (50%) | | | $0.00 | 40596 | 4472973 |
| 5 | 08/23/2019 | WD | Warranty Deed | HONEY LULU, LLC | HONEY LULU, LLC | | | $0.00 | 40043 | 4470394 |
| 6 | 08/23/2019 | WD | Warranty Deed | HERMSEN, MATTHEW T | HONEY LULU, LLC | | | $0.00 | 40042 | 4470393 |
| 7 | 08/23/2019 | WD | Warranty Deed | HERMSEN, MATTHEW T | HERMSEN, MATTHEW T | | | $700,000.00 | 40041 | 4470392 |
|   | |
| 8 | 06/18/2015 | WD | Warranty Deed | SABEY, JOHN D | HERMSEN, MATTHEW T | | | $850,000.00 | 20095 | 4380553 |
|   | |
| 9 | 08/15/2007 | WD | Warranty Deed | WATSON, THOMAS W | SABEY, JOHN D | | | $91,220.00 | 72865 | 4210203 |
| 10 | 07/16/2007 | WD | Warranty Deed | WATSON, THOMAS W | WATSON, THOMAS W | | | $0.00 | 72407 | 4207169 |
| 11 | 03/25/2004 | WD | Warranty Deed | WANDELL, PATRICIA C | WATSON, THOMAS W | | | $41,200.00 | 413148 | 4096415 |
| 12 | 12/01/1994 | QCD | Quit Claim Deed | WANDELL, PATRICIA C | WANDELL, PATRICIA C | | | $0.00 | 45109 | 94026061 |
| 13 | 10/01/1988 | QCD | Quit Claim Deed | WANDELL, PATRICIA C | WANDELL, PATRICIA C | | | $0.00 | 83712 | 88013873 |
| 14 | 10/01/1988 | QCD | Quit Claim Deed | WANDELL, D W | WANDELL, PATRICIA C | | | $0.00 | 53992 | 95018372 |
Payout Agreement
| No payout information available.. |