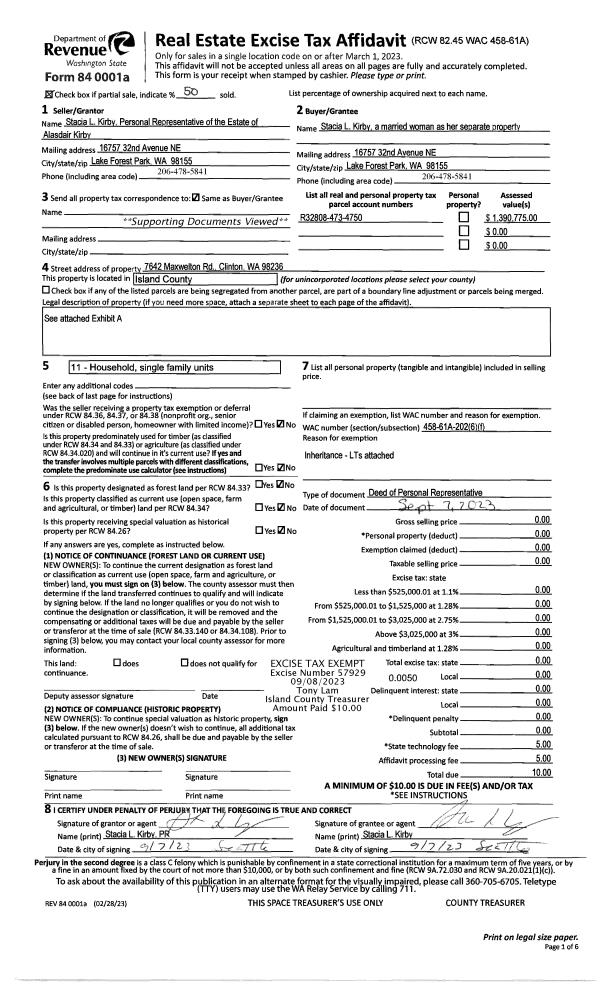
Property
Account |
| Property ID: | 116699 | Abbreviated Legal Description: | 31 - IN W/4 N/2 SW NE: BG NWCR E208.71' S417.42' W TO WLN N TPB |
| Geographic ID: | R32809-375-2720 | Agent Code: | |
| Type: | Real | | |
| Tax Area: | 712 - APPRAISER-S Whid Schl Dist, outside Langley, improved, greater than 1 acre | Land Use Code | 11 |
| Open Space: | N | DFL | N |
| Historic Property: | N | Remodel Property: | N |
| Multi-Family Redevelopment: | N | | |
| Township: | 28 | Section: | 09 |
| Range: | R3 |
Location |
| Address: | 3410 SWEDE HILL RD CLINTON, WA 98236 | Mapsco: | |
| Neighborhood: | Cycle 4 | Map ID: | 696 |
| Neighborhood CD: | 4 |
Owner |
| Name: | DOHERTY TTEE, SUE C | Owner ID: | 307363 |
| Mailing Address: | KEVIN L. MURRAY TTEE 3410 SWEDE HILL RD CLINTON, WA 98236 | % Ownership: | 100.0000000000% |
| | | Exemptions: | |
Taxes and Assessment Details
Values
| (+) Improvement Homesite Value: | + | $0 | |
| (+) Improvement Non-Homesite Value: | + | $126,698 | |
| (+) Land Homesite Value: | + | $0 | |
| (+) Land Non-Homesite Value: | + | $290,000 | |
| (+) Curr Use (HS): | + | $0 | $0 |
| (+) Curr Use (NHS): | + | $0 | $0 |
| | | -------------------------- | |
| (=) Market Value: | = | $416,698 | |
| (–) Productivity Loss: | – | $0 | |
| | | -------------------------- | |
| (=) Subtotal: | = | $416,698 | |
| (+) Senior Appraised Value: | + | $0 | |
| (+) Non-Senior Appraised Value: | + | $416,698 | |
| | | -------------------------- | |
| (=) Total Appraised Value: | = | $416,698 | |
| (–) Senior Exemption Loss: | – | $0 | |
| (–) Exemption Loss: | – | $0 | |
| | | -------------------------- | |
| (=) Taxable Value: | = | $416,698 | |
Taxing Jurisdiction
| Owner: | DOHERTY TTEE, SUE C | | |
| % Ownership: | 100.0000000000% | | |
| Total Value: | $416,698 | | |
| Tax Area: | 712 - APPRAISER-S Whid Schl Dist, outside Langley, improved, greater than 1 acre |
| CF | Conservation Futures | 0.0316035091 | $416,698 | $416,698 | $13.17 | | |
| FIRE3 | Fire & Rescue Dist #3 S Whidbey GEN | 1.2004855531 | $416,698 | $416,698 | $500.24 | | |
| HOBOND | Hospital BOND | 0.1910887512 | $416,698 | $416,698 | $79.63 | | |
| HOGEN | Hospital GEN | 0.3902502903 | $416,698 | $416,698 | $162.62 | | |
| CE | County Current Expense | 0.3708482477 | $416,698 | $416,698 | $154.53 | | |
| CR | County Roads | 0.4584763726 | $416,698 | $416,698 | $191.05 | | |
| ISLANDEMS | Hospital GEN (EMS) | 0.5000000000 | $416,698 | $416,698 | $208.35 | | |
| LIB | Library Sno-Isle GEN | 0.3153421757 | $416,698 | $416,698 | $131.40 | | |
| PORTWHID | Port of S Whidbey GEN | 0.1094540357 | $416,698 | $416,698 | $45.61 | | |
| SCH206BOND | School 206 BOND | 0.3161759235 | $416,698 | $416,698 | $131.75 | | |
| SCH206MO | School 206 Enrichment | 0.4547169547 | $416,698 | $416,698 | $189.48 | | |
| ST | State School | 1.3035497053 | $416,698 | $416,698 | $543.19 | | |
| ST2 | State School Part 2 | 0.8169543533 | $416,698 | $416,698 | $340.42 | | |
| SWHIDPRBD | P & R S Whidbey BOND | 0.0152817568 | $416,698 | $416,698 | $6.37 | | |
| SWHIDPRBD2 | P & R S Whidbey BOND2 | 0.0138911264 | $416,698 | $416,698 | $5.79 | | |
| SWHIDPRMT | P & R S Whidbey GEN | 0.2053334452 | $416,698 | $416,698 | $85.56 | | |
| | Total Tax Rate: | 6.6934522006 | | | | | |
| | | | | Taxes w/Current Exemptions: | $2,789.16 | | |
| | | | | Taxes w/o Exemptions: | $2,789.16 | | |
Improvement / Building
| Improvement #1: | MANUFACTURED HOME | State Code: | Y | 1321.0 sqft | Value: | $126,698 |
| Bathrooms: | 0 | Bedrooms: | 0 | | Ceiling: | PLASTER PAINTED | Cooling: | EVAP NO DUCT | | Exterior Wall/Cover: | VINYL | Floor Covering: | CARPET 100% | | Floor Structure: | SLAB ON GRADE | Foundation: | SLAB | | Heating: | FHA ELECTRIC | Interior Finish: | PLASTER | | Plumbing Fixture Cnt: | 1 | Roof Slope: | FLAT | | Roof Structure/Cover: | CJ ALUMINIUM HEAVY |   |   |
|
| | Type | Description | Class CD | Sub Class CD | Year Built | Area |
| | BAS | BASE/MAIN FLOOR | 3 | 0 | 1997 | 1321.0 |
| | OWP | OPEN WOOD PORCH W/STEPS | 3 | 0 | 1997 | 342.5 |
| | OCP | OPEN CARPORT | 3 | 0 | 1997 | 504.0 |
| | DGR | DETACHED GARAGE | 3 | 0 | 1997 | 1296.0 |
Sketch
Property Image
Land
| 1 | 17 | AC (01.01-02.00) | 2.0000 | 87120.00 | 0.00 | 0.00 | 1.00 | $290,000 | $0 |
Roll Value History
| 2026 | N/A | N/A | N/A | N/A | N/A |
| 2025 | $126,698 | $290,000 | $0 | $416,698 | $416,698 |
| 2024 | $128,458 | $280,000 | $0 | $408,458 | $408,458 |
| 2023 | $131,978 | $260,000 | $0 | $391,978 | $391,978 |
| 2022 | $122,690 | $250,000 | $0 | $372,690 | $372,690 |
| 2021 | $109,479 | $175,000 | $0 | $284,479 | $284,479 |
| 2020 | $106,285 | $165,000 | $0 | $271,285 | $271,285 |
| 2019 | $85,826 | $200,000 | $0 | $285,826 | $285,826 |
| 2018 | $87,946 | $170,000 | $0 | $257,946 | $257,946 |
| 2017 | $90,065 | $150,000 | $0 | $240,065 | $240,065 |
| 2016 | $91,124 | $135,000 | $0 | $226,124 | $226,124 |
| 2015 | $92,185 | $135,000 | $0 | $227,185 | $227,185 |
| 2014 | $67,984 | $110,500 | $0 | $178,484 | $178,484 |
| 2013 | $68,480 | $110,500 | $0 | $178,980 | $178,980 |
| 2012 | $68,976 | $110,500 | $0 | $179,476 | $179,476 |
| 2011 | $69,471 | $130,000 | $0 | $199,471 | $199,471 |
| 2010 | $66,795 | $130,000 | $0 | $196,795 | $196,795 |
| 2009 | $66,314 | $155,000 | $0 | $221,314 | $221,314 |
| 2008 | $64,456 | $160,000 | $0 | $224,456 | $224,456 |
| 2007 | $66,407 | $135,000 | $0 | $201,407 | $201,407 |
Deed and Sales History
| 1 | 01/19/2023 | MANHOME | Manufactured Home | DOHERTY, SUE C | DOHERTY TTEE, SUE C | | | $0.00 | 55680 | |
| 2 | 01/19/2023 | WD | Warranty Deed | DOHERTY, SUE C | DOHERTY TTEE, SUE C | | | $0.00 | 55679 | 4555996 |
| 3 | 11/04/2022 | MANHOME | Manufactured Home | DOHERTY, SUE C | DOHERTY, SUE C | | | $106,285.00 | 55111 | |
| 4 | 10/22/2020 | WD | Warranty Deed | MURRAY, SUSAN | DOHERTY, SUE C | | | $183,715.00 | 45438 | 4500780 |
| 5 | 06/27/2012 | DECREE | Divorce Decree/Legal Separation | MURRAY, KEVIN LYNN | MURRAY, SUSAN | | | $0.00 | 8072 | 4318000 |
| 6 | 11/23/2009 | WD | Warranty Deed | EWARD, A | MURRAY, KEVIN LYNN | | | $195,000.00 | 92881 | 4264221 |
| 7 | 07/01/1997 | OTHER | Other - Misc. Documents | EWARD, STEVEN A | EWARD, A | | | $36,463.00 | 11111111 | 0 |
| 8 | 10/01/1992 | WD | Warranty Deed | SHELLENBERGER, DAVID A | EWARD, STEVEN A | | | $30,000.00 | 24028 | 92019525 |
| 9 | 08/01/1991 | WD | Warranty Deed | FISCUS, RENARD C | SHELLENBERGER, DAVID A | | | $32,000.00 | 12809 | 91011974 |
| 10 | 11/01/1988 | WD | Warranty Deed | BOWMER, JERRY L | FISCUS, RENARD C | | | $19,000.00 | 83849 | 88014388 |
| 11 | 06/01/1983 | WD | Warranty Deed | BARTLETT, PHYLLIS J | BOWMER, JERRY L | | | $8,000.00 | 31858 | 411818 |
| 12 | 01/01/1900 | OTHER | Other - Misc. Documents | Unknown | BARTLETT, PHYLLIS J | | | $0.00 | 0 | 0 |
Payout Agreement
| No payout information available.. |