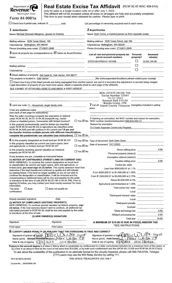
Property
Account |
| Property ID: | 117643 | Abbreviated Legal Description: | 56 - IN GL2: BG SECR GL2 W497' N175' TPB N100' W TO HITDLN SLY ALG HITDLN TP 175'N OF SLN GL2 E TPB |
| Geographic ID: | R32811-161-3230 | Agent Code: | |
| Type: | Real | | |
| Tax Area: | 719 - APPRAISER-S Whid Schl Dist, outside Langley, vacant & 50 acres or less | Land Use Code | 91 |
| Open Space: | N | DFL | N |
| Historic Property: | N | Remodel Property: | N |
| Multi-Family Redevelopment: | N | | |
| Township: | 28 | Section: | 11 |
| Range: | R3 |
Location |
| Address: | | Mapsco: | |
| Neighborhood: | Cycle 4 | Map ID: | 702 |
| Neighborhood CD: | 4 |
Owner |
| Name: | PIERCE-MAGDALIK, ERIN G. | Owner ID: | 304999 |
| Mailing Address: | 4911 BLUE LADY LN LANGLEY, WA 98260 | % Ownership: | 100.0000000000% |
| | | Exemptions: | |
Taxes and Assessment Details
Values
| (+) Improvement Homesite Value: | + | $0 | |
| (+) Improvement Non-Homesite Value: | + | $0 | |
| (+) Land Homesite Value: | + | $0 | |
| (+) Land Non-Homesite Value: | + | $30,000 | |
| (+) Curr Use (HS): | + | $0 | $0 |
| (+) Curr Use (NHS): | + | $0 | $0 |
| | | -------------------------- | |
| (=) Market Value: | = | $30,000 | |
| (–) Productivity Loss: | – | $0 | |
| | | -------------------------- | |
| (=) Subtotal: | = | $30,000 | |
| (+) Senior Appraised Value: | + | $0 | |
| (+) Non-Senior Appraised Value: | + | $30,000 | |
| | | -------------------------- | |
| (=) Total Appraised Value: | = | $30,000 | |
| (–) Senior Exemption Loss: | – | $0 | |
| (–) Exemption Loss: | – | $0 | |
| | | -------------------------- | |
| (=) Taxable Value: | = | $30,000 | |
Taxing Jurisdiction
| Owner: | PIERCE-MAGDALIK, ERIN G. | | |
| % Ownership: | 100.0000000000% | | |
| Total Value: | $30,000 | | |
| Tax Area: | 719 - APPRAISER-S Whid Schl Dist, outside Langley, vacant & 50 acres or less |
| CF | Conservation Futures | 0.0316035091 | $30,000 | $30,000 | $0.95 | | |
| HOBOND | Hospital BOND | 0.1910887512 | $30,000 | $30,000 | $5.73 | | |
| HOGEN | Hospital GEN | 0.3902502903 | $30,000 | $30,000 | $11.71 | | |
| CE | County Current Expense | 0.3708482477 | $30,000 | $30,000 | $11.13 | | |
| CR | County Roads | 0.4584763726 | $30,000 | $30,000 | $13.75 | | |
| ISLANDEMS | Hospital GEN (EMS) | 0.5000000000 | $30,000 | $30,000 | $15.00 | | |
| LIB | Library Sno-Isle GEN | 0.3153421757 | $30,000 | $30,000 | $9.46 | | |
| PORTWHID | Port of S Whidbey GEN | 0.1094540357 | $30,000 | $30,000 | $3.28 | | |
| SCH206BOND | School 206 BOND | 0.3161759235 | $30,000 | $30,000 | $9.49 | | |
| SCH206MO | School 206 Enrichment | 0.4547169547 | $30,000 | $30,000 | $13.64 | | |
| ST | State School | 1.3035497053 | $30,000 | $30,000 | $39.11 | | |
| ST2 | State School Part 2 | 0.8169543533 | $30,000 | $30,000 | $24.51 | | |
| SWHIDPRBD | P & R S Whidbey BOND | 0.0152817568 | $30,000 | $30,000 | $0.46 | | |
| SWHIDPRBD2 | P & R S Whidbey BOND2 | 0.0138911264 | $30,000 | $30,000 | $0.42 | | |
| SWHIDPRMT | P & R S Whidbey GEN | 0.2053334452 | $30,000 | $30,000 | $6.16 | | |
| | Total Tax Rate: | 5.4929666475 | | | | | |
| | | | | Taxes w/Current Exemptions: | $164.80 | | |
| | | | | Taxes w/o Exemptions: | $164.80 | | |
Improvement / Building
Sketch
| No sketches available for this property. |
Property Image
Land
| 1 | HB | HIGH BLUFF | 0.8300 | 36154.80 | 100.00 | 0.00 | 1.00 | $30,000 | $0 |
Roll Value History
| 2026 | N/A | N/A | N/A | N/A | N/A |
| 2025 | $0 | $30,000 | $0 | $30,000 | $30,000 |
| 2024 | $0 | $30,000 | $0 | $30,000 | $30,000 |
| 2023 | $0 | $25,000 | $0 | $25,000 | $25,000 |
| 2022 | $0 | $25,000 | $0 | $25,000 | $25,000 |
| 2021 | $0 | $25,000 | $0 | $25,000 | $25,000 |
| 2020 | $0 | $25,000 | $0 | $25,000 | $25,000 |
| 2019 | $0 | $25,000 | $0 | $25,000 | $25,000 |
| 2018 | $0 | $20,000 | $0 | $20,000 | $20,000 |
| 2017 | $0 | $20,000 | $0 | $20,000 | $20,000 |
| 2016 | $0 | $20,000 | $0 | $20,000 | $20,000 |
| 2015 | $0 | $20,000 | $0 | $20,000 | $20,000 |
| 2014 | $0 | $20,000 | $0 | $20,000 | $20,000 |
| 2013 | $0 | $21,775 | $0 | $21,775 | $21,775 |
| 2012 | $0 | $21,775 | $0 | $21,775 | $21,775 |
| 2011 | $0 | $21,775 | $0 | $21,775 | $21,775 |
| 2010 | $0 | $21,775 | $0 | $21,775 | $21,775 |
| 2009 | $0 | $25,804 | $0 | $25,804 | $25,804 |
| 2008 | $0 | $25,804 | $0 | $25,804 | $25,804 |
| 2007 | $0 | $25,000 | $0 | $25,000 | $25,000 |
Deed and Sales History
| 1 | 07/06/2022 | WD | Warranty Deed | MILLER, DONALD J | PIERCE-MAGDALIK, ERIN G. | | | $650,000.00 | 53755 | 4547979 |
|   | |
| 2 | 03/31/2021 | EZ | Easement | MILLER, DONALD J | PUGET SOUND ENERGY | | | $1,000.00 | 47778 | 4516513 |
| 3 | 09/12/2005 | 5 | DNU - Marriage License/Name Change | MILLER, DONALD J | MILLER, DONALD J | | | $0.00 | 54693 | 4148032 |
| 4 | 07/24/2003 | WD | Warranty Deed | POSEL, FRANCES R | MILLER, DONALD J | | | $9,945.00 | 33338 | 4069220 |
| 5 | 07/01/1991 | WD | Warranty Deed | GRONVOLD, A M | POSEL, FRANCES R | | | $8,500.00 | 12598 | 91011013 |
| 6 | 06/01/1979 | PACD | Purchaser's Assignment | GRONVOLD, MARION L | GRONVOLD, A M | | | $0.00 | 59313 | 0 |
| 7 | 03/01/1975 | OTHER | Other - Misc. Documents | Unknown | GRONVOLD, MARION L | | | $0.00 | 54286 | 0 |
Payout Agreement
| No payout information available.. |