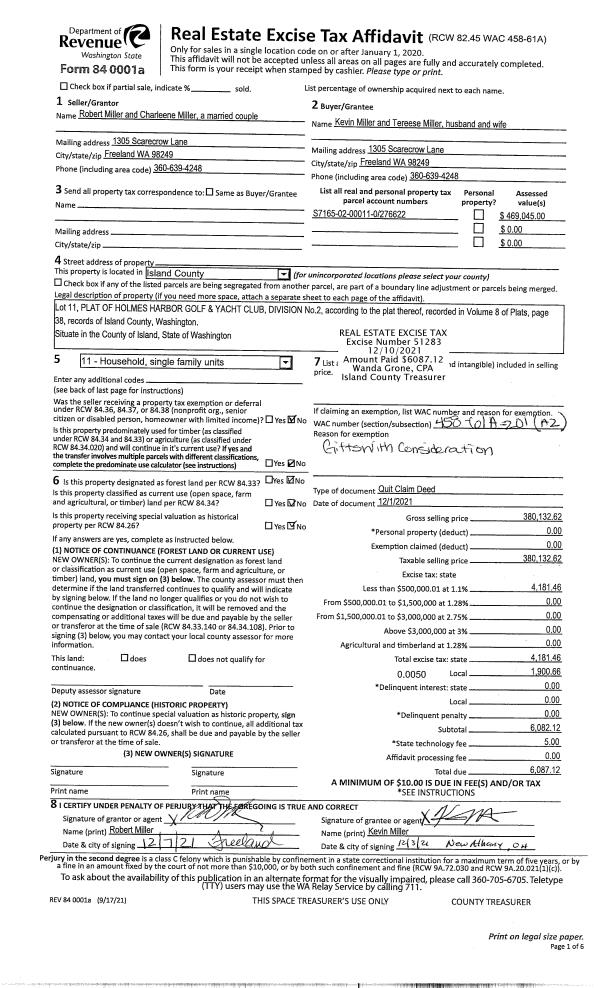
Property
Account |
| Property ID: | 11766 | Abbreviated Legal Description: | 87 TAFT DC - BG ON NLN OAK AVE 40'N & 204'W OF NW CR L37 OH PLAT W ALG OAK AVE 85' N180' E85' S180' TPB |
| Geographic ID: | R13202-361-3080 | Agent Code: | |
| Type: | Real | | |
| Tax Area: | 100 - APPRAISER-OH Schl Dist, in OH | Land Use Code | 12 |
| Open Space: | N | DFL | N |
| Historic Property: | N | Remodel Property: | N |
| Multi-Family Redevelopment: | N | | |
| Township: | 32 | Section: | 02 |
| Range: | R1 |
Location |
| Address: | 950 SE 8TH AVE OAK HARBOR, WA 98277 | Mapsco: | |
| Neighborhood: | 12cOH-se 8th av | Map ID: | 89 |
| Neighborhood CD: | 12cOHse8th |
Owner |
| Name: | WRIGHT, SHERMAR | Owner ID: | 300020 |
| Mailing Address: | KEYOMI JARRETT 950 SE 8TH AVE OAK HARBOR, WA 98277 | % Ownership: | 100.0000000000% |
| | | Exemptions: | |
Taxes and Assessment Details
Values
| (+) Improvement Homesite Value: | + | $0 | |
| (+) Improvement Non-Homesite Value: | + | $124,985 | |
| (+) Land Homesite Value: | + | $0 | |
| (+) Land Non-Homesite Value: | + | $180,000 | |
| (+) Curr Use (HS): | + | $0 | $0 |
| (+) Curr Use (NHS): | + | $0 | $0 |
| | | -------------------------- | |
| (=) Market Value: | = | $304,985 | |
| (–) Productivity Loss: | – | $0 | |
| | | -------------------------- | |
| (=) Subtotal: | = | $304,985 | |
| (+) Senior Appraised Value: | + | $0 | |
| (+) Non-Senior Appraised Value: | + | $304,985 | |
| | | -------------------------- | |
| (=) Total Appraised Value: | = | $304,985 | |
| (–) Senior Exemption Loss: | – | $0 | |
| (–) Exemption Loss: | – | $0 | |
| | | -------------------------- | |
| (=) Taxable Value: | = | $304,985 | |
Taxing Jurisdiction
| Owner: | WRIGHT, SHERMAR | | |
| % Ownership: | 100.0000000000% | | |
| Total Value: | $304,985 | | |
| Tax Area: | 100 - APPRAISER-OH Schl Dist, in OH |
| CF | Conservation Futures | 0.0316035091 | $304,985 | $304,985 | $9.64 | | |
| CEM1 | Cemetery #1 | 0.0040320932 | $304,985 | $304,985 | $1.23 | | |
| COH | City of Oak Harbor | 2.3001546061 | $304,985 | $304,985 | $701.51 | | |
| OAKBOND | City of Oak Harbor BOND | 0.1926904192 | $304,985 | $304,985 | $58.77 | | |
| HOBOND | Hospital BOND | 0.1910887512 | $304,985 | $304,985 | $58.28 | | |
| HOGEN | Hospital GEN | 0.3902502903 | $304,985 | $304,985 | $119.02 | | |
| CE | County Current Expense | 0.3708482477 | $304,985 | $304,985 | $113.10 | | |
| ISLANDEMS | Hospital GEN (EMS) | 0.5000000000 | $304,985 | $304,985 | $152.49 | | |
| LIB | Library Sno-Isle GEN | 0.3153421757 | $304,985 | $304,985 | $96.17 | | |
| NWHIDPRMT | P & R N Whidbey GEN | 0.2004466701 | $304,985 | $304,985 | $61.13 | | |
| SCH201MO | School 201 Enrichment | 1.8559231640 | $304,985 | $304,985 | $566.03 | | |
| ST | State School | 1.3035497053 | $304,985 | $304,985 | $397.56 | | |
| ST2 | State School Part 2 | 0.8169543533 | $304,985 | $304,985 | $249.16 | | |
| | Total Tax Rate: | 8.4728839852 | | | | | |
| | | | | Taxes w/Current Exemptions: | $2,584.09 | | |
| | | | | Taxes w/o Exemptions: | $2,584.09 | | |
Improvement / Building
| Improvement #1: | RESIDENTIAL | State Code: | A1 | 1100.0 sqft | Value: | $124,985 |
| Bathrooms: | 1 | Bedrooms: | 2 | | Ceiling: | ACOUSTIC FURRED | Exterior Wall/Cover: | WOOD SIDING | | Floor Covering: | CARPET/VINYL 20-80 | Floor Structure: | WOOD W/SUBFLOOR | | Foundation: | CONCRETE | Heating: | FHA GAS | | Interior Finish: | DRYWALL PAINT | Plumbing Fixture Cnt: | 6 | | Roof Slope: | 4" IN 12" | Roof Structure/Cover: | CJ ASPHALT |
|
| | Type | Description | Class CD | Sub Class CD | Year Built | Area |
| | BAS | BASE/MAIN FLOOR | 2 | 0 | 1910 | 1100.0 |
| | OWC | OPEN WOOD PORCH W/STEPS/ROOF/C | 2 | 0 | 1910 | 126.0 |
| | UTY | STORAGE/UTILITY | 2 | 0 | 1910 | 216.0 |
Sketch
Property Image
Land
| 1 | 15 | SQ (12001-21780) | 0.3500 | 15246.00 | 0.00 | 0.00 | 1.00 | $180,000 | $0 |
Roll Value History
| 2026 | N/A | N/A | N/A | N/A | N/A |
| 2025 | $124,985 | $180,000 | $0 | $304,985 | $304,985 |
| 2024 | $126,844 | $170,000 | $0 | $296,844 | $296,844 |
| 2023 | $117,551 | $170,000 | $0 | $287,551 | $287,551 |
| 2022 | $108,124 | $120,000 | $0 | $228,124 | $228,124 |
| 2021 | $95,488 | $120,000 | $0 | $215,488 | $215,488 |
| 2020 | $93,489 | $100,000 | $0 | $193,489 | $193,489 |
| 2019 | $68,453 | $140,000 | $0 | $208,453 | $208,453 |
| 2018 | $84,890 | $125,000 | $0 | $209,890 | $209,890 |
| 2017 | $50,498 | $121,968 | $0 | $172,466 | $172,466 |
| 2016 | $50,498 | $121,968 | $0 | $172,466 | $172,466 |
| 2015 | $50,498 | $63,271 | $0 | $113,769 | $113,769 |
| 2014 | $50,498 | $63,271 | $0 | $113,769 | $113,769 |
| 2013 | $50,498 | $63,271 | $0 | $113,769 | $113,769 |
| 2012 | $50,498 | $63,271 | $0 | $113,769 | $113,769 |
| 2011 | $50,498 | $63,271 | $0 | $113,769 | $113,769 |
| 2010 | $59,333 | $63,271 | $0 | $122,604 | $122,604 |
| 2009 | $62,337 | $91,933 | $0 | $154,270 | $154,270 |
| 2008 | $61,105 | $96,812 | $0 | $157,917 | $157,917 |
| 2007 | $62,337 | $96,812 | $0 | $159,149 | $159,149 |
Deed and Sales History
| 1 | 05/22/2021 | WD | Warranty Deed | GRANSTROM, KRISTIAN | WRIGHT, SHERMAR | | | $355,000.00 | 48944 | 4523191 |
| 2 | 05/21/2018 | WD | Warranty Deed | ERICKSON, JEFFREY P | GRANSTROM, KRISTIAN | | | $175,000.00 | 34221 | 4444927 |
| 3 | 01/14/2008 | WD | Warranty Deed | CAWTHON TRUSTEE, MARY P | ERICKSON, JEFFREY P | | | $142,000.00 | 80158 | 4220204 |
| 4 | 07/18/2002 | QCD | Quit Claim Deed | CAWTHON, MARY P | CAWTHON TRUSTEE, MARY P | | | $0.00 | 23516 | 4030409 |
| 5 | 09/01/1983 | WD | Warranty Deed | CAWTHON, MARY P | CAWTHON, MARY P | | | $0.00 | 33070 | 416353 |
| 6 | 04/01/1979 | REC | Real Estate Contract | CAWTHON, HUGH D | CAWTHON, MARY P | | | $0.00 | 59043 | 0 |
| 7 | 01/01/1979 | OTHER | Other - Misc. Documents | Unknown | CAWTHON, HUGH D | | | $40,000.00 | 90349 | 346391 |
Payout Agreement
| No payout information available.. |