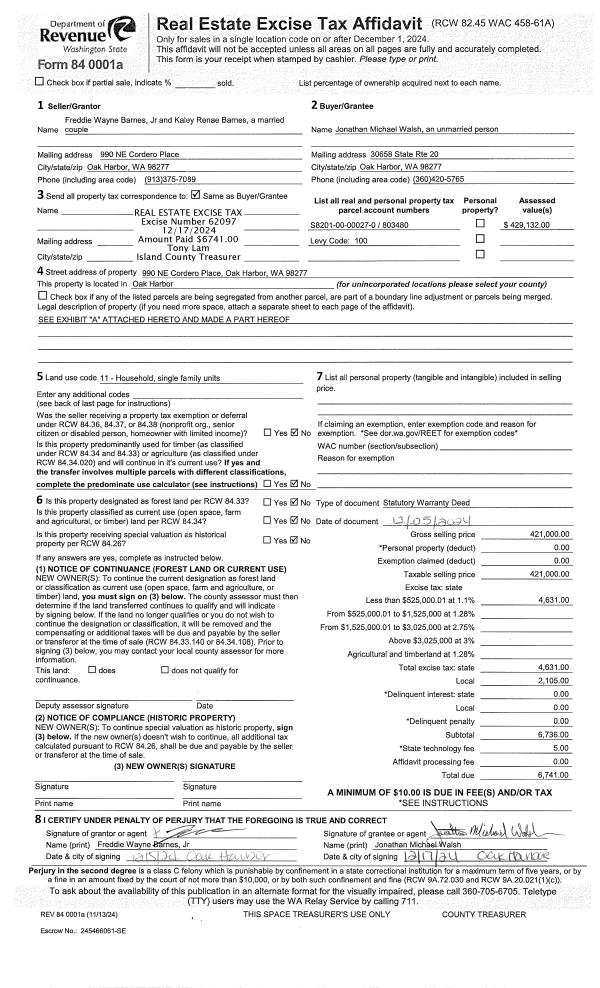
Property
Account |
| Property ID: | 118330 | Abbreviated Legal Description: | 14 - N50.06' OF S416.78' OF GL4 INCL ADJ TIDES |
| Geographic ID: | R32812-038-0130 | Agent Code: | |
| Type: | Real | | |
| Tax Area: | 710 - APPRAISER-S Whid Schl Dist, outside Langley, improved & 1 acre or less | Land Use Code | 11 |
| Open Space: | N | DFL | N |
| Historic Property: | N | Remodel Property: | N |
| Multi-Family Redevelopment: | N | | |
| Township: | 28 | Section: | 12 |
| Range: | R3 |
Location |
| Address: | 7972 POSSESSION BEACH WALK CLINTON, WA 98236 | Mapsco: | |
| Neighborhood: | Cycle 4 | Map ID: | 705 |
| Neighborhood CD: | 4 |
Owner |
| Name: | BLAKE, BENJAMIN | Owner ID: | 312524 |
| Mailing Address: | ALESIA BLAKE 2525 145TH ST NW MARYSVILLE, WA 98271 | % Ownership: | 100.0000000000% |
| | | Exemptions: | |
Taxes and Assessment Details
Values
| (+) Improvement Homesite Value: | + | $0 | |
| (+) Improvement Non-Homesite Value: | + | $185,052 | |
| (+) Land Homesite Value: | + | $0 | |
| (+) Land Non-Homesite Value: | + | $400,500 | |
| (+) Curr Use (HS): | + | $0 | $0 |
| (+) Curr Use (NHS): | + | $0 | $0 |
| | | -------------------------- | |
| (=) Market Value: | = | $585,552 | |
| (–) Productivity Loss: | – | $0 | |
| | | -------------------------- | |
| (=) Subtotal: | = | $585,552 | |
| (+) Senior Appraised Value: | + | $0 | |
| (+) Non-Senior Appraised Value: | + | $585,552 | |
| | | -------------------------- | |
| (=) Total Appraised Value: | = | $585,552 | |
| (–) Senior Exemption Loss: | – | $0 | |
| (–) Exemption Loss: | – | $0 | |
| | | -------------------------- | |
| (=) Taxable Value: | = | $585,552 | |
Taxing Jurisdiction
| Owner: | BLAKE, BENJAMIN | | |
| % Ownership: | 100.0000000000% | | |
| Total Value: | $585,552 | | |
| Tax Area: | 710 - APPRAISER-S Whid Schl Dist, outside Langley, improved & 1 acre or less |
| CF | Conservation Futures | 0.0316035091 | $585,552 | $585,552 | $18.51 | | |
| FIRE3 | Fire & Rescue Dist #3 S Whidbey GEN | 1.2004855531 | $585,552 | $585,552 | $702.95 | | |
| HOBOND | Hospital BOND | 0.1910887512 | $585,552 | $585,552 | $111.89 | | |
| HOGEN | Hospital GEN | 0.3902502903 | $585,552 | $585,552 | $228.51 | | |
| CE | County Current Expense | 0.3708482477 | $585,552 | $585,552 | $217.15 | | |
| CR | County Roads | 0.4584763726 | $585,552 | $585,552 | $268.46 | | |
| ISLANDEMS | Hospital GEN (EMS) | 0.5000000000 | $585,552 | $585,552 | $292.78 | | |
| LIB | Library Sno-Isle GEN | 0.3153421757 | $585,552 | $585,552 | $184.65 | | |
| PORTWHID | Port of S Whidbey GEN | 0.1094540357 | $585,552 | $585,552 | $64.09 | | |
| SCH206BOND | School 206 BOND | 0.3161759235 | $585,552 | $585,552 | $185.14 | | |
| SCH206MO | School 206 Enrichment | 0.4547169547 | $585,552 | $585,552 | $266.26 | | |
| ST | State School | 1.3035497053 | $585,552 | $585,552 | $763.30 | | |
| ST2 | State School Part 2 | 0.8169543533 | $585,552 | $585,552 | $478.37 | | |
| SWHIDPRBD | P & R S Whidbey BOND | 0.0152817568 | $585,552 | $585,552 | $8.95 | | |
| SWHIDPRBD2 | P & R S Whidbey BOND2 | 0.0138911264 | $585,552 | $585,552 | $8.13 | | |
| SWHIDPRMT | P & R S Whidbey GEN | 0.2053334452 | $585,552 | $585,552 | $120.23 | | |
| | Total Tax Rate: | 6.6934522006 | | | | | |
| | | | | Taxes w/Current Exemptions: | $3,919.37 | | |
| | | | | Taxes w/o Exemptions: | $3,919.37 | | |
Improvement / Building
| Improvement #1: | RESIDENTIAL | State Code: | Y | 840.0 sqft | Value: | $185,052 |
| Bathrooms: | 1 | Bedrooms: | 2 | | Ceiling: | DRYWALL PAINTED | Cooling: | HEAT PUMP/CONV/V | | Exterior Wall/Cover: | SHINGLE | Floor Covering: | CARPET 100% | | Floor Structure: | WOOD W/SUBFLOOR | Foundation: | CONCRETE BLOCKS | | Interior Finish: | DRYWALL PAINT | Plumbing Fixture Cnt: | 5 | | Roof Slope: | 4" IN 12" | Roof Structure/Cover: | CJ ALUMINIUM HEAVY |
|
| | Type | Description | Class CD | Sub Class CD | Year Built | Area |
| | BAS | BASE/MAIN FLOOR | 3 | 0 | 1925 | 840.0 |
| | UB6 | BASEMENT UNFINISHED 6" | 3 | 0 | 1925 | 600.0 |
| | OP3 | OPEN PORCH W/ROOF | 3 | 0 | 1925 | 48.0 |
| | OWP | OPEN WOOD PORCH W/STEPS | 3 | 0 | 1925 | 304.0 |
Sketch
| No sketches available for this property. |
Property Image
Land
| 1 | LB | LOW BANK | 0.3000 | 13068.00 | 50.00 | 0.00 | 1.00 | $400,000 | $0 |
| 2 | 55 | TIDES | 0.0000 | 0.00 | 50.00 | 0.00 | 1.00 | $500 | $0 |
Roll Value History
| 2026 | N/A | N/A | N/A | N/A | N/A |
| 2025 | $185,052 | $400,500 | $0 | $585,552 | $585,552 |
| 2024 | $137,317 | $350,500 | $0 | $487,817 | $487,817 |
| 2023 | $139,588 | $300,500 | $0 | $440,088 | $440,088 |
| 2022 | $128,340 | $300,500 | $0 | $428,840 | $428,840 |
| 2021 | $113,280 | $275,500 | $0 | $388,780 | $388,780 |
| 2020 | $100,551 | $275,500 | $0 | $376,051 | $376,051 |
| 2019 | $71,262 | $300,500 | $0 | $371,762 | $371,762 |
| 2018 | $71,531 | $250,500 | $0 | $322,031 | $322,031 |
| 2017 | $72,068 | $230,500 | $0 | $302,568 | $302,568 |
| 2016 | $73,143 | $230,500 | $0 | $303,643 | $303,643 |
| 2015 | $74,219 | $230,500 | $0 | $304,719 | $304,719 |
| 2014 | $36,786 | $230,500 | $0 | $267,286 | $267,286 |
| 2013 | $37,667 | $240,500 | $0 | $278,167 | $278,167 |
| 2012 | $38,548 | $215,332 | $0 | $253,880 | $253,880 |
| 2011 | $39,429 | $215,332 | $0 | $254,761 | $254,761 |
| 2010 | $45,191 | $215,332 | $0 | $260,523 | $260,523 |
| 2009 | $47,438 | $215,332 | $0 | $262,770 | $262,770 |
| 2008 | $48,390 | $215,332 | $0 | $263,722 | $263,722 |
| 2007 | $49,341 | $214,982 | $0 | $264,323 | $264,323 |
Deed and Sales History
| 1 | 05/24/2024 | WD | Warranty Deed | WILSON TRUSTEE, THOMAS E | BLAKE, BENJAMIN | | | $735,000.00 | 60102 | 4572793 |
| 2 | 12/21/2012 | WD | Warranty Deed | WILSON, THOMAS E | WILSON TRUSTEE, THOMAS E | | | $0.00 | 10029 | 4330603 |
| 3 | 07/05/2011 | WD | Warranty Deed | WILSON, THOMAS E | WILSON, THOMAS E | | | $228,429.00 | 4925 | 4297878 |
| 4 | 06/11/2008 | WD | Warranty Deed | POULOS, BARBARA G | WILSON, THOMAS E | | | $589,000.00 | 81520 | 4230686 |
| 5 | 06/10/2008 | ESTSEPPROP | Establish Separate Property | POULOS, BARBARA G | | | | | 81519 | 4230685 |
| 6 | 03/06/2004 | DECREE | Divorce Decree/Legal Separation | POULOS, MARK H | POULOS, BARBARA G | | | $0.00 | 41021 | 4094384 |
| 7 | 05/01/1999 | WD | Warranty Deed | Unknown | POULOS, MARK H | | | $153,600.00 | 91358 | 99008984 |
Payout Agreement
| No payout information available.. |