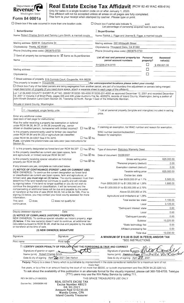
Property
Account |
| Property ID: | 118410 | Abbreviated Legal Description: | 36 - IN GL3: BG NECR GL3 S39*W312' S26*W233.7' S22*W 467.5' TPB S22*W64.5' S28*W 310.5' N67*W150' N28*E300' N22*E74.92' S67*E150' TPB |
| Geographic ID: | R32812-162-0360 | Agent Code: | |
| Type: | Real | | |
| Tax Area: | 719 - APPRAISER-S Whid Schl Dist, outside Langley, vacant & 50 acres or less | Land Use Code | 91 |
| Open Space: | N | DFL | N |
| Historic Property: | N | Remodel Property: | N |
| Multi-Family Redevelopment: | N | | |
| Township: | 28 | Section: | 12 |
| Range: | R3 |
Location |
| Address: | 7878 BEACH FRONT WALK CLINTON, WA 98236 | Mapsco: | |
| Neighborhood: | Cycle 4 | Map ID: | 705 |
| Neighborhood CD: | 4 |
Owner |
| Name: | BARTLETT, MORGAN | Owner ID: | 16335 |
| Mailing Address: | LAURIE BARTLETT 424 W BAKERVIEW RD SUITE 109 BELLINGHAM, WA 98226 | % Ownership: | 100.0000000000% |
| | | Exemptions: | |
Taxes and Assessment Details
Values
| (+) Improvement Homesite Value: | + | $0 | |
| (+) Improvement Non-Homesite Value: | + | $0 | |
| (+) Land Homesite Value: | + | $0 | |
| (+) Land Non-Homesite Value: | + | $50,000 | |
| (+) Curr Use (HS): | + | $0 | $0 |
| (+) Curr Use (NHS): | + | $0 | $0 |
| | | -------------------------- | |
| (=) Market Value: | = | $50,000 | |
| (–) Productivity Loss: | – | $0 | |
| | | -------------------------- | |
| (=) Subtotal: | = | $50,000 | |
| (+) Senior Appraised Value: | + | $0 | |
| (+) Non-Senior Appraised Value: | + | $50,000 | |
| | | -------------------------- | |
| (=) Total Appraised Value: | = | $50,000 | |
| (–) Senior Exemption Loss: | – | $0 | |
| (–) Exemption Loss: | – | $0 | |
| | | -------------------------- | |
| (=) Taxable Value: | = | $50,000 | |
Taxing Jurisdiction
| Owner: | BARTLETT, MORGAN | | |
| % Ownership: | 100.0000000000% | | |
| Total Value: | $50,000 | | |
| Tax Area: | 719 - APPRAISER-S Whid Schl Dist, outside Langley, vacant & 50 acres or less |
| CF | Conservation Futures | 0.0316035091 | $50,000 | $50,000 | $1.58 | | |
| HOBOND | Hospital BOND | 0.1910887512 | $50,000 | $50,000 | $9.55 | | |
| HOGEN | Hospital GEN | 0.3902502903 | $50,000 | $50,000 | $19.51 | | |
| CE | County Current Expense | 0.3708482477 | $50,000 | $50,000 | $18.54 | | |
| CR | County Roads | 0.4584763726 | $50,000 | $50,000 | $22.92 | | |
| ISLANDEMS | Hospital GEN (EMS) | 0.5000000000 | $50,000 | $50,000 | $25.00 | | |
| LIB | Library Sno-Isle GEN | 0.3153421757 | $50,000 | $50,000 | $15.77 | | |
| PORTWHID | Port of S Whidbey GEN | 0.1094540357 | $50,000 | $50,000 | $5.47 | | |
| SCH206BOND | School 206 BOND | 0.3161759235 | $50,000 | $50,000 | $15.81 | | |
| SCH206MO | School 206 Enrichment | 0.4547169547 | $50,000 | $50,000 | $22.74 | | |
| ST | State School | 1.3035497053 | $50,000 | $50,000 | $65.18 | | |
| ST2 | State School Part 2 | 0.8169543533 | $50,000 | $50,000 | $40.85 | | |
| SWHIDPRBD | P & R S Whidbey BOND | 0.0152817568 | $50,000 | $50,000 | $0.76 | | |
| SWHIDPRBD2 | P & R S Whidbey BOND2 | 0.0138911264 | $50,000 | $50,000 | $0.69 | | |
| SWHIDPRMT | P & R S Whidbey GEN | 0.2053334452 | $50,000 | $50,000 | $10.27 | | |
| | Total Tax Rate: | 5.4929666475 | | | | | |
| | | | | Taxes w/Current Exemptions: | $274.64 | | |
| | | | | Taxes w/o Exemptions: | $274.64 | | |
Improvement / Building
Sketch
| No sketches available for this property. |
Property Image
Land
| 1 | LB | LOW BANK | 1.0600 | 46173.60 | 310.00 | 0.00 | 1.00 | $50,000 | $0 |
Roll Value History
| 2026 | N/A | N/A | N/A | N/A | N/A |
| 2025 | $0 | $50,000 | $0 | $50,000 | $50,000 |
| 2024 | $0 | $50,000 | $0 | $50,000 | $50,000 |
| 2023 | $0 | $50,000 | $0 | $50,000 | $50,000 |
| 2022 | $0 | $50,000 | $0 | $50,000 | $50,000 |
| 2021 | $0 | $50,000 | $0 | $50,000 | $50,000 |
| 2020 | $0 | $50,000 | $0 | $50,000 | $50,000 |
| 2019 | $0 | $50,000 | $0 | $50,000 | $50,000 |
| 2018 | $0 | $50,000 | $0 | $50,000 | $50,000 |
| 2017 | $0 | $50,000 | $0 | $50,000 | $50,000 |
| 2016 | $0 | $50,000 | $0 | $50,000 | $50,000 |
| 2015 | $0 | $50,000 | $0 | $50,000 | $50,000 |
| 2014 | $0 | $50,000 | $0 | $50,000 | $50,000 |
| 2013 | $0 | $50,000 | $0 | $50,000 | $50,000 |
| 2012 | $0 | $50,000 | $0 | $50,000 | $50,000 |
| 2011 | $32,147 | $168,148 | $0 | $200,295 | $200,295 |
| 2010 | $32,684 | $168,148 | $0 | $200,832 | $200,832 |
| 2009 | $34,178 | $168,590 | $0 | $202,768 | $202,768 |
| 2008 | $48,285 | $168,590 | $0 | $216,875 | $216,875 |
| 2007 | $49,337 | $168,590 | $0 | $217,927 | $217,927 |
Deed and Sales History
| 1 | 07/01/2004 | WD | Warranty Deed | LACHER, NORMAN H | BARTLETT, MORGAN | | | $205,000.00 | 43019 | 4106047 |
| 2 | 08/01/1989 | WD | Warranty Deed | SZALAY, GREGORY E | LACHER, NORMAN H | | | $65,000.00 | 93625 | 89012133 |
| 3 | 09/01/1980 | EXECUTORD | Executor Deed | SCOTT, THERESA M | SZALAY, GREGORY E | | | $16,000.00 | 3078 | 373716 |
| 4 | 05/01/1980 | OTHER | Other - Misc. Documents | Unknown | SCOTT, THERESA M | | | $0.00 | 58886 | 337748 |
| 5 | 05/01/1980 | CD | DNU - Correction Deed | RASMUSSEN, GAR | SCOTT, THERESA M | | | $0.00 | 58886 | 11864 |
| 6 | 08/01/1978 | OTHER | Other - Misc. Documents | Unknown | RASMUSSEN, GAR | | | $25,000.00 | 83821 | 337748 |
Payout Agreement
| No payout information available.. |