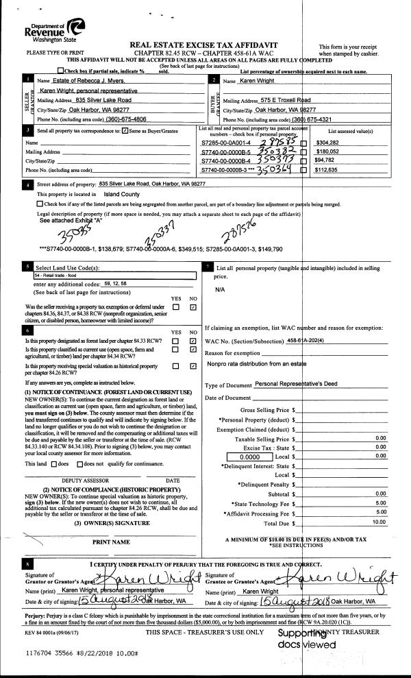
Property
Account |
| Property ID: | 118465 | Abbreviated Legal Description: | 37 - IN GL3:BG NE CR GL3 S39*W312' S26*W233.7' S22* W217.5' TPB S22*W62' N67* W150' N22*E62' S67*E150' TPB |
| Geographic ID: | R32812-199-0510 | Agent Code: | |
| Type: | Real | | |
| Tax Area: | 710 - APPRAISER-S Whid Schl Dist, outside Langley, improved & 1 acre or less | Land Use Code | 11 |
| Open Space: | N | DFL | N |
| Historic Property: | N | Remodel Property: | N |
| Multi-Family Redevelopment: | N | | |
| Township: | 28 | Section: | 12 |
| Range: | R3 |
Location |
| Address: | 7848 BEACH FRONT WALK CLINTON, WA 98236 | Mapsco: | |
| Neighborhood: | Cycle 4 | Map ID: | 705 |
| Neighborhood CD: | 4 |
Owner |
| Name: | HECKENDORF, DONALD | Owner ID: | 306204 |
| Mailing Address: | HAZEL HECKENDORF 9729 49TH PL W MUKILTEO, WA 98275 | % Ownership: | 100.0000000000% |
| | | Exemptions: | |
Taxes and Assessment Details
Values
| (+) Improvement Homesite Value: | + | $0 | |
| (+) Improvement Non-Homesite Value: | + | $75,746 | |
| (+) Land Homesite Value: | + | $0 | |
| (+) Land Non-Homesite Value: | + | $225,000 | |
| (+) Curr Use (HS): | + | $0 | $0 |
| (+) Curr Use (NHS): | + | $0 | $0 |
| | | -------------------------- | |
| (=) Market Value: | = | $300,746 | |
| (–) Productivity Loss: | – | $0 | |
| | | -------------------------- | |
| (=) Subtotal: | = | $300,746 | |
| (+) Senior Appraised Value: | + | $0 | |
| (+) Non-Senior Appraised Value: | + | $300,746 | |
| | | -------------------------- | |
| (=) Total Appraised Value: | = | $300,746 | |
| (–) Senior Exemption Loss: | – | $0 | |
| (–) Exemption Loss: | – | $0 | |
| | | -------------------------- | |
| (=) Taxable Value: | = | $300,746 | |
Taxing Jurisdiction
| Owner: | HECKENDORF, DONALD | | |
| % Ownership: | 100.0000000000% | | |
| Total Value: | $300,746 | | |
| Tax Area: | 710 - APPRAISER-S Whid Schl Dist, outside Langley, improved & 1 acre or less |
| CF | Conservation Futures | 0.0316035091 | $300,746 | $300,746 | $9.50 | | |
| FIRE3 | Fire & Rescue Dist #3 S Whidbey GEN | 1.2004855531 | $300,746 | $300,746 | $361.04 | | |
| HOBOND | Hospital BOND | 0.1910887512 | $300,746 | $300,746 | $57.47 | | |
| HOGEN | Hospital GEN | 0.3902502903 | $300,746 | $300,746 | $117.37 | | |
| CE | County Current Expense | 0.3708482477 | $300,746 | $300,746 | $111.53 | | |
| CR | County Roads | 0.4584763726 | $300,746 | $300,746 | $137.88 | | |
| ISLANDEMS | Hospital GEN (EMS) | 0.5000000000 | $300,746 | $300,746 | $150.37 | | |
| LIB | Library Sno-Isle GEN | 0.3153421757 | $300,746 | $300,746 | $94.84 | | |
| PORTWHID | Port of S Whidbey GEN | 0.1094540357 | $300,746 | $300,746 | $32.92 | | |
| SCH206BOND | School 206 BOND | 0.3161759235 | $300,746 | $300,746 | $95.09 | | |
| SCH206MO | School 206 Enrichment | 0.4547169547 | $300,746 | $300,746 | $136.75 | | |
| ST | State School | 1.3035497053 | $300,746 | $300,746 | $392.04 | | |
| ST2 | State School Part 2 | 0.8169543533 | $300,746 | $300,746 | $245.70 | | |
| SWHIDPRBD | P & R S Whidbey BOND | 0.0152817568 | $300,746 | $300,746 | $4.60 | | |
| SWHIDPRBD2 | P & R S Whidbey BOND2 | 0.0138911264 | $300,746 | $300,746 | $4.18 | | |
| SWHIDPRMT | P & R S Whidbey GEN | 0.2053334452 | $300,746 | $300,746 | $61.75 | | |
| | Total Tax Rate: | 6.6934522006 | | | | | |
| | | | | Taxes w/Current Exemptions: | $2,013.03 | | |
| | | | | Taxes w/o Exemptions: | $2,013.03 | | |
Improvement / Building
| Improvement #1: | RESIDENTIAL | State Code: | Y | 480.0 sqft | Value: | $75,746 |
| Bathrooms: | 1 | Bedrooms: | 1 | | Ceiling: | DRYWALL PAINTED | Exterior Wall/Cover: | PLY/HARDBOARD T-111 | | Floor Covering: | SOFTWOOD 100% | Floor Structure: | WOOD W/SUBFLOOR | | Foundation: | PIERS/CONCRETE | Interior Finish: | DRYWALL PAINT | | Plumbing Fixture Cnt: | 3 | Roof Slope: | FLAT | | Roof Structure/Cover: | CJ COMP ROLL |   |   |
|
| | Type | Description | Class CD | Sub Class CD | Year Built | Area |
| | BAS | BASE/MAIN FLOOR | 2 | 0 | 1963 | 480.0 |
| | ENP | ENCLOSED PORCH | 2 | 0 | 1963 | 80.0 |
| | ENP | ENCLOSED PORCH | 2 | 0 | 1963 | 216.0 |
| | UTY | STORAGE/UTILITY | 2 | 0 | 1963 | 96.0 |
| | UB8 | BASEMENT UNFINISHED 8" | 2 | 0 | 1963 | 200.0 |
| | OWP | OPEN WOOD PORCH W/STEPS | 2 | 0 | 1963 | 211.0 |
Sketch
| No sketches available for this property. |
Property Image
Land
| 1 | LB | LOW BANK | 0.2100 | 9147.60 | 62.00 | 0.00 | 1.00 | $225,000 | $0 |
Roll Value History
| 2026 | N/A | N/A | N/A | N/A | N/A |
| 2025 | $75,746 | $225,000 | $0 | $300,746 | $300,746 |
| 2024 | $77,045 | $225,000 | $0 | $302,045 | $302,045 |
| 2023 | $78,346 | $225,000 | $0 | $303,346 | $303,346 |
| 2022 | $72,123 | $225,000 | $0 | $297,123 | $297,123 |
| 2021 | $63,739 | $225,000 | $0 | $288,739 | $288,739 |
| 2020 | $35,814 | $225,000 | $0 | $260,814 | $260,814 |
| 2019 | $26,069 | $250,000 | $0 | $276,069 | $276,069 |
| 2018 | $26,176 | $150,000 | $0 | $176,176 | $176,176 |
| 2017 | $26,388 | $125,000 | $0 | $151,388 | $151,388 |
| 2016 | $26,814 | $125,000 | $0 | $151,814 | $151,814 |
| 2015 | $27,240 | $125,000 | $0 | $152,240 | $152,240 |
| 2014 | $19,491 | $125,000 | $0 | $144,491 | $144,491 |
| 2013 | $19,845 | $133,488 | $0 | $153,333 | $153,333 |
| 2012 | $29,449 | $133,488 | $0 | $162,937 | $162,937 |
| 2011 | $29,810 | $133,488 | $0 | $163,298 | $163,298 |
| 2010 | $19,768 | $133,488 | $0 | $153,256 | $153,256 |
| 2009 | $20,839 | $133,488 | $0 | $154,327 | $154,327 |
| 2008 | $14,522 | $133,488 | $0 | $148,010 | $148,010 |
| 2007 | $15,132 | $133,633 | $0 | $148,765 | $148,765 |
Deed and Sales History
| 1 | 09/26/2022 | WD | Warranty Deed | LAVASSER, WAYNE A (50%) | HECKENDORF, DONALD | | | $200,000.00 | 54728 | 4551985 |
| 2 | 08/18/2022 | PRD | Personal Representatives Deed | LAVASSAR, JOANN M | LAVASSER, WAYNE A (50%) | | | $0.00 | 54448 | 4550883 |
| 3 | 10/09/2018 | PRD | Personal Representatives Deed | FRAZIER, E LEE | LAVASSAR, JOANN M | | | $0.00 | 36250 | 4453277 |
| 4 | 08/30/2012 | WD | Warranty Deed | MATHEWS, JACK E | FRAZIER, E LEE | | | $140,000.00 | 8826 | 4322884 |
| 5 | 09/04/2012 | QCD | Quit Claim Deed | MATHEWS, JACK E | MATHEWS, JACK E | | | $0.00 | 8809 | 4322706 |
| 6 | 10/10/2011 | WD | Warranty Deed | MATHEWS, FRANK V | MATHEWS, JACK E | | | $75,000.00 | 5779 | 4302599 |
Payout Agreement
| No payout information available.. |