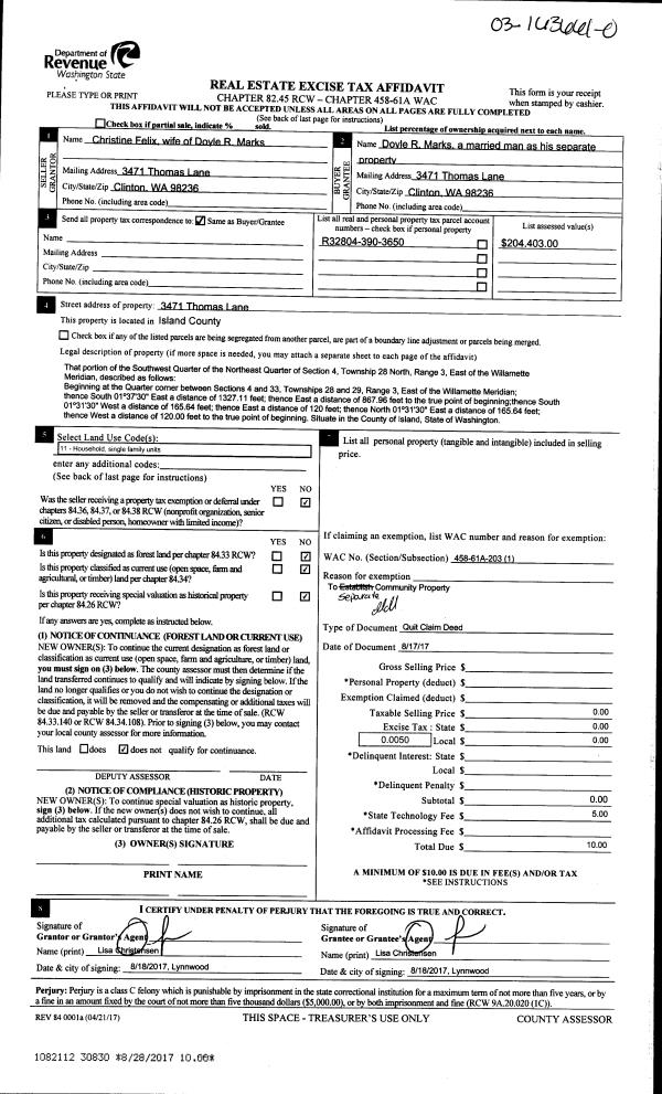
Property
Account |
| Property ID: | 11873 | Abbreviated Legal Description: | 168 SUM DC - BG 3630'S & 1170'E OF NWCR SD DC TPB E150' S90' W150' N90' TPB |
| Geographic ID: | R13202-366-1440 | Agent Code: | |
| Type: | Real | | |
| Tax Area: | 100 - APPRAISER-OH Schl Dist, in OH | Land Use Code | 11 |
| Open Space: | N | DFL | N |
| Historic Property: | N | Remodel Property: | N |
| Multi-Family Redevelopment: | N | | |
| Township: | 32 | Section: | 02 |
| Range: | R1 |
Location |
| Address: | 703 SE ELY ST OAK HARBOR, WA 98277 | Mapsco: | |
| Neighborhood: | Cycle 1 | Map ID: | 88 |
| Neighborhood CD: | 1 |
Owner |
| Name: | HULBERT, CHRISTOPHER | Owner ID: | 280361 |
| Mailing Address: | NANCY HULBERT 703 SE ELY ST OAK HARBOR, WA 98277 | % Ownership: | 100.0000000000% |
| | | Exemptions: | |
Taxes and Assessment Details
Values
| (+) Improvement Homesite Value: | + | $0 | |
| (+) Improvement Non-Homesite Value: | + | $258,715 | |
| (+) Land Homesite Value: | + | $0 | |
| (+) Land Non-Homesite Value: | + | $185,000 | |
| (+) Curr Use (HS): | + | $0 | $0 |
| (+) Curr Use (NHS): | + | $0 | $0 |
| | | -------------------------- | |
| (=) Market Value: | = | $443,715 | |
| (–) Productivity Loss: | – | $0 | |
| | | -------------------------- | |
| (=) Subtotal: | = | $443,715 | |
| (+) Senior Appraised Value: | + | $0 | |
| (+) Non-Senior Appraised Value: | + | $443,715 | |
| | | -------------------------- | |
| (=) Total Appraised Value: | = | $443,715 | |
| (–) Senior Exemption Loss: | – | $0 | |
| (–) Exemption Loss: | – | $0 | |
| | | -------------------------- | |
| (=) Taxable Value: | = | $443,715 | |
Taxing Jurisdiction
| Owner: | HULBERT, CHRISTOPHER | | |
| % Ownership: | 100.0000000000% | | |
| Total Value: | $443,715 | | |
| Tax Area: | 100 - APPRAISER-OH Schl Dist, in OH |
| CF | Conservation Futures | 0.0316035091 | $443,715 | $443,715 | $14.02 | | |
| CEM1 | Cemetery #1 | 0.0040320932 | $443,715 | $443,715 | $1.79 | | |
| COH | City of Oak Harbor | 2.3001546061 | $443,715 | $443,715 | $1,020.61 | | |
| OAKBOND | City of Oak Harbor BOND | 0.1926904192 | $443,715 | $443,715 | $85.50 | | |
| HOBOND | Hospital BOND | 0.1910887512 | $443,715 | $443,715 | $84.79 | | |
| HOGEN | Hospital GEN | 0.3902502903 | $443,715 | $443,715 | $173.16 | | |
| CE | County Current Expense | 0.3708482477 | $443,715 | $443,715 | $164.55 | | |
| ISLANDEMS | Hospital GEN (EMS) | 0.5000000000 | $443,715 | $443,715 | $221.86 | | |
| LIB | Library Sno-Isle GEN | 0.3153421757 | $443,715 | $443,715 | $139.92 | | |
| NWHIDPRMT | P & R N Whidbey GEN | 0.2004466701 | $443,715 | $443,715 | $88.94 | | |
| SCH201MO | School 201 Enrichment | 1.8559231640 | $443,715 | $443,715 | $823.50 | | |
| ST | State School | 1.3035497053 | $443,715 | $443,715 | $578.40 | | |
| ST2 | State School Part 2 | 0.8169543533 | $443,715 | $443,715 | $362.49 | | |
| | Total Tax Rate: | 8.4728839852 | | | | | |
| | | | | Taxes w/Current Exemptions: | $3,759.53 | | |
| | | | | Taxes w/o Exemptions: | $3,759.53 | | |
Improvement / Building
| Improvement #1: | RESIDENTIAL | State Code: | Y | 1237.0 sqft | Value: | $258,715 |
| Bathrooms: | 1.5 | Bedrooms: | 3 | | Ceiling: | DRYWALL PAINTED | Exterior Wall/Cover: | COMMON BRICK VENEER | | Floor Covering: | SOFTWOOD/VINYL 60-40 | Floor Structure: | WOOD W/SUBFLOOR | | Foundation: | CONCRETE BLOCKS | Heating: | FHA GAS | | Interior Finish: | DRYWALL PAINT | Plumbing Fixture Cnt: | 9 | | Roof Slope: | 5" IN 12" | Roof Structure/Cover: | CJ ALUMINIUM HEAVY |
|
| | Type | Description | Class CD | Sub Class CD | Year Built | Area |
| | BAS | BASE/MAIN FLOOR | 3 | 0 | 1965 | 1237.0 |
| | OP3 | OPEN PORCH W/ROOF | 3 | 0 | 1965 | 200.0 |
| | AGR | ATTACHED GARAGE | 3 | 0 | 1965 | 520.0 |
| | OWP | OPEN WOOD PORCH W/STEPS | 3 | 0 | 1965 | 216.0 |
Sketch
Property Image
Land
| 1 | 15 | SQ (12001-21780) | 0.3100 | 13503.60 | 0.00 | 0.00 | 1.00 | $185,000 | $0 |
Roll Value History
| 2026 | N/A | N/A | N/A | N/A | N/A |
| 2025 | $258,715 | $185,000 | $0 | $443,715 | $443,715 |
| 2024 | $262,063 | $175,000 | $0 | $437,063 | $437,063 |
| 2023 | $247,485 | $180,000 | $0 | $427,485 | $427,485 |
| 2022 | $227,083 | $180,000 | $0 | $407,083 | $407,083 |
| 2021 | $200,048 | $135,000 | $0 | $335,048 | $335,048 |
| 2020 | $194,997 | $100,000 | $0 | $294,997 | $294,997 |
| 2019 | $139,921 | $160,000 | $0 | $299,921 | $299,921 |
| 2018 | $140,363 | $125,000 | $0 | $265,363 | $265,363 |
| 2017 | $132,736 | $110,000 | $0 | $242,736 | $242,736 |
| 2016 | $134,580 | $90,000 | $0 | $224,580 | $224,580 |
| 2015 | $136,423 | $70,000 | $0 | $206,423 | $206,423 |
| 2014 | $138,267 | $65,000 | $0 | $203,267 | $203,267 |
| 2013 | $140,110 | $65,000 | $0 | $205,110 | $205,110 |
| 2012 | $141,953 | $65,000 | $0 | $206,953 | $206,953 |
| 2011 | $139,904 | $50,000 | $0 | $189,904 | $189,904 |
| 2010 | $148,561 | $50,000 | $0 | $198,561 | $198,561 |
| 2009 | $154,989 | $60,000 | $0 | $214,989 | $214,989 |
| 2008 | $156,943 | $78,000 | $0 | $234,943 | $234,943 |
| 2007 | $158,897 | $78,000 | $0 | $236,897 | $236,897 |
Deed and Sales History
| 1 | 06/13/2017 | WD | Warranty Deed | VANOORT, MARK L / DAWN M | HULBERT, CHRISTOPHER | | | $265,000.00 | 29714 | 4424176 |
| 2 | 10/01/1994 | QCD | Quit Claim Deed | VANOORT, MARK L | TESCH, CLARA H | | | $0.00 | 44309 | 94022201 |
| 3 | 10/01/1994 | WD | Warranty Deed | TESCH, CLARA H | VANOORT, MARK L | | | $128,000.00 | 44341 | 94022403 |
| 4 | 08/01/1987 | QCD | Quit Claim Deed | , | TESCH, CLARA H | | | $0.00 | 6337 | 90021931 |
| 5 | 01/01/1900 | OTHER | Other - Misc. Documents | Unknown | , | | | $0.00 | 0 | 0 |
Payout Agreement
| No payout information available.. |