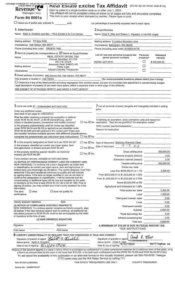
Property
Account |
| Property ID: | 11917 | Abbreviated Legal Description: | 178 SUM DC - IN SD DLC & PAT PAS 2ND: BG 1380.42' FR IP ON WLN TAFT DLC 33'N FR SWCR TAFT DLC W30' TO SECR LOT 17 TPB N36.90' W198.71' S18.42' E108.71' S165.90' E90' N147.42' TPB |
| Geographic ID: | R13202-370-2790 | Agent Code: | |
| Type: | Real | | |
| Tax Area: | 100 - APPRAISER-OH Schl Dist, in OH | Land Use Code | 13 |
| Open Space: | N | DFL | N |
| Historic Property: | N | Remodel Property: | N |
| Multi-Family Redevelopment: | N | | |
| Township: | 32 | Section: | 02 |
| Range: | R1 |
Location |
| Address: | 735 SE IRELAND ST OAK HARBOR, WA 98277 | Mapsco: | |
| Neighborhood: | 12cOH-se ireland | Map ID: | 89 |
| Neighborhood CD: | 12cOHireld |
Owner |
| Name: | YU CO TRUSTEE, CHIU TUNG | Owner ID: | 52390 |
| Mailing Address: | KIT YEE YU CO TRUSTEE 4680 WRIGHTSMAN PL CLINTON, WA 98236 | % Ownership: | 100.0000000000% |
| | | Exemptions: | |
Taxes and Assessment Details
Values
| (+) Improvement Homesite Value: | + | $0 | |
| (+) Improvement Non-Homesite Value: | + | $326,544 | |
| (+) Land Homesite Value: | + | $0 | |
| (+) Land Non-Homesite Value: | + | $444,312 | |
| (+) Curr Use (HS): | + | $0 | $0 |
| (+) Curr Use (NHS): | + | $0 | $0 |
| | | -------------------------- | |
| (=) Market Value: | = | $770,856 | |
| (–) Productivity Loss: | – | $0 | |
| | | -------------------------- | |
| (=) Subtotal: | = | $770,856 | |
| (+) Senior Appraised Value: | + | $0 | |
| (+) Non-Senior Appraised Value: | + | $770,856 | |
| | | -------------------------- | |
| (=) Total Appraised Value: | = | $770,856 | |
| (–) Senior Exemption Loss: | – | $0 | |
| (–) Exemption Loss: | – | $0 | |
| | | -------------------------- | |
| (=) Taxable Value: | = | $770,856 | |
Taxing Jurisdiction
| Owner: | YU CO TRUSTEE, CHIU TUNG | | |
| % Ownership: | 100.0000000000% | | |
| Total Value: | $770,856 | | |
| Tax Area: | 100 - APPRAISER-OH Schl Dist, in OH |
| CF | Conservation Futures | 0.0316035091 | $770,856 | $770,856 | $24.36 | | |
| CEM1 | Cemetery #1 | 0.0040320932 | $770,856 | $770,856 | $3.11 | | |
| COH | City of Oak Harbor | 2.3001546061 | $770,856 | $770,856 | $1,773.09 | | |
| OAKBOND | City of Oak Harbor BOND | 0.1926904192 | $770,856 | $770,856 | $148.54 | | |
| HOBOND | Hospital BOND | 0.1910887512 | $770,856 | $770,856 | $147.30 | | |
| HOGEN | Hospital GEN | 0.3902502903 | $770,856 | $770,856 | $300.83 | | |
| CE | County Current Expense | 0.3708482477 | $770,856 | $770,856 | $285.87 | | |
| ISLANDEMS | Hospital GEN (EMS) | 0.5000000000 | $770,856 | $770,856 | $385.43 | | |
| LIB | Library Sno-Isle GEN | 0.3153421757 | $770,856 | $770,856 | $243.08 | | |
| NWHIDPRMT | P & R N Whidbey GEN | 0.2004466701 | $770,856 | $770,856 | $154.52 | | |
| SCH201MO | School 201 Enrichment | 1.8559231640 | $770,856 | $770,856 | $1,430.65 | | |
| ST | State School | 1.3035497053 | $770,856 | $770,856 | $1,004.85 | | |
| ST2 | State School Part 2 | 0.8169543533 | $770,856 | $770,856 | $629.75 | | |
| | Total Tax Rate: | 8.4728839852 | | | | | |
| | | | | Taxes w/Current Exemptions: | $6,531.38 | | |
| | | | | Taxes w/o Exemptions: | $6,531.38 | | |
Improvement / Building
| Improvement #1: | RESIDENTIAL/COMMERCIAL | State Code: | A1 | 5166.0 sqft | Value: | $326,544 |
| Bathrooms: | 6 | Bedrooms: | 12 | | Ceiling: | DRY WALL SPRAYED | Exterior Wall/Cover: | WOOD SIDING | | Floor Covering: | CARPET/VINYL 80-20 | Floor Structure: | WOOD W/SUBFLOOR | | Foundation: | CONCRETE | Heating: | BASEBOARD ELECTRIC | | Interior Finish: | DRYWALL PAINT | Plumbing Fixture Cnt: | 32 | | Roof Slope: | FLAT | Roof Structure/Cover: | CJ BUILT-UP ROCK |
|
| | Type | Description | Class CD | Sub Class CD | Year Built | Area |
| | BAS | BASE/MAIN FLOOR | 2 | 0 | 1964 | 1722.0 |
| | OP2 | OPEN PORCH W/STEPS | 2 | 0 | 1964 | 50.0 |
| | OP2 | OPEN PORCH W/STEPS | 2 | 0 | 1964 | 50.0 |
| | UPS | UPPER STORY | 2 | 0 | 1964 | 1722.0 |
| | OWP | OPEN WOOD PORCH W/STEPS | 2 | 0 | 1964 | 72.0 |
| | OWP | OPEN WOOD PORCH W/STEPS | 2 | 0 | 1964 | 72.0 |
| | OWC | OPEN WOOD PORCH W/STEPS/ROOF/C | 2 | 0 | 1964 | 72.0 |
| | OWC | OPEN WOOD PORCH W/STEPS/ROOF/C | 2 | 0 | 1964 | 72.0 |
| | DWN | DOWNSTAIRS LIVING AREA | 2 | 0 | 1964 | 1722.0 |
| | OP1 | OPEN PORCH SLAB | 2 | 0 | 1964 | 296.0 |
| | oPV1 | PV/ASPH 2" | 2 | 0 | 1964 | 4350.0 |
Sketch
Property Image
Land
| 1 | 61 | MULTIPLE RESIDENCES | 0.3400 | 14810.40 | 0.00 | 0.00 | 1.00 | $444,312 | $0 |
Roll Value History
| 2026 | N/A | N/A | N/A | N/A | N/A |
| 2025 | $326,544 | $444,312 | $0 | $770,856 | $770,856 |
| 2024 | $345,023 | $444,312 | $0 | $789,335 | $789,335 |
| 2023 | $255,692 | $259,182 | $0 | $514,874 | $514,874 |
| 2022 | $221,467 | $259,182 | $0 | $480,649 | $480,649 |
| 2021 | $220,470 | $259,182 | $0 | $479,652 | $479,652 |
| 2020 | $220,306 | $259,182 | $0 | $479,488 | $479,488 |
| 2019 | $207,737 | $251,777 | $0 | $459,514 | $459,514 |
| 2018 | $269,629 | $385,070 | $0 | $654,699 | $654,699 |
| 2017 | $312,778 | $118,483 | $0 | $431,261 | $431,261 |
| 2016 | $312,778 | $118,483 | $0 | $431,261 | $431,261 |
| 2015 | $312,778 | $80,418 | $0 | $393,196 | $393,196 |
| 2014 | $312,778 | $80,418 | $0 | $393,196 | $393,196 |
| 2013 | $312,778 | $80,418 | $0 | $393,196 | $393,196 |
| 2012 | $312,778 | $80,418 | $0 | $393,196 | $393,196 |
| 2011 | $312,778 | $80,418 | $0 | $393,196 | $393,196 |
| 2010 | $311,750 | $80,418 | $0 | $392,168 | $392,168 |
| 2009 | $315,978 | $117,443 | $0 | $433,421 | $433,421 |
| 2008 | $320,206 | $123,664 | $0 | $443,870 | $443,870 |
| 2007 | $324,433 | $123,664 | $0 | $448,097 | $448,097 |
Deed and Sales History
| 1 | 01/01/1994 | QCD | Quit Claim Deed | YU, CHIU T | YU, CHIU T | | | $0.00 | 40695 | 94004411 |
| 2 | 03/01/1990 | WD | Warranty Deed | MORRIS, RICHARD P | YU, CHIU T | | | $194,000.00 | 1935 | 90006247 |
| 3 | 12/01/1981 | EXECUTORD | Executor Deed | MORRIS, RICHARD P | MORRIS, RICHARD P | | | $1.00 | 20259 | 392760 |
| 4 | 11/01/1980 | EXECUTORD | Executor Deed | EELKEMA, KENNETH J | MORRIS, RICHARD P | | | $132,000.00 | 4099 | 377294 |
| 5 | 01/01/1900 | OTHER | Other - Misc. Documents | Unknown | EELKEMA, KENNETH J | | | $0.00 | 0 | 0 |
Payout Agreement
| No payout information available.. |