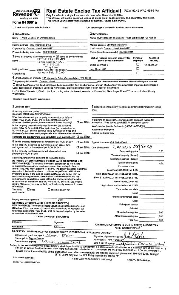
Property
Account |
| Property ID: | 119482 | Abbreviated Legal Description: | 53 - IN GL 1 |
| Geographic ID: | R32814-088-1380 | Agent Code: | |
| Type: | Real | | |
| Tax Area: | 710 - APPRAISER-S Whid Schl Dist, outside Langley, improved & 1 acre or less | Land Use Code | 11 |
| Open Space: | N | DFL | N |
| Historic Property: | N | Remodel Property: | N |
| Multi-Family Redevelopment: | N | | |
| Township: | 28 | Section: | 14 |
| Range: | R3 |
Location |
| Address: | 8340 BEACHVIEW DR CLINTON, WA 98236 | Mapsco: | |
| Neighborhood: | Cycle 4 | Map ID: | 708 |
| Neighborhood CD: | 4 |
Owner |
| Name: | BLACK, GAVIN | Owner ID: | 308531 |
| Mailing Address: | KATIE BLACK PO BOX 193 NORTH BEND, WA 98045 | % Ownership: | 100.0000000000% |
| | | Exemptions: | |
Taxes and Assessment Details
Values
| (+) Improvement Homesite Value: | + | $0 | |
| (+) Improvement Non-Homesite Value: | + | $362,819 | |
| (+) Land Homesite Value: | + | $0 | |
| (+) Land Non-Homesite Value: | + | $475,000 | |
| (+) Curr Use (HS): | + | $0 | $0 |
| (+) Curr Use (NHS): | + | $0 | $0 |
| | | -------------------------- | |
| (=) Market Value: | = | $837,819 | |
| (–) Productivity Loss: | – | $0 | |
| | | -------------------------- | |
| (=) Subtotal: | = | $837,819 | |
| (+) Senior Appraised Value: | + | $0 | |
| (+) Non-Senior Appraised Value: | + | $837,819 | |
| | | -------------------------- | |
| (=) Total Appraised Value: | = | $837,819 | |
| (–) Senior Exemption Loss: | – | $0 | |
| (–) Exemption Loss: | – | $0 | |
| | | -------------------------- | |
| (=) Taxable Value: | = | $837,819 | |
Taxing Jurisdiction
| Owner: | BLACK, GAVIN | | |
| % Ownership: | 100.0000000000% | | |
| Total Value: | $837,819 | | |
| Tax Area: | 710 - APPRAISER-S Whid Schl Dist, outside Langley, improved & 1 acre or less |
| CF | Conservation Futures | 0.0316035091 | $837,819 | $837,819 | $26.48 | | |
| FIRE3 | Fire & Rescue Dist #3 S Whidbey GEN | 1.2004855531 | $837,819 | $837,819 | $1,005.79 | | |
| HOBOND | Hospital BOND | 0.1910887512 | $837,819 | $837,819 | $160.10 | | |
| HOGEN | Hospital GEN | 0.3902502903 | $837,819 | $837,819 | $326.96 | | |
| CE | County Current Expense | 0.3708482477 | $837,819 | $837,819 | $310.70 | | |
| CR | County Roads | 0.4584763726 | $837,819 | $837,819 | $384.12 | | |
| ISLANDEMS | Hospital GEN (EMS) | 0.5000000000 | $837,819 | $837,819 | $418.91 | | |
| LIB | Library Sno-Isle GEN | 0.3153421757 | $837,819 | $837,819 | $264.20 | | |
| PORTWHID | Port of S Whidbey GEN | 0.1094540357 | $837,819 | $837,819 | $91.70 | | |
| SCH206BOND | School 206 BOND | 0.3161759235 | $837,819 | $837,819 | $264.90 | | |
| SCH206MO | School 206 Enrichment | 0.4547169547 | $837,819 | $837,819 | $380.97 | | |
| ST | State School | 1.3035497053 | $837,819 | $837,819 | $1,092.14 | | |
| ST2 | State School Part 2 | 0.8169543533 | $837,819 | $837,819 | $684.46 | | |
| SWHIDPRBD | P & R S Whidbey BOND | 0.0152817568 | $837,819 | $837,819 | $12.80 | | |
| SWHIDPRBD2 | P & R S Whidbey BOND2 | 0.0138911264 | $837,819 | $837,819 | $11.64 | | |
| SWHIDPRMT | P & R S Whidbey GEN | 0.2053334452 | $837,819 | $837,819 | $172.03 | | |
| | Total Tax Rate: | 6.6934522006 | | | | | |
| | | | | Taxes w/Current Exemptions: | $5,607.90 | | |
| | | | | Taxes w/o Exemptions: | $5,607.90 | | |
Improvement / Building
| Improvement #1: | RESIDENTIAL | State Code: | Y | 1020.0 sqft | Value: | $362,819 |
| Bathrooms: | 2 | Bedrooms: | 4 | | Ceiling: | ACOUSTIC FURRED | Exterior Wall/Cover: | VINYL | | Floor Covering: | CERAMIC TILE/CPT 40-60 | Floor Structure: | WOOD W/SUBFLOOR | | Foundation: | CONCRETE | Heating: | BASEBOARD ELECTRIC | | Interior Finish: | DRYWALL PAINT | Plumbing Fixture Cnt: | 12 | | Roof Slope: | 4" IN 12" | Roof Structure/Cover: | BEAM ASPHALT |
|
| | Type | Description | Class CD | Sub Class CD | Year Built | Area |
| | BAS | BASE/MAIN FLOOR | 3 | 0 | 1948 | 1020.0 |
| | OP4 | OPEN PORCH W/CEILING-ROOF | 3 | 0 | 1948 | 168.0 |
| | OP3 | OPEN PORCH W/ROOF | 3 | 0 | 1948 | 246.0 |
| | ENP | ENCLOSED PORCH | 3 | 0 | 1948 | 660.0 |
| | UTY | STORAGE/UTILITY | 3 | 0 | 1948 | 110.0 |
| | OWP | OPEN WOOD PORCH W/STEPS | 3 | 0 | 1948 | 60.0 |
Sketch
| No sketches available for this property. |
Property Image
Land
| 1 | HB | HIGH BLUFF | 0.7400 | 32234.40 | 100.00 | 0.00 | 1.00 | $475,000 | $0 |
Roll Value History
| 2026 | N/A | N/A | N/A | N/A | N/A |
| 2025 | $362,819 | $475,000 | $0 | $837,819 | $837,819 |
| 2024 | $323,997 | $450,000 | $0 | $773,997 | $773,997 |
| 2023 | $220,257 | $425,000 | $0 | $645,257 | $645,257 |
| 2022 | $202,106 | $375,000 | $0 | $577,106 | $577,106 |
| 2021 | $178,046 | $350,000 | $0 | $528,046 | $528,046 |
| 2020 | $143,071 | $350,000 | $0 | $493,071 | $493,071 |
| 2019 | $105,147 | $400,000 | $0 | $505,147 | $505,147 |
| 2018 | $105,459 | $260,000 | $0 | $365,459 | $365,459 |
| 2017 | $106,081 | $250,000 | $0 | $356,081 | $356,081 |
| 2016 | $107,329 | $250,000 | $0 | $357,329 | $357,329 |
| 2015 | $108,576 | $250,000 | $0 | $358,576 | $358,576 |
| 2014 | $95,514 | $250,000 | $0 | $345,514 | $345,514 |
| 2013 | $96,769 | $204,042 | $0 | $300,811 | $300,811 |
| 2012 | $98,026 | $204,042 | $0 | $302,068 | $302,068 |
| 2011 | $99,281 | $204,042 | $0 | $303,323 | $303,323 |
| 2010 | $109,527 | $204,042 | $0 | $313,569 | $313,569 |
| 2009 | $115,218 | $272,056 | $0 | $387,274 | $387,274 |
| 2008 | $109,109 | $272,056 | $0 | $381,165 | $381,165 |
| 2007 | $111,555 | $272,056 | $0 | $383,611 | $383,611 |
Deed and Sales History
| 1 | 04/29/2023 | WD | Warranty Deed | LELAND, MASON F | BLACK, GAVIN | | | $865,000.00 | 56591 | 4559517 |
| 2 | 08/03/2016 | WD | Warranty Deed | DEVINE TRUSTEE, CHARLES | LELAND, MASON F | | | $398,000.00 | 25557 | 4404595 |
| 3 | 02/06/2008 | QCD | Quit Claim Deed | DEVINE, CHARLES J | DEVINE TTEE, CHARLES | | | $0.00 | 80342 | 4221669 |
| 4 | 10/01/1980 | EXECUTORD | Executor Deed | DEVINE, CHARLES J | DEVINE, CHARLES J | | | $85,000.00 | 3248 | 374341 |
| 5 | 10/01/1980 | EXECUTORD | Executor Deed | DETTENMAYER, FRANK L | DEVINE, CHARLES J | | | $85,000.00 | 3248 | 374341 |
| 6 | 01/01/1900 | OTHER | Other - Misc. Documents | Unknown | DETTENMAYER, FRANK L | | | $0.00 | 0 | 0 |
Payout Agreement
| No payout information available.. |