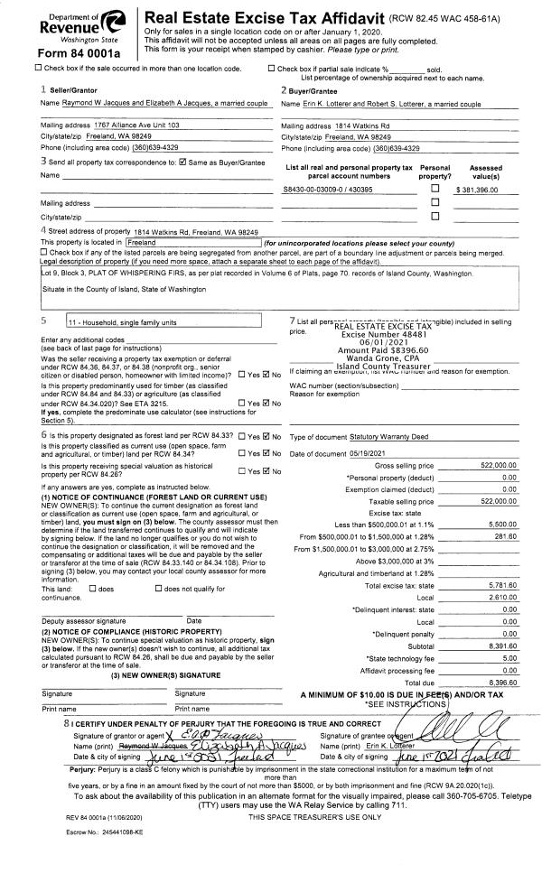
Property
Account |
| Property ID: | 119605 | Abbreviated Legal Description: | 86 - IN GL1: BG S/4 CR SEC 14 N663.20' S86*W1012.49' N22*W183.84' S87*W1.51' TPB S87*W319.51' N24*W80.40' N65*E134.64' S58*E45.30' S67*E177.26' ALG CUR/R 36 .17' TPB EX: BG S/4 CR SEC 14 N663.20' S86*W1012.49' N22*W183.84' S87*W148.02' TPB S87*W173' N24* |
| Geographic ID: | R32814-106-1300 | Agent Code: | |
| Type: | Real | | |
| Tax Area: | 710 - APPRAISER-S Whid Schl Dist, outside Langley, improved & 1 acre or less | Land Use Code | 11 |
| Open Space: | N | DFL | N |
| Historic Property: | N | Remodel Property: | N |
| Multi-Family Redevelopment: | N | | |
| Township: | 28 | Section: | 14 |
| Range: | R3 |
Location |
| Address: | 8330 BEACHVIEW DR CLINTON, WA 98236 | Mapsco: | |
| Neighborhood: | Cycle 4 | Map ID: | 708 |
| Neighborhood CD: | 4 |
Owner |
| Name: | ELKINS, LEAH S | Owner ID: | 282539 |
| Mailing Address: | DAVID S ELKINS 236 LEXINGTON DR MENLO PARK, CA 94025 | % Ownership: | 100.0000000000% |
| | | Exemptions: | |
Taxes and Assessment Details
Values
| (+) Improvement Homesite Value: | + | $0 | |
| (+) Improvement Non-Homesite Value: | + | $151,107 | |
| (+) Land Homesite Value: | + | $0 | |
| (+) Land Non-Homesite Value: | + | $450,000 | |
| (+) Curr Use (HS): | + | $0 | $0 |
| (+) Curr Use (NHS): | + | $0 | $0 |
| | | -------------------------- | |
| (=) Market Value: | = | $601,107 | |
| (–) Productivity Loss: | – | $0 | |
| | | -------------------------- | |
| (=) Subtotal: | = | $601,107 | |
| (+) Senior Appraised Value: | + | $0 | |
| (+) Non-Senior Appraised Value: | + | $601,107 | |
| | | -------------------------- | |
| (=) Total Appraised Value: | = | $601,107 | |
| (–) Senior Exemption Loss: | – | $0 | |
| (–) Exemption Loss: | – | $0 | |
| | | -------------------------- | |
| (=) Taxable Value: | = | $601,107 | |
Taxing Jurisdiction
| Owner: | ELKINS, LEAH S | | |
| % Ownership: | 100.0000000000% | | |
| Total Value: | $601,107 | | |
| Tax Area: | 710 - APPRAISER-S Whid Schl Dist, outside Langley, improved & 1 acre or less |
| CF | Conservation Futures | 0.0316035091 | $601,107 | $601,107 | $19.00 | | |
| FIRE3 | Fire & Rescue Dist #3 S Whidbey GEN | 1.2004855531 | $601,107 | $601,107 | $721.62 | | |
| HOBOND | Hospital BOND | 0.1910887512 | $601,107 | $601,107 | $114.86 | | |
| HOGEN | Hospital GEN | 0.3902502903 | $601,107 | $601,107 | $234.58 | | |
| CE | County Current Expense | 0.3708482477 | $601,107 | $601,107 | $222.92 | | |
| CR | County Roads | 0.4584763726 | $601,107 | $601,107 | $275.59 | | |
| ISLANDEMS | Hospital GEN (EMS) | 0.5000000000 | $601,107 | $601,107 | $300.55 | | |
| LIB | Library Sno-Isle GEN | 0.3153421757 | $601,107 | $601,107 | $189.55 | | |
| PORTWHID | Port of S Whidbey GEN | 0.1094540357 | $601,107 | $601,107 | $65.79 | | |
| SCH206BOND | School 206 BOND | 0.3161759235 | $601,107 | $601,107 | $190.06 | | |
| SCH206MO | School 206 Enrichment | 0.4547169547 | $601,107 | $601,107 | $273.33 | | |
| ST | State School | 1.3035497053 | $601,107 | $601,107 | $783.57 | | |
| ST2 | State School Part 2 | 0.8169543533 | $601,107 | $601,107 | $491.08 | | |
| SWHIDPRBD | P & R S Whidbey BOND | 0.0152817568 | $601,107 | $601,107 | $9.19 | | |
| SWHIDPRBD2 | P & R S Whidbey BOND2 | 0.0138911264 | $601,107 | $601,107 | $8.35 | | |
| SWHIDPRMT | P & R S Whidbey GEN | 0.2053334452 | $601,107 | $601,107 | $123.43 | | |
| | Total Tax Rate: | 6.6934522006 | | | | | |
| | | | | Taxes w/Current Exemptions: | $4,023.47 | | |
| | | | | Taxes w/o Exemptions: | $4,023.47 | | |
Improvement / Building
| Improvement #1: | RESIDENTIAL | State Code: | Y | 940.0 sqft | Value: | $151,107 |
| Bathrooms: | 1 | Bedrooms: | 1 | | Ceiling: | DRYWALL PAINTED | Exterior Wall/Cover: | PLY/HARDBOARD T-111 | | Floor Covering: | VINYL/HARDWOOD 60-40 | Floor Structure: | WOOD W/SUBFLOOR | | Foundation: | PIERS/CONCRETE | Heating: | BASEBOARD ELECTRIC | | Interior Finish: | DRYWALL PAINT | Plumbing Fixture Cnt: | 5 | | Roof Slope: | 6" IN 12" | Roof Structure/Cover: | CJ ASPHALT |
|
| | Type | Description | Class CD | Sub Class CD | Year Built | Area |
| | BAS | BASE/MAIN FLOOR | 3 | 0 | 1942 | 940.0 |
| | OWP | OPEN WOOD PORCH W/STEPS | 3 | 0 | 1942 | 405.0 |
| | OWR | OPEN WOOD PORCH W/STEPS/ROOF | 3 | 0 | 1942 | 60.0 |
| | ENP | ENCLOSED PORCH | 3 | 0 | 1942 | 299.0 |
| | UTY | STORAGE/UTILITY | 3 | 0 | 1942 | 144.0 |
Sketch
Property Image
Land
| 1 | HB | HIGH BLUFF | 0.6000 | 26136.00 | 80.00 | 0.00 | 1.00 | $450,000 | $0 |
Roll Value History
| 2026 | N/A | N/A | N/A | N/A | N/A |
| 2025 | $151,107 | $450,000 | $0 | $601,107 | $601,107 |
| 2024 | $156,818 | $425,000 | $0 | $581,818 | $581,818 |
| 2023 | $159,115 | $400,000 | $0 | $559,115 | $559,115 |
| 2022 | $146,160 | $350,000 | $0 | $496,160 | $496,160 |
| 2021 | $128,909 | $350,000 | $0 | $478,909 | $478,909 |
| 2020 | $118,858 | $350,000 | $0 | $468,858 | $468,858 |
| 2019 | $84,782 | $400,000 | $0 | $484,782 | $484,782 |
| 2018 | $85,081 | $260,000 | $0 | $345,081 | $345,081 |
| 2017 | $76,971 | $250,000 | $0 | $326,971 | $326,971 |
| 2016 | $78,160 | $250,000 | $0 | $328,160 | $328,160 |
| 2015 | $79,351 | $200,000 | $0 | $279,351 | $279,351 |
| 2014 | $67,242 | $200,000 | $0 | $267,242 | $267,242 |
| 2013 | $68,263 | $187,880 | $0 | $256,143 | $256,143 |
| 2012 | $69,285 | $187,880 | $0 | $257,165 | $257,165 |
| 2011 | $70,307 | $187,880 | $0 | $258,187 | $258,187 |
| 2010 | $79,083 | $187,880 | $0 | $266,963 | $266,963 |
| 2009 | $82,516 | $227,107 | $0 | $309,623 | $309,623 |
| 2008 | $80,283 | $227,107 | $0 | $307,390 | $307,390 |
| 2007 | $81,355 | $227,107 | $0 | $308,462 | $308,462 |
Deed and Sales History
| 1 | 10/18/2017 | WD | Warranty Deed | FREAL, J PATRICK | ELKINS, LEAH S | | | $515,000.00 | 31601 | 4432497 |
| 2 | 06/21/2004 | WD | Warranty Deed | CALDWELL, SANDRA L | FREAL, J PATRICK | | | $322,500.00 | 42713 | 4104510 |
| 3 | 06/01/1995 | DECREE | Divorce Decree/Legal Separation | DEROSA, DELORES I | CALDWELL, SANDRA L | | | $0.00 | 52051 | 95009606 |
| 4 | 04/01/1986 | QCD | Quit Claim Deed | CALDWELL, JAMES H | DEROSA, DELORES I | | | $0.00 | 60981 | 86004578 |
| 5 | 04/01/1986 | WD | Warranty Deed | JACOBSON, DENICE & | CALDWELL, JAMES H | | | $78,000.00 | 60982 | 86004580 |
| 6 | 03/01/1980 | CD | DNU - Correction Deed | HELT, D I | JACOBSON, DENICE & | | | $0.00 | 1396 | 368044 |
| 7 | 01/01/1900 | OTHER | Other - Misc. Documents | Unknown | HELT, D I | | | $0.00 | 0 | 0 |
Payout Agreement
| No payout information available.. |