Property
Account |
| Property ID: | 119712 | Abbreviated Legal Description: | 107 - IN N/2 GL1: BG 4/CR OF SLN SEC 14 N663.2' S86*W 966.99' N23*W186.40' ALG CUR/L 77.65' N66*W158.73' N59*W70' TPB N30*E92.24' N51*W54.04' S59*W90.42' ALG CUR/L 73.49' S59*E28.08' TPB |
| Geographic ID: | R32814-123-1300 | Agent Code: | |
| Type: | Real | | |
| Tax Area: | 719 - APPRAISER-S Whid Schl Dist, outside Langley, vacant & 50 acres or less | Land Use Code | 91 |
| Open Space: | N | DFL | N |
| Historic Property: | N | Remodel Property: | N |
| Multi-Family Redevelopment: | N | | |
| Township: | 28 | Section: | 14 |
| Range: | R3 |
Location |
| Address: | | Mapsco: | |
| Neighborhood: | Cycle 4 | Map ID: | 708 |
| Neighborhood CD: | 4 |
Owner |
| Name: | WILLIS, CYNTHIA R | Owner ID: | 296274 |
| Mailing Address: | 8316 BAYSHORE DR CLINTON, WA 98236 | % Ownership: | 100.0000000000% |
| | | Exemptions: | |
Taxes and Assessment Details
Values
| (+) Improvement Homesite Value: | + | $0 | |
| (+) Improvement Non-Homesite Value: | + | $0 | |
| (+) Land Homesite Value: | + | $0 | |
| (+) Land Non-Homesite Value: | + | $120,000 | |
| (+) Curr Use (HS): | + | $0 | $0 |
| (+) Curr Use (NHS): | + | $0 | $0 |
| | | -------------------------- | |
| (=) Market Value: | = | $120,000 | |
| (–) Productivity Loss: | – | $0 | |
| | | -------------------------- | |
| (=) Subtotal: | = | $120,000 | |
| (+) Senior Appraised Value: | + | $0 | |
| (+) Non-Senior Appraised Value: | + | $120,000 | |
| | | -------------------------- | |
| (=) Total Appraised Value: | = | $120,000 | |
| (–) Senior Exemption Loss: | – | $0 | |
| (–) Exemption Loss: | – | $0 | |
| | | -------------------------- | |
| (=) Taxable Value: | = | $120,000 | |
Taxing Jurisdiction
| Owner: | WILLIS, CYNTHIA R | | |
| % Ownership: | 100.0000000000% | | |
| Total Value: | $120,000 | | |
| Tax Area: | 719 - APPRAISER-S Whid Schl Dist, outside Langley, vacant & 50 acres or less |
| CF | Conservation Futures | 0.0316035091 | $120,000 | $120,000 | $3.79 | | |
| HOBOND | Hospital BOND | 0.1910887512 | $120,000 | $120,000 | $22.93 | | |
| HOGEN | Hospital GEN | 0.3902502903 | $120,000 | $120,000 | $46.83 | | |
| CE | County Current Expense | 0.3708482477 | $120,000 | $120,000 | $44.50 | | |
| CR | County Roads | 0.4584763726 | $120,000 | $120,000 | $55.02 | | |
| ISLANDEMS | Hospital GEN (EMS) | 0.5000000000 | $120,000 | $120,000 | $60.00 | | |
| LIB | Library Sno-Isle GEN | 0.3153421757 | $120,000 | $120,000 | $37.84 | | |
| PORTWHID | Port of S Whidbey GEN | 0.1094540357 | $120,000 | $120,000 | $13.13 | | |
| SCH206BOND | School 206 BOND | 0.3161759235 | $120,000 | $120,000 | $37.94 | | |
| SCH206MO | School 206 Enrichment | 0.4547169547 | $120,000 | $120,000 | $54.57 | | |
| ST | State School | 1.3035497053 | $120,000 | $120,000 | $156.43 | | |
| ST2 | State School Part 2 | 0.8169543533 | $120,000 | $120,000 | $98.03 | | |
| SWHIDPRBD | P & R S Whidbey BOND | 0.0152817568 | $120,000 | $120,000 | $1.83 | | |
| SWHIDPRBD2 | P & R S Whidbey BOND2 | 0.0138911264 | $120,000 | $120,000 | $1.67 | | |
| SWHIDPRMT | P & R S Whidbey GEN | 0.2053334452 | $120,000 | $120,000 | $24.64 | | |
| | Total Tax Rate: | 5.4929666475 | | | | | |
| | | | | Taxes w/Current Exemptions: | $659.15 | | |
| | | | | Taxes w/o Exemptions: | $659.15 | | |
Improvement / Building
Sketch
| No sketches available for this property. |
Property Image
Land
| 1 | 13 | SQ (06001-08000) | 0.1600 | 6969.60 | 0.00 | 0.00 | 1.00 | $120,000 | $0 |
Roll Value History
| 2026 | N/A | N/A | N/A | N/A | N/A |
| 2025 | $0 | $120,000 | $0 | $120,000 | $120,000 |
| 2024 | $0 | $120,000 | $0 | $120,000 | $120,000 |
| 2023 | $0 | $120,000 | $0 | $120,000 | $120,000 |
| 2022 | $0 | $120,000 | $0 | $120,000 | $120,000 |
| 2021 | $0 | $120,000 | $0 | $120,000 | $120,000 |
| 2020 | $0 | $120,000 | $0 | $120,000 | $120,000 |
| 2019 | $0 | $120,000 | $0 | $120,000 | $120,000 |
| 2018 | $0 | $100,000 | $0 | $100,000 | $100,000 |
| 2017 | $0 | $125,000 | $0 | $125,000 | $125,000 |
| 2016 | $0 | $125,000 | $0 | $125,000 | $125,000 |
| 2015 | $0 | $125,000 | $0 | $125,000 | $125,000 |
| 2014 | $0 | $125,000 | $0 | $125,000 | $125,000 |
| 2013 | $0 | $125,000 | $0 | $125,000 | $125,000 |
| 2012 | $0 | $60,000 | $0 | $60,000 | $60,000 |
| 2011 | $0 | $60,000 | $0 | $60,000 | $60,000 |
| 2010 | $0 | $60,000 | $0 | $60,000 | $60,000 |
| 2009 | $0 | $75,000 | $0 | $75,000 | $75,000 |
| 2008 | $0 | $58,000 | $0 | $58,000 | $58,000 |
| 2007 | $0 | $58,000 | $0 | $58,000 | $58,000 |
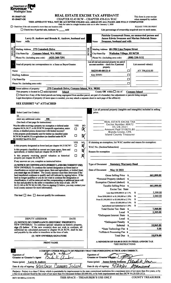
Deed and Sales History
| 1 | 09/26/2020 | WD | Warranty Deed | PHELPS, ELIZABETH | WILLIS, CYNTHIA R | | | $0.00 | 45136 | 4498821 |
| 2 | 09/04/2020 | WD | Warranty Deed | PHELPS, ELIZABETH | WILLIS, CYNTHIA R | | | $150,000.00 | 44937 | 4497810 |
| 3 | 08/28/2018 | WD | Warranty Deed | DEWEES, DEBORAH L | PHELPS, ELIZABETH | | | $125,000.00 | 35877 | 4451647 |
| 4 | 11/03/1998 | DECREE | Divorce Decree/Legal Separation | DEWEES, ROBERT B | DEWEES, DEBORAH L | | | $0.00 | 68068 | 0 |
| 5 | 11/01/1994 | QCD | Quit Claim Deed | DEWEES, ROBERT B | DEWEES, ROBERT B | | | $0.00 | 50284 | 95001312 |
| 6 | 07/01/1992 | QCD | Quit Claim Deed | DEWEES, ROBERT B | DEWEES, ROBERT B | | | $0.00 | 23640 | 92017526 |
| 7 | 01/01/1990 | WD | Warranty Deed | MCCOMAS, STEPHEN A | DEWEES, ROBERT B | | | $35,000.00 | 454 | 90001382 |
| 8 | 06/01/1988 | QCD | Quit Claim Deed | MCCOMAS, STEPHEN A | MCCOMAS, STEPHEN A | | | $0.00 | 82368 | 88008959 |
| 9 | 01/01/1900 | OTHER | Other - Misc. Documents | Unknown | MCCOMAS, STEPHEN A | | | $0.00 | 0 | 0 |
Payout Agreement
| No payout information available.. |