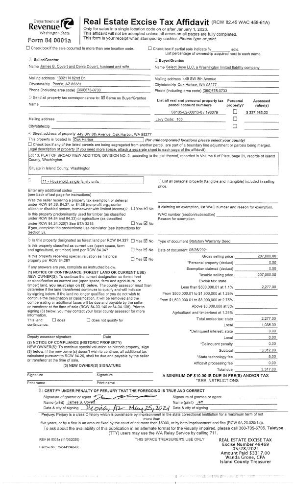
Property
Account |
| Property ID: | 119776 | Abbreviated Legal Description: | 16 - IN GL 1: BG 4/CR ON SLN SEC 14 N0*E663.20' S86*W1009.49' N23*W177.10' CUR/L 61.70' N66*W159.93' N59*W99.28' S30*W10' CUR/R 175.93' N3*E99.94'TPB N3*E 68.61' S86*W114.24' N23*W25 .10' S87*W213.98' S24*E213 .75' N88*E73.62' N6*E46.05' CUR/R 37.18' N77* |
| Geographic ID: | R32814-142-1030 | Agent Code: | |
| Type: | Real | | |
| Tax Area: | 710 - APPRAISER-S Whid Schl Dist, outside Langley, improved & 1 acre or less | Land Use Code | 11 |
| Open Space: | N | DFL | N |
| Historic Property: | N | Remodel Property: | N |
| Multi-Family Redevelopment: | N | | |
| Township: | 28 | Section: | 14 |
| Range: | R3 |
Location |
| Address: | 8302 BEACHVIEW DR CLINTON, WA 98236 | Mapsco: | |
| Neighborhood: | Cycle 4 | Map ID: | 708 |
| Neighborhood CD: | 4 |
Owner |
| Name: | WHIDBY, DOUGLAS K | Owner ID: | 280539 |
| Mailing Address: | MOIRA M WHIDBY 8302 BEACHVIEW DR CLINTON, WA 98236 | % Ownership: | 100.0000000000% |
| | | Exemptions: | |
Taxes and Assessment Details
Values
| (+) Improvement Homesite Value: | + | $0 | |
| (+) Improvement Non-Homesite Value: | + | $754,707 | |
| (+) Land Homesite Value: | + | $0 | |
| (+) Land Non-Homesite Value: | + | $875,000 | |
| (+) Curr Use (HS): | + | $0 | $0 |
| (+) Curr Use (NHS): | + | $0 | $0 |
| | | -------------------------- | |
| (=) Market Value: | = | $1,629,707 | |
| (–) Productivity Loss: | – | $0 | |
| | | -------------------------- | |
| (=) Subtotal: | = | $1,629,707 | |
| (+) Senior Appraised Value: | + | $0 | |
| (+) Non-Senior Appraised Value: | + | $1,629,707 | |
| | | -------------------------- | |
| (=) Total Appraised Value: | = | $1,629,707 | |
| (–) Senior Exemption Loss: | – | $0 | |
| (–) Exemption Loss: | – | $0 | |
| | | -------------------------- | |
| (=) Taxable Value: | = | $1,629,707 | |
Taxing Jurisdiction
| Owner: | WHIDBY, DOUGLAS K | | |
| % Ownership: | 100.0000000000% | | |
| Total Value: | $1,629,707 | | |
| Tax Area: | 710 - APPRAISER-S Whid Schl Dist, outside Langley, improved & 1 acre or less |
| CF | Conservation Futures | 0.0316035091 | $1,629,707 | $1,629,707 | $51.50 | | |
| FIRE3 | Fire & Rescue Dist #3 S Whidbey GEN | 1.2004855531 | $1,629,707 | $1,629,707 | $1,956.44 | | |
| HOBOND | Hospital BOND | 0.1910887512 | $1,629,707 | $1,629,707 | $311.42 | | |
| HOGEN | Hospital GEN | 0.3902502903 | $1,629,707 | $1,629,707 | $635.99 | | |
| CE | County Current Expense | 0.3708482477 | $1,629,707 | $1,629,707 | $604.37 | | |
| CR | County Roads | 0.4584763726 | $1,629,707 | $1,629,707 | $747.18 | | |
| ISLANDEMS | Hospital GEN (EMS) | 0.5000000000 | $1,629,707 | $1,629,707 | $814.85 | | |
| LIB | Library Sno-Isle GEN | 0.3153421757 | $1,629,707 | $1,629,707 | $513.92 | | |
| PORTWHID | Port of S Whidbey GEN | 0.1094540357 | $1,629,707 | $1,629,707 | $178.38 | | |
| SCH206BOND | School 206 BOND | 0.3161759235 | $1,629,707 | $1,629,707 | $515.27 | | |
| SCH206MO | School 206 Enrichment | 0.4547169547 | $1,629,707 | $1,629,707 | $741.06 | | |
| ST | State School | 1.3035497053 | $1,629,707 | $1,629,707 | $2,124.40 | | |
| ST2 | State School Part 2 | 0.8169543533 | $1,629,707 | $1,629,707 | $1,331.40 | | |
| SWHIDPRBD | P & R S Whidbey BOND | 0.0152817568 | $1,629,707 | $1,629,707 | $24.90 | | |
| SWHIDPRBD2 | P & R S Whidbey BOND2 | 0.0138911264 | $1,629,707 | $1,629,707 | $22.64 | | |
| SWHIDPRMT | P & R S Whidbey GEN | 0.2053334452 | $1,629,707 | $1,629,707 | $334.63 | | |
| | Total Tax Rate: | 6.6934522006 | | | | | |
| | | | | Taxes w/Current Exemptions: | $10,908.35 | | |
| | | | | Taxes w/o Exemptions: | $10,908.35 | | |
Improvement / Building
| Improvement #1: | RESIDENTIAL | State Code: | Y | 3059.0 sqft | Value: | $754,707 |
| Bathrooms: | 2.5 | Bedrooms: | 2 | | Ceiling: | DRY WALL SPRAYED | Cooling: | HEAT PUMP/CONV/V | | Exterior Wall/Cover: | WOOD SIDING | Floor Covering: | HARDWOOD/CARP 60-40 | | Floor Structure: | WOOD W/SUBFLOOR | Foundation: | CONCRETE | | Interior Finish: | DRYWALL PAINT | Plumbing Fixture Cnt: | 12 | | Roof Slope: | 4" IN 12" | Roof Structure/Cover: | CJ ASPHALT |
|
| | Type | Description | Class CD | Sub Class CD | Year Built | Area |
| | BAS | BASE/MAIN FLOOR | 6 | 0 | 1982 | 1582.0 |
| | OP2 | OPEN PORCH W/STEPS | 6 | 0 | 1982 | 55.0 |
| | BIG | BUILT IN GARAGE | 6 | 0 | 1982 | 418.0 |
| | UPS | UPPER STORY | 6 | 0 | 1982 | 419.0 |
| | OWP | OPEN WOOD PORCH W/STEPS | 6 | 0 | 1982 | 780.0 |
| | DWN | DOWNSTAIRS LIVING AREA | 6 | 0 | 1982 | 1058.0 |
| | DGR | DETACHED GARAGE | 6 | 0 | 1982 | 544.0 |
Sketch
| No sketches available for this property. |
Property Image
Land
| 1 | LB | LOW BANK | 0.8000 | 34848.00 | 186.00 | 0.00 | 1.00 | $875,000 | $0 |
Roll Value History
| 2026 | N/A | N/A | N/A | N/A | N/A |
| 2025 | $754,707 | $875,000 | $0 | $1,629,707 | $1,629,707 |
| 2024 | $763,664 | $775,000 | $0 | $1,538,664 | $1,538,664 |
| 2023 | $762,622 | $775,000 | $0 | $1,537,622 | $1,537,622 |
| 2022 | $698,568 | $725,000 | $0 | $1,423,568 | $1,423,568 |
| 2021 | $614,426 | $650,000 | $0 | $1,264,426 | $1,264,426 |
| 2020 | $598,945 | $650,000 | $0 | $1,248,945 | $1,248,945 |
| 2019 | $544,088 | $700,000 | $0 | $1,244,088 | $1,244,088 |
| 2018 | $545,595 | $400,000 | $0 | $945,595 | $945,595 |
| 2017 | $446,455 | $350,000 | $0 | $796,455 | $796,455 |
| 2016 | $451,771 | $350,000 | $0 | $801,771 | $801,771 |
| 2015 | $457,086 | $330,251 | $0 | $787,337 | $787,337 |
| 2014 | $411,003 | $330,251 | $0 | $741,254 | $741,254 |
| 2013 | $415,621 | $330,251 | $0 | $745,872 | $745,872 |
| 2012 | $420,238 | $330,251 | $0 | $750,489 | $750,489 |
| 2011 | $424,857 | $330,251 | $0 | $755,108 | $755,108 |
| 2010 | $434,386 | $330,251 | $0 | $764,637 | $764,637 |
| 2009 | $452,140 | $516,017 | $0 | $968,157 | $968,157 |
| 2008 | $359,383 | $516,017 | $0 | $875,400 | $875,400 |
| 2007 | $359,814 | $516,017 | $0 | $875,831 | $875,831 |
Deed and Sales History
| 1 | 06/19/2017 | WD | Warranty Deed | LEROSS TRUSTEE, LESTER M | WHIDBY, DOUGLAS K | | | $1,400,000.00 | 29892 | 4424881 |
|   | |
| 2 | 06/19/2017 | QCD | Quit Claim Deed | LEROSS TRUSTEE, LESTER M | LEROSS TRUSTEE, LESTER M | | | $0.00 | 29891 | 4424880 |
| 3 | 02/25/2004 | QCD | Quit Claim Deed | LEROSS TRUSTEE, LESTER M | LEROSS TRUSTEE, LESTER M | | | $0.00 | 29890 | 4424879 |
| 4 | 02/21/2012 | QCD | Quit Claim Deed | LE ROSS, LESTER M / CONNIE W | LEROSS TRUSTEE, LESTER M | | | $0.00 | 6940 | 4310421 |
| 5 | 09/01/1994 | QCD | Quit Claim Deed | LE, ROSS, L | CARLISLE, EILENE T | | | $0.00 | 44107 | 94021123 |
| 6 | 09/01/1994 | WD | Warranty Deed | CARLISLE, EILENE T | LE, ROSS, L | | | $312,000.00 | 44108 | 94021124 |
| 7 | 05/01/1971 | OTHER | Other - Misc. Documents | TRIBOU, ROBERT J | CARLISLE, EILENE T | | | $0.00 | 49785 | 0 |
| 8 | 01/01/1900 | OTHER | Other - Misc. Documents | Unknown | TRIBOU, ROBERT J | | | $0.00 | 0 | 0 |
Payout Agreement
| No payout information available.. |