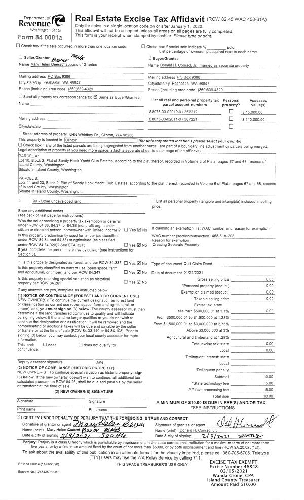
Property
Account |
| Property ID: | 120167 | Abbreviated Legal Description: | 130 - S125' OF N250' OF S/2 SE NE EX CO RD TGW & SUBJ EZ |
| Geographic ID: | R32814-327-4860 | Agent Code: | |
| Type: | Real | | |
| Tax Area: | 712 - APPRAISER-S Whid Schl Dist, outside Langley, improved, greater than 1 acre | Land Use Code | 11 |
| Open Space: | N | DFL | N |
| Historic Property: | N | Remodel Property: | N |
| Multi-Family Redevelopment: | N | | |
| Township: | 28 | Section: | 14 |
| Range: | R3 |
Location |
| Address: | 8167 POSSESSION RIDGE LN CLINTON, WA 98236 | Mapsco: | |
| Neighborhood: | Cycle 4 | Map ID: | 711 |
| Neighborhood CD: | 4 |
Owner |
| Name: | FARRENS, MICHAEL J | Owner ID: | 16530 |
| Mailing Address: | PO BOX 20057 TUSCALOOSA, AL 35402-0057 | % Ownership: | 100.0000000000% |
| | | Exemptions: | |
Taxes and Assessment Details
Values
| (+) Improvement Homesite Value: | + | $0 | |
| (+) Improvement Non-Homesite Value: | + | $498,332 | |
| (+) Land Homesite Value: | + | $0 | |
| (+) Land Non-Homesite Value: | + | $360,000 | |
| (+) Curr Use (HS): | + | $0 | $0 |
| (+) Curr Use (NHS): | + | $0 | $0 |
| | | -------------------------- | |
| (=) Market Value: | = | $858,332 | |
| (–) Productivity Loss: | – | $0 | |
| | | -------------------------- | |
| (=) Subtotal: | = | $858,332 | |
| (+) Senior Appraised Value: | + | $0 | |
| (+) Non-Senior Appraised Value: | + | $858,332 | |
| | | -------------------------- | |
| (=) Total Appraised Value: | = | $858,332 | |
| (–) Senior Exemption Loss: | – | $0 | |
| (–) Exemption Loss: | – | $0 | |
| | | -------------------------- | |
| (=) Taxable Value: | = | $858,332 | |
Taxing Jurisdiction
| Owner: | FARRENS, MICHAEL J | | |
| % Ownership: | 100.0000000000% | | |
| Total Value: | $858,332 | | |
| Tax Area: | 712 - APPRAISER-S Whid Schl Dist, outside Langley, improved, greater than 1 acre |
| CF | Conservation Futures | 0.0316035091 | $858,332 | $858,332 | $27.13 | | |
| FIRE3 | Fire & Rescue Dist #3 S Whidbey GEN | 1.2004855531 | $858,332 | $858,332 | $1,030.42 | | |
| HOBOND | Hospital BOND | 0.1910887512 | $858,332 | $858,332 | $164.02 | | |
| HOGEN | Hospital GEN | 0.3902502903 | $858,332 | $858,332 | $334.96 | | |
| CE | County Current Expense | 0.3708482477 | $858,332 | $858,332 | $318.31 | | |
| CR | County Roads | 0.4584763726 | $858,332 | $858,332 | $393.52 | | |
| ISLANDEMS | Hospital GEN (EMS) | 0.5000000000 | $858,332 | $858,332 | $429.17 | | |
| LIB | Library Sno-Isle GEN | 0.3153421757 | $858,332 | $858,332 | $270.67 | | |
| PORTWHID | Port of S Whidbey GEN | 0.1094540357 | $858,332 | $858,332 | $93.95 | | |
| SCH206BOND | School 206 BOND | 0.3161759235 | $858,332 | $858,332 | $271.38 | | |
| SCH206MO | School 206 Enrichment | 0.4547169547 | $858,332 | $858,332 | $390.30 | | |
| ST | State School | 1.3035497053 | $858,332 | $858,332 | $1,118.88 | | |
| ST2 | State School Part 2 | 0.8169543533 | $858,332 | $858,332 | $701.22 | | |
| SWHIDPRBD | P & R S Whidbey BOND | 0.0152817568 | $858,332 | $858,332 | $13.12 | | |
| SWHIDPRBD2 | P & R S Whidbey BOND2 | 0.0138911264 | $858,332 | $858,332 | $11.92 | | |
| SWHIDPRMT | P & R S Whidbey GEN | 0.2053334452 | $858,332 | $858,332 | $176.24 | | |
| | Total Tax Rate: | 6.6934522006 | | | | | |
| | | | | Taxes w/Current Exemptions: | $5,745.21 | | |
| | | | | Taxes w/o Exemptions: | $5,745.21 | | |
Improvement / Building
| Improvement #1: | RESIDENTIAL | State Code: | Y | 3718.6 sqft | Value: | $498,332 |
| Bathrooms: | 3 | Bedrooms: | 2 | | Ceiling: | DRYWALL PAINTED | Cooling: | HEAT PUMP/CONV/V | | Exterior Wall/Cover: | VINYL | Floor Covering: | CERAMIC TILE/CPT 40-60 | | Floor Structure: | WOOD W/SUBFLOOR | Foundation: | CONCRETE | | Interior Finish: | DRYWALL PAINT | Plumbing Fixture Cnt: | 11 | | Roof Slope: | 12" IN 12" | Roof Structure/Cover: | CJ ALUMINIUM HEAVY |
|
| | Type | Description | Class CD | Sub Class CD | Year Built | Area |
| | BAS | BASE/MAIN FLOOR | 4 | 0 | 1990 | 1537.3 |
| | BIG | BUILT IN GARAGE | 4 | 0 | 1990 | 784.9 |
| | UPH | HALF STORY | 4 | 0 | 1990 | 644.0 |
| | BAW | BALCONY WOOD RAIL | 4 | 0 | 1990 | 40.0 |
| | BAW | BALCONY WOOD RAIL | 4 | 0 | 1990 | 40.0 |
| | DWN | DOWNSTAIRS LIVING AREA | 4 | 0 | 1990 | 1537.3 |
| | UTY | STORAGE/UTILITY | 4 | 0 | 1990 | 18.0 |
| | OWP | OPEN WOOD PORCH W/STEPS | 4 | 0 | 1990 | 727.7 |
| | OWR | OPEN WOOD PORCH W/STEPS/ROOF | 4 | 0 | 1990 | 1039.7 |
| | OP4 | OPEN PORCH W/CEILING-ROOF | 4 | 0 | 1990 | 247.2 |
Sketch
| No sketches available for this property. |
Property Image
Land
| 1 | 18 | AC (02.01-03.00) | 3.0000 | 130680.00 | 125.00 | 0.00 | 1.00 | $360,000 | $0 |
Roll Value History
| 2026 | N/A | N/A | N/A | N/A | N/A |
| 2025 | $498,332 | $360,000 | $0 | $858,332 | $858,332 |
| 2024 | $505,744 | $340,000 | $0 | $845,744 | $845,744 |
| 2023 | $513,151 | $330,000 | $0 | $843,151 | $843,151 |
| 2022 | $471,345 | $280,000 | $0 | $751,345 | $751,345 |
| 2021 | $415,717 | $260,000 | $0 | $675,717 | $675,717 |
| 2020 | $412,577 | $220,000 | $0 | $632,577 | $632,577 |
| 2019 | $348,912 | $230,000 | $0 | $578,912 | $578,912 |
| 2018 | $350,025 | $230,000 | $0 | $580,025 | $580,025 |
| 2017 | $327,008 | $151,217 | $0 | $478,225 | $478,225 |
| 2016 | $331,122 | $151,217 | $0 | $482,339 | $482,339 |
| 2015 | $335,238 | $151,217 | $0 | $486,455 | $486,455 |
| 2014 | $344,775 | $151,217 | $0 | $495,992 | $495,992 |
| 2013 | $348,942 | $151,217 | $0 | $500,159 | $500,159 |
| 2012 | $353,110 | $151,217 | $0 | $504,327 | $504,327 |
| 2011 | $357,276 | $151,217 | $0 | $508,493 | $508,493 |
| 2010 | $370,895 | $151,217 | $0 | $522,112 | $522,112 |
| 2009 | $386,650 | $181,460 | $0 | $568,110 | $568,110 |
| 2008 | $348,745 | $181,460 | $0 | $530,205 | $530,205 |
| 2007 | $353,330 | $181,460 | $0 | $534,790 | $534,790 |
Deed and Sales History
| 1 | 12/22/2004 | WD | Warranty Deed | FARRENS, FREIDA S | FARRENS, MICHAEL J | | | $420,000.00 | 45994 | 4121734 |
| 2 | 04/01/2004 | WD | Warranty Deed | FARRENS, JOHN H | FARRENS, FREIDA S | | | $0.00 | 41782 | 4099152 |
| 3 | 10/01/1995 | QCD | Quit Claim Deed | FARRENS, JOHN H | FARRENS, JOHN H | | | $0.00 | 53683 | 95016909 |
| 4 | 01/01/1900 | OTHER | Other - Misc. Documents | Unknown | FARRENS, JOHN H | | | $0.00 | 0 | 0 |
Payout Agreement
| No payout information available.. |