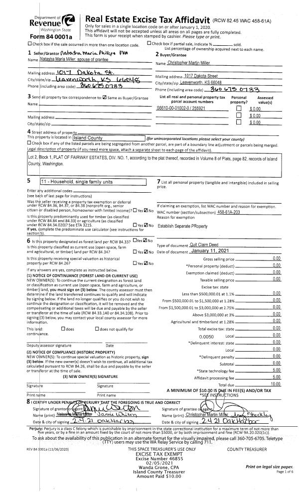
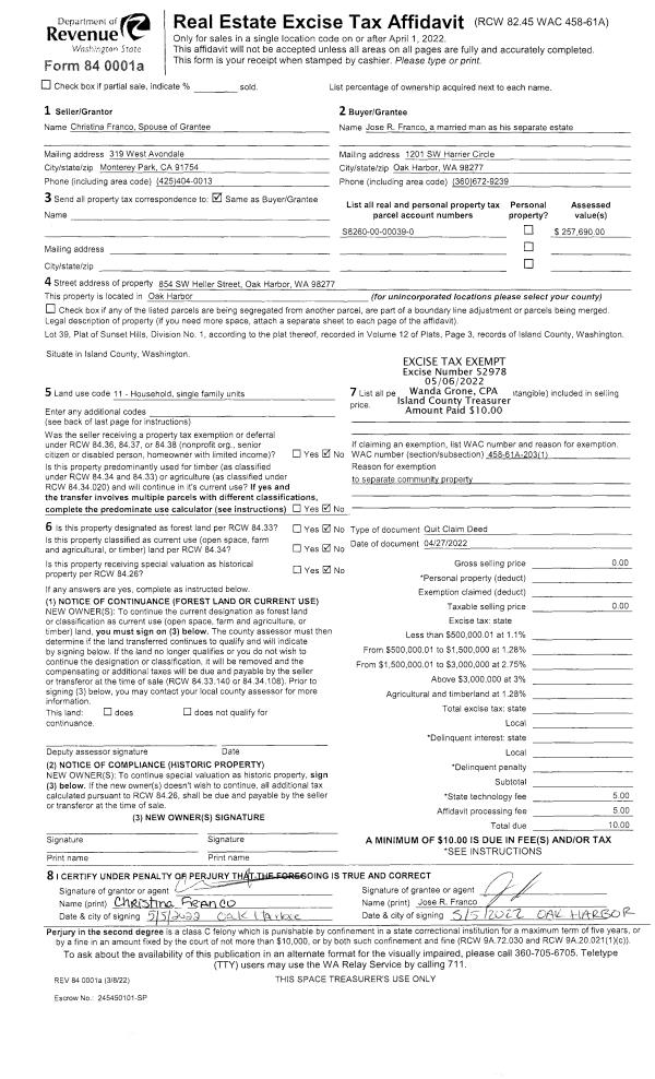
Property
Account |
| Property ID: | 120185 | Abbreviated Legal Description: | 128 - S/2 S/2 N/2 SE NE EX CO RDS |
| Geographic ID: | R32814-352-4860 | Agent Code: | |
| Type: | Real | | |
| Tax Area: | 712 - APPRAISER-S Whid Schl Dist, outside Langley, improved, greater than 1 acre | Land Use Code | 11 |
| Open Space: | N | DFL | N |
| Historic Property: | N | Remodel Property: | N |
| Multi-Family Redevelopment: | N | | |
| Township: | 28 | Section: | 14 |
| Range: | R3 |
Location |
| Address: | 8145 POSSESSION RIDGE LN CLINTON, WA 98236 | Mapsco: | |
| Neighborhood: | Cycle 4 | Map ID: | 711 |
| Neighborhood CD: | 4 |
Owner |
| Name: | DALE-MOORE, ROGER A | Owner ID: | 302788 |
| Mailing Address: | ALISON L DALE-MOORE 8145 POSSESSION RIDGE LN CLINTON, WA 98236 | % Ownership: | 100.0000000000% |
| | | Exemptions: | |
Taxes and Assessment Details
Values
| (+) Improvement Homesite Value: | + | $0 | |
| (+) Improvement Non-Homesite Value: | + | $219,426 | |
| (+) Land Homesite Value: | + | $0 | |
| (+) Land Non-Homesite Value: | + | $390,000 | |
| (+) Curr Use (HS): | + | $0 | $0 |
| (+) Curr Use (NHS): | + | $0 | $0 |
| | | -------------------------- | |
| (=) Market Value: | = | $609,426 | |
| (–) Productivity Loss: | – | $0 | |
| | | -------------------------- | |
| (=) Subtotal: | = | $609,426 | |
| (+) Senior Appraised Value: | + | $0 | |
| (+) Non-Senior Appraised Value: | + | $609,426 | |
| | | -------------------------- | |
| (=) Total Appraised Value: | = | $609,426 | |
| (–) Senior Exemption Loss: | – | $0 | |
| (–) Exemption Loss: | – | $0 | |
| | | -------------------------- | |
| (=) Taxable Value: | = | $609,426 | |
Taxing Jurisdiction
| Owner: | DALE-MOORE, ROGER A | | |
| % Ownership: | 100.0000000000% | | |
| Total Value: | $609,426 | | |
| Tax Area: | 712 - APPRAISER-S Whid Schl Dist, outside Langley, improved, greater than 1 acre |
| CF | Conservation Futures | 0.0316035091 | $609,426 | $609,426 | $19.26 | | |
| FIRE3 | Fire & Rescue Dist #3 S Whidbey GEN | 1.2004855531 | $609,426 | $609,426 | $731.61 | | |
| HOBOND | Hospital BOND | 0.1910887512 | $609,426 | $609,426 | $116.45 | | |
| HOGEN | Hospital GEN | 0.3902502903 | $609,426 | $609,426 | $237.83 | | |
| CE | County Current Expense | 0.3708482477 | $609,426 | $609,426 | $226.00 | | |
| CR | County Roads | 0.4584763726 | $609,426 | $609,426 | $279.41 | | |
| ISLANDEMS | Hospital GEN (EMS) | 0.5000000000 | $609,426 | $609,426 | $304.71 | | |
| LIB | Library Sno-Isle GEN | 0.3153421757 | $609,426 | $609,426 | $192.18 | | |
| PORTWHID | Port of S Whidbey GEN | 0.1094540357 | $609,426 | $609,426 | $66.70 | | |
| SCH206BOND | School 206 BOND | 0.3161759235 | $609,426 | $609,426 | $192.69 | | |
| SCH206MO | School 206 Enrichment | 0.4547169547 | $609,426 | $609,426 | $277.12 | | |
| ST | State School | 1.3035497053 | $609,426 | $609,426 | $794.42 | | |
| ST2 | State School Part 2 | 0.8169543533 | $609,426 | $609,426 | $497.87 | | |
| SWHIDPRBD | P & R S Whidbey BOND | 0.0152817568 | $609,426 | $609,426 | $9.31 | | |
| SWHIDPRBD2 | P & R S Whidbey BOND2 | 0.0138911264 | $609,426 | $609,426 | $8.47 | | |
| SWHIDPRMT | P & R S Whidbey GEN | 0.2053334452 | $609,426 | $609,426 | $125.14 | | |
| | Total Tax Rate: | 6.6934522006 | | | | | |
| | | | | Taxes w/Current Exemptions: | $4,079.17 | | |
| | | | | Taxes w/o Exemptions: | $4,079.17 | | |
Improvement / Building
| Improvement #1: | RESIDENTIAL | State Code: | Y | 944.0 sqft | Value: | $219,426 |
| Bathrooms: | 1 | Bedrooms: | 2 | | Ceiling: | BEAM PAINTED | Exterior Wall/Cover: | PLY/HARDBOARD T-111 | | Floor Covering: | CERAMIC TILE/CPT 40-60 | Floor Structure: | WOOD W/SUBFLOOR | | Foundation: | CONCRETE | Heating: | WALL HEAT ELECTRIC | | Interior Finish: | DRYWALL PAINT | Plumbing Fixture Cnt: | 6 | | Roof Slope: | 8" IN 12" | Roof Structure/Cover: | BEAM ALUMINUM HEAVY |
|
| | Type | Description | Class CD | Sub Class CD | Year Built | Area |
| | BAS | BASE/MAIN FLOOR | 3 | 0 | 1985 | 792.0 |
| | AGR | ATTACHED GARAGE | 3 | 0 | 1985 | 792.0 |
| | BIG | BUILT IN GARAGE | 3 | 0 | 1985 | 792.0 |
| | UTY | STORAGE/UTILITY | 3 | 0 | 1985 | 192.0 |
| | OWP | OPEN WOOD PORCH W/STEPS | 3 | 0 | 1985 | 120.0 |
| | LOF | LOFT | 3 | 0 | 1985 | 152.0 |
Sketch
| No sketches available for this property. |
Property Image
Land
| 1 | 32 | AC (03.01-09.99) | 4.1500 | 180774.00 | 165.00 | 0.00 | 1.00 | $390,000 | $0 |
Roll Value History
| 2026 | N/A | N/A | N/A | N/A | N/A |
| 2025 | $219,426 | $390,000 | $0 | $609,426 | $609,426 |
| 2024 | $221,229 | $360,000 | $0 | $581,229 | $581,229 |
| 2023 | $224,207 | $350,000 | $0 | $574,207 | $574,207 |
| 2022 | $205,723 | $350,000 | $0 | $555,723 | $555,723 |
| 2021 | $160,373 | $260,000 | $0 | $420,373 | $420,373 |
| 2020 | $141,511 | $230,000 | $0 | $371,511 | $371,511 |
| 2019 | $100,111 | $270,000 | $0 | $370,111 | $370,111 |
| 2018 | $100,449 | $270,000 | $0 | $370,449 | $370,449 |
| 2017 | $101,126 | $250,000 | $0 | $351,126 | $351,126 |
| 2016 | $102,479 | $250,000 | $0 | $352,479 | $352,479 |
| 2015 | $103,833 | $250,000 | $0 | $353,833 | $353,833 |
| 2014 | $104,103 | $250,000 | $0 | $354,103 | $354,103 |
| 2013 | $105,537 | $190,735 | $0 | $296,272 | $296,272 |
| 2012 | $106,971 | $190,735 | $0 | $297,706 | $297,706 |
| 2011 | $108,405 | $190,735 | $0 | $299,140 | $299,140 |
| 2010 | $113,797 | $190,735 | $0 | $304,532 | $304,532 |
| 2009 | $117,296 | $226,220 | $0 | $343,516 | $343,516 |
| 2008 | $117,430 | $226,220 | $0 | $343,650 | $343,650 |
| 2007 | $118,934 | $226,220 | $0 | $345,154 | $345,154 |
Deed and Sales History
| 1 | 01/20/2022 | WD | Warranty Deed | LEITL, ANDREAS K | DALE-MOORE, ROGER A | | | $800,000.00 | 51727 | 4538331 |
| 2 | 01/01/1988 | QCD | Quit Claim Deed | LEITL, ANDREAS K | LEITL, ANDREAS K | | | $0.00 | 80166 | 88000809 |
| 3 | 01/01/1900 | OTHER | Other - Misc. Documents | Unknown | LEITL, ANDREAS K | | | $0.00 | 0 | 0 |
Payout Agreement
| No payout information available.. |