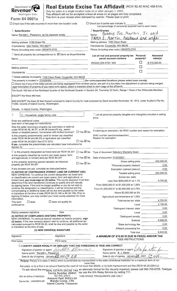
Property
Account |
| Property ID: | 120201 | Abbreviated Legal Description: | 131 - N/2 OF S/2 OF N/2 OF SENE EX RDS TGW & SUBJ TO EZ |
| Geographic ID: | R32814-368-4860 | Agent Code: | |
| Type: | Real | | |
| Tax Area: | 712 - APPRAISER-S Whid Schl Dist, outside Langley, improved, greater than 1 acre | Land Use Code | 11 |
| Open Space: | N | DFL | N |
| Historic Property: | N | Remodel Property: | N |
| Multi-Family Redevelopment: | N | | |
| Township: | 28 | Section: | 14 |
| Range: | R3 |
Location |
| Address: | 8139 POSSESSION RIDGE LN CLINTON, WA 98236 | Mapsco: | |
| Neighborhood: | Cycle 4 | Map ID: | 711 |
| Neighborhood CD: | 4 |
Owner |
| Name: | MARTIN, STEVE D | Owner ID: | 16536 |
| Mailing Address: | SHELLEY J MARTIN PO BOX 993 CLINTON, WA 98236-0993 | % Ownership: | 100.0000000000% |
| | | Exemptions: | |
Taxes and Assessment Details
Values
| (+) Improvement Homesite Value: | + | $0 | |
| (+) Improvement Non-Homesite Value: | + | $900,167 | |
| (+) Land Homesite Value: | + | $0 | |
| (+) Land Non-Homesite Value: | + | $420,000 | |
| (+) Curr Use (HS): | + | $0 | $0 |
| (+) Curr Use (NHS): | + | $0 | $0 |
| | | -------------------------- | |
| (=) Market Value: | = | $1,320,167 | |
| (–) Productivity Loss: | – | $0 | |
| | | -------------------------- | |
| (=) Subtotal: | = | $1,320,167 | |
| (+) Senior Appraised Value: | + | $0 | |
| (+) Non-Senior Appraised Value: | + | $1,320,167 | |
| | | -------------------------- | |
| (=) Total Appraised Value: | = | $1,320,167 | |
| (–) Senior Exemption Loss: | – | $0 | |
| (–) Exemption Loss: | – | $0 | |
| | | -------------------------- | |
| (=) Taxable Value: | = | $1,320,167 | |
Taxing Jurisdiction
| Owner: | MARTIN, STEVE D | | |
| % Ownership: | 100.0000000000% | | |
| Total Value: | $1,320,167 | | |
| Tax Area: | 712 - APPRAISER-S Whid Schl Dist, outside Langley, improved, greater than 1 acre |
| CF | Conservation Futures | 0.0316035091 | $1,320,167 | $1,320,167 | $41.72 | | |
| FIRE3 | Fire & Rescue Dist #3 S Whidbey GEN | 1.2004855531 | $1,320,167 | $1,320,167 | $1,584.84 | | |
| HOBOND | Hospital BOND | 0.1910887512 | $1,320,167 | $1,320,167 | $252.27 | | |
| HOGEN | Hospital GEN | 0.3902502903 | $1,320,167 | $1,320,167 | $515.20 | | |
| CE | County Current Expense | 0.3708482477 | $1,320,167 | $1,320,167 | $489.58 | | |
| CR | County Roads | 0.4584763726 | $1,320,167 | $1,320,167 | $605.27 | | |
| ISLANDEMS | Hospital GEN (EMS) | 0.5000000000 | $1,320,167 | $1,320,167 | $660.08 | | |
| LIB | Library Sno-Isle GEN | 0.3153421757 | $1,320,167 | $1,320,167 | $416.30 | | |
| PORTWHID | Port of S Whidbey GEN | 0.1094540357 | $1,320,167 | $1,320,167 | $144.50 | | |
| SCH206BOND | School 206 BOND | 0.3161759235 | $1,320,167 | $1,320,167 | $417.41 | | |
| SCH206MO | School 206 Enrichment | 0.4547169547 | $1,320,167 | $1,320,167 | $600.30 | | |
| ST | State School | 1.3035497053 | $1,320,167 | $1,320,167 | $1,720.90 | | |
| ST2 | State School Part 2 | 0.8169543533 | $1,320,167 | $1,320,167 | $1,078.52 | | |
| SWHIDPRBD | P & R S Whidbey BOND | 0.0152817568 | $1,320,167 | $1,320,167 | $20.17 | | |
| SWHIDPRBD2 | P & R S Whidbey BOND2 | 0.0138911264 | $1,320,167 | $1,320,167 | $18.34 | | |
| SWHIDPRMT | P & R S Whidbey GEN | 0.2053334452 | $1,320,167 | $1,320,167 | $271.07 | | |
| | Total Tax Rate: | 6.6934522006 | | | | | |
| | | | | Taxes w/Current Exemptions: | $8,836.47 | | |
| | | | | Taxes w/o Exemptions: | $8,836.47 | | |
Improvement / Building
| Improvement #1: | RESIDENTIAL | State Code: | Y | 3955.8 sqft | Value: | $900,167 |
| Bathrooms: | 3.5 | Bedrooms: | 2 | | Ceiling: | DRYWALL PAINTED | Exterior Wall/Cover: | SHINGLE | | Floor Covering: | HARDWOOD 100% | Floor Structure: | WOOD W/SUBFLOOR | | Foundation: | CONCRETE | Heating: | FHA GAS | | Interior Finish: | DRYWALL PAINT | Plumbing Fixture Cnt: | 11 | | Roof Slope: | 8" IN 12" | Roof Structure/Cover: | CJ ASPHALT |
|
| | Type | Description | Class CD | Sub Class CD | Year Built | Area |
| | BAS | BASE/MAIN FLOOR | 6 | 0 | 2005 | 1921.3 |
| | OP2 | OPEN PORCH W/STEPS | 6 | 0 | 2005 | 33.0 |
| | BIG | BUILT IN GARAGE | 6 | 0 | 2005 | 848.0 |
| | UTY | STORAGE/UTILITY | 6 | 0 | 2005 | 30.0 |
| | UPS | UPPER STORY | 6 | 0 | 2005 | 1362.5 |
| | UPH | HALF STORY | 6 | 0 | 2005 | 672.0 |
| | DGR | DETACHED GARAGE | 6 | 0 | 2005 | 864.0 |
| | OP4 | OPEN PORCH W/CEILING-ROOF | 6 | 0 | 2005 | 16.0 |
| | OP4 | OPEN PORCH W/CEILING-ROOF | 6 | 0 | 2005 | 38.4 |
| | OWC | OPEN WOOD PORCH W/STEPS/ROOF/C | 6 | 0 | 2005 | 45.0 |
Sketch
| No sketches available for this property. |
Property Image
Land
| 1 | 32 | AC (03.01-09.99) | 4.1800 | 182080.80 | 0.00 | 0.00 | 1.00 | $420,000 | $0 |
Roll Value History
| 2026 | N/A | N/A | N/A | N/A | N/A |
| 2025 | $900,167 | $420,000 | $0 | $1,320,167 | $1,320,167 |
| 2024 | $910,726 | $400,000 | $0 | $1,310,726 | $1,310,726 |
| 2023 | $921,284 | $390,000 | $0 | $1,311,284 | $1,311,284 |
| 2022 | $843,802 | $360,000 | $0 | $1,203,802 | $1,203,802 |
| 2021 | $742,040 | $300,000 | $0 | $1,042,040 | $1,042,040 |
| 2020 | $676,578 | $270,000 | $0 | $946,578 | $946,578 |
| 2019 | $632,789 | $300,000 | $0 | $932,789 | $932,789 |
| 2018 | $634,564 | $300,000 | $0 | $934,564 | $934,564 |
| 2017 | $638,109 | $250,000 | $0 | $888,109 | $888,109 |
| 2016 | $645,206 | $250,000 | $0 | $895,206 | $895,206 |
| 2015 | $652,302 | $250,000 | $0 | $902,302 | $902,302 |
| 2014 | $628,512 | $250,000 | $0 | $878,512 | $878,512 |
| 2013 | $635,123 | $190,735 | $0 | $825,858 | $825,858 |
| 2012 | $641,734 | $190,735 | $0 | $832,469 | $832,469 |
| 2011 | $648,346 | $190,735 | $0 | $839,081 | $839,081 |
| 2010 | $680,928 | $190,735 | $0 | $871,663 | $871,663 |
| 2009 | $702,107 | $228,881 | $0 | $930,988 | $930,988 |
| 2008 | $487,749 | $228,881 | $0 | $716,630 | $716,630 |
| 2007 | $495,581 | $228,881 | $0 | $724,462 | $724,462 |
Deed and Sales History
| 1 | 04/26/2002 | WD | Warranty Deed | CELIGOY, MAXINE I | MARTIN, STEVE D | | | $300,000.00 | 21567 | 4018250 |
| 2 | 05/01/1986 | DECREE | Divorce Decree/Legal Separation | CELIGOY, JOHN | CELIGOY, MAXINE I | | | $0.00 | 61401 | 86006536 |
| 3 | 01/01/1900 | OTHER | Other - Misc. Documents | Unknown | CELIGOY, JOHN | | | $0.00 | 0 | 0 |
Payout Agreement
| No payout information available.. |