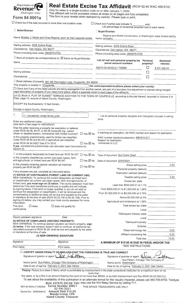
Property
Account |
| Property ID: | 120504 | Abbreviated Legal Description: | 11 - IN GL 1 BG NE CR GL1 & ML S18*W288'TPB W310'N68' W130'N99'7 |
| Geographic ID: | R32815-280-2770 | Agent Code: | |
| Type: | Real | | |
| Tax Area: | 712 - APPRAISER-S Whid Schl Dist, outside Langley, improved, greater than 1 acre | Land Use Code | 11 |
| Open Space: | N | DFL | N |
| Historic Property: | N | Remodel Property: | N |
| Multi-Family Redevelopment: | N | | |
| Township: | 28 | Section: | 15 |
| Range: | R3 |
Location |
| Address: | | Mapsco: | |
| Neighborhood: | Cycle 4 | Map ID: | 713 |
| Neighborhood CD: | 4 |
Owner |
| Name: | KOSZAREK, THOMAS | Owner ID: | 252590 |
| Mailing Address: | 8023 SCATCHET HEAD RD CLINTON, WA 98236 | % Ownership: | 100.0000000000% |
| | | Exemptions: | |
Taxes and Assessment Details
Values
| (+) Improvement Homesite Value: | + | $0 | |
| (+) Improvement Non-Homesite Value: | + | $97,795 | |
| (+) Land Homesite Value: | + | $0 | |
| (+) Land Non-Homesite Value: | + | $330,000 | |
| (+) Curr Use (HS): | + | $0 | $0 |
| (+) Curr Use (NHS): | + | $0 | $0 |
| | | -------------------------- | |
| (=) Market Value: | = | $427,795 | |
| (–) Productivity Loss: | – | $0 | |
| | | -------------------------- | |
| (=) Subtotal: | = | $427,795 | |
| (+) Senior Appraised Value: | + | $0 | |
| (+) Non-Senior Appraised Value: | + | $427,795 | |
| | | -------------------------- | |
| (=) Total Appraised Value: | = | $427,795 | |
| (–) Senior Exemption Loss: | – | $0 | |
| (–) Exemption Loss: | – | $0 | |
| | | -------------------------- | |
| (=) Taxable Value: | = | $427,795 | |
Taxing Jurisdiction
| Owner: | KOSZAREK, THOMAS | | |
| % Ownership: | 100.0000000000% | | |
| Total Value: | $427,795 | | |
| Tax Area: | 712 - APPRAISER-S Whid Schl Dist, outside Langley, improved, greater than 1 acre |
| CF | Conservation Futures | 0.0316035091 | $427,795 | $427,795 | $13.52 | | |
| FIRE3 | Fire & Rescue Dist #3 S Whidbey GEN | 1.2004855531 | $427,795 | $427,795 | $513.56 | | |
| HOBOND | Hospital BOND | 0.1910887512 | $427,795 | $427,795 | $81.75 | | |
| HOGEN | Hospital GEN | 0.3902502903 | $427,795 | $427,795 | $166.95 | | |
| CE | County Current Expense | 0.3708482477 | $427,795 | $427,795 | $158.65 | | |
| CR | County Roads | 0.4584763726 | $427,795 | $427,795 | $196.13 | | |
| ISLANDEMS | Hospital GEN (EMS) | 0.5000000000 | $427,795 | $427,795 | $213.90 | | |
| LIB | Library Sno-Isle GEN | 0.3153421757 | $427,795 | $427,795 | $134.90 | | |
| PORTWHID | Port of S Whidbey GEN | 0.1094540357 | $427,795 | $427,795 | $46.82 | | |
| SCH206BOND | School 206 BOND | 0.3161759235 | $427,795 | $427,795 | $135.26 | | |
| SCH206MO | School 206 Enrichment | 0.4547169547 | $427,795 | $427,795 | $194.53 | | |
| ST | State School | 1.3035497053 | $427,795 | $427,795 | $557.65 | | |
| ST2 | State School Part 2 | 0.8169543533 | $427,795 | $427,795 | $349.49 | | |
| SWHIDPRBD | P & R S Whidbey BOND | 0.0152817568 | $427,795 | $427,795 | $6.54 | | |
| SWHIDPRBD2 | P & R S Whidbey BOND2 | 0.0138911264 | $427,795 | $427,795 | $5.94 | | |
| SWHIDPRMT | P & R S Whidbey GEN | 0.2053334452 | $427,795 | $427,795 | $87.84 | | |
| | Total Tax Rate: | 6.6934522006 | | | | | |
| | | | | Taxes w/Current Exemptions: | $2,863.43 | | |
| | | | | Taxes w/o Exemptions: | $2,863.43 | | |
Improvement / Building
| Improvement #1: | RESIDENTIAL | State Code: | Y | 1472.0 sqft | Value: | $97,795 |
| Bathrooms: | 1 | Bedrooms: | 2 | | Ceiling: | PLYWOOD PAINTED | Exterior Wall/Cover: | WOOD SIDING | | Floor Covering: | CARPET/VINYL 60-40 | Floor Structure: | WOOD W/SUBFLOOR | | Foundation: | CONCRETE BLOCKS | Heating: | BASEBOARD ELECTRIC | | Interior Finish: | DRYWALL PAINT | Plumbing Fixture Cnt: | 6 | | Roof Slope: | 5" IN 12" | Roof Structure/Cover: | CJ ASPHALT |
|
| | Type | Description | Class CD | Sub Class CD | Year Built | Area |
| | BAS | BASE/MAIN FLOOR | 3 | 0 | 1917 | 1056.0 |
| | UPS | UPPER STORY | 3 | 0 | 1917 | 416.0 |
| | BAW | BALCONY WOOD RAIL | 3 | 0 | 1917 | 108.0 |
| | OWR | OPEN WOOD PORCH W/STEPS/ROOF | 3 | 0 | 1917 | 48.0 |
| | OWC | OPEN WOOD PORCH W/STEPS/ROOF/C | 3 | 0 | 1917 | 72.0 |
Sketch
Property Image
Land
| 1 | HB | HIGH BLUFF | 10.8000 | 470448.00 | 350.00 | 0.00 | 1.00 | $330,000 | $0 |
Roll Value History
| 2026 | N/A | N/A | N/A | N/A | N/A |
| 2025 | $97,795 | $330,000 | $0 | $427,795 | $427,795 |
| 2024 | $102,627 | $330,000 | $0 | $432,627 | $432,627 |
| 2023 | $105,311 | $300,000 | $0 | $405,311 | $405,311 |
| 2022 | $99,302 | $1,100,000 | $0 | $1,199,302 | $1,199,302 |
| 2021 | $88,494 | $310,000 | $0 | $398,494 | $398,494 |
| 2020 | $73,479 | $260,000 | $0 | $333,479 | $333,479 |
| 2019 | $54,295 | $150,000 | $0 | $204,295 | $204,295 |
| 2018 | $54,609 | $150,000 | $0 | $204,609 | $204,609 |
| 2017 | $55,237 | $150,000 | $0 | $205,237 | $205,237 |
| 2016 | $56,492 | $150,000 | $0 | $206,492 | $206,492 |
| 2015 | $57,746 | $150,000 | $0 | $207,746 | $207,746 |
| 2014 | $69,266 | $150,000 | $0 | $219,266 | $219,266 |
| 2013 | $70,644 | $129,018 | $0 | $199,662 | $199,662 |
| 2012 | $72,019 | $129,018 | $0 | $201,037 | $201,037 |
| 2011 | $73,260 | $129,018 | $0 | $202,278 | $202,278 |
| 2010 | $75,526 | $129,018 | $0 | $204,544 | $204,544 |
| 2009 | $77,782 | $130,541 | $0 | $208,323 | $208,323 |
| 2008 | $79,561 | $121,471 | $0 | $201,032 | $201,032 |
| 2007 | $81,341 | $77,652 | $0 | $158,993 | $158,993 |
Deed and Sales History
| 1 | 10/28/2010 | ESTSEPPROP | Establish Separate Property | KOSZAREK, THOMAS | KOSZAREK, THOMAS | | | $0.00 | 2749 | 4283955 |
| 2 | 05/07/2001 | WD | Warranty Deed | CARR, FMLY I | KOSZAREK, THOMAS | | | $100,000.00 | 11596 | 20031660 |
| 3 | 12/01/1997 | QCD | Quit Claim Deed | CARR, JOHN E | CARR, FMLY I | | | $1,111.00 | 74520 | 97021570 |
| 4 | 08/01/1976 | CD | DNU - Correction Deed | CARR, JOHN E | CARR, JOHN E | | | $1.00 | 62632 | 0 |
| 5 | 07/01/1976 | TRUSTEED | Trustee's Deed | ELLWANGER, IVAN R | CARR, JOHN E | | | $80,000.00 | 62571 | 0 |
| 6 | 01/01/1900 | OTHER | Other - Misc. Documents | Unknown | ELLWANGER, IVAN R | | | $0.00 | 0 | 0 |
Payout Agreement
| No payout information available.. |