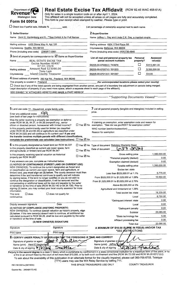
Property
Account |
| Property ID: | 12060 | Abbreviated Legal Description: | 132 SUM DC - W75' OF E80'OF BG PT 3853.4'S OF NW CR TAFT DC W TO ELN CO RD TPB N ALG RD 135' E322' S135' W322' TPB EX S30' FOR ST |
| Geographic ID: | R13202-413-1810 | Agent Code: | |
| Type: | Real | | |
| Tax Area: | 100 - APPRAISER-OH Schl Dist, in OH | Land Use Code | 11 |
| Open Space: | N | DFL | N |
| Historic Property: | N | Remodel Property: | N |
| Multi-Family Redevelopment: | N | | |
| Township: | 32 | Section: | 02 |
| Range: | R1 |
Location |
| Address: | 574 SE 6TH AVE OAK HARBOR, WA 98277 | Mapsco: | |
| Neighborhood: | Cycle 1 | Map ID: | 88 |
| Neighborhood CD: | 1 |
Owner |
| Name: | HAMDEN, NICHOLAS | Owner ID: | 305063 |
| Mailing Address: | SHELBY HAMDEN 574 SE 6TH AVE OAK HARBOR, WA 98277 | % Ownership: | 100.0000000000% |
| | | Exemptions: | |
Taxes and Assessment Details
Values
| (+) Improvement Homesite Value: | + | $0 | |
| (+) Improvement Non-Homesite Value: | + | $242,801 | |
| (+) Land Homesite Value: | + | $0 | |
| (+) Land Non-Homesite Value: | + | $180,000 | |
| (+) Curr Use (HS): | + | $0 | $0 |
| (+) Curr Use (NHS): | + | $0 | $0 |
| | | -------------------------- | |
| (=) Market Value: | = | $422,801 | |
| (–) Productivity Loss: | – | $0 | |
| | | -------------------------- | |
| (=) Subtotal: | = | $422,801 | |
| (+) Senior Appraised Value: | + | $0 | |
| (+) Non-Senior Appraised Value: | + | $422,801 | |
| | | -------------------------- | |
| (=) Total Appraised Value: | = | $422,801 | |
| (–) Senior Exemption Loss: | – | $0 | |
| (–) Exemption Loss: | – | $0 | |
| | | -------------------------- | |
| (=) Taxable Value: | = | $422,801 | |
Taxing Jurisdiction
| Owner: | HAMDEN, NICHOLAS | | |
| % Ownership: | 100.0000000000% | | |
| Total Value: | $422,801 | | |
| Tax Area: | 100 - APPRAISER-OH Schl Dist, in OH |
| CF | Conservation Futures | 0.0316035091 | $422,801 | $422,801 | $13.36 | | |
| CEM1 | Cemetery #1 | 0.0040320932 | $422,801 | $422,801 | $1.70 | | |
| COH | City of Oak Harbor | 2.3001546061 | $422,801 | $422,801 | $972.51 | | |
| OAKBOND | City of Oak Harbor BOND | 0.1926904192 | $422,801 | $422,801 | $81.47 | | |
| HOBOND | Hospital BOND | 0.1910887512 | $422,801 | $422,801 | $80.79 | | |
| HOGEN | Hospital GEN | 0.3902502903 | $422,801 | $422,801 | $165.00 | | |
| CE | County Current Expense | 0.3708482477 | $422,801 | $422,801 | $156.80 | | |
| ISLANDEMS | Hospital GEN (EMS) | 0.5000000000 | $422,801 | $422,801 | $211.40 | | |
| LIB | Library Sno-Isle GEN | 0.3153421757 | $422,801 | $422,801 | $133.33 | | |
| NWHIDPRMT | P & R N Whidbey GEN | 0.2004466701 | $422,801 | $422,801 | $84.75 | | |
| SCH201MO | School 201 Enrichment | 1.8559231640 | $422,801 | $422,801 | $784.69 | | |
| ST | State School | 1.3035497053 | $422,801 | $422,801 | $551.14 | | |
| ST2 | State School Part 2 | 0.8169543533 | $422,801 | $422,801 | $345.41 | | |
| | Total Tax Rate: | 8.4728839852 | | | | | |
| | | | | Taxes w/Current Exemptions: | $3,582.35 | | |
| | | | | Taxes w/o Exemptions: | $3,582.35 | | |
Improvement / Building
| Improvement #1: | RESIDENTIAL | State Code: | Y | 1411.0 sqft | Value: | $242,801 |
| Bathrooms: | 1 | Bedrooms: | 3 | | Ceiling: | DRYWALL PAINTED | Exterior Wall/Cover: | CEMENT FIBER | | Floor Covering: | VINYL/HARDWOOD 20-80 | Floor Structure: | WOOD W/SUBFLOOR | | Foundation: | CONCRETE | Heating: | FHA GAS | | Interior Finish: | DRYWALL PAINT | Plumbing Fixture Cnt: | 9 | | Roof Slope: | 4" IN 12" | Roof Structure/Cover: | CJ ASPHALT |
|
| | Type | Description | Class CD | Sub Class CD | Year Built | Area |
| | BAS | BASE/MAIN FLOOR | 3 | 0 | 1954 | 1411.0 |
| | OP3 | OPEN PORCH W/ROOF | 3 | 0 | 1954 | 200.0 |
| | AGR | ATTACHED GARAGE | 3 | 0 | 1954 | 308.0 |
| | OP4 | OPEN PORCH W/CEILING-ROOF | 3 | 0 | 1954 | 21.0 |
Sketch
Property Image
Land
| 1 | 13 | SQ (06001-08000) | 0.1800 | 7840.80 | 0.00 | 0.00 | 1.00 | $180,000 | $0 |
Roll Value History
| 2026 | N/A | N/A | N/A | N/A | N/A |
| 2025 | $242,801 | $180,000 | $0 | $422,801 | $422,801 |
| 2024 | $246,028 | $170,000 | $0 | $416,028 | $416,028 |
| 2023 | $242,038 | $170,000 | $0 | $412,038 | $412,038 |
| 2022 | $222,089 | $160,000 | $0 | $382,089 | $382,089 |
| 2021 | $195,648 | $120,000 | $0 | $315,648 | $315,648 |
| 2020 | $190,797 | $100,000 | $0 | $290,797 | $290,797 |
| 2019 | $138,364 | $160,000 | $0 | $298,364 | $298,364 |
| 2018 | $138,798 | $125,000 | $0 | $263,798 | $263,798 |
| 2017 | $123,216 | $110,000 | $0 | $233,216 | $233,216 |
| 2016 | $124,975 | $90,000 | $0 | $214,975 | $214,975 |
| 2015 | $126,735 | $70,000 | $0 | $196,735 | $196,735 |
| 2014 | $128,496 | $55,000 | $0 | $183,496 | $183,496 |
| 2013 | $130,256 | $55,000 | $0 | $185,256 | $185,256 |
| 2012 | $132,019 | $60,000 | $0 | $192,019 | $192,019 |
| 2011 | $142,453 | $50,000 | $0 | $192,453 | $192,453 |
| 2010 | $152,184 | $50,000 | $0 | $202,184 | $202,184 |
| 2009 | $158,801 | $60,000 | $0 | $218,801 | $218,801 |
| 2008 | $160,848 | $72,000 | $0 | $232,848 | $232,848 |
| 2007 | $162,894 | $72,000 | $0 | $234,894 | $234,894 |
Deed and Sales History
| 1 | 07/14/2022 | WD | Warranty Deed | STANCHFIELD, DALE W | HAMDEN, NICHOLAS | | | $384,000.00 | 53825 | 4548382 |
| 2 | 07/22/1998 | WD | Warranty Deed | FRENCH, DONNA R | STANCHFIELD, DALE W | | | $118,000.00 | 83027 | 98015776 |
| 3 | 11/01/1974 | CD | DNU - Correction Deed | FRENCH, JACK J | FRENCH, DONNA R | | | $0.00 | 54093 | 0 |
| 4 | 01/01/1900 | OTHER | Other - Misc. Documents | Unknown | STANCHFIELD, DALE W | | | $0.00 | 83027 | 98015776 |
| 5 | 01/01/1900 | OTHER | Other - Misc. Documents | STANCHFIELD, DALE W | FRENCH, JACK J | | | $0.00 | 0 | 0 |
Payout Agreement
| No payout information available.. |