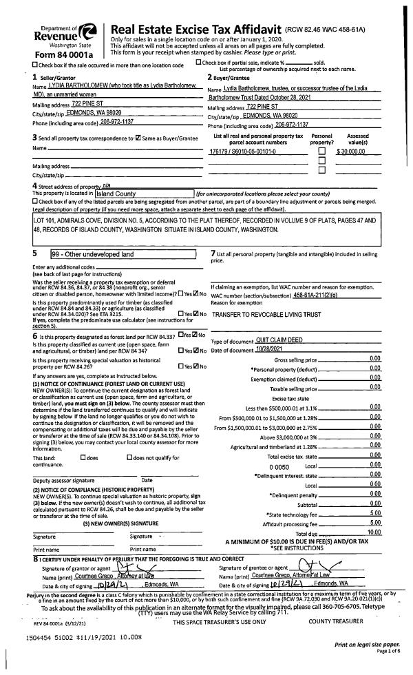
Property
Account |
| Property ID: | 120684 | Abbreviated Legal Description: | 22 - IN GL3:BG SW CR GL3 E375' N178.1' TPB N62.5' E TO ML S2*W ALG ML 62.5' W TPB TGW EZ |
| Geographic ID: | R32901-021-0540 | Agent Code: | |
| Type: | Real | | |
| Tax Area: | 710 - APPRAISER-S Whid Schl Dist, outside Langley, improved & 1 acre or less | Land Use Code | 11 |
| Open Space: | N | DFL | N |
| Historic Property: | N | Remodel Property: | N |
| Multi-Family Redevelopment: | N | | |
| Township: | 29 | Section: | 01 |
| Range: | R3 |
Location |
| Address: | 5169 WITTER BEACH PLACE LANGLEY, WA 98260 | Mapsco: | |
| Neighborhood: | Cycle 4 | Map ID: | 717 |
| Neighborhood CD: | 4 |
Owner |
| Name: | O'DONNELL TTEE, HARRY J | Owner ID: | 16597 |
| Mailing Address: | MARIETTE E O'DONNELL TTEE 1618 36TH AVE SEATTLE, WA 98122 | % Ownership: | 100.0000000000% |
| | | Exemptions: | |
Taxes and Assessment Details
Values
| (+) Improvement Homesite Value: | + | $0 | |
| (+) Improvement Non-Homesite Value: | + | $470,474 | |
| (+) Land Homesite Value: | + | $0 | |
| (+) Land Non-Homesite Value: | + | $750,000 | |
| (+) Curr Use (HS): | + | $0 | $0 |
| (+) Curr Use (NHS): | + | $0 | $0 |
| | | -------------------------- | |
| (=) Market Value: | = | $1,220,474 | |
| (–) Productivity Loss: | – | $0 | |
| | | -------------------------- | |
| (=) Subtotal: | = | $1,220,474 | |
| (+) Senior Appraised Value: | + | $0 | |
| (+) Non-Senior Appraised Value: | + | $1,220,474 | |
| | | -------------------------- | |
| (=) Total Appraised Value: | = | $1,220,474 | |
| (–) Senior Exemption Loss: | – | $0 | |
| (–) Exemption Loss: | – | $0 | |
| | | -------------------------- | |
| (=) Taxable Value: | = | $1,220,474 | |
Taxing Jurisdiction
| Owner: | O'DONNELL TTEE, HARRY J | | |
| % Ownership: | 100.0000000000% | | |
| Total Value: | $1,220,474 | | |
| Tax Area: | 710 - APPRAISER-S Whid Schl Dist, outside Langley, improved & 1 acre or less |
| CF | Conservation Futures | 0.0316035091 | $1,220,474 | $1,220,474 | $38.57 | | |
| FIRE3 | Fire & Rescue Dist #3 S Whidbey GEN | 1.2004855531 | $1,220,474 | $1,220,474 | $1,465.16 | | |
| HOBOND | Hospital BOND | 0.1910887512 | $1,220,474 | $1,220,474 | $233.22 | | |
| HOGEN | Hospital GEN | 0.3902502903 | $1,220,474 | $1,220,474 | $476.29 | | |
| CE | County Current Expense | 0.3708482477 | $1,220,474 | $1,220,474 | $452.61 | | |
| CR | County Roads | 0.4584763726 | $1,220,474 | $1,220,474 | $559.56 | | |
| ISLANDEMS | Hospital GEN (EMS) | 0.5000000000 | $1,220,474 | $1,220,474 | $610.24 | | |
| LIB | Library Sno-Isle GEN | 0.3153421757 | $1,220,474 | $1,220,474 | $384.87 | | |
| PORTWHID | Port of S Whidbey GEN | 0.1094540357 | $1,220,474 | $1,220,474 | $133.59 | | |
| SCH206BOND | School 206 BOND | 0.3161759235 | $1,220,474 | $1,220,474 | $385.88 | | |
| SCH206MO | School 206 Enrichment | 0.4547169547 | $1,220,474 | $1,220,474 | $554.97 | | |
| ST | State School | 1.3035497053 | $1,220,474 | $1,220,474 | $1,590.95 | | |
| ST2 | State School Part 2 | 0.8169543533 | $1,220,474 | $1,220,474 | $997.07 | | |
| SWHIDPRBD | P & R S Whidbey BOND | 0.0152817568 | $1,220,474 | $1,220,474 | $18.65 | | |
| SWHIDPRBD2 | P & R S Whidbey BOND2 | 0.0138911264 | $1,220,474 | $1,220,474 | $16.95 | | |
| SWHIDPRMT | P & R S Whidbey GEN | 0.2053334452 | $1,220,474 | $1,220,474 | $250.60 | | |
| | Total Tax Rate: | 6.6934522006 | | | | | |
| | | | | Taxes w/Current Exemptions: | $8,169.18 | | |
| | | | | Taxes w/o Exemptions: | $8,169.18 | | |
Improvement / Building
| Improvement #1: | RESIDENTIAL | State Code: | Y | 1466.0 sqft | Value: | $470,474 |
| Bathrooms: | 2 | Bedrooms: | 3 | | Ceiling: | TONGUE & GROOVE | Exterior Wall/Cover: | WOOD SIDING | | Floor Covering: | VINYL/HARDWOOD 20-80 | Floor Structure: | WOOD W/SUBFLOOR | | Foundation: | CONCRETE | Heating: | WALL HEAT ELECTRIC | | Interior Finish: | DRYWALL PAINT | Plumbing Fixture Cnt: | 12 | | Roof Slope: | 12" IN 12" | Roof Structure/Cover: | CJ ASPHALT |
|
| | Type | Description | Class CD | Sub Class CD | Year Built | Area |
| | BAS | BASE/MAIN FLOOR | 5 | 0 | 1987 | 1109.0 |
| | OP1 | OPEN PORCH SLAB | 5 | 0 | 1987 | 140.0 |
| | UPS | UPPER STORY | 5 | 0 | 1987 | 357.0 |
| | OWP | OPEN WOOD PORCH W/STEPS | 5 | 0 | 1987 | 2110.0 |
| | ENP | ENCLOSED PORCH | 5 | 0 | 1987 | 128.0 |
| | BAW | BALCONY WOOD RAIL | 5 | 0 | 1987 | 72.0 |
| | OWP | OPEN WOOD PORCH W/STEPS | 5 | 0 | 1987 | 143.0 |
Sketch
Property Image
Land
| 1 | LB | LOW BANK | 0.4500 | 19602.00 | 74.00 | 0.00 | 1.00 | $750,000 | $0 |
Roll Value History
| 2026 | N/A | N/A | N/A | N/A | N/A |
| 2025 | $470,474 | $750,000 | $0 | $1,220,474 | $1,220,474 |
| 2024 | $476,125 | $750,000 | $0 | $1,226,125 | $1,226,125 |
| 2023 | $481,775 | $750,000 | $0 | $1,231,775 | $1,231,775 |
| 2022 | $441,367 | $700,000 | $0 | $1,141,367 | $1,141,367 |
| 2021 | $388,255 | $700,000 | $0 | $1,088,255 | $1,088,255 |
| 2020 | $344,683 | $650,000 | $0 | $994,683 | $994,683 |
| 2019 | $257,487 | $600,000 | $0 | $857,487 | $857,487 |
| 2018 | $258,260 | $500,000 | $0 | $758,260 | $758,260 |
| 2017 | $259,807 | $500,000 | $0 | $759,807 | $759,807 |
| 2016 | $262,900 | $500,000 | $0 | $762,900 | $762,900 |
| 2015 | $265,993 | $500,000 | $0 | $765,993 | $765,993 |
| 2014 | $175,609 | $600,000 | $0 | $775,609 | $775,609 |
| 2013 | $178,021 | $624,241 | $0 | $802,262 | $802,262 |
| 2012 | $180,434 | $624,241 | $0 | $804,675 | $804,675 |
| 2011 | $182,847 | $624,241 | $0 | $807,088 | $807,088 |
| 2010 | $190,329 | $624,241 | $0 | $814,570 | $814,570 |
| 2009 | $198,588 | $713,420 | $0 | $912,008 | $912,008 |
| 2008 | $200,620 | $713,420 | $0 | $914,040 | $914,040 |
| 2007 | $203,163 | $598,074 | $0 | $801,237 | $801,237 |
Deed and Sales History
| 1 | 09/11/2007 | QCD | Quit Claim Deed | O'DONNELL TTEE, HARRY J | O'DONNELL TTEE, HARRY J | | | $0.00 | 73238 | 4212894 |
| 2 | 09/11/2007 | QCD | Quit Claim Deed | O'DONNELL, HARRY J | O'DONNELL TTEE, HARRY J | | | $0.00 | 73237 | 4212893 |
| 3 | 09/11/2007 | QCD | Quit Claim Deed | O'DONNELL, HARRY J | O'DONNELL, HARRY J | | | $0.00 | 73236 | 4212892 |
| 4 | 09/11/2007 | QCD | Quit Claim Deed | O'DONNELL, HARRY J | O'DONNELL, HARRY J | | | $0.00 | 73235 | 4212891 |
| 5 | 04/01/1981 | TRUSTEED | Trustee's Deed | CASEY, THOMAS P | O'DONNELL, HARRY J | | | $120,500.00 | 11153 | 381922 |
| 6 | 01/01/1900 | OTHER | Other - Misc. Documents | Unknown | CASEY, THOMAS P | | | $0.00 | 0 | 0 |
Payout Agreement
| No payout information available.. |