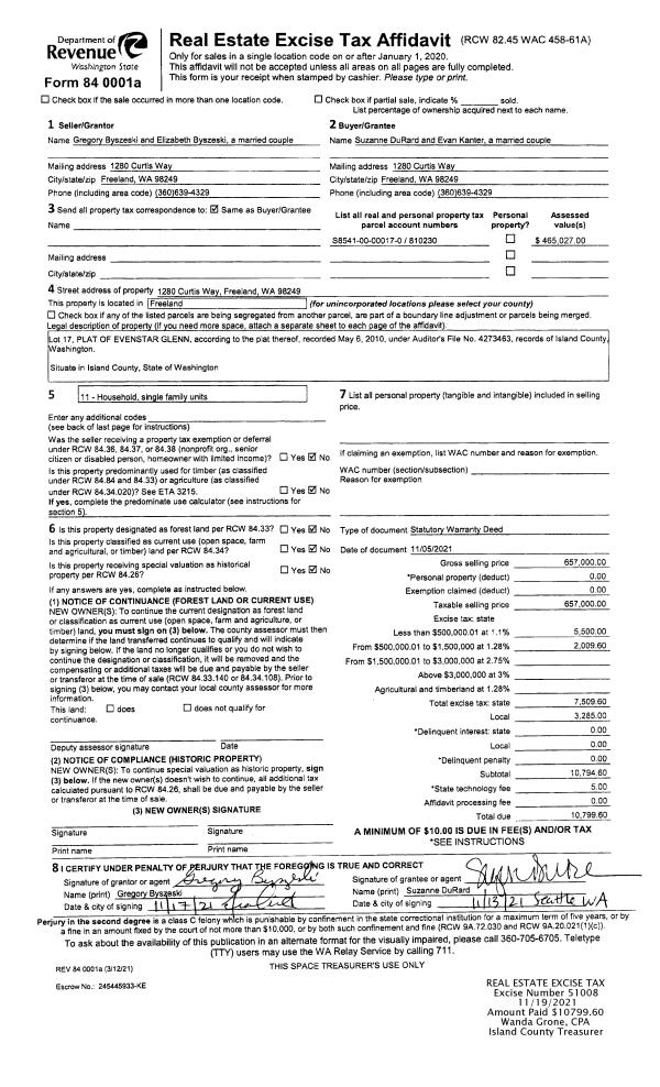
Property
Account |
| Property ID: | 120764 | Abbreviated Legal Description: | 10- N38.4'OF GL3 & S61.6'OF GL2 |
| Geographic ID: | R32901-128-0330 | Agent Code: | |
| Type: | Real | | |
| Tax Area: | 712 - APPRAISER-S Whid Schl Dist, outside Langley, improved, greater than 1 acre | Land Use Code | 11 |
| Open Space: | N | DFL | N |
| Historic Property: | N | Remodel Property: | N |
| Multi-Family Redevelopment: | N | | |
| Township: | 29 | Section: | 01 |
| Range: | R3 |
Location |
| Address: | 5099 VIEW RD LANGLEY, WA 98260 | Mapsco: | |
| Neighborhood: | Cycle 4 | Map ID: | 717 |
| Neighborhood CD: | 4 |
Owner |
| Name: | PLOWMAN, MIRI | Owner ID: | 299194 |
| Mailing Address: | GABRIEL SKODA 7001 SEAVIEW AVE NE STE 160-784 SEATTLE, WA 98117 | % Ownership: | 100.0000000000% |
| | | Exemptions: | |
Taxes and Assessment Details
Values
| (+) Improvement Homesite Value: | + | $0 | |
| (+) Improvement Non-Homesite Value: | + | $232,215 | |
| (+) Land Homesite Value: | + | $0 | |
| (+) Land Non-Homesite Value: | + | $700,000 | |
| (+) Curr Use (HS): | + | $0 | $0 |
| (+) Curr Use (NHS): | + | $0 | $0 |
| | | -------------------------- | |
| (=) Market Value: | = | $932,215 | |
| (–) Productivity Loss: | – | $0 | |
| | | -------------------------- | |
| (=) Subtotal: | = | $932,215 | |
| (+) Senior Appraised Value: | + | $0 | |
| (+) Non-Senior Appraised Value: | + | $932,215 | |
| | | -------------------------- | |
| (=) Total Appraised Value: | = | $932,215 | |
| (–) Senior Exemption Loss: | – | $0 | |
| (–) Exemption Loss: | – | $0 | |
| | | -------------------------- | |
| (=) Taxable Value: | = | $932,215 | |
Taxing Jurisdiction
| Owner: | PLOWMAN, MIRI | | |
| % Ownership: | 100.0000000000% | | |
| Total Value: | $932,215 | | |
| Tax Area: | 712 - APPRAISER-S Whid Schl Dist, outside Langley, improved, greater than 1 acre |
| CF | Conservation Futures | 0.0316035091 | $932,215 | $932,215 | $29.46 | | |
| FIRE3 | Fire & Rescue Dist #3 S Whidbey GEN | 1.2004855531 | $932,215 | $932,215 | $1,119.11 | | |
| HOBOND | Hospital BOND | 0.1910887512 | $932,215 | $932,215 | $178.14 | | |
| HOGEN | Hospital GEN | 0.3902502903 | $932,215 | $932,215 | $363.80 | | |
| CE | County Current Expense | 0.3708482477 | $932,215 | $932,215 | $345.71 | | |
| CR | County Roads | 0.4584763726 | $932,215 | $932,215 | $427.40 | | |
| ISLANDEMS | Hospital GEN (EMS) | 0.5000000000 | $932,215 | $932,215 | $466.11 | | |
| LIB | Library Sno-Isle GEN | 0.3153421757 | $932,215 | $932,215 | $293.97 | | |
| PORTWHID | Port of S Whidbey GEN | 0.1094540357 | $932,215 | $932,215 | $102.03 | | |
| SCH206BOND | School 206 BOND | 0.3161759235 | $932,215 | $932,215 | $294.74 | | |
| SCH206MO | School 206 Enrichment | 0.4547169547 | $932,215 | $932,215 | $423.89 | | |
| ST | State School | 1.3035497053 | $932,215 | $932,215 | $1,215.19 | | |
| ST2 | State School Part 2 | 0.8169543533 | $932,215 | $932,215 | $761.58 | | |
| SWHIDPRBD | P & R S Whidbey BOND | 0.0152817568 | $932,215 | $932,215 | $14.25 | | |
| SWHIDPRBD2 | P & R S Whidbey BOND2 | 0.0138911264 | $932,215 | $932,215 | $12.95 | | |
| SWHIDPRMT | P & R S Whidbey GEN | 0.2053334452 | $932,215 | $932,215 | $191.41 | | |
| | Total Tax Rate: | 6.6934522006 | | | | | |
| | | | | Taxes w/Current Exemptions: | $6,239.74 | | |
| | | | | Taxes w/o Exemptions: | $6,239.74 | | |
Improvement / Building
| Improvement #1: | RESIDENTIAL | State Code: | Y | 1529.0 sqft | Value: | $232,215 |
| Bathrooms: | 1.5 | Bedrooms: | 3 | | Ceiling: | DRYWALL PAINTED | Cooling: | HEAT PUMP/CONV/V | | Exterior Wall/Cover: | PLY/HARDBOARD T-111 | Floor Covering: | CARPET/VINYL 80-20 | | Floor Structure: | WOOD W/SUBFLOOR | Foundation: | CONCRETE | | Interior Finish: | DRYWALL PAINT | Plumbing Fixture Cnt: | 9 | | Roof Slope: | 4" IN 12" | Roof Structure/Cover: | CJ ASPHALT |
|
| | Type | Description | Class CD | Sub Class CD | Year Built | Area |
| | BAS | BASE/MAIN FLOOR | 3 | 0 | 1980 | 1204.0 |
| | UPS | UPPER STORY | 3 | 0 | 1980 | 325.0 |
| | OWP | OPEN WOOD PORCH W/STEPS | 3 | 0 | 1980 | 400.0 |
| | OWR | OPEN WOOD PORCH W/STEPS/ROOF | 3 | 0 | 1980 | 24.0 |
| | OWR | OPEN WOOD PORCH W/STEPS/ROOF | 3 | 0 | 1980 | 8.0 |
| | DGR | DETACHED GARAGE | 3 | 0 | 1980 | 480.0 |
Sketch
Property Image
Land
| 1 | HB | HIGH BLUFF | 1.2000 | 52272.00 | 100.00 | 0.00 | 1.00 | $700,000 | $0 |
Roll Value History
| 2026 | N/A | N/A | N/A | N/A | N/A |
| 2025 | $232,215 | $700,000 | $0 | $932,215 | $932,215 |
| 2024 | $235,475 | $700,000 | $0 | $935,475 | $935,475 |
| 2023 | $238,734 | $700,000 | $0 | $938,734 | $938,734 |
| 2022 | $219,128 | $675,000 | $0 | $894,128 | $894,128 |
| 2021 | $185,670 | $500,000 | $0 | $685,670 | $685,670 |
| 2020 | $181,150 | $450,000 | $0 | $631,150 | $631,150 |
| 2019 | $131,980 | $500,000 | $0 | $631,980 | $631,980 |
| 2018 | $132,419 | $450,000 | $0 | $582,419 | $582,419 |
| 2017 | $131,938 | $450,000 | $0 | $581,938 | $581,938 |
| 2016 | $133,674 | $450,000 | $0 | $583,674 | $583,674 |
| 2015 | $135,411 | $450,000 | $0 | $585,411 | $585,411 |
| 2014 | $114,097 | $450,000 | $0 | $564,097 | $564,097 |
| 2013 | $115,688 | $445,182 | $0 | $560,870 | $560,870 |
| 2012 | $117,281 | $445,182 | $0 | $562,463 | $562,463 |
| 2011 | $118,873 | $494,647 | $0 | $613,520 | $613,520 |
| 2010 | $128,413 | $494,647 | $0 | $623,060 | $623,060 |
| 2009 | $133,748 | $494,647 | $0 | $628,395 | $628,395 |
| 2008 | $134,253 | $494,647 | $0 | $628,900 | $628,900 |
| 2007 | $136,025 | $256,168 | $0 | $392,193 | $392,193 |
Deed and Sales History
| 1 | 05/03/2021 | WD | Warranty Deed | SKODA, THOMAS R | PLOWMAN, MIRI | | | $450,000.00 | 48090 | 4518212 |
| 2 | 10/23/2012 | TRUSTEED | Trustee's Deed | SKODA, RONALD T | SKODA, THOMAS R | | | $0.00 | 9476 | 4327294 |
| 3 | 12/17/1999 | PRD | Personal Representatives Deed | SKODA, RONALD T | SKODA, RONALD T | | | $0.00 | 790 | 20013523 |
| 4 | 01/01/1900 | OTHER | Other - Misc. Documents | Unknown | SKODA, RONALD T | | | $0.00 | 0 | 0 |
Payout Agreement
| No payout information available.. |